Bénéficiez des services de nos partenaires locaux soigneusement sélectionnés
pour vous accompagner dans votre parcours d'achat immobilier

Sète, mont saint clair, villa d'architecte neuve

— Sete 34200 —
1 199 000 €
200 m² / 835 m²
5 pièces
parkingjardinpiscine

Nos partenaires locaux
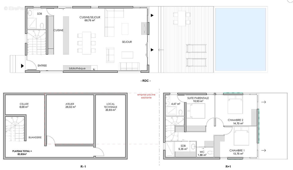
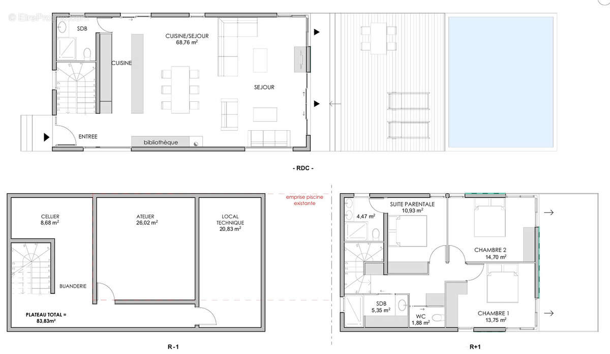
Sur le mont Saint Clair à Sète, bénéficiant d'un emplacement privilégié, au calme d'une impasse, face à l'étang de Thau ainsi que le port et la mer méditerranée, projet de construction sur une parcelle de terrain de 835m2.
Le projet consiste en une maison d'habitation avec piscine, pour une superficie d'environ de 200m2. L'aménagement intérieur est modulable, et vous bénéficiez d'un large choix sur les matériaux.
Permis de construire accepté et purgé des recours.

Référence: 1187
Honoraires à la charge du vendeur.
Barème des honoraires

Prêt immobilier

Vous souhaitez connaître votre capacité d’emprunt et trouver le meilleur crédit immobilier ?
Réaliser une simulation gratuite

Maison à SETE
Maison à SETE
Maison à SETE
Maison à SETE
Maison à SETE
Maison à SETE
Maison à SETE
Maison à SETE
Maison à SETE
Maison à SETE
Maison à SETE
Ce site est protégé par reCAPTCHA la Politique de confidentialité et les Conditions d’utilisation de Google s’appliquent.
Obtenir un prêt immobilier au meilleur taux ?

En poursuivant votre navigation sans modifier vos paramètres, vous acceptez l'utilisation de cookies susceptibles de réaliser des statistiques de visite. Cliquez ici pour plus d'informations