Bénéficiez des services de nos partenaires locaux soigneusement sélectionnés
pour vous accompagner dans votre parcours d'achat immobilier

Villa spacieuse à deux pas du centre de veigy-foncenex

— Veigy-Foncenex 74140 —
1 370 000 €
200 m² / 1 000 m²
8 pièces
parkingbalcon/terrassejardin

Nos partenaires locaux
"Exclusivité Centre Immobilier Léman". Dans un quartier résidentiel à proximité immédiate des écoles, commerces et transports, cette propriété de 350 m² utiles, implantée sur un terrain de 1 000 m², offre un cadre de vie exceptionnel. Son jardin arboré, agrémenté d'une vaste terrasse de 100 m², orientée plein sud et ouest, invite à la détente. Avec ses volumes généreux et ses espaces privatifs, cette villa saura séduire chaque membre de la famille.

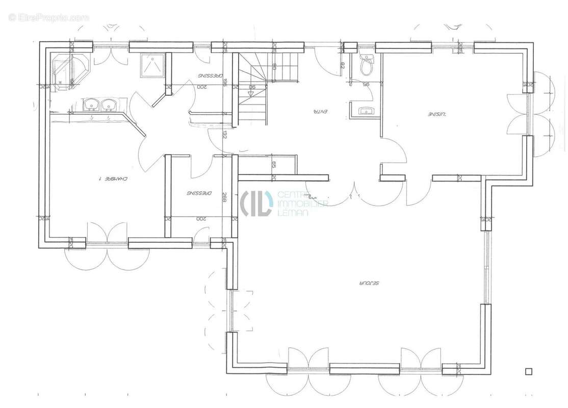
Au rez-de-jardin, vous trouverez un grand hall d'entrée desservant des toilettes visiteurs, un grand séjour/salon de 48 m² avec cheminée donnant sur les 2 terrasses, une spacieuse cuisine aménagée indépendante accès terrasse et pergola. Une suite parentale de 35m² composée de 2 dressings, une salle de bain/douche donnant sur un jardin privatif complète ce niveau.

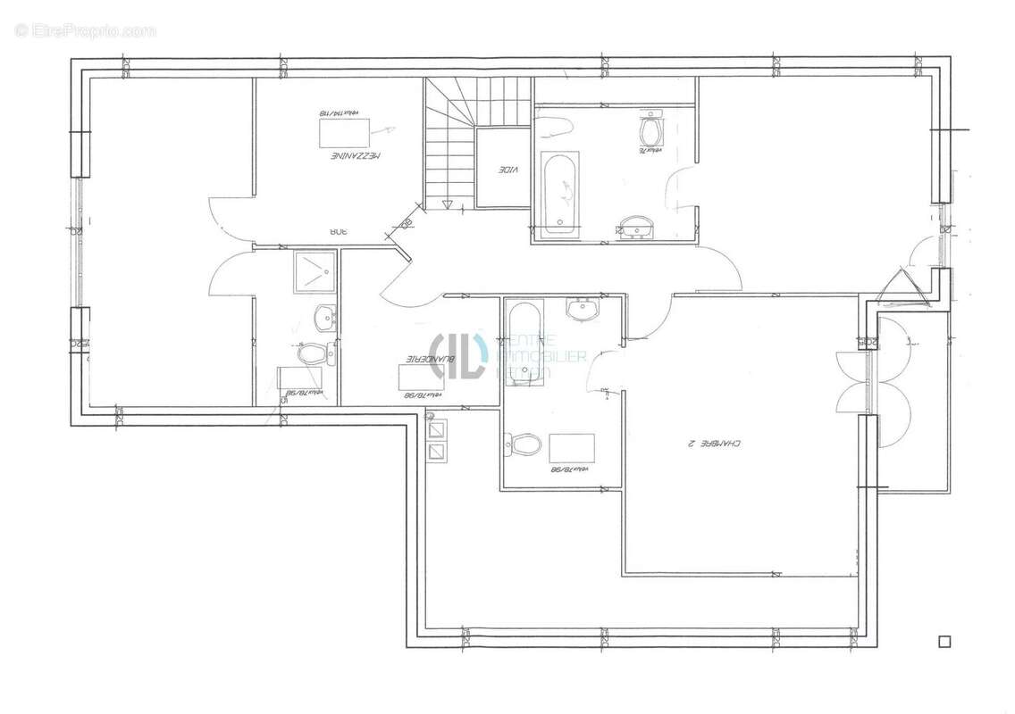
A l'étage, une mezzanine dessert 3 grandes chambres de 22 - 18 et 17m² bénéficiant chacune de sa salle de bain et de ses sanitaires. Une buanderie ainsi qu'un grenier complètent ce niveau.

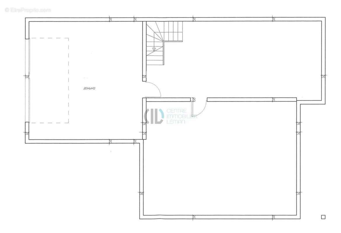
Dans le sous-sol complet, vous apprécierez un garage double avec accès à une 2 ème entrée aménagée, une salle de jeux/sport, une vraie cave à vin et un carnotzet pour de bons moments entre amis ! Les informations sur les risques auxquels ce bien est exposé sont disponibles sur le site Géorisques : www.georisques.gouv.fr
Voir plus

Référence: 85010419
Barème des honoraires
DPE
A
B
C
D
E
F
G
GES
A
B
C
D
E
F
G

Prêt immobilier

Vous souhaitez connaître votre capacité d’emprunt et trouver le meilleur crédit immobilier ?
Réaliser une simulation gratuite

Maison à VEIGY-FONCENEX
Maison à VEIGY-FONCENEX
Maison à VEIGY-FONCENEX
Maison à VEIGY-FONCENEX
Maison à VEIGY-FONCENEX
Maison à VEIGY-FONCENEX
Maison à VEIGY-FONCENEX
Maison à VEIGY-FONCENEX
Maison à VEIGY-FONCENEX
Maison à VEIGY-FONCENEX
Maison à VEIGY-FONCENEX
Maison à VEIGY-FONCENEX
Maison à VEIGY-FONCENEX
Maison à VEIGY-FONCENEX
Maison à VEIGY-FONCENEX
Maison à VEIGY-FONCENEX
Maison à VEIGY-FONCENEX
Maison à VEIGY-FONCENEX
Maison à VEIGY-FONCENEX
Maison à VEIGY-FONCENEX
Maison à VEIGY-FONCENEX
Maison à VEIGY-FONCENEX
Maison à VEIGY-FONCENEX
Maison à VEIGY-FONCENEX
Maison à VEIGY-FONCENEX
Maison à VEIGY-FONCENEX
Ce site est protégé par reCAPTCHA la Politique de confidentialité et les Conditions d’utilisation de Google s’appliquent.
Obtenir un prêt immobilier au meilleur taux ?

En poursuivant votre navigation sans modifier vos paramètres, vous acceptez l'utilisation de cookies susceptibles de réaliser des statistiques de visite. Cliquez ici pour plus d'informations