Maison 132m² à l'hopital

— L'hopital 57490 —
115 000 €
132 m² / 361 m²
5 pièces
parkingjardin

À L'Hôpital, idéalement située proche des commodités, des écoles et des axes autoroutiers, cette maison mitoyenne de 131 m² offre un cadre de vie agréable à quelques pas de la carrière Barrois, un lieu privilégié pour les amoureux de nature et de promenades.

Au rez-de-chaussée, vous découvrirez une pièce de vie donnant sur une cuisine équipée, ainsi qu'une salle d'eau avec douche, WC et espace buanderie.

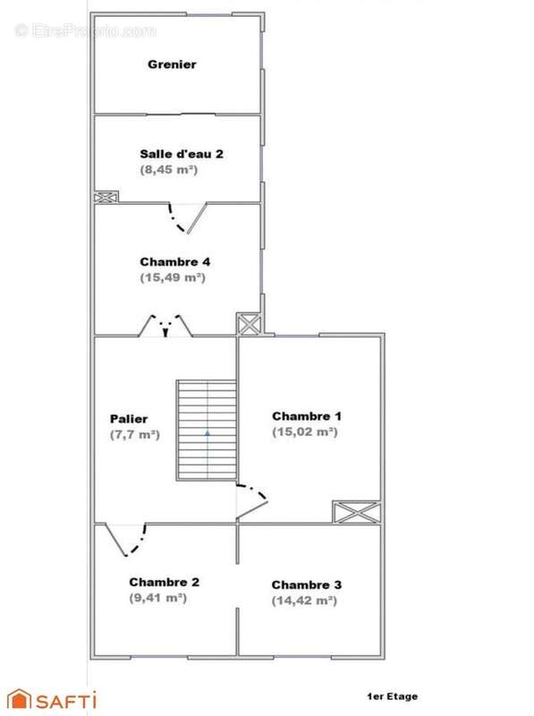
À l'étage, l'espace nuit comprend quatre chambres, une pièce d'eau avec douche et WC, ainsi qu'un loggia offrant un espace supplémentaire appréciable.

Côté confort, la maison dispose d'une chaudière gaz récente, de menuiseries en PVC double vitrage et d'une isolation des combles réalisée.

À l'extérieur, un coin jardin agréable permettra de profiter des beaux jours. Une petite cave complète le bien.

Des travaux de rafraîchissement et d'amélioration sont à prévoir pour en faire un lieu de vie à votre image. La maison ne dispose pas de garage, mais le stationnement est possible à proximité.

Une maison au fort potentiel, à visiter sans tarder.

Contactez-moi pour plus d'informations ou pour organiser une visite.

Les informations sur les risques auxquels ce bien est exposé sont disponibles sur le site Géorisques : www.georisques.gouv.fr
Prix de vente : 115 000 ¤
Honoraires charge vendeur

Contactez votre conseiller SAFTI : Jonathan QUINTEN, Tél. : [Coordonnées masquées], E-mail : [Coordonnées masquées] - EI - Agent commercial immatriculé au RSAC de SARREGUEMINES sous le numéro 852 436 781.
Informations LOI ALUR :
Honoraires charge vendeur. (gedeon_26118_31004761)
Voir plus

Référence: 1450366
Honoraires à la charge du vendeur.
Barème des honoraires
DPE
A
B
C
D
E
F
G
GES
A
B
C
D
E
F
G

Prêt immobilier

Vous souhaitez connaître votre capacité d’emprunt et trouver le meilleur crédit immobilier ?
Réaliser une simulation gratuite

Photo 1 - Maison à L'HOPITAL
Photo 1
Photo 2 - Maison à L'HOPITAL
Photo 2
Photo 3 - Maison à L'HOPITAL
Photo 3
Photo 4 - Maison à L'HOPITAL
Photo 4
Photo 5 - Maison à L'HOPITAL
Photo 5
Photo 6 - Maison à L'HOPITAL
Photo 6
Photo 7 - Maison à L'HOPITAL
Photo 7
Photo 8 - Maison à L'HOPITAL
Photo 8
Photo 9 - Maison à L'HOPITAL
Photo 9
Ce site est protégé par reCAPTCHA la Politique de confidentialité et les Conditions d’utilisation de Google s’appliquent.
Obtenir un prêt immobilier au meilleur taux ?

En poursuivant votre navigation sans modifier vos paramètres, vous acceptez l'utilisation de cookies susceptibles de réaliser des statistiques de visite. Cliquez ici pour plus d'informations