Bénéficiez des services de nos partenaires locaux soigneusement sélectionnés
pour vous accompagner dans votre parcours d'achat immobilier

Appartement t5 à vendre 31700 beauzelle

— Beauzelle 31700 —
159 000 €
95 m²
5 pièces
balcon/terrasse

Nos partenaires locaux
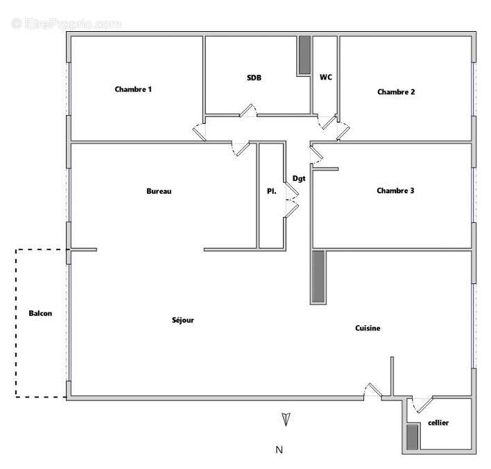
INTEGRAL IMMOBILIER : [Coordonnées masquées] - [Coordonnées masquées]. Proche Toulouse, 31700 Beauzelle (mairie à 500m), au sein d’un immeuble de 18 lots principaux, un appartement T5 au 1er étage, de 95m2 habitable, balcon de 5,30m2, et une cave individuelle. Composition : une entrée, dégagement, cuisine ouverte, cellier, salon séjour, bureau, trois chambres, salle de bains, et wc. Appartement lumineux, traversant, orienté Est Ouest, au sein d’une copropriété année 1972, bénéficiant d’un local vélos, et équipée fibre. Taxe foncière : 1269 euros, charges / mois : 130 euros (avec chauffage gaz, et consommation individuelle d’eau). Communes proches : Blagnac, Colomiers, Pibrac, Mondonville, Tournefeuille, Seilh... Pas de stationnement privatif vendu avec le logement (nombreuses places disponibles devant la résidence). 'Les informations sur les risques auxquels ce bien est exposé sont disponibles sur le site Géorisques http://www.georisques.gouv.fr'. O6.82.73.55.6O O5.61.40.03.02 Intégral Immobilier : 16, r de la République 31270 Frouzins - [Coordonnées masquées]. Vente, Viager, Location, Gestion, Entreprise.
Voir plus

Référence: 040425
Bien en copropriété. Nombre de lots : 18.
Honoraires à la charge du vendeur.
Barème des honoraires
DPE
A
B
C
D
E
F
G
GES
A
B
C
D
E
F
G

Prêt immobilier

Vous souhaitez connaître votre capacité d’emprunt et trouver le meilleur crédit immobilier ?
Réaliser une simulation gratuite

Appartement à BEAUZELLE
Appartement à BEAUZELLE
Appartement à BEAUZELLE
Appartement à BEAUZELLE
Appartement à BEAUZELLE
Appartement à BEAUZELLE
Appartement à BEAUZELLE
Appartement à BEAUZELLE
Appartement à BEAUZELLE
Ce site est protégé par reCAPTCHA la Politique de confidentialité et les Conditions d’utilisation de Google s’appliquent.
Obtenir un prêt immobilier au meilleur taux ?

En poursuivant votre navigation sans modifier vos paramètres, vous acceptez l'utilisation de cookies susceptibles de réaliser des statistiques de visite. Cliquez ici pour plus d'informations