Bénéficiez des services de nos partenaires locaux soigneusement sélectionnés
pour vous accompagner dans votre parcours d'achat immobilier

Voir tous les partenaires locaux

Appartement 126m² à bordeaux

— Bordeaux 33000 —
540 000 €
126 m²
4 pièces
balcon/terrasse

Nos partenaires locaux
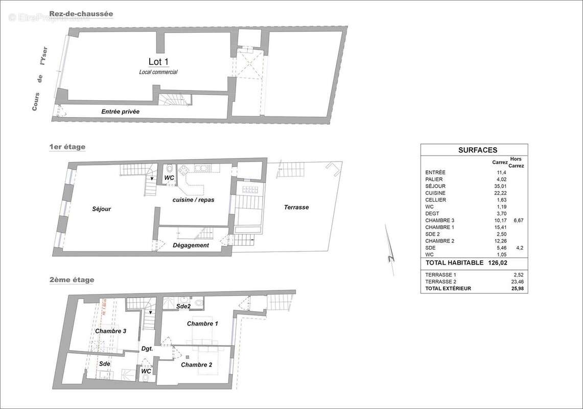
Bel appartement T4, de 126 m², remis à neuf, seul logement au dessus d'un local commercial au rez-de-chaussée. Il dispose, au niveau rue, d'une entrée privée, d'où un escalier permet d'accéder à un grand séjour lumineux, côté rue, largement ouvert sur une grande cuisine, donnant à l'arrière sur une grande terrasse de 26 m² sans vis à vis. du séjour, un escalier mène l'étage supérieur,, sous rampant, constitué de trois chambres, dont une avec salle d'eau privative et accès direct à la terrasse, d'une salle d'eau et d'un wc. Chauffage électrique, chauffe eau thermodynamique et pompe à chaleur. La cuisine sera équipée. Le secteur est bien pourvu en commerces, transports et établissements scolaires. Diagnostic du 28/03/2025 'C' Estimation des coûts annuels : entre 1 222 euros et 1 654 euros par an. Prix moyens des énergies indexées au sur les années 2021, 2022 et 2023. Taxe foncière 1900 euros. Honoraires à la charge du vendeur. Les informations sur les risques auxquels ce bien est exposé sont disponibles sur le site Géorisques : www.georisques.gouv.fr.
Les informations sur les risques auxquels ce bien est exposé sont disponibles sur le site Géorisques : georisques.gouv.fr.
Voir plus

Référence: 77
Bien en copropriété. Nombre de lots : 2. Charges de copropriété : 250 €.
Honoraires à la charge du vendeur.
Barème des honoraires
DPE
A
B
C
D
E
F
G
GES
A
B
C
D
E
F
G

Prêt immobilier

Vous souhaitez connaître votre capacité d’emprunt et trouver le meilleur crédit immobilier ?
Réaliser une simulation gratuite

Appartement à BORDEAUX
Appartement à BORDEAUX
Appartement à BORDEAUX
Appartement à BORDEAUX
Appartement à BORDEAUX
Appartement à BORDEAUX
Ce site est protégé par reCAPTCHA la Politique de confidentialité et les Conditions d’utilisation de Google s’appliquent.
Obtenir un prêt immobilier au meilleur taux ?

En poursuivant votre navigation sans modifier vos paramètres, vous acceptez l'utilisation de cookies susceptibles de réaliser des statistiques de visite. Cliquez ici pour plus d'informations