Maison normande rénovée 5 mn veules les roses

— Blosseville 76460 —
299 000 €
120 m² / 908 m²
5 pièces
parkingjardin

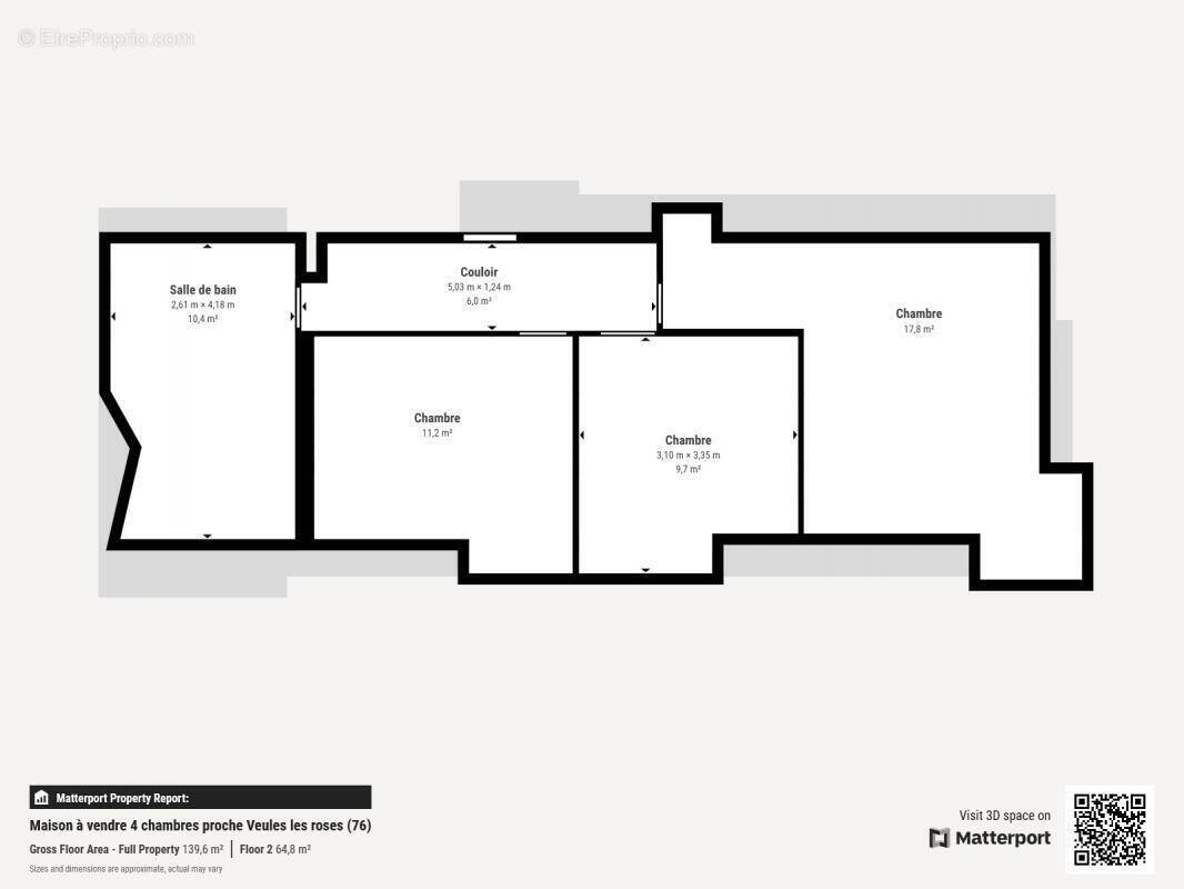
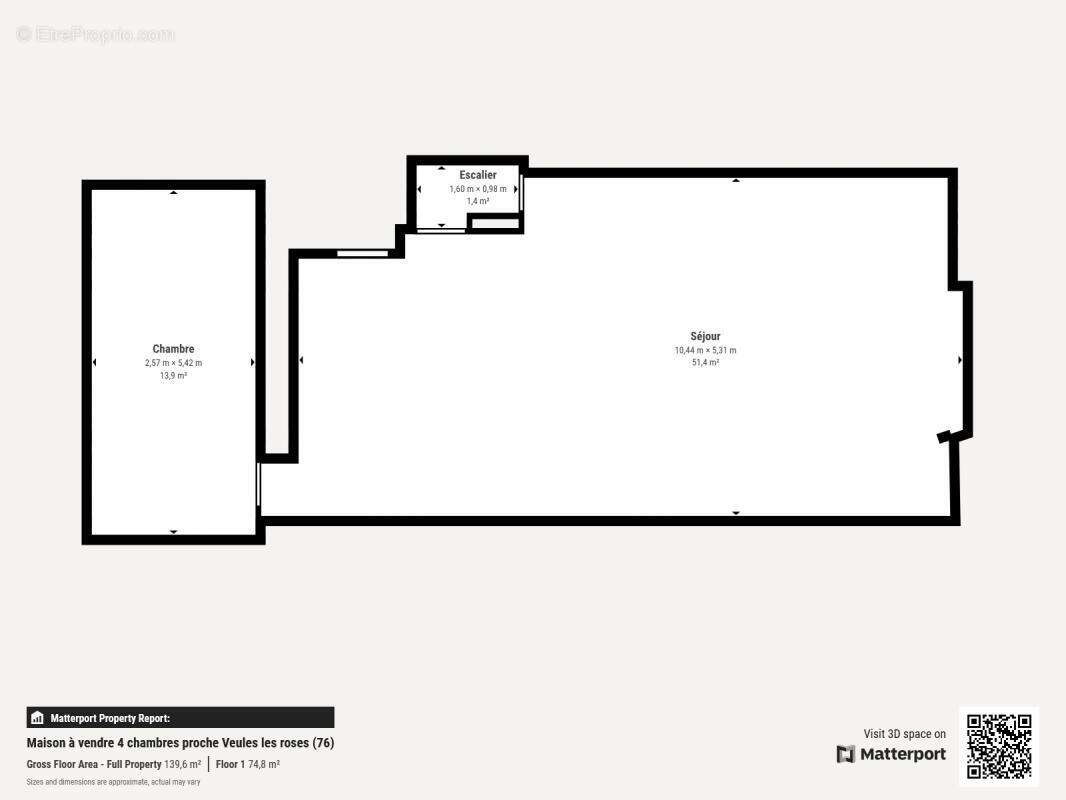
En Normandie en Seine-Maritime, maison normande mitoyenne d'un côté comprenant cuisine aménagée et équipée ouverte sur séjour avec poêle à bois (le tout environ 50 m²), chambre plain-pied avec salle d'eau privative, WC. À l'étage, couloir desservant trois chambres, salle d'eau avec WC. Nombreux travaux récents : Isolation refaite, fenêtres double vitrage, électricité, plomberie, sol, etc. Le tout à 5 minutes de Veules les roses et moins de 10 minutes de St Valery en caux. Terrain plat de 908 m². Honoraires de 14.000 euros à la charge de l'acquéreur soit 285.000 euros net vendeur.
Les informations sur les risques auxquels ce bien est exposé sont disponibles sur le site Géorisques : www. georisques. gouv. fr
Voir plus

Référence: 1306fr
Barème des honoraires
DPE
A
B
C
D
E
F
G
GES
A
B
C
D
E
F
G

Prêt immobilier

Vous souhaitez connaître votre capacité d’emprunt et trouver le meilleur crédit immobilier ?
Réaliser une simulation gratuite

Maison à BLOSSEVILLE
Maison à BLOSSEVILLE
Maison à BLOSSEVILLE
Maison à BLOSSEVILLE
Maison à BLOSSEVILLE
Maison à BLOSSEVILLE
Maison à BLOSSEVILLE
Maison à BLOSSEVILLE
Maison à BLOSSEVILLE
Maison à BLOSSEVILLE
Maison à BLOSSEVILLE
Maison à BLOSSEVILLE
Maison à BLOSSEVILLE
Maison à BLOSSEVILLE
Maison à BLOSSEVILLE
Maison à BLOSSEVILLE
Maison à BLOSSEVILLE
Maison à BLOSSEVILLE
Maison à BLOSSEVILLE
Maison à BLOSSEVILLE
Maison à BLOSSEVILLE
Maison à BLOSSEVILLE
Maison à BLOSSEVILLE
Maison à BLOSSEVILLE
Maison à BLOSSEVILLE
Maison à BLOSSEVILLE
Maison à BLOSSEVILLE
Maison à BLOSSEVILLE
Ce site est protégé par reCAPTCHA la Politique de confidentialité et les Conditions d’utilisation de Google s’appliquent.
Obtenir un prêt immobilier au meilleur taux ?

En poursuivant votre navigation sans modifier vos paramètres, vous acceptez l'utilisation de cookies susceptibles de réaliser des statistiques de visite. Cliquez ici pour plus d'informations