Bénéficiez des services de nos partenaires locaux soigneusement sélectionnés
pour vous accompagner dans votre parcours d'achat immobilier

Maison de ville - 7 pieces avec local commercial - pas de charges - grasse

— Grasse 06130 —
299 980 €
165 m²
7 pièces

Nos partenaires locaux
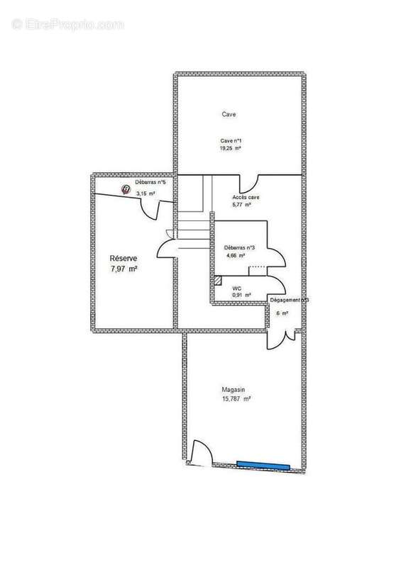
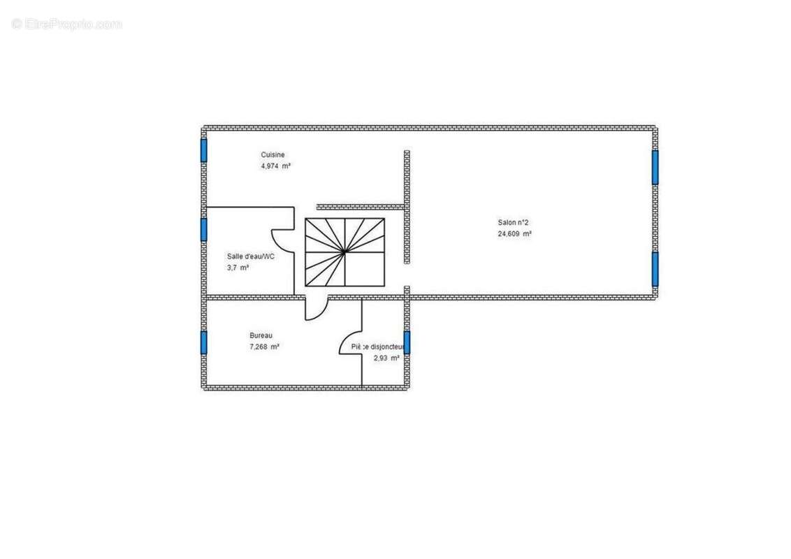
Rare sur le secteur - Maison de Ville 7 Pièces sur 4 Niveaux, bénéficiant d'un local commercial en RDC et 2 caves en sous-sol. Située dans le centre ancien avec un accès facile, cette charmante maison de ville sur 4 niveaux offre un vaste potentiel, alliant espace de vie et possibilité d'activité commerciale en rez-de-chaussée. D'une belle superficie, la maison comprend 7 pièces principales, réparties sur plusieurs niveaux, offrant ainsi une belle modularité et de nombreuses options d'aménagement. Le rez-de-chaussée est consacré à un espace commercial avec vitrine, idéal pour une activité professionnelle, un commerce ou un bureau. Délégation de mandat. Prix 299 980 € TTC et Honoraires à charge vendeur TTC Prix moyens des énergies indexés sur les années 2[Coordonnées masquées]3 (abonnement compris). Montant estimé des dépenses annuelles d'énergie pour un usage standard : entre 2 809 € et 3 801 € par an. Réf 1127. DECLIC IMMO 06 DPE : E Les informations sur les risques auxquels ce bien est exposé sont disponibles sur le site Géorisques : www.georisques.gouv.fr. Annonce proposée et rédigée sous la responsabilité éditoriale de RINGENBACH Arnaud - [Coordonnées masquées] - [Coordonnées masquées] Agent immobilier - RSAC N° 480 997 410 Ville du greffe : GRASSE
Voir plus

Référence: 1127
Honoraires à la charge du vendeur.
Barème des honoraires
DPE
A
B
C
D
E
F
G
GES
A
B
C
D
E
F
G

Prêt immobilier

Vous souhaitez connaître votre capacité d’emprunt et trouver le meilleur crédit immobilier ?
Réaliser une simulation gratuite

Maison à GRASSE
Maison à GRASSE
Maison à GRASSE
Maison à GRASSE
Maison à GRASSE
Maison à GRASSE
Maison à GRASSE
Maison à GRASSE
Maison à GRASSE
Maison à GRASSE
Maison à GRASSE
Maison à GRASSE
Maison à GRASSE
Maison à GRASSE
Maison à GRASSE
Maison à GRASSE
Maison à GRASSE
Maison à GRASSE
Maison à GRASSE
Maison à GRASSE
Maison à GRASSE
Ce site est protégé par reCAPTCHA la Politique de confidentialité et les Conditions d’utilisation de Google s’appliquent.
Obtenir un prêt immobilier au meilleur taux ?

En poursuivant votre navigation sans modifier vos paramètres, vous acceptez l'utilisation de cookies susceptibles de réaliser des statistiques de visite. Cliquez ici pour plus d'informations