Bénéficiez des services de nos partenaires locaux soigneusement sélectionnés
pour vous accompagner dans votre parcours d'achat immobilier

Saint raphael - 2 pièces - 48 m2

— Saint-Raphael 83700 —
179 000 €
48 m²
2 pièces
balcon/terrasse

Nos partenaires locaux
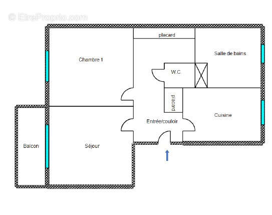
Votre agence GMJ IMMOBILIER vous propose cet appartement traversant de 2 pièces situé au premier étage sans ascenseur, situé dans une jolie résidence verdoyante de type provençal. Il comprend : une entrée, un séjour, une cuisine indépendante, une chambre, wc, une salle de bains. Un balcon.
Parking libre dans la résidence.
L'appartement bénéficie du double vitrage.
Cet appartement est vendu loué, offrant ainsi une opportunité d'investissement. N'hésitez pas à nous contacter pour organiser une visite ou pour toute question supplémentaire.
 
POUR PLUS D’INFORMATIONS contactez notre agence au [Coordonnées masquées]
Les informations sur les risques auxquels ce bien est exposé sont disponibles sur le site Géorisques : www.georisques.gouv.fr
 
Voir plus

Référence: 6660
Bien en copropriété. Nombre de lots : 66. Charges de copropriété : 1232 €.
Honoraires d'agence de 5.29% à la charge de l'acquéreur
Barème des honoraires
DPE
A
B
C
D
E
F
G
GES
A
B
C
D
E
F
G

Prêt immobilier

Vous souhaitez connaître votre capacité d’emprunt et trouver le meilleur crédit immobilier ?
Réaliser une simulation gratuite

Appartement à SAINT-RAPHAEL
Appartement à SAINT-RAPHAEL
Appartement à SAINT-RAPHAEL
Appartement à SAINT-RAPHAEL
Appartement à SAINT-RAPHAEL
Appartement à SAINT-RAPHAEL
Appartement à SAINT-RAPHAEL
Ce site est protégé par reCAPTCHA la Politique de confidentialité et les Conditions d’utilisation de Google s’appliquent.
Obtenir un prêt immobilier au meilleur taux ?

En poursuivant votre navigation sans modifier vos paramètres, vous acceptez l'utilisation de cookies susceptibles de réaliser des statistiques de visite. Cliquez ici pour plus d'informations