Près de nice - villa récente - piscine - vue

— Contes 06390 —
470 000 €
135 m²
5 pièces
parkingjardinpiscine

Maison individuelle avec piscine et vue panoramique.
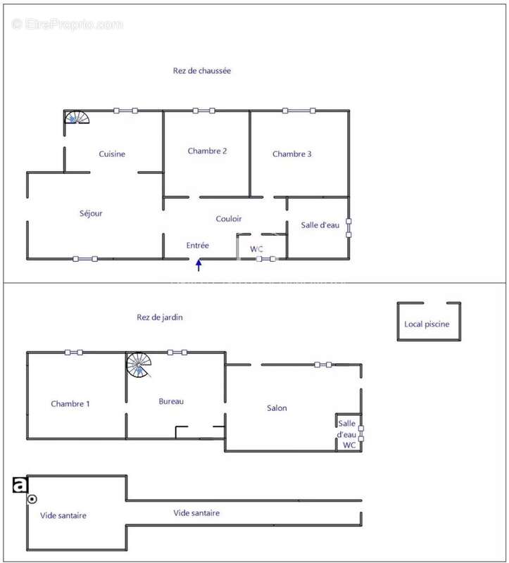
Transformable très facilement en deux appartement.

En situation dominante, sans vis-à-vis, au calme absolu.

Villa individuelle, récente de type 5 Pièces d’une surface de 135 m² avec une grande piscine et des parkings, avec terrain attenant de près 10 000 m².
Orientée principalement sud et ouest, la villa bénéficie d’une vue panoramique sur les collines et le village de Contes.

Villa de type Néo-Provençale, sur deux niveaux principaux, elle est composée de :

- Entrée propriété : un emplacement parking pour 4/5 véhicules et un garage.

- Au rez-de-jardin : Terrasse Sud couverte, une entrée, un séjour spacieux de 30 m² avec un poêle à bois (sud), une cuisine équipée (14 m²) ouverte sur le séjour (ouest) ; 2 chambres de (12 m²) – une salle de bain – un toilette indépendant.

Accès -1: Escalier intérieur et Accès privatif par l’extérieur.

- Niveau Piscine :
Accès indépendant au niveau -1, qui peut être facilement convertible en appartement de type 2 pièces, avec cuisine, salle d’eau, salon, chambre, buanderie. Actuellement, 2 grandes chambres, une salle d’eau et un coin buanderie.

Une grande piscine de 10 x 5 m, avec filtre à sable. Local piscine située sous la piscine.
Terrasse autour de la piscine avec une vue panoramique sur les montagnes environnantes, sans aucun vis-à-vis.
Voir plus

Référence: 85794121
Barème des honoraires
DPE
A
B
C
D
E
F
G
GES
A
B
C
D
E
F
G

Prêt immobilier

Vous souhaitez connaître votre capacité d’emprunt et trouver le meilleur crédit immobilier ?
Réaliser une simulation gratuite

Maison à CONTES
Maison à CONTES
Maison à CONTES
Maison à CONTES
Maison à CONTES
Maison à CONTES
Maison à CONTES
Maison à CONTES
Maison à CONTES
Maison à CONTES
Maison à CONTES
Maison à CONTES
Maison à CONTES
Maison à CONTES
Maison à CONTES
Maison à CONTES
Maison à CONTES
Maison à CONTES
Maison à CONTES
Maison à CONTES
Maison à CONTES
Maison à CONTES
Maison à CONTES
Maison à CONTES
Maison à CONTES
Maison à CONTES
Maison à CONTES
Maison à CONTES
Ce site est protégé par reCAPTCHA la Politique de confidentialité et les Conditions d’utilisation de Google s’appliquent.
Obtenir un prêt immobilier au meilleur taux ?

En poursuivant votre navigation sans modifier vos paramètres, vous acceptez l'utilisation de cookies susceptibles de réaliser des statistiques de visite. Cliquez ici pour plus d'informations