Bénéficiez des services de nos partenaires locaux soigneusement sélectionnés
pour vous accompagner dans votre parcours d'achat immobilier

Maison 124m² à perigueux

— Perigueux 24000 —
147 800 €
124 m² / 249 m²
7 pièces
parkingjardin

Nos partenaires locaux
À la sortie ouest, à proximité immédiate des commerces, écoles et loisirs accessibles à pied ou à vélo, cette maison en pierres allie charme, confort et praticité. Idéale pour une famille ou un investissement locatif, elle offre un cadre de vie fonctionnel et agréable.

Intérieur chaleureux :
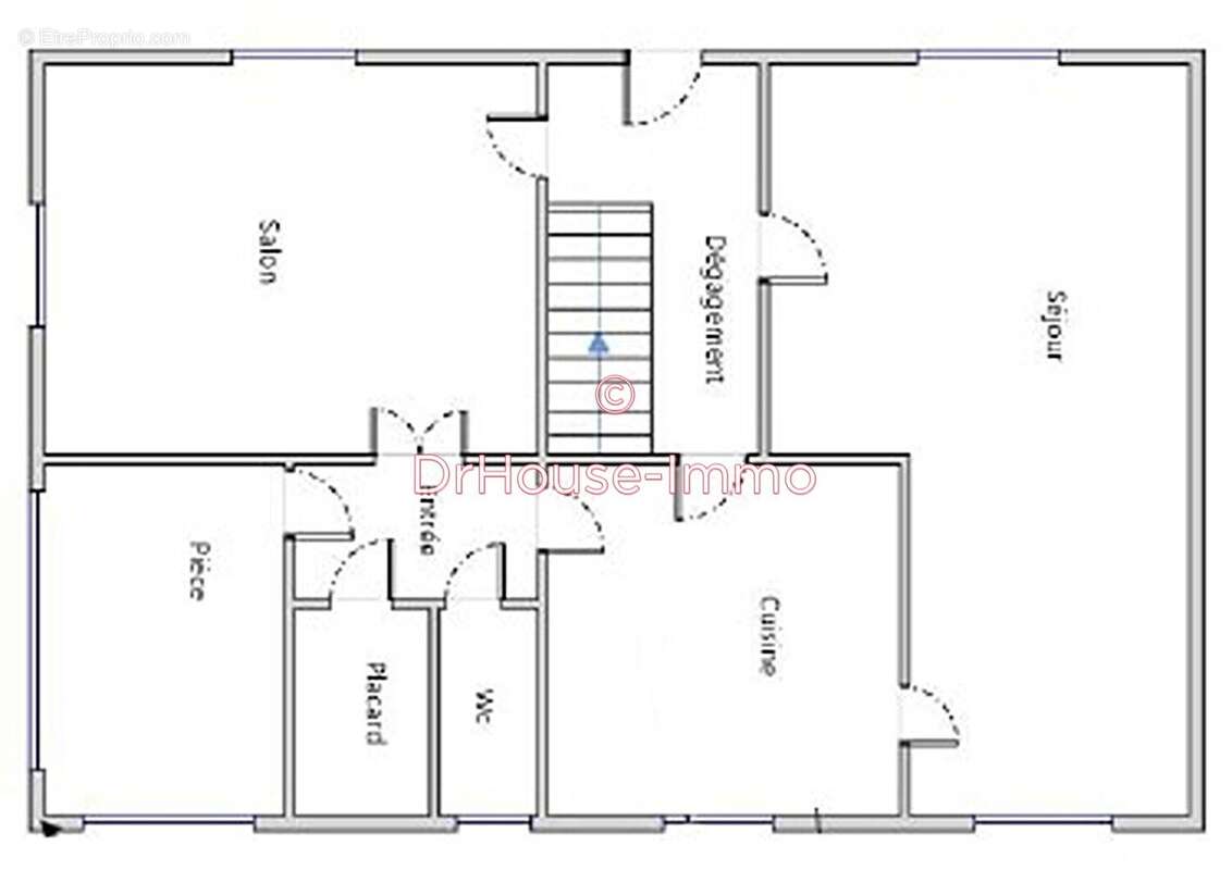
Rez-de-chaussée : Pièce de vie traversante, cuisine indépendante, salon cosy, petite véranda lumineuse, entrée et WC indépendant.
Étage : Quatre chambres spacieuses (12 à 14 m²), bureau, salle d’eau et WC séparés.

Cave et rangements :
Cave de 39 m² et nombreux espaces de rangement complètent ce bien pratique.

Confort et prestations :
Menuiseries PVC double vitrage
Volets roulants électriques
Parquets d’origine en excellent état
Chauffage au gaz
Tout-à-l’égout

Extérieur fonctionnel :
Garage indépendant de 15 m², pouvant servir d’atelier
Abri de jardin

Maison prête à accueillir une vie de famille ou un projet locatif.

Contactez-moi dès maintenant pour organiser une visite et découvrir tout son potentiel. Ce bien vous est présenté par Maxime Aoustin, votre conseiller indépendant Dr House Immo.
Voir plus

Référence: 88416DHI1751
Honoraires d'agence de 5.57% à la charge de l'acquéreur
Barème des honoraires
DPE
A
B
C
D
E
F
G
GES
A
B
C
D
E
F
G

Prêt immobilier

Vous souhaitez connaître votre capacité d’emprunt et trouver le meilleur crédit immobilier ?
Réaliser une simulation gratuite

Maison à PERIGUEUX
Maison à PERIGUEUX
Maison à PERIGUEUX
Maison à PERIGUEUX
Maison à PERIGUEUX
Maison à PERIGUEUX
Maison à PERIGUEUX
Maison à PERIGUEUX
Maison à PERIGUEUX
Maison à PERIGUEUX
Maison à PERIGUEUX
Maison à PERIGUEUX
Maison à PERIGUEUX
Maison à PERIGUEUX
Maison à PERIGUEUX
Maison à PERIGUEUX
Maison à PERIGUEUX
Maison à PERIGUEUX
Maison à PERIGUEUX
Maison à PERIGUEUX
Maison à PERIGUEUX
Maison à PERIGUEUX
Maison à PERIGUEUX
Maison à PERIGUEUX
Maison à PERIGUEUX
Maison à PERIGUEUX
Maison à PERIGUEUX
Maison à PERIGUEUX
Maison à PERIGUEUX
Maison à PERIGUEUX
Maison à PERIGUEUX
Maison à PERIGUEUX
Maison à PERIGUEUX
Maison à PERIGUEUX
Maison à PERIGUEUX
Maison à PERIGUEUX
Maison à PERIGUEUX
Maison à PERIGUEUX
Maison à PERIGUEUX
Maison à PERIGUEUX
Maison à PERIGUEUX
Maison à PERIGUEUX
Maison à PERIGUEUX
Maison à PERIGUEUX
Maison à PERIGUEUX
Maison à PERIGUEUX
Maison à PERIGUEUX
Maison à PERIGUEUX
Maison à PERIGUEUX
Maison à PERIGUEUX
Maison à PERIGUEUX
Maison à PERIGUEUX
Maison à PERIGUEUX
Maison à PERIGUEUX
Maison à PERIGUEUX
Maison à PERIGUEUX
Maison à PERIGUEUX
Maison à PERIGUEUX
Maison à PERIGUEUX
Maison à PERIGUEUX
Maison à PERIGUEUX
Maison à PERIGUEUX
Maison à PERIGUEUX
Maison à PERIGUEUX
Maison à PERIGUEUX
Maison à PERIGUEUX
Maison à PERIGUEUX
Maison à PERIGUEUX
Maison à PERIGUEUX
Maison à PERIGUEUX
Maison à PERIGUEUX
Maison à PERIGUEUX
Maison à PERIGUEUX
Maison à PERIGUEUX
Maison à PERIGUEUX
Maison à PERIGUEUX
Maison à PERIGUEUX
Maison à PERIGUEUX
Maison à PERIGUEUX
Maison à PERIGUEUX
Maison à PERIGUEUX
Maison à PERIGUEUX
Maison à PERIGUEUX
Maison à PERIGUEUX
Maison à PERIGUEUX
Maison à PERIGUEUX
Maison à PERIGUEUX
Maison à PERIGUEUX
Maison à PERIGUEUX
Maison à PERIGUEUX
Maison à PERIGUEUX
Maison à PERIGUEUX
Maison à PERIGUEUX
Maison à PERIGUEUX
Maison à PERIGUEUX
Maison à PERIGUEUX
Maison à PERIGUEUX
Maison à PERIGUEUX
Maison à PERIGUEUX
Maison à PERIGUEUX
Maison à PERIGUEUX
Maison à PERIGUEUX
Maison à PERIGUEUX
Maison à PERIGUEUX
Maison à PERIGUEUX
Maison à PERIGUEUX
Maison à PERIGUEUX
Maison à PERIGUEUX
Maison à PERIGUEUX
Maison à PERIGUEUX
Maison à PERIGUEUX
Maison à PERIGUEUX
Maison à PERIGUEUX
Maison à PERIGUEUX
Maison à PERIGUEUX
Maison à PERIGUEUX
Maison à PERIGUEUX
Maison à PERIGUEUX
Maison à PERIGUEUX
Maison à PERIGUEUX
Maison à PERIGUEUX
Maison à PERIGUEUX
Maison à PERIGUEUX
Maison à PERIGUEUX
Maison à PERIGUEUX
Maison à PERIGUEUX
Maison à PERIGUEUX
Ce site est protégé par reCAPTCHA la Politique de confidentialité et les Conditions d’utilisation de Google s’appliquent.
Obtenir un prêt immobilier au meilleur taux ?

En poursuivant votre navigation sans modifier vos paramètres, vous acceptez l'utilisation de cookies susceptibles de réaliser des statistiques de visite. Cliquez ici pour plus d'informations