Bénéficiez des services de nos partenaires locaux soigneusement sélectionnés
pour vous accompagner dans votre parcours d'achat immobilier

Installez vous en bar restaurant pour le seul prix des murs avec jardin bordant la nievre

— Nevers 58000 —
122 000 €
217 m²
8 pièces
accès handicapé

Nos partenaires locaux
CENTRE VILLE EN BORDURE D'UN AXE PASSANT
INSTALLEZ VOUS POUR LE PRIX DE L'IMMEUBLE
qui est quasiment prêt à fonctionner en bar restaurant...

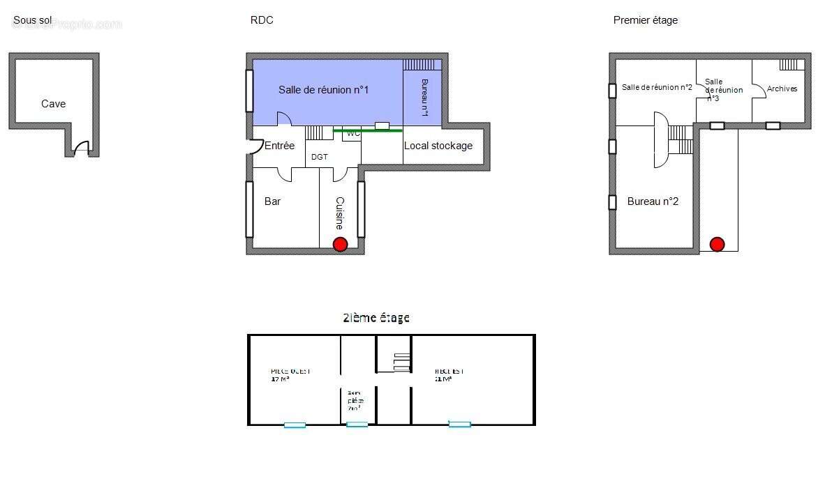
Les locaux comprennent:

Au rez de chaussée,
- une salle de bar de 21m² avec comptoir opérationnel,
- une grande salle à manger de 39m² ouverte sur large trottoir, plus arrière salle de 9m²,
- une cuisine toute équipée de 9m²
- un jardin terrasse aménagé de 96m² bordant la rivière Nièvre, avec barbecue et préau bar
- Sanitaire , locaux de rangement et vaste cave de 25m² en dessous .

Au premier étage:
- pouvant constituer des compléments de locaux , ou pouvant servir de logement
- 3 pièces de 23m², 20m² et 12m²,
- une kitchenette de 4m²,
- une salle de bains de 15m²

Au second étage:
- 2 mansardes aménageables de 25m² et de 21m²

L'ensemble est en bon état sauf les combles.
Le Chauffage central au gaz est opérationnel.
Plusieurs parkings publics gratuits à proximité.
De nombreux commerces à proximité.
A 5 minutes des promenades de bords de Loire de la maison des sports de la maison de la culture et des zones piétonnes
Voir plus

Référence: 85706302
Barème des honoraires
DPE
A
B
C
D
E
F
G
GES
A
B
C
D
E
F
G

Prêt immobilier

Vous souhaitez connaître votre capacité d’emprunt et trouver le meilleur crédit immobilier ?
Réaliser une simulation gratuite

Commerce à NEVERS
Commerce à NEVERS
Commerce à NEVERS
Commerce à NEVERS
Commerce à NEVERS
Commerce à NEVERS
Commerce à NEVERS
Commerce à NEVERS
Commerce à NEVERS
Commerce à NEVERS
Commerce à NEVERS
Commerce à NEVERS
Commerce à NEVERS
Ce site est protégé par reCAPTCHA la Politique de confidentialité et les Conditions d’utilisation de Google s’appliquent.
Obtenir un prêt immobilier au meilleur taux ?

En poursuivant votre navigation sans modifier vos paramètres, vous acceptez l'utilisation de cookies susceptibles de réaliser des statistiques de visite. Cliquez ici pour plus d'informations