Bénéficiez des services de nos partenaires locaux soigneusement sélectionnés
pour vous accompagner dans votre parcours d'achat immobilier

Argeles sur mer - terrain a bâtir avec permis de construire - viabilisé - 1410m2

— Argeles-Sur-Mer 66700 —
260 000 €
1 410 m²
parkingjardin

Nos partenaires locaux
Nouvelle opportunité pour les acquéreurs à la recherche d'un terrain constructible.
Belle parcelle plate de 1410m2 idéalement exposé pour y édifier une villa individuelle 4 Faces.
Vendu avec son permis de construire validé par les services de l'urbanisme.
A proximité des commerces de la zone d'activité, son emplacement est idéal.
Les Plages sont facilement accessibles
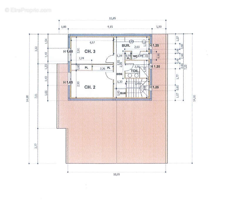
Un permis de construire a été déposé pour la réalisation d'une maison d'habitation d’environ 142m2 habitable en 3 faces sur 1 étage avec un espace de vie complet en rez de jardin.
Hors lotissement, les contraintes pour la construction y sont minimisées.
Parcelle en zone UCa - Le CES est de 0.30 suivant le secteur II-b
Retrouvez-nous dans nos bureaux pour discuter ensemble de votre projet…
Voir plus

Référence: AT1073
Honoraires d'agence de 4% à la charge de l'acquéreur
Barème des honoraires

Prêt immobilier

Vous souhaitez connaître votre capacité d’emprunt et trouver le meilleur crédit immobilier ?
Réaliser une simulation gratuite

Terrain à ARGELES-SUR-MER
Terrain à ARGELES-SUR-MER
Terrain à ARGELES-SUR-MER
Terrain à ARGELES-SUR-MER
Terrain à ARGELES-SUR-MER
Terrain à ARGELES-SUR-MER
Terrain à ARGELES-SUR-MER
Terrain à ARGELES-SUR-MER
Terrain à ARGELES-SUR-MER
Terrain à ARGELES-SUR-MER
Terrain à ARGELES-SUR-MER
Ce site est protégé par reCAPTCHA la Politique de confidentialité et les Conditions d’utilisation de Google s’appliquent.
Obtenir un prêt immobilier au meilleur taux ?

En poursuivant votre navigation sans modifier vos paramètres, vous acceptez l'utilisation de cookies susceptibles de réaliser des statistiques de visite. Cliquez ici pour plus d'informations