Bénéficiez des services de nos partenaires locaux soigneusement sélectionnés
pour vous accompagner dans votre parcours d'achat immobilier

Appartement t4 91m2 place bertone croix-rousse

— Lyon-4e 69004 —
650 000 €
91 m²
4 pièces

Nos partenaires locaux
EXCLUSIVITÉ ! Croix-Rousse Immobilier, votre référence sur le marché depuis 40 ans, vous dévoile un véritable bijou niché au calme rue de Nuits, à proximité de la Place Bertone au coeur du plateau de la Croix-Rousse.
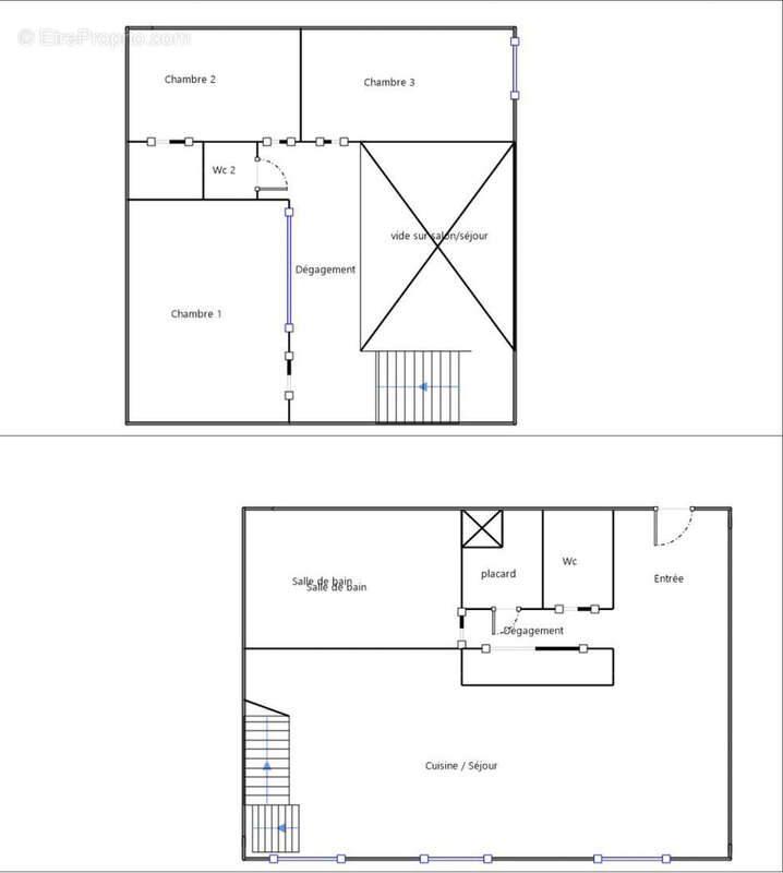
D'une beauté rare, ce duplex T4 unique de 91 m2 utiles (dont 84 m2 Carrez), aux prestations d'exception dégage un charme fou alliant parfaitement l'authenticité de l'ancien et la subtilité du contemporain.
Il propose : une entrée desservant une belle pièce à vivre lumineuse articulée autour d'un îlot central haut de gamme, idéal pour partager des moments chaleureux en famille ou entre amis, la cuisine entièrement aménagée et équipée conjugue élégance et praticité, un dégagement avec rangements, salle de bains/salle d'eau, buanderie et toilettes séparées.
À l'étage (hauteur supérieure d'1,80m), 3 chambres (avec rangements) ainsi qu'un second WC.
Le bien se complète d'une grande cave de 10 m2, saine, dallée et électrifiée, parfaite pour stockage, atelier ou espace vélo.
Les informations sur les risques auxquels ce bien est exposé sont disponibles sur le site Géorisques : www.georisques.gouv.fr. Contact Bruno DELHAYE [Coordonnées masquées] ou par mail [Coordonnées masquées]
Voir plus

Référence: 2808
Bien en copropriété. Nombre de lots : 8.
Honoraires à la charge du vendeur.
Barème des honoraires
DPE
A
B
C
D
E
F
G
GES
A
B
C
D
E
F
G

Prêt immobilier

Vous souhaitez connaître votre capacité d’emprunt et trouver le meilleur crédit immobilier ?
Réaliser une simulation gratuite

Appartement à LYON-4E
Appartement à LYON-4E
Appartement à LYON-4E
Appartement à LYON-4E
Appartement à LYON-4E
Appartement à LYON-4E
Appartement à LYON-4E
Appartement à LYON-4E
Appartement à LYON-4E
Appartement à LYON-4E
Appartement à LYON-4E
Appartement à LYON-4E
Appartement à LYON-4E
Appartement à LYON-4E
Appartement à LYON-4E
Appartement à LYON-4E
Ce site est protégé par reCAPTCHA la Politique de confidentialité et les Conditions d’utilisation de Google s’appliquent.
Obtenir un prêt immobilier au meilleur taux ?

En poursuivant votre navigation sans modifier vos paramètres, vous acceptez l'utilisation de cookies susceptibles de réaliser des statistiques de visite. Cliquez ici pour plus d'informations