Bénéficiez des services de nos partenaires locaux soigneusement sélectionnés
pour vous accompagner dans votre parcours d'achat immobilier

Vosges du nord (67) murs + fonds restaurant avec chambres hotes + appt prives + f3

— Saverne 67700 —
496 000 €
663 m² / 882 m²
parkingbalcon/terrassejardin

Nos partenaires locaux
Vous cherchez un projet captivant et plein de potentiels ? PBH IMMO vous propose en exclusivité :
Situé au cœur d’une région touristique prisée, ce restaurant - chambres d’hôte offre une excellente opportunité pour ceux qui souhaitent se lancer dans la restauration et l’hébergement saisonnier. Avec sa proximité aux sentiers de randonnées (GR53 par exemple ou Club Vosgien), les attractions touristiques nombreuses (châteaux, route des vins, sites verriers, ligne Maginot etc.), ses 2 stations thermales à 30 minutes ou Strasbourg à 1h., l’établissement attire déjà une nombreuse clientèle variée (les habitués, les touristes même étrangers, les promeneurs, les clubs et associations).
Le fait que l’établissement ait une histoire familiale depuis 1909 et soit apprécié pour sa cuisine généreuse sont des atouts indéniables marquant la constance de la qualité. Les repas à thème régulièrement organisés sont le moyen par excellence de fidéliser la clientèle et la belle terrasse de 130 m² est une invitation à faire une pause aux nombreux visiteurs lors des beaux jours. De plus, la possibilité de redécorer et regrouper des chambres pour les transformer en appartements de vacances pourrait réellement augmenter la rentabilité.
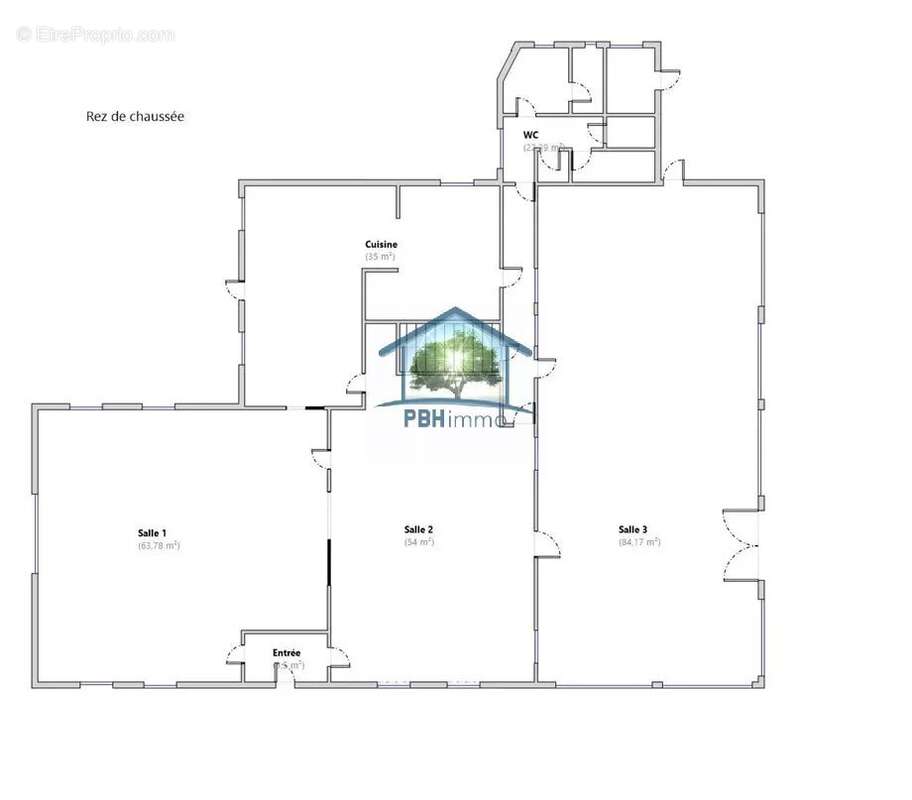
Pour un espace généreux de 661 m² habitables, vous trouverez : un spacieux restaurant de 3 salles à l’ambiance chaleureuse, un appartement F3 récemment réalisé, 13 chambres salle d’eau WC simples mais confortables.
Si vous envisagez de reprendre ce bel établissement, vous aurez une excellente opportunité de l’exploiter tel qu’il est ou de le moderniser tout en préservant son charme.
N’hésitez pas à me contacter pour poser d’autres questions ou si vous avez besoin de plus d’information ou de conseils.
Prix FAI : 496.000 Euros (dont 16.000 € de frais agence à charge de l'acheteur soit 480.000€ net vendeur). Pour toute information, ou planifier une visite merci de contacter Fabrice STIEVENART (E.I.) agent commercial local pour le réseau national PBH IMMO au [Coordonnées masquées] (WhatsApp idem) E-mail [Coordonnées masquées].

Les informations sur les risques auxquels ce bien est exposé sont disponibles sur le site Géorisques : www.georisques.gouv.fr
Voir plus

Référence: 7232
DPE
A
B
C
D
E
F
G
GES
A
B
C
D
E
F
G

Prêt immobilier

Vous souhaitez connaître votre capacité d’emprunt et trouver le meilleur crédit immobilier ?
Réaliser une simulation gratuite

Commerce à SAVERNE
Commerce à SAVERNE
Commerce à SAVERNE
Commerce à SAVERNE
Commerce à SAVERNE
Commerce à SAVERNE
Commerce à SAVERNE
Commerce à SAVERNE
Commerce à SAVERNE
Commerce à SAVERNE
Commerce à SAVERNE
Commerce à SAVERNE
Commerce à SAVERNE
Commerce à SAVERNE
Commerce à SAVERNE
Commerce à SAVERNE
Commerce à SAVERNE
Commerce à SAVERNE
Ce site est protégé par reCAPTCHA la Politique de confidentialité et les Conditions d’utilisation de Google s’appliquent.
Obtenir un prêt immobilier au meilleur taux ?

En poursuivant votre navigation sans modifier vos paramètres, vous acceptez l'utilisation de cookies susceptibles de réaliser des statistiques de visite. Cliquez ici pour plus d'informations