Offre acceptee domaine les hauts de saint paul - villa provençale, 5 chambres, piscine.

— Saint-Paul 06570 —
1 590 000 €
233 m² / 2 500 m²
7 pièces
parkingjardinpiscine

OFFRE ACCEPTEE Nous sommes très heureux de vous proposer cette belle villa provençale située dans le prestigieux domaine fermé Les Hauts de Saint Paul. Une adresse extrêmement recherchée où il fait bon vivre, avec ses jardins parfaitement entretenus. Ce domaine est le nec plus ultra en matière de qualité de vie sur la Côte d'Azur.

Cette belle villa est parfaitement entretenue par son propriétaire actuel, de nombreuses modifications de qualité ont été faites. Jardins et piscine orientés sud-ouest, grand parking et garage, dans un havre de paix, de tranquillité et de calme.

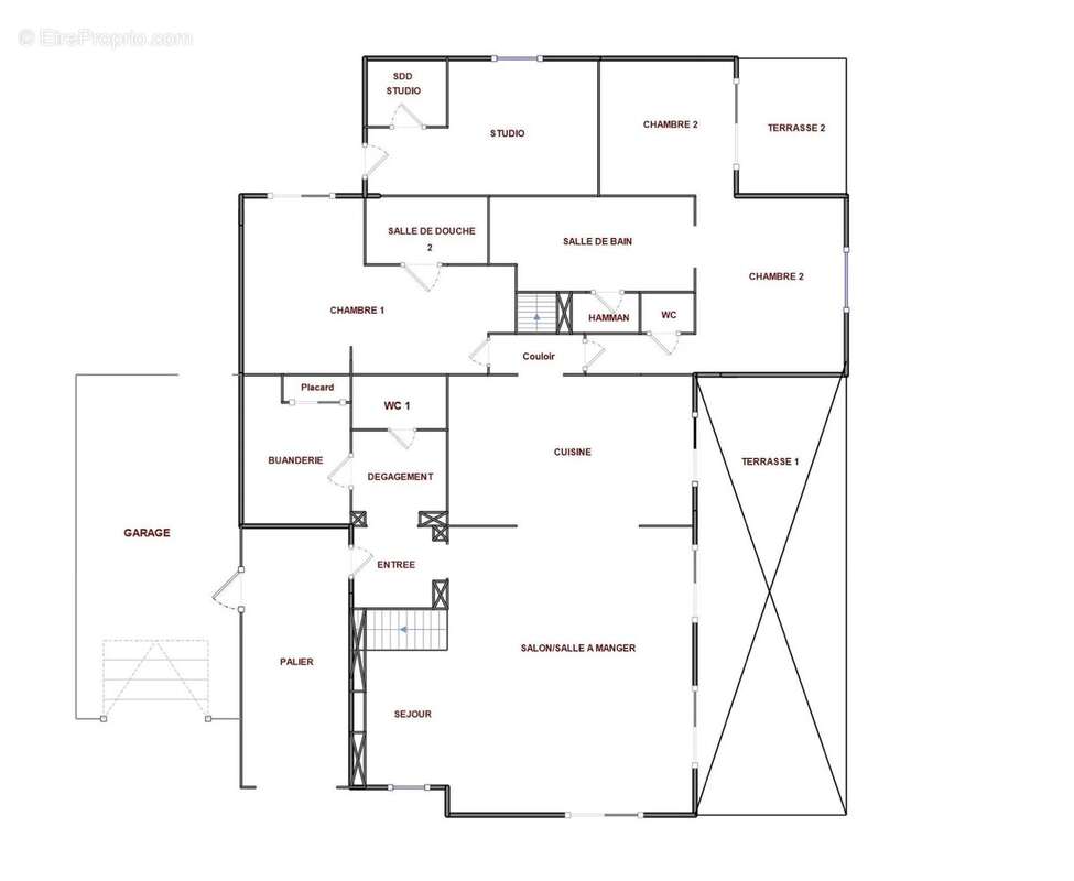
La villa est sur deux niveaux, avec un hall d'entrée, un double séjour ouvert avec coin salon, coin repas et un deuxième coin salon autour de la cheminée. Le salon s'ouvre sur la terrasse et le jardin par 3 grandes portes coulissantes, un plafond à double hauteur et une mezzanine bureau spacieux mais intime. Il y a de grandes poutres en bois de qualité.

Il y a une grande cuisine moderne, entièrement équipée qui est ouverte sur le salon, la terrasse et la cuisine d'été.

Au rez-de-chaussée, la chambre principale avec grand dressing, salle de bains avec baignoire et douche/hammam, ouvrant également sur son patio privé avec un coin salon. Deuxième chambre avec salle de douche ouverte sur patio. Appartement/studio/espace de rangement indépendant avec salle de douche et kitchenette.

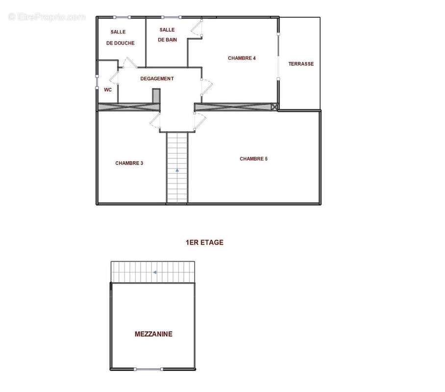
A l'étage, 3 chambres supplémentaires dont une avec salle de bain privative et terrasse avec vue sur le jardin et la piscine, les 2 autres partagent une salle de douche et des toilettes séparées. Il y a également une buanderie, toilettes/douche invités. Parquet en bois clair de haute qualité dans toute la maison.

Le terrain offre une belle piscine carrelée (refaite en 2024), un beau jardin plat au calme absolu ainsi qu'une fosse septique toute récente (2024).

La villa se trouve à seulement 20 minutes de l'aéroport de Nice et les galeries d'art et des restaurants de qualité sont proches.

********** Le village de Saint-Paul abrite le musée d'art moderne Fondation Maeght, c'est un beau village perché qui est connu mondialement pour l'Art qui s'y trouve et de nombreux artistes ont été inspirés comme Chagall, Miro, Giacometti, Braque, etc. Dans le village de Saint-Paul, on trouve des jardins odorants, des rues médiévales étroites et des points de vue à couper le souffle. Les galeries d'art et les ateliers d'artistes s'épanouissent dans ce village de renommée internationale.

Les informations sur les risques auxquels ce bien est exposé sont disponibles sur le site Géorisques : georisques.gouv.fr
Voir plus

Référence: ARM-977-VSPV2
Barème des honoraires
DPE
A
B
C
D
E
F
G
GES
A
B
C
D
E
F
G

Prêt immobilier

Vous souhaitez connaître votre capacité d’emprunt et trouver le meilleur crédit immobilier ?
Réaliser une simulation gratuite

Maison à SAINT-PAUL
Maison à SAINT-PAUL
Maison à SAINT-PAUL
Maison à SAINT-PAUL
Maison à SAINT-PAUL
Maison à SAINT-PAUL
Maison à SAINT-PAUL
Maison à SAINT-PAUL
Maison à SAINT-PAUL
Maison à SAINT-PAUL
Maison à SAINT-PAUL
Maison à SAINT-PAUL
Maison à SAINT-PAUL
Maison à SAINT-PAUL
Maison à SAINT-PAUL
Maison à SAINT-PAUL
Maison à SAINT-PAUL
Maison à SAINT-PAUL
Maison à SAINT-PAUL
Maison à SAINT-PAUL
Maison à SAINT-PAUL
Maison à SAINT-PAUL
Maison à SAINT-PAUL
Maison à SAINT-PAUL
Maison à SAINT-PAUL
Maison à SAINT-PAUL
Maison à SAINT-PAUL
Maison à SAINT-PAUL
Maison à SAINT-PAUL
Maison à SAINT-PAUL
Ce site est protégé par reCAPTCHA la Politique de confidentialité et les Conditions d’utilisation de Google s’appliquent.
Obtenir un prêt immobilier au meilleur taux ?

En poursuivant votre navigation sans modifier vos paramètres, vous acceptez l'utilisation de cookies susceptibles de réaliser des statistiques de visite. Cliquez ici pour plus d'informations