Bénéficiez des services de nos partenaires locaux soigneusement sélectionnés
pour vous accompagner dans votre parcours d'achat immobilier

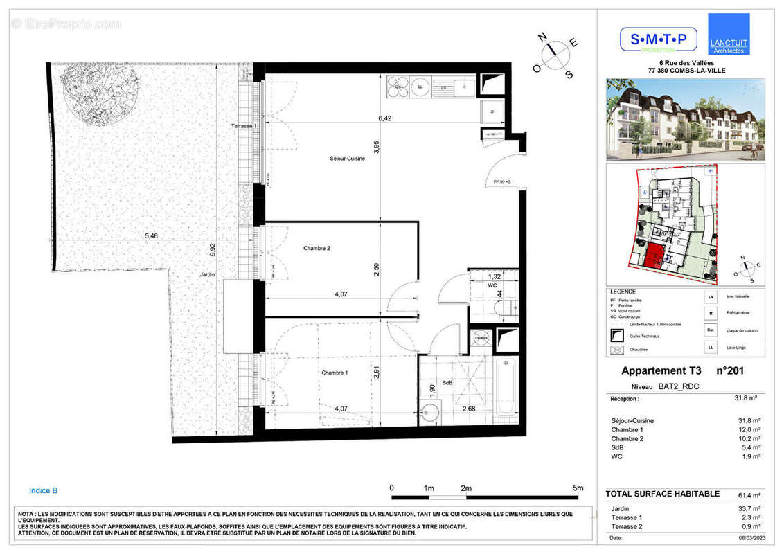
Vente : appartement de 3 pièces (61 m²) à combs la ville

— Combs-La-Ville 77380 —
264 000 €
61 m² / 36 m²
3 pièces
parkingbalcon/terrassejardinascenseur

Nos partenaires locaux
Cet appartement se trouve au sein d'une résidence de dernier standing, récente et sécurisée, offrant tout le confort moderne avec ascenseur, visiophone, interphone et digicode. D'une surface de 61,4 m², il se compose d'une entrée donnant sur un séjour-cuisine, de deux chambres de 10 et12 m², d'une salle de bains et de toilettes séparées. Le chauffage est individuel, alimenté au gaz. A l'extérieur, vous bénéficierez d'un jardin privatif de 33.7 m², parfait pour vos moments de détente. Les fenêtres en PVC double vitrage, les volets roulants et la fibre optique garantissent confort et modernité. Ce bien est vendu avec une place de parking en sous-sol. Vous apprécierez la proximité immédiate des commerces, des écoles et des transports en commun (arrêt de bus à 2 minutes). Cinéma, conservatoire, piscine, tennis, restaurants et marché sont également accessibles à pied. Les frais d'agence sont à la charge du vendeur. Ce bien fait partie d'une copropriété de 86 lots, sans procédure en cours. Pour plus d'informations ou organiser une visite, contactez votre agence L'Adresse - Benoteau Immobilier. Informations sur les risques disponibles sur : www.georisques.gouv.fr Copropriété de 86 lots - dont 29 lots habitation.(Pas de procédure en cours).
Voir plus

Référence: 8901
Bien en copropriété. Nombre de lots : 86.
Honoraires à la charge du vendeur.
Barème des honoraires
DPE
A
B
C
D
E
F
G
GES
A
B
C
D
E
F
G

Prêt immobilier

Vous souhaitez connaître votre capacité d’emprunt et trouver le meilleur crédit immobilier ?
Réaliser une simulation gratuite

Appartement à COMBS-LA-VILLE
Appartement à COMBS-LA-VILLE
Appartement à COMBS-LA-VILLE
Appartement à COMBS-LA-VILLE
Appartement à COMBS-LA-VILLE
Appartement à COMBS-LA-VILLE
Appartement à COMBS-LA-VILLE
Appartement à COMBS-LA-VILLE
Ce site est protégé par reCAPTCHA la Politique de confidentialité et les Conditions d’utilisation de Google s’appliquent.
Obtenir un prêt immobilier au meilleur taux ?

En poursuivant votre navigation sans modifier vos paramètres, vous acceptez l'utilisation de cookies susceptibles de réaliser des statistiques de visite. Cliquez ici pour plus d'informations