Arzal 56190 maison 4 pièces 82 m2 , garage

— Arzal 56190 —
249 000 €
82 m²
4 pièces
jardin

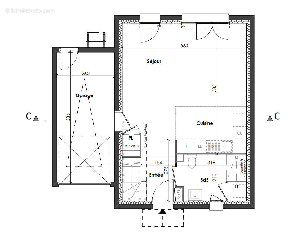
Ghislaine Fleury vous propose, dans une petite copropriété de 22 lots, cette villa 4 pièces de 82 m2 lumineuse composée d'une pièce de vie exposée ouest ouverte sur cuisine, une salle avec wc. A l'étage 3 chambres, une salle d'eau et wc.
Moderne et intimiste, cette maison bénéficie d'un garage attenant de 15m2 et un jardin privatif de 269 m2.

Située à 5 minutes à pied de la place de l'Église, la résidence en copropriété bénéficie d'une place privilégiée au coeur d'Arzal. Choisissez le calme tout en gardant les commodités de la commune à portée de main. Vous serez entouré de verdure pour cette résidence qui prend des airs de domaine, discrètement niché. Cette maison est entièrement conçue pour la vie de famille.
A 10mn de Vannes via la voie rapide Nantes / Brest, vous apprécierez les commerces de proximité, infrastructures scolaires, complexes sportifs, pôle médical... et l'accès au littoral. Une adresse idéale pour habiter ou investir, en profitant du cadre prisé et du confort de vivre à seulement quelques kms de la mer.
Cette maison est présentée au prix de 249 000.00 euros HAI honoraires charge du vendeur
Norme RE2020 justifie une haute qualité écologique et thermique, très basse consommation. DPE étiquette A - Valeur consommation énergie primaire : 51 kWh/m2 par an.
Montant estimé des dépenses annuelles d'énergie pour un usage standard entre 700 euros et 1200 euros indexées aux années 2021, 2022 et 2023.
Pour visiter et vous accompagner dans votre projet, contactez Ghislaine FLEURY, au [Coordonnées masquées] ou, par courriel à [Coordonnées masquées].
Selon l'article L.561.5 du Code Monétaire et Financier, pour l'organisation de la visite, la présentation d'une pièce d'identité vous sera demandée.
Cette présente annonce a été rédigée sous la responsabilité éditoriale de Ghislaine FLEURY agissant sous le statut d'agent commercial immatriculé au RSAC VANNES 497 496 760 auprès de SAS PROPRIETES PRIVEES, au capital de 44 920 euros, ZAC LE CHÊNE FERRÉ - 44 ALLÉE DES CINQ CONTINENTS 44120 VERTOU; SIRET 487 624 777 00040, RCS Nantes. Carte Professionnelle Transactions sur immeubles et fonds de commerce (T) et Gestion immobilière (G) n°CPI 44[Coordonnées masquées]10 388 délivrée par la CCI Nantes - Saint Nazaire. Compte séquestre n°3[Coordonnées masquées] BPA SAINT-SEBASTIEN-SUR-LOIRE (44230). Garantie GALIAN-SMABTP - 89 rue de la Boétie, 75008 Paris - n°28137 J pour 2 000 000 euros pour T et 120 000 euros pour G. Assurance responsabilité civile professionnelle par GALIAN-SMABTP n° de police 28137.J

Mandat réf : 402832 - Le professionnel garantit et sécurise votre projet immobilier.
Copropriété de 22 lots - dont 10 lots habitation. ().

Charges annuelles : 200 euros.
Ghislaine FLEURY (EI) Agent Commercial - Numéro RSAC : VANNES 497 496 760 - .
Les informations sur les risques auxquels ce bien est exposé sont disponibles sur le site Géorisques : www. georisques. gouv. fr
Voir plus

Référence: 402832GFL
Bien en copropriété. Nombre de lots : 22. Charges de copropriété : 16 €.
Honoraires à la charge du vendeur.
DPE
A
B
C
D
E
F
G
GES
A
B
C
D
E
F
G

Prêt immobilier

Vous souhaitez connaître votre capacité d’emprunt et trouver le meilleur crédit immobilier ?
Réaliser une simulation gratuite

Maison à ARZAL
Maison à ARZAL
Maison à ARZAL
Maison à ARZAL
Maison à ARZAL
Ce site est protégé par reCAPTCHA la Politique de confidentialité et les Conditions d’utilisation de Google s’appliquent.
Obtenir un prêt immobilier au meilleur taux ?

En poursuivant votre navigation sans modifier vos paramètres, vous acceptez l'utilisation de cookies susceptibles de réaliser des statistiques de visite. Cliquez ici pour plus d'informations