Bénéficiez des services de nos partenaires locaux soigneusement sélectionnés
pour vous accompagner dans votre parcours d'achat immobilier

Maison de maître du xixe siècle

— Ales 30100 —
569 000 €
404 m² / 9 300 m²
14 pièces
piscine

Nos partenaires locaux
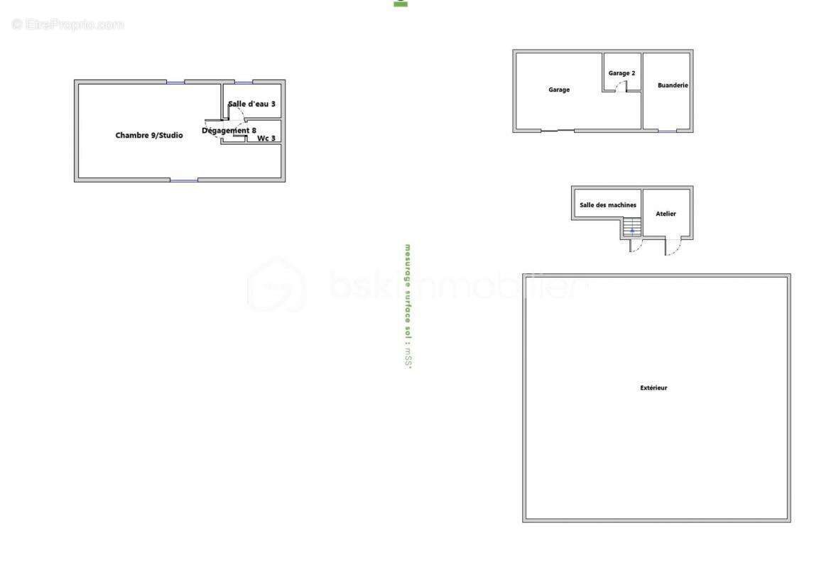
Maison de maître du XIXe siècle, bâtie sur les fondations d'une ancienne chapelle médiévale, offrant environ 400 m² habitables sur trois niveaux.
Située dans un environnement verdoyant, à proximité immédiate du centre-ville, cette propriété combine caractère historique et potentiel de développement.
La maison dispose de beaux volumes avec une hauteur sous plafond appréciable.

Elle comprend un vaste hall d'entrée, un salon avec cheminée, une salle à manger, une cuisine équipée, un bureau et plusieurs chambres lumineuses.
Carreaux de ciment peints et plafonds à voûtains participent au charme de l'ensemble.

Le terrain d'environ 9 300 m², arboré d'oliviers, de vergers et d'arbres anciens, comprend également une piscine semi-enterrée, des terrasses, un mazet indépendant et un garage. L'ensemble offre un cadre paisible, à seulement 10 minutes à pied du centre-ville.

Des équipements récents assurent un bon niveau de confort : Chauffage par pompe à chaleur, double vitrage, système d'alarme, adoucisseur d'eau.

La configuration actuelle permet une grande variété d'usages :
- Habitation principale,
- Activité libérale,
- Accueil touristique (5 chambres d'hôtes + 1 studio déjà aménagés).

La disposition des lieux et la surface disponible offrent également une opportunité intéressante pour la création d'une résidence seniors.
Les volumes intérieurs, la présence de plusieurs accès, les aménagements extérieurs et la proximité des services en font un site adapté à ce type de projet.

Le terrain, d'un seul tenant mais pouvant être divisé, ouvre également la voie à d'autres projets d'aménagement ou de développement, sous réserve des
autorisations nécessaires.

Un bien aux multiples possibilités, prêt à accueillir vos projets les plus ambitieux.

Cette annonce référence 283278 vous est présentée par votre agent commercial BSK Immobilier LAURENT FONTANE (EI) immatriculé au RSAC de NIMES (30000) sous le numéro 94786266000018.

Prix du bien : 569 000,00 €
Les honoraires d'agence sont à la charge du vendeur.

A propos des performances énergétiques :
Date de réalisation du diagnostic énergétique : 17/06/2022
Score DPE : 90 kWhEP/m²/an
Score GES : 3 kgepCO2/m²/an
Montant estimé des dépenses annuelles d'énergie pour un usage standard : entre 2190.00 € et 3020.00 € par an. Prix moyens des énergies indexés sur l'année 2021 (abonnements compris).

Les informations sur les risques auxquels ce bien est exposé sont disponibles sur le site Géorisques : www.georisques.gouv.fr
Voir plus

Référence: 283278
Honoraires à la charge du vendeur.
DPE
A
B
C
D
E
F
G
GES
A
B
C
D
E
F
G

Prêt immobilier

Vous souhaitez connaître votre capacité d’emprunt et trouver le meilleur crédit immobilier ?
Réaliser une simulation gratuite

Maison à ALES
Maison à ALES
Maison à ALES
Maison à ALES
Maison à ALES
Maison à ALES
Maison à ALES
Maison à ALES
Maison à ALES
Maison à ALES
Maison à ALES
Maison à ALES
Maison à ALES
Maison à ALES
Maison à ALES
Maison à ALES
Maison à ALES
Maison à ALES
Maison à ALES
Maison à ALES
Maison à ALES
Maison à ALES
Ce site est protégé par reCAPTCHA la Politique de confidentialité et les Conditions d’utilisation de Google s’appliquent.
Obtenir un prêt immobilier au meilleur taux ?

En poursuivant votre navigation sans modifier vos paramètres, vous acceptez l'utilisation de cookies susceptibles de réaliser des statistiques de visite. Cliquez ici pour plus d'informations