Bénéficiez des services de nos partenaires locaux soigneusement sélectionnés
pour vous accompagner dans votre parcours d'achat immobilier

Commerce 105m² à marseille-1e

— Marseille-1e 13001 —
160 500 €
105 m²

Nos partenaires locaux
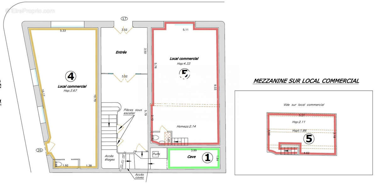
Réseau Brokers vous propose la vente des murs d'un lot de deux locaux commerciaux en plein centre ville de Marseille à proximité immédiate de la gare. A quelques pas de la Canebière.

1 local de 45m² de plein pied.
1 local de 45m² de plein pied avec une mezzanine de 15m².

Locataires en place depuis de nombreuses années.
Idéal investisseur.
Fort potentiel d'augmentation des loyers à terme.

Loyers mensuels de 885 € non soumis à TVA pour les deux locaux.
Provision de charges de 70 € pour les deux locaux.
Prix de vente des murs : 150 000 € net vendeur.
Honoraires de commercialisation : 7% HT à la charge de l'acquéreur.

Veuillez me contacter pour toute demande d'information ou visite.

Cordialement.

Nicolas SERRA
[Coordonnées masquées]
[Coordonnées masquées]

RESEAU BROKERS® est le premier cabinet immobilier d'entreprise structuré en réseau de mandataires. Nous maillons avec notre équipe de 70 Brokers une grande partie du territoire national pour accompagner nos entreprises clientes dans leurs recherches de commerces, bureaux, locaux d'activités, immeubles et fonciers.
www.reseau-brokers.com

Dans une copropriété de 8 lots. Aucune procédure n'est en cours. DPE en cours. Les informations sur les risques auxquels ce bien est exposé sont disponibles sur le site Géorisques : georisques.gouv.fr.

Votre conseiller AVINIM RESEAU BROKERS : Nicolas SERRA
Agent commercial (Entreprise individuelle)
RSAC 790825442
RCP 7953190/S17634685
Voir plus

Référence: VP43228-BROKERS
Bien en copropriété. Nombre de lots : 8.
Honoraires à la charge de l'acquéreur.
Barème des honoraires

Prêt immobilier

Vous souhaitez connaître votre capacité d’emprunt et trouver le meilleur crédit immobilier ?
Réaliser une simulation gratuite

Commerce à MARSEILLE-1E
Commerce à MARSEILLE-1E
Commerce à MARSEILLE-1E
Ce site est protégé par reCAPTCHA la Politique de confidentialité et les Conditions d’utilisation de Google s’appliquent.
Obtenir un prêt immobilier au meilleur taux ?

En poursuivant votre navigation sans modifier vos paramètres, vous acceptez l'utilisation de cookies susceptibles de réaliser des statistiques de visite. Cliquez ici pour plus d'informations