Villecroze - villa à vendre de 166 m² sur

— Villecroze 83690 —
720 000 €
166 m² / 27 850 m²
4 pièces
parkingbalcon/terrassejardinpiscine

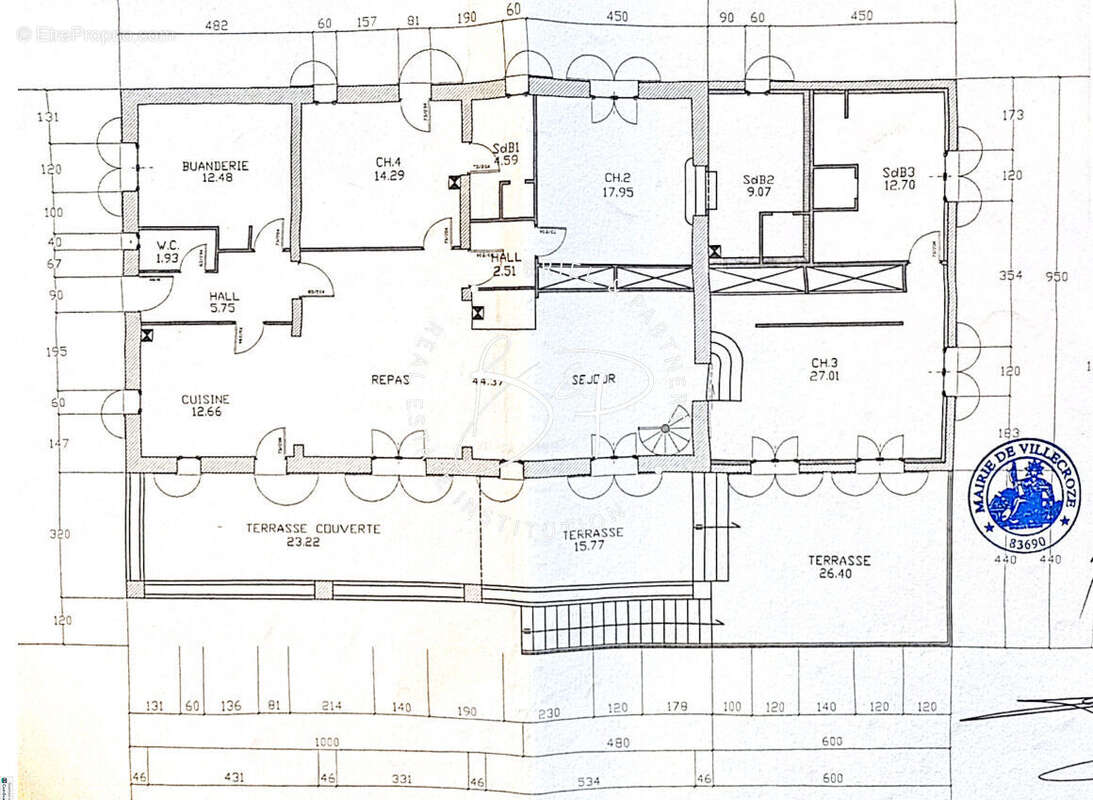
Villa de charme avec oliveraie et piscine ? Villecroze, Provence Verte A seulement 2 km du village de Villecroze et 3 km de Salernes, dans un environnement calme et naturel, cette villa pleine de caractère vous séduira par son cadre idyllique. Implantée au coeur d'un terrain de près de 3 hectares, complanté de 230 oliviers et du bois. La propriété offre une vue dégagée sur la campagne environnante. La villa, chaleureuse et bien pensée, au vrai parquet bois venant d'une ancienne salle de danse, développe une surface généreuse répartie en : 3 chambres, dont une superbe suite de 27 m², 2 salles de bains et un vaste espace de vie de de 59 m² (repas + séjour) qui pourrait facilement être modulé pour accueillir une 4 ème chambre, comme sur le plan visible dans les photos. La cuisine de 12,66 m² est un peu obsolète et nécessiterait d'être remplacée. Vous trouverez en plus une grande buanderie et de nombreux rangements. A l'extérieur, plusieurs terrasses, dont une terrasse couverte de 23 m², idéale pour profiter des longues journées d'été ainsi que la piscine qui s'intègre parfaitement à l'environnement naturel. Le terrain et les vues sur la campagne font de ce lieu un véritable havre de paix provençal. Elle possède également un "cabanon d'une trentaine de mètres carrés. Une propriété polyvalente pour une résidence principale autant qu'une résidence secondaire.
Voir plus

Référence: 4765
Honoraires à la charge du vendeur.
Barème des honoraires
DPE
A
B
C
D
E
F
G
GES
A
B
C
D
E
F
G

Prêt immobilier

Vous souhaitez connaître votre capacité d’emprunt et trouver le meilleur crédit immobilier ?
Réaliser une simulation gratuite

Maison à VILLECROZE
Maison à VILLECROZE
Maison à VILLECROZE
Maison à VILLECROZE
Maison à VILLECROZE
Maison à VILLECROZE
Maison à VILLECROZE
Maison à VILLECROZE
Maison à VILLECROZE
Maison à VILLECROZE
Maison à VILLECROZE
Maison à VILLECROZE
Maison à VILLECROZE
Maison à VILLECROZE
Maison à VILLECROZE
Maison à VILLECROZE
Maison à VILLECROZE
Ce site est protégé par reCAPTCHA la Politique de confidentialité et les Conditions d’utilisation de Google s’appliquent.
Obtenir un prêt immobilier au meilleur taux ?

En poursuivant votre navigation sans modifier vos paramètres, vous acceptez l'utilisation de cookies susceptibles de réaliser des statistiques de visite. Cliquez ici pour plus d'informations