Maison 87m² à marly-la-ville

— Marly-La-Ville 95670 —
367 900 €
87 m² / 75 m²
4 pièces
balcon/terrassejardin

Iad France - Claudine Ferreira ([Coordonnées masquées]) vous propose : * DERNIERS LOTS DISPONIBLES ! *

Maison neuve de 2024 de 87 m² environ à Marly-la-Ville (95)
Cette maison vous offre un cadre de vie agréable et privilégié, aux portes de Paris.
Nichée dans le Val d'Oise, à moins de 30 km de la capitale, Marly-la-Ville bénéficie d'un emplacement stratégique.
Vous profitez ici d'un environnement verdoyant, tout en restant proche de la zone aéroportuaire de Roissy, de la Francilienne et de l'autoroute A1 : un cadre à la fois paisible et dynamique.
Une maison moderne et fonctionnelle
Conforme à la norme RT2012, cette maison est conçue pour vous offrir tout le confort avec une pièce de vie lumineuse exposée plein sud.

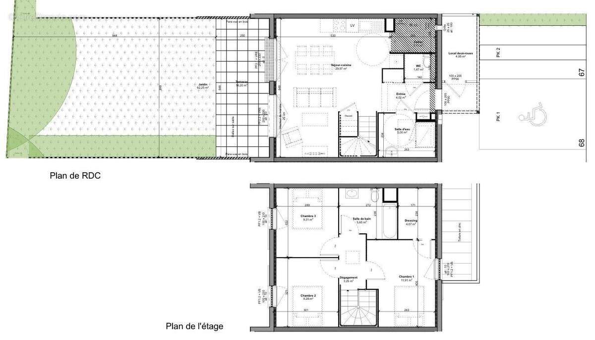
Au rez-de-chaussée :
Elle se compose d'une Entrée avec un placard sous l'escalier, une cuisine, avec un cellier, ouverte sur la pièce à vivre, un WC séparé aux normes PMR, une salle d'eau

À l'étage :
Trois chambres dont une comprenant un dressing.
Salle de bains avec WC, meuble vasque, miroir et sèche-serviette

Pour profiter des beaux jours, une terrasse ainsi qu'un jardin engazonné, le tout exposé plein sud

Chaudière gaz individuelle avec thermostat d'ambiance
2 places de stationnement privatives
Accès sécurisé par portail électrique

Écoles, collège et centre-ville accessibles en 5 minutes.

Idéal pour un primo-accédant

Frais de notaire réduit !

Honoraires d'agence à la charge du vendeur. Bien non soumis au DPE. Les informations sur les risques auxquels ce bien est exposé sont disponibles sur le site Géorisques : www.georisques.gouv.fr. La présente annonce immobilière a été rédigée sous la responsabilité éditoriale de Mlle Claudine Ferreira EI (ID 84781), mandataire indépendant en immobilier (sans détention de fonds), agent commercial de la SAS I@D France immatriculé au RSAC de COMPIEGNE sous le numéro 933905283, titulaire de la carte de démarchage immobilier pour le compte de la société I@D France SAS.
Retrouvez tous nos biens sur notre site internet. www.iadfrance.fr.
Informations LOI ALUR :
Honoraires charge vendeur. (gedeon_6727_31091598)
Voir plus

Référence: 1740764-1
Honoraires à la charge du vendeur.

Prêt immobilier

Vous souhaitez connaître votre capacité d’emprunt et trouver le meilleur crédit immobilier ?
Réaliser une simulation gratuite

Photo 1 - Maison à MARLY-LA-VILLE
Photo 1
Photo 2 - Maison à MARLY-LA-VILLE
Photo 2
Photo 3 - Maison à MARLY-LA-VILLE
Photo 3
Photo 4 - Maison à MARLY-LA-VILLE
Photo 4
Photo 5 - Maison à MARLY-LA-VILLE
Photo 5
Photo 6 - Maison à MARLY-LA-VILLE
Photo 6
Photo 7 - Maison à MARLY-LA-VILLE
Photo 7
Ce site est protégé par reCAPTCHA la Politique de confidentialité et les Conditions d’utilisation de Google s’appliquent.
Obtenir un prêt immobilier au meilleur taux ?

En poursuivant votre navigation sans modifier vos paramètres, vous acceptez l'utilisation de cookies susceptibles de réaliser des statistiques de visite. Cliquez ici pour plus d'informations