Immeuble 4 pièce(s) 220 m2

— Cruas 07350 —
199 000 €
220 m²
4 pièces
parking

Cruas 07350 - local avec terrain constructible - Prix de vente : 199 000 euros honoraires charge vendeur

Situé dans secteur recherché et dynamique à seulement 25 minutes de Montélimar, Valence et Privas, ce bien bénéficie d'un emplacement stratégique parfait pour vos projets professionnels ou résidentiels. Avec un accès facile à l'autoroute et un emplacement sur un axe passant, ce local garantit visibilité et connectivité.

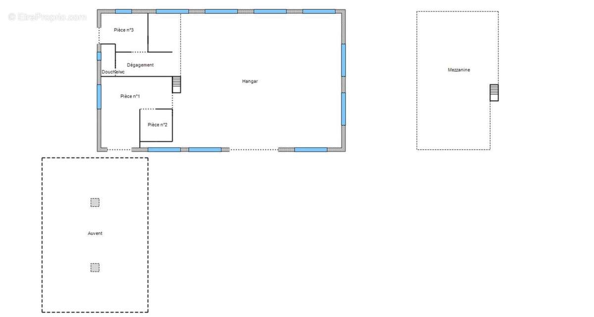
La parcelle de 3250 m², dont 2200 m² constructibles, offre de nombreuses possibilités d'aménagement. Le bâtiment existant de 220 m² est composé de trois pièces, un dégagement, une douche/WC, un hangar et une mezzanine.

Potentiel : Possibilité d'extension en R+2 pour maximiser l'espace et répondre aux ambitions de votre projet.

Secteur attractif : Profitez des avantages d'un environnement en pleine expansion économique, idéal pour développer votre activité ou concevoir votre habitation rêvée.

Travaux à prévoir : Selon votre vision, des aménagements peuvent être réalisés pour exploiter pleinement le potentiel du lieu.

Ne laissez pas passer cette opportunité ! Contactez moi pour en savoir plus ou organiser une visite.
DPE non soumis GES non soumis
Montant estimé des dépenses annuelles d'énergie pour un usage standard entre ... et ... euros indexées aux années 2021, 2022 et 2023 (ou 2021 uniquement) (si logement F ou G 'Logement à consommation énergétique excessive : classe F ou G')
Pour visiter et vous accompagner dans votre projet, contactez Yohan MANZANERO, au [Coordonnées masquées] ou, par courriel à [Coordonnées masquées].
Selon l'article L.561.5 du Code Monétaire et Financier, pour l'organisation de la visite, la présentation d'une pièce d'identité vous sera demandée.
Cette présente annonce a été rédigée sous la responsabilité éditoriale de Yohan MANZANERO agissant sous le statut d'agent commercial immatriculé au RSAC Aubenas 504 581 414 auprès de SAS PROPRIETES PRIVEES, au capital de 44 920 euros, ZAC LE CHÊNE FERRÉ - 44 ALLÉE DES CINQ CONTINENTS 44120 VERTOU; SIRET 487 624 777 00040, RCS Nantes. Carte Professionnelle Transactions sur immeubles et fonds de commerce (T) et Gestion immobilière (G) n°CPI 44[Coordonnées masquées]10 388 délivrée par la CCI Nantes - Saint Nazaire. Compte séquestre n°3[Coordonnées masquées] BPA SAINT-SEBASTIEN-SUR-LOIRE (44230). Garantie GALIAN-SMABTP - 89 rue de la Boétie, 75008 Paris - n°28137 J pour 2 000 000 euros pour T et 120 000 euros pour G. Assurance responsabilité civile professionnelle par GALIAN-SMABTP n° de police 28137.J

Mandat réf : 393468 - Le professionnel garantit et sécurise votre projet immobilier.

Yohan MANZANERO (EI) Agent Commercial - Numéro RSAC : Aubenas 504 581 414 - .
Voir plus

Référence: 393468MZO
Honoraires à la charge du vendeur.

Prêt immobilier

Vous souhaitez connaître votre capacité d’emprunt et trouver le meilleur crédit immobilier ?
Réaliser une simulation gratuite

Appartement à CRUAS
Appartement à CRUAS
Appartement à CRUAS
Appartement à CRUAS
Appartement à CRUAS
Appartement à CRUAS
Appartement à CRUAS
Appartement à CRUAS
Appartement à CRUAS
Appartement à CRUAS
Appartement à CRUAS
Appartement à CRUAS
Ce site est protégé par reCAPTCHA la Politique de confidentialité et les Conditions d’utilisation de Google s’appliquent.
Obtenir un prêt immobilier au meilleur taux ?

En poursuivant votre navigation sans modifier vos paramètres, vous acceptez l'utilisation de cookies susceptibles de réaliser des statistiques de visite. Cliquez ici pour plus d'informations