Pas de parking à Avesnelles pour le moment. Découvrez dès maintenant les parkings dans le département Nord.
Bénéficiez des services de nos partenaires locaux soigneusement sélectionnés
pour vous accompagner dans votre parcours d'achat immobilier

Voir tous les partenaires locaux

Appartement 55m² à bordeaux

— Bordeaux 33000 —
280 000 €
55 m²
3 pièces
parkingbalcon/terrasse

Nos partenaires locaux
Sous compromis : UN LIEU DE VIE PROCHE DE TOUTES LES COMMODITÉS

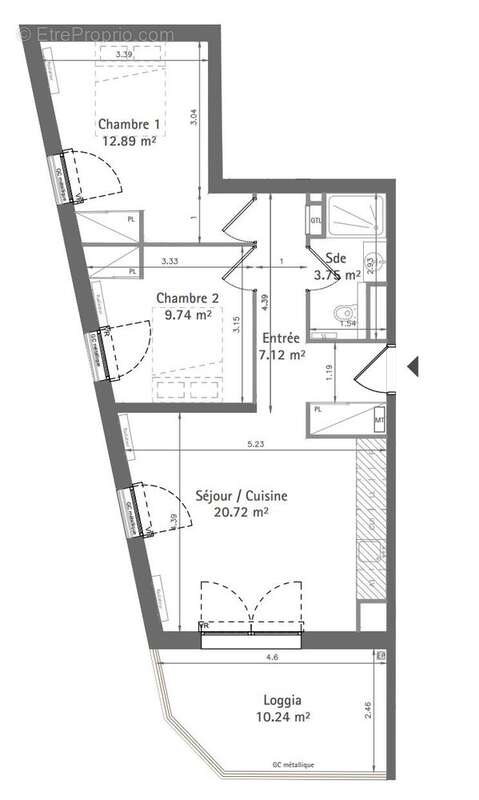
Entre l'ambiance bohème des Chartrons et l'énergie créative des Bassins à Flot, ce bel appartement T3 de 55 m² est une invitation à profiter pleinement de la vie bordelaise.

Dès l'entrée, on découvre un intérieur bien pensé, où deux chambres cosy côtoient une salle d'eau moderne avec WC. La pièce de vie, baignée de lumière, s'ouvre sur une terrasse idéale pour vos petits-déjeuners au soleil, vos soirées d'été ou simplement pour savourer un moment de calme en plein coeur de la ville.

Le tout est complété par un parking sécurisé en rez-de-chaussée – un vrai luxe dans ce quartier en pleine effervescence.

Situé dans une résidence neuve répondant aux normes RE2020, cet appartement bénéficie des garanties décennale et biennale, pour un quotidien alliant confort, durabilité et sérénité.

Un lieu de vie inspirant, entre modernité et authenticité, parfait pour les amoureux de Bordeaux en quête d'un cocon urbain.

Un parking sécurisé complète ce bien (20 000 € en sus obligatoire).

UN LIEU DE VIE PROCHE DE TOUTES LES COMMODITÉS



Honoraires à la charge du vendeur. Dans une copropriété de 37 lots. Aucune procédure n'est en cours. Non soumis au DPE. Les informations sur les risques auxquels ce bien est exposé sont disponibles sur le site Géorisques : georisques.gouv.fr.

Votre conseiller RH Patrimoine : Marc VEYRET
Agent commercial (Entreprise individuelle)
Voir plus

Référence: VA2986-RHPATRI
Bien en copropriété. Nombre de lots : 37.
Honoraires à la charge du vendeur.
Barème des honoraires

Prêt immobilier

Vous souhaitez connaître votre capacité d’emprunt et trouver le meilleur crédit immobilier ?
Réaliser une simulation gratuite

Appartement à BORDEAUX
Appartement à BORDEAUX
Appartement à BORDEAUX
Ce site est protégé par reCAPTCHA la Politique de confidentialité et les Conditions d’utilisation de Google s’appliquent.
Obtenir un prêt immobilier au meilleur taux ?

En poursuivant votre navigation sans modifier vos paramètres, vous acceptez l'utilisation de cookies susceptibles de réaliser des statistiques de visite. Cliquez ici pour plus d'informations