Bénéficiez des services de nos partenaires locaux soigneusement sélectionnés
pour vous accompagner dans votre parcours d'achat immobilier

Courbevoie - cœur de bécon - maison/loft de 124m2 donnant sur une terrasse arborée de plus de 100m2

— Courbevoie 92400 —
1 290 000 €
115 m²
5 pièces
parkingbalcon/terrasse

Nos partenaires locaux
Courbevoie Cœur de Bécon.
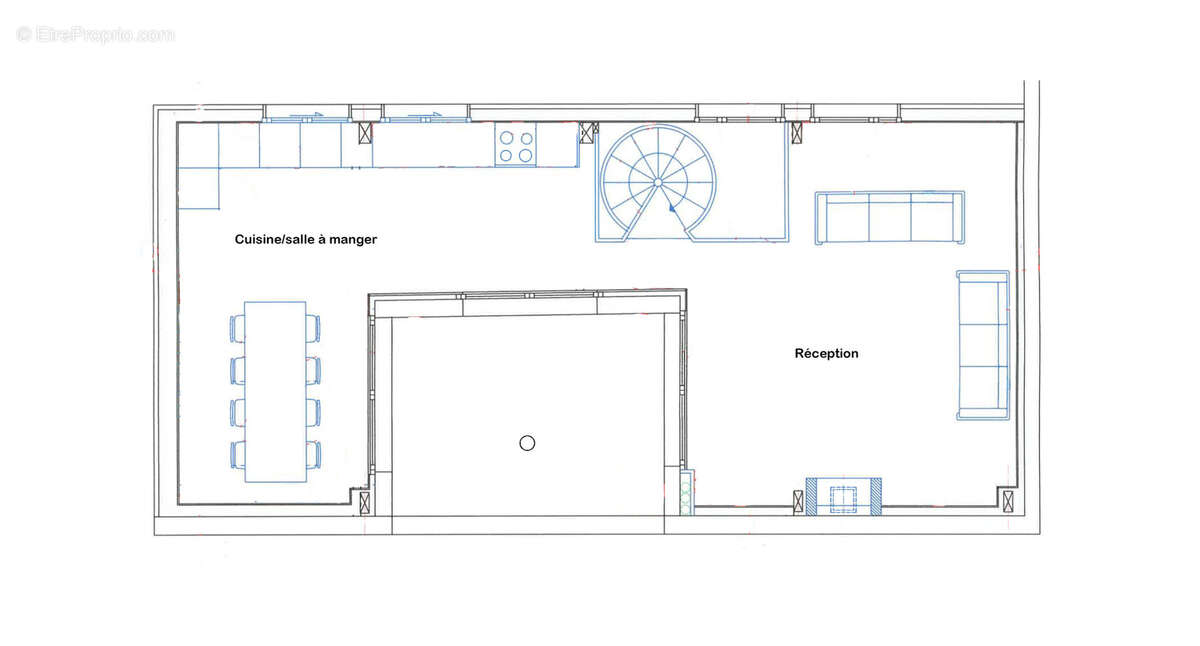
Au calme absolu d’une petite copropriété, une exceptionnelle maison/loft ensoleillée de 124m2 (110,15m2 Carrez) donnant sur plusieurs extérieurs privatifs dont une terrasse arborée de plus de 100m2.
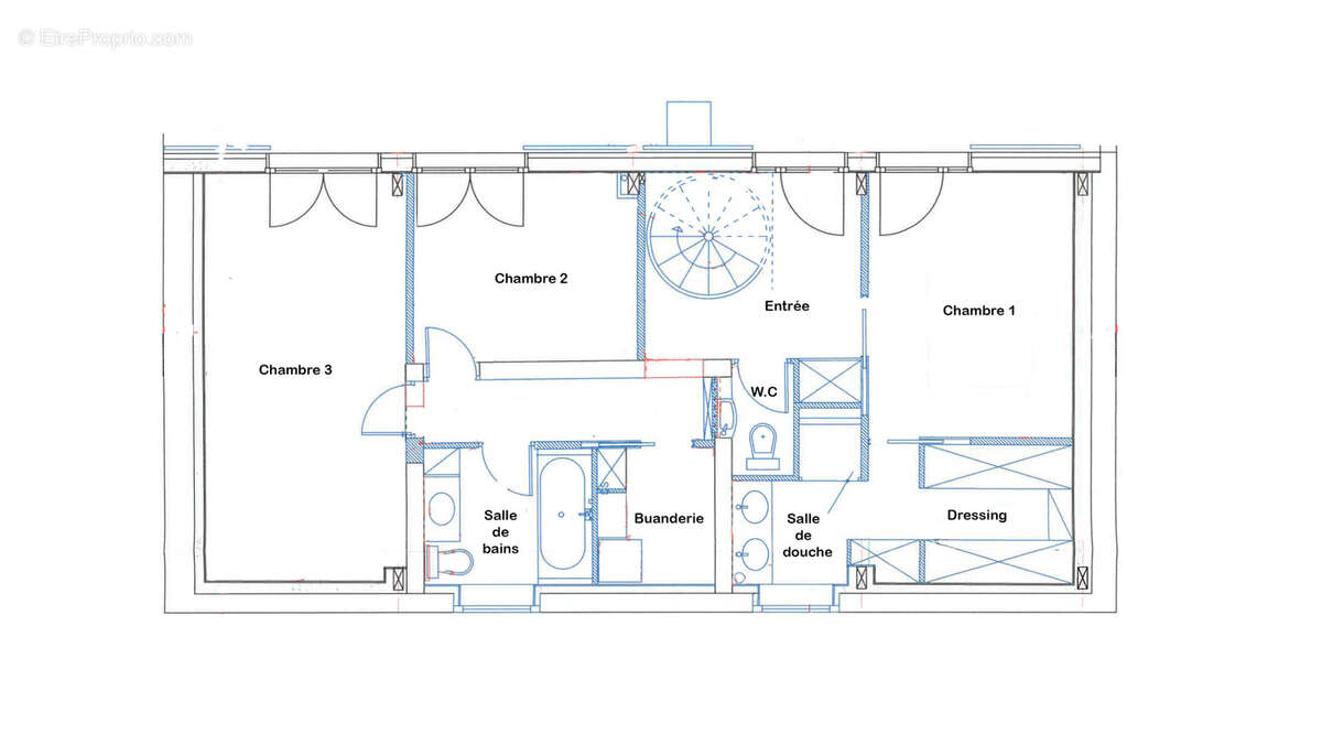
Il se compose d’une grande pièce de réception traversante avec une cheminée de plus de 50m2 bénéficiant d’une grande hauteur sous des poutres apparentes, une cuisine américaine aménagée et une salle à manger, l’ensemble tournant autour d’un joli patio extérieur. La partie nuit comprend une suite parentale avec sa salle de douche et son dressing et, des WC séparés, deux chambres d’enfants et une salle de bains avec WC.
L’ensemble des chambres donnent sur la grande terrasse extérieure et un espace bâti de 23m2 aménageable en cuisine extérieure, atelier, bureau, salle de sport ou possibilité d’y garer une voiture électrique par exemple.
L’ensemble de la maison est climatisé et a été rénovée avec des matériaux de grande qualité.
Très bon plan, de nombreux rangements sur mesure et une buanderie complètent ce bien rare à la vente.

Contacter Bruno Benveniste [Coordonnées masquées] - Paris Normandie Transactions 7j/7
Voir plus

Référence: 085-2
Honoraires d'agence de 3.63% à la charge de l'acquéreur
Barème des honoraires
DPE
A
B
C
D
E
F
G
GES
A
B
C
D
E
F
G

Prêt immobilier

Vous souhaitez connaître votre capacité d’emprunt et trouver le meilleur crédit immobilier ?
Réaliser une simulation gratuite

Maison à COURBEVOIE
Maison à COURBEVOIE
Maison à COURBEVOIE
Maison à COURBEVOIE
Maison à COURBEVOIE
Maison à COURBEVOIE
Maison à COURBEVOIE
Maison à COURBEVOIE
Maison à COURBEVOIE
Maison à COURBEVOIE
Maison à COURBEVOIE
Maison à COURBEVOIE
Maison à COURBEVOIE
Maison à COURBEVOIE
Maison à COURBEVOIE
Maison à COURBEVOIE
Maison à COURBEVOIE
Maison à COURBEVOIE
Maison à COURBEVOIE
Maison à COURBEVOIE
Maison à COURBEVOIE
Maison à COURBEVOIE
Ce site est protégé par reCAPTCHA la Politique de confidentialité et les Conditions d’utilisation de Google s’appliquent.
Obtenir un prêt immobilier au meilleur taux ?

En poursuivant votre navigation sans modifier vos paramètres, vous acceptez l'utilisation de cookies susceptibles de réaliser des statistiques de visite. Cliquez ici pour plus d'informations