Bénéficiez des services de nos partenaires locaux soigneusement sélectionnés
pour vous accompagner dans votre parcours d'achat immobilier

T2 / t3 calme, ensoleillé, vue dégagée, sans vis-à-vis, au cœur de village en provence

— Mallemort 13370 —
169 500 €
67 m²
2 pièces

Nos partenaires locaux
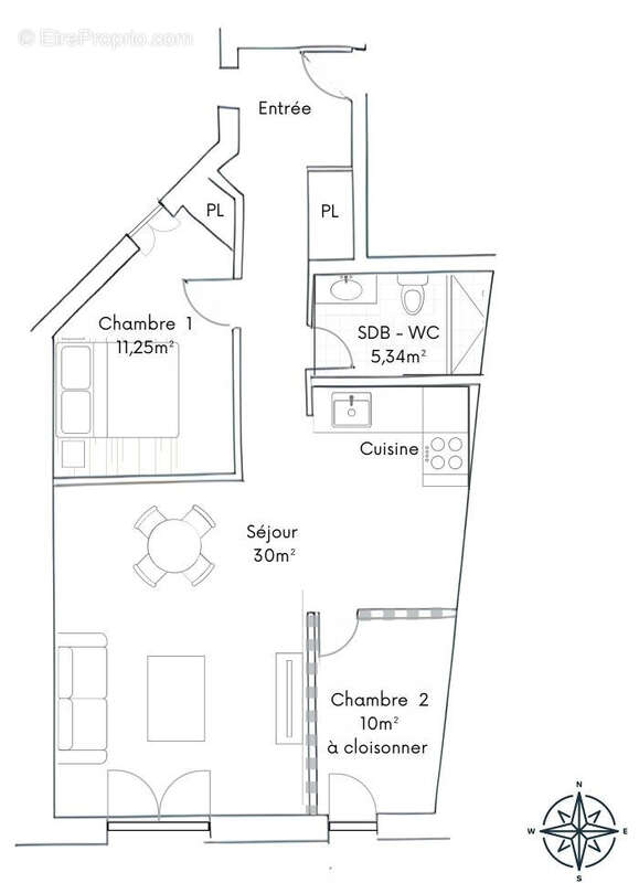
Situé au centre-ville d’un authentique village de Provence, appartement spacieux de 66,84 m2 ensoleillé, traversant, en bon état, au 2e et dernier étage avec vue dégagée sur platanes. Comprend un séjour de 30 m2 exposé plein Sud plus sa cuisine équipée ouverte de 6 m2, une chambre de 11 m2 avec placard, une salle de bain comprenant un WC de 5 m2, une entrée avec placard. Possibilité de créer une 2e chambre de 10 m2 à cloisonner.
 
Au cœur de la vie du village : commerces, médecins, marché provençal le vendredi, écoles maternelle, primaire et collège ; activités, tous accessibles à pied. Nombreux loisirs : cinéma, piscine l’été, équitation, golf international à 10 minutes en voiture.
 
Accès à l'autoroute A7 à 10 kms. Gares TGV Avignon ou Aix-en-Provence TGV et aéroport Marseille Provence à 40 minutes en voiture environ. A mi-chemin entre Aix-en-Provence et Avignon.
 
Idéal pour y vivre ou pour un investissement immobilier locatif. Loyers estimés entre 900€ et 1.000 €/ mois, charges comprises. Rentabilité : 6%. Votre investissement va prendre de la valeur : les prix au m2 moyen dans l’ancien ont augmenté de +13% en 5 ans.
 
Immeuble sécurisé avec entrée interphone et digicode. Petite copropriété bien entretenue de 9 lots. Pas de procédure en cours. Taxe foncière : 717 €/an.
 
Les informations sur les risques auxquels ce bien est exposé sont disponibles sur le site Géorisques http://www.georisques.gouv.fr.
Voir plus

Bien en copropriété. Nombre de lots : 9. Charges de copropriété : 570 €.
DPE
A
B
C
D
E
F
G
GES
A
B
C
D
E
F
G

Prêt immobilier

Vous souhaitez connaître votre capacité d’emprunt et trouver le meilleur crédit immobilier ?
Réaliser une simulation gratuite

Appartement à MALLEMORT
Appartement à MALLEMORT
Appartement à MALLEMORT
Appartement à MALLEMORT
Appartement à MALLEMORT
Appartement à MALLEMORT
Appartement à MALLEMORT
Appartement à MALLEMORT
Appartement à MALLEMORT
Appartement à MALLEMORT
Appartement à MALLEMORT
Appartement à MALLEMORT
Appartement à MALLEMORT
Ce site est protégé par reCAPTCHA la Politique de confidentialité et les Conditions d’utilisation de Google s’appliquent.
Obtenir un prêt immobilier au meilleur taux ?

En poursuivant votre navigation sans modifier vos paramètres, vous acceptez l'utilisation de cookies susceptibles de réaliser des statistiques de visite. Cliquez ici pour plus d'informations