Bénéficiez des services de nos partenaires locaux soigneusement sélectionnés
pour vous accompagner dans votre parcours d'achat immobilier

Appartement t3 de 85.7 m2très haut de gamme plein coeur de l'ecusson

— Montpellier 34000 —
735 000 €
86 m²
3 pièces

Nos partenaires locaux
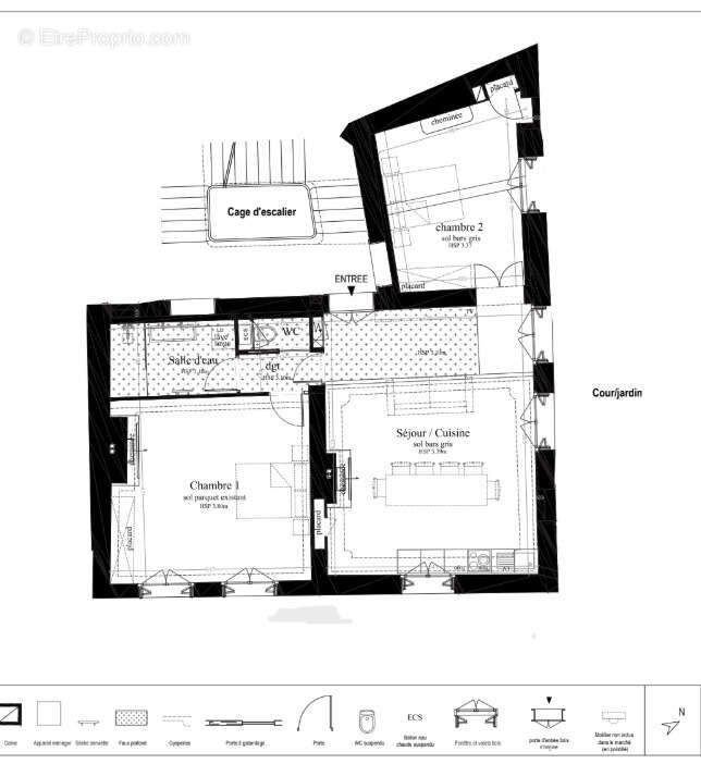
Elligible au régime fiscal dit 'Malraux', venez découvrir ce bel appartement T3 en R+1 en cours de rénovation au sein d'une copropriété située dans un exceptionnel hôtel particulier (Vente d'un Immeuble à Rénover) dans le centre historique de Montpellier.
Depuis la cour intérieure arborée puis de la cage d'escalier majestueuse ce bien sera accessible d'un pallier situé 1er étage et qui donne accès à une pièce de vie avec une cuisine aménagée et semi-équipée de 36.5 m2, une salle de douche de 6.1 m2, un wc suspendu indépendant, une chambre parentale de 23.7 m2 avec accès à la salle de douche commune, une seconde chambre de 16.1 m2.
Bien qui propose une exposition une double exposition (sur la cour / jardin intérieur et sur rue)
Des prestations de grandes qualités dans cet environnement d'exception vous attendent et ce programme sera conforme :
A la Nouvelle Réglementation Acoustique (NRA), à la norme électrique NF C 15-100, à la réglementation thermique RT Rénovation légère.
Pour plus de renseignements sur le dispositif Malraux et sur ce bien je vous invite à nous contacter.
Pour tout complément d'information et de visite nous restons disponibles par téléphone - [Coordonnées masquées] - Marion TIZI - Agent Commercial - ARE Immo - Immatriculation au Registre Spécial des Agents Commerciaux No 887 741 395 - Montpellier. Sous la Carteprofessionnelle no : CPI 34[Coordonnées masquées]45 070. Valable jusqu'au : 21/10/2026. Délivrée par: CCI de Hérault.'Les informations sur les risques auxquels ce bien est exposé sont disponibles sur le siteGéorisques http://www.georisques.gouv.fr'.
Voir plus

Bien en copropriété. Nombre de lots : 9.
Honoraires à la charge du vendeur.
Barème des honoraires

Prêt immobilier

Vous souhaitez connaître votre capacité d’emprunt et trouver le meilleur crédit immobilier ?
Réaliser une simulation gratuite

Appartement à MONTPELLIER
Appartement à MONTPELLIER
Appartement à MONTPELLIER
Appartement à MONTPELLIER
Appartement à MONTPELLIER
Ce site est protégé par reCAPTCHA la Politique de confidentialité et les Conditions d’utilisation de Google s’appliquent.
Obtenir un prêt immobilier au meilleur taux ?

En poursuivant votre navigation sans modifier vos paramètres, vous acceptez l'utilisation de cookies susceptibles de réaliser des statistiques de visite. Cliquez ici pour plus d'informations