Bénéficiez des services de nos partenaires locaux soigneusement sélectionnés
pour vous accompagner dans votre parcours d'achat immobilier

Appartement t2 de 46.5 m2 très haut de gamme en plein coeur de l'ecusson

— Montpellier 34000 —
395 000 €
46 m²
2 pièces

Nos partenaires locaux
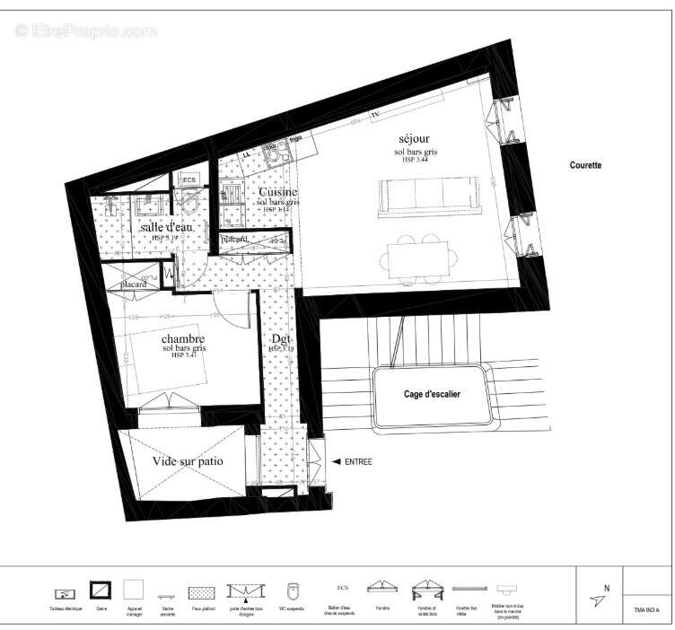
Elligible au régime fiscal dit 'Malraux', venez découvrir ce bel appartement T2 en R+1 en cours de rénovation au sein d'une copropriété située dans un exceptionnel hôtel particulier (Vente d'un Immeuble à Rénover) dans le centre historique de Montpellier.
Depuis la cour intérieure arborée puis de la cage d'escalier majestueuse ce bien sera accessible d'un pallier situé 1er étage et qui donne accès à un dégagement avec placard puis à une pièce de vie avec une cuisine aménagée et semi-équipée de 25.4 m2, une salle de douche avec un wc suspendu, une chambre de 9.7 m2.
Des prestations de grandes qualités dans cet environnement d'exception vous attendent et ce programme sera conforme :
A la Nouvelle Réglementation Acoustique (NRA), à la norme électrique NF C 15-100, à la réglementation thermique RT Rénovation légère.
Pour plus de renseignements sur le dispositif Malraux et sur ce bien je vous invite à nous contacter.
Pour tout complément d'information et de visite nous restons disponibles par téléphone - [Coordonnées masquées] - Marion TIZI - Agent Commercial - ARE Immo - Immatriculation au Registre Spécial des Agents Commerciaux No 887 741 395 - Montpellier. Sous la Carteprofessionnelle no : CPI 34[Coordonnées masquées]45 070. Valable jusqu'au : 21/10/2026. Délivrée par: CCI de Hérault.'Les informations sur les risques auxquels ce bien est exposé sont disponibles sur le siteGéorisques http://www.georisques.gouv.fr'.
Voir plus

Bien en copropriété. Nombre de lots : 9.
Honoraires à la charge du vendeur.
Barème des honoraires

Prêt immobilier

Vous souhaitez connaître votre capacité d’emprunt et trouver le meilleur crédit immobilier ?
Réaliser une simulation gratuite

Appartement à MONTPELLIER
Appartement à MONTPELLIER
Appartement à MONTPELLIER
Appartement à MONTPELLIER
Appartement à MONTPELLIER
Ce site est protégé par reCAPTCHA la Politique de confidentialité et les Conditions d’utilisation de Google s’appliquent.
Obtenir un prêt immobilier au meilleur taux ?

En poursuivant votre navigation sans modifier vos paramètres, vous acceptez l'utilisation de cookies susceptibles de réaliser des statistiques de visite. Cliquez ici pour plus d'informations