Bénéficiez des services de nos partenaires locaux soigneusement sélectionnés
pour vous accompagner dans votre parcours d'achat immobilier

Roquebrune cap martin : 3 pièces de 51 m2 - terrasse - vue mer - piscine

— Roquebrune-Cap-Martin 06190 —
710 000 €
51 m²
3 pièces
parkingbalcon/terrassepiscine

Nos partenaires locaux
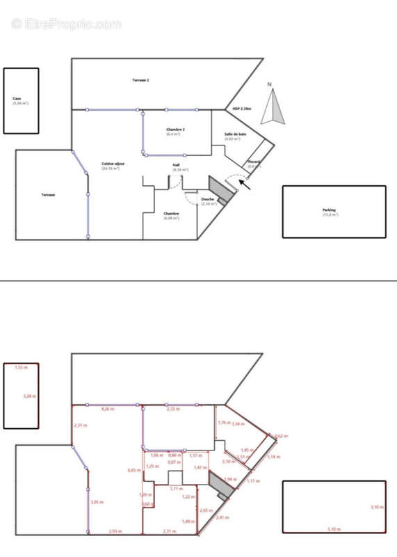
Roquebrune-Cap-Martin. Au dernier étage d’une résidence sécurisée avec piscine et parc arboré, ce bel appartement 3 pièces de 51 m2 offre une vue dégagée sur la mer, les collines environnantes et la Principauté de Monaco.
Baigné de lumière, il se compose d’un séjour spacieux de 24 m2 avec cuisine ouverte, donnant sur une grande terrasse de 28 m2. Il comprend également 2 chambres, chacune équipée de sa propre salle d'eau avec WC, dont l'une dispose d'une seconde terrasse de 19 m2.
Une cave et une place de stationnement en sous-sol, avec la possibilité d’être aménagée en box fermé, sont également comprises.
Dans un environnement paisible et verdoyant, à proximité immédiate des plages, des commerces et des transports. Cet appartement réunit tous les atouts pour un cadre de vie agréable.
----
Roquebrune-Cap-Martin. On the top floor of a secure residence with swimming pool and wooded grounds, this charming 51 m2 2-room apartment boasts magnificent views of the sea, the hills and the Principality of Monaco.
Bathed in light, it comprises a 24 m2 living room with open-plan kitchen opening onto a large 28 m2 terrace, as well as two bedrooms, each with its own shower room and WC, one of which has a 19 m2 terrace.
A cellar and basement parking space, which could be converted into a lock-up, are also included.
Close to beaches and amenities, this flat has everything you need for a pleasant lifestyle.
Voir plus

Référence: 99
Honoraires à la charge du vendeur.
Barème des honoraires
DPE
A
B
C
D
E
F
G
GES
A
B
C
D
E
F
G

Prêt immobilier

Vous souhaitez connaître votre capacité d’emprunt et trouver le meilleur crédit immobilier ?
Réaliser une simulation gratuite

Appartement à ROQUEBRUNE-CAP-MARTIN
Appartement à ROQUEBRUNE-CAP-MARTIN
Appartement à ROQUEBRUNE-CAP-MARTIN
Appartement à ROQUEBRUNE-CAP-MARTIN
Appartement à ROQUEBRUNE-CAP-MARTIN
Appartement à ROQUEBRUNE-CAP-MARTIN
Appartement à ROQUEBRUNE-CAP-MARTIN
Appartement à ROQUEBRUNE-CAP-MARTIN
Appartement à ROQUEBRUNE-CAP-MARTIN
Appartement à ROQUEBRUNE-CAP-MARTIN
Appartement à ROQUEBRUNE-CAP-MARTIN
Appartement à ROQUEBRUNE-CAP-MARTIN
Appartement à ROQUEBRUNE-CAP-MARTIN
Appartement à ROQUEBRUNE-CAP-MARTIN
Appartement à ROQUEBRUNE-CAP-MARTIN
Appartement à ROQUEBRUNE-CAP-MARTIN
Appartement à ROQUEBRUNE-CAP-MARTIN
Appartement à ROQUEBRUNE-CAP-MARTIN
Appartement à ROQUEBRUNE-CAP-MARTIN
Appartement à ROQUEBRUNE-CAP-MARTIN
Ce site est protégé par reCAPTCHA la Politique de confidentialité et les Conditions d’utilisation de Google s’appliquent.
Obtenir un prêt immobilier au meilleur taux ?

En poursuivant votre navigation sans modifier vos paramètres, vous acceptez l'utilisation de cookies susceptibles de réaliser des statistiques de visite. Cliquez ici pour plus d'informations