Villa 4 faces Saint Cyprien plage

— Saint-Cyprien 66750 —
565 000 €
205 m² / 700 m²
7 pièces
parkingjardin

Villa 4 faces avec appartement indépendant Fort potentiel à Saint-Cyprien Plage

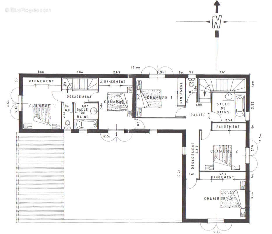
À Saint-Cyprien Plage, dans un quartier résidentiel calme, découvrez cette villa 4 faces au prix au m2 particulièrement attractif, offrant de nombreuses possibilités pour une résidence principale, une maison familiale ou un projet locatif.

La maison principale se compose de :

- 4 chambres

- un séjour lumineux avec cuisine

- un bureau idéal pour le télétravail

- une salle de bain

En complément, un appartement duplex indépendant comprenant :

- une cuisine ouverte sur séjour

- 1 chambre

- une salle d’eau

Idéal pour recevoir famille et amis, créer un revenu locatif, ou développer un projet de gîte, chambre d’hôtes ou colocation.

Construite de manière traditionnelle, la propriété bénéficie également de nombreux atouts :

- double terrasse pour profiter des extérieurs

- garage

- abri de jardin

- forage de 25 mètres

- stationnement possible pour camping-car sur la propriété

Un bien rare par sa configuration et son potentiel, à découvrir rapidement.

Voir plus

Référence: 0810
Bien en copropriété. Nombre de lots : 56.
Honoraires à la charge du vendeur.
Barème des honoraires
DPE
A
B
C
D
E
F
G
GES
A
B
C
D
E
F
G
Maison à SAINT-CYPRIEN
Maison à SAINT-CYPRIEN
Maison à SAINT-CYPRIEN
Maison à SAINT-CYPRIEN
Maison à SAINT-CYPRIEN
Maison à SAINT-CYPRIEN
Maison à SAINT-CYPRIEN
Maison à SAINT-CYPRIEN
Maison à SAINT-CYPRIEN
Maison à SAINT-CYPRIEN
Maison à SAINT-CYPRIEN
Géorisques

Les informations sur les risques auxquels ce bien est exposé sont disponibles sur le site Géorisques : www.georisques.gouv.fr

Ce site est protégé par hCaptcha Politique de confidentialité et Conditions d’utilisation s’appliquent.

En poursuivant votre navigation sans modifier vos paramètres, vous acceptez l'utilisation de cookies susceptibles de réaliser des statistiques de visite. Cliquez ici pour plus d'informations