Gîtes, restaurant, épicerie fine, piscine couverte

— Cazaubon 32150 —
598 500 €
850 m²
33 pièces
parkingbalcon/terrassepiscine

Dans station thermale réputée du Gers, ancien hôtel-restaurant rénové récemment avec piscine couverte chauffée , terrasses, gîtes, restaurant , épicerie fine.

Établissement doté d'un emplacement unique sur la station thermale disposant d'un parc arboré, paysagé et clôturé ainsi que d'un parking privatif pour sa clientèle avec la possibilité d'en créer un autre à proximité.

Cet ancien hôtel-restaurant, comprenant 4 gîtes, seuls deux gîtes sont actuellement exploités.( classé 4 étoiles)

Le bâtiment se compose de la façon suivante:

Au rez-de-chaussée, hall d'entrée deux gîtes accessibles handicapé, 5 chambres avec salle d'eau, une salle de restaurant pouvant accueillir une trentaine de couverts, une cuisine entièrement rénovée récemment, un espace de vente pour l'épicerie fine donnant sur une terrasse pouvant accueillir une vingtaine de couverts.

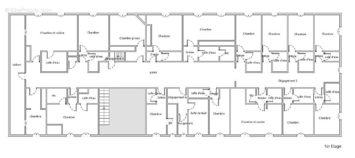
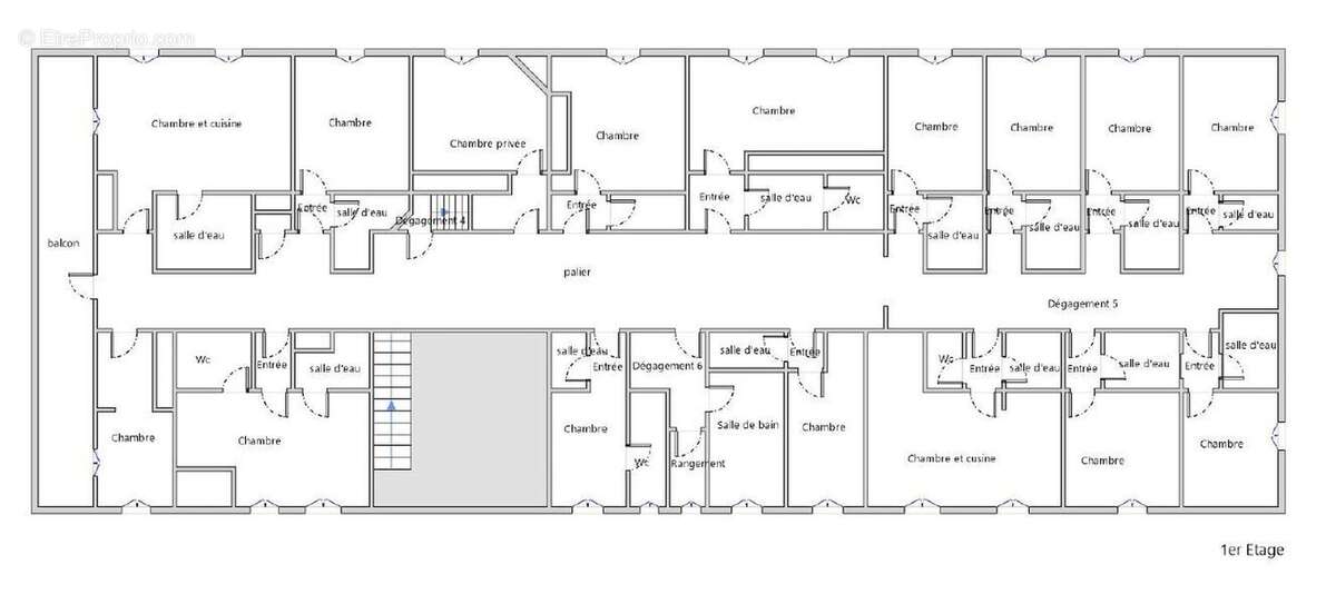
L'étage abrite , deux gîtes, 12 chambres avec salle d'eau, et une chambre privée.

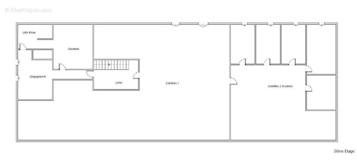
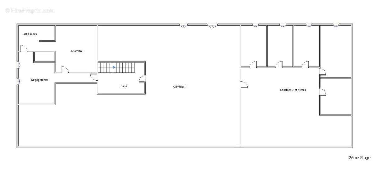
Les combles disposent d'un appartement en partie rénové avec salle d'eau et WC, l'espace restant environ 300 m2 au sol pouvant être réhabilité en fonction de votre projet.

Au rez-de-jardin: une arrière-cuisine, une lingerie, une cave, une chambre froide, une chaufferie.

INFORMATIONS DIVERSES:

Tout-à-l'égout, les chambres, la salle de restauration et les gîtes sont entièrement climatisés.

Présence d'une pompe à chaleur récente pour le chauffage et la production d'eau chaude.

Ouverture 9 mois par an, pas de salarié à reprendre.

Surface terrain : 2597 m2

Les informations sur les risques auxquels ce bien est exposé sont disponibles sur le site Géorisques : www. georisques. gouv. fr.

Pour plus d'informations et pour une visite, contactez Hervé DESPLAT : CLAIRIMMO Barbotan - 3 avenue des Thermes 32150 CAZAUBON - Service Transaction : [Coordonnées masquées] Service Location : [Coordonnées masquées] email : [Coordonnées masquées] RCS 851 986 620 Agent commercial indépendant du réseau national Clairimmo N° RSAC : 495 108 755
Voir plus

Référence: 11476DQ612
Honoraires à la charge du vendeur.
Commerce à CAZAUBON
Commerce à CAZAUBON
Commerce à CAZAUBON
Commerce à CAZAUBON
Commerce à CAZAUBON
Commerce à CAZAUBON
Commerce à CAZAUBON
Commerce à CAZAUBON
Commerce à CAZAUBON
Commerce à CAZAUBON
Commerce à CAZAUBON
Commerce à CAZAUBON
Commerce à CAZAUBON
Commerce à CAZAUBON
Commerce à CAZAUBON
Commerce à CAZAUBON
Commerce à CAZAUBON
Commerce à CAZAUBON
Commerce à CAZAUBON
Commerce à CAZAUBON
Commerce à CAZAUBON
Commerce à CAZAUBON
Commerce à CAZAUBON
Commerce à CAZAUBON
Commerce à CAZAUBON
Commerce à CAZAUBON
Commerce à CAZAUBON
Commerce à CAZAUBON
Commerce à CAZAUBON
Géorisques

Les informations sur les risques auxquels ce bien est exposé sont disponibles sur le site Géorisques : www.georisques.gouv.fr

Ce site est protégé par hCaptcha Politique de confidentialité et Conditions d’utilisation s’appliquent.

En poursuivant votre navigation sans modifier vos paramètres, vous acceptez l'utilisation de cookies susceptibles de réaliser des statistiques de visite. Cliquez ici pour plus d'informations