Bénéficiez des services de nos partenaires locaux soigneusement sélectionnés
pour vous accompagner dans votre parcours d'achat immobilier

T4 avec balcon, parking et cave.

— Saint-Ouen 93400 —
680 000 €
85 m²
4 pièces
parkingbalcon/terrasse

Nos partenaires locaux
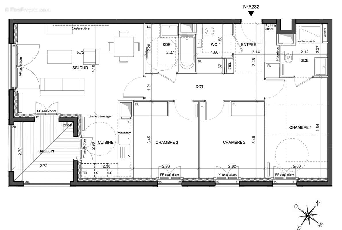
Découvez cet appartement de 4 pièces, situé au 3ème étage. Ce T4 offre une surface habitable de 85,47m2, prolongée par un balcon de 7,02m2.
L’entrée de 4,22m2 dessert un séjour de 22,71m2, ouvert sur l’extérieur grâce à une porte-fenêtre donnant sur le balcon. La cuisine, mesure 6,51m2.
L’espace nuit se compose de trois chambres :

Chambre 1 : 13,11m2 (avec salle d'eau privative)
Chambre 2 : 10,03m2
Chambre 3 : 10,05m2



L’appartement dispose d’une salle d’eau de 4,38m2, d’une salle de bains de 4,63m2 et de WC séparés de 2,45m2. Un dégagement de 7,37m2 facilite la circulation entre les pièces et intègre plusieurs placards.
Résidence bien située, à proximité des commerces, des écoles et des transports.

Parking et cave inclus dans le prix.
Images d'llustration, non contractuelles.
Contactez-nous pour plus d'informations !
Voir plus

Bien en copropriété.
Honoraires à la charge du vendeur.
Barème des honoraires
DPE
A
B
C
D
E
F
G
GES
A
B
C
D
E
F
G

Prêt immobilier

Vous souhaitez connaître votre capacité d’emprunt et trouver le meilleur crédit immobilier ?
Réaliser une simulation gratuite

Appartement à SAINT-OUEN
Appartement à SAINT-OUEN
Appartement à SAINT-OUEN
Appartement à SAINT-OUEN
Ce site est protégé par reCAPTCHA la Politique de confidentialité et les Conditions d’utilisation de Google s’appliquent.
Obtenir un prêt immobilier au meilleur taux ?

En poursuivant votre navigation sans modifier vos paramètres, vous acceptez l'utilisation de cookies susceptibles de réaliser des statistiques de visite. Cliquez ici pour plus d'informations