Bénéficiez des services de nos partenaires locaux soigneusement sélectionnés
pour vous accompagner dans votre parcours d'achat immobilier

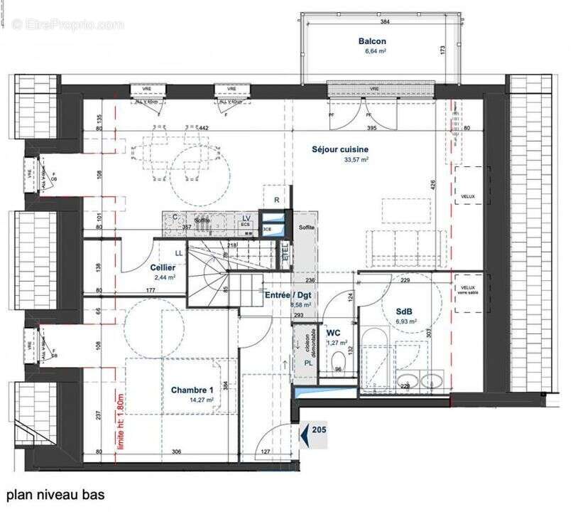
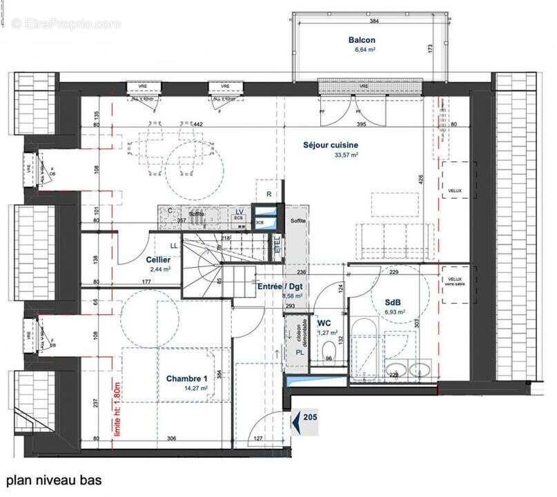
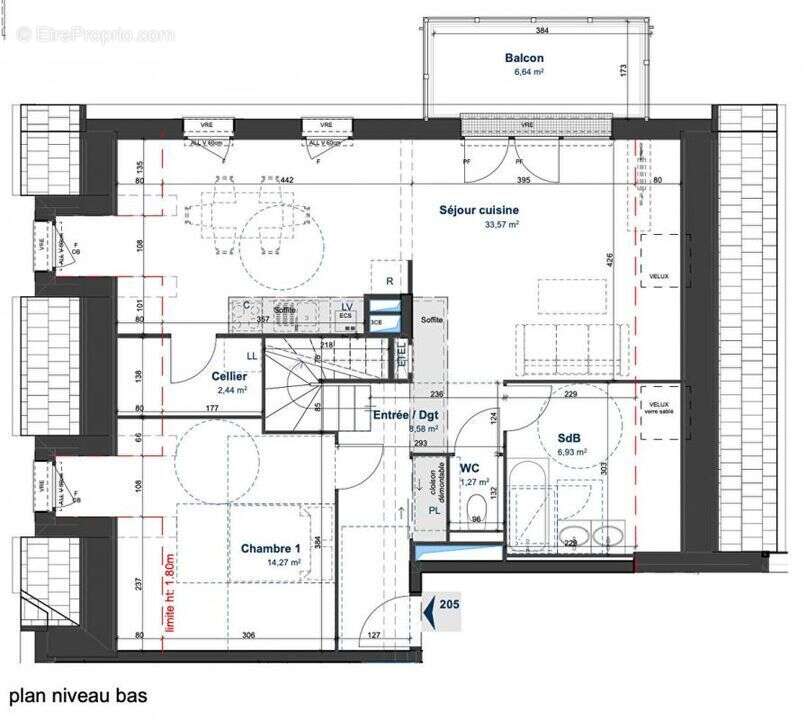
Appartement 90m² à ouistreham

— Ouistreham 14150 —
439 500 €
90 m²
4 pièces

Nos partenaires locaux
sur la commune de OUISTREHAM RIVA BELLA, dans une résidence, de standing, neuve livrée en 2025,



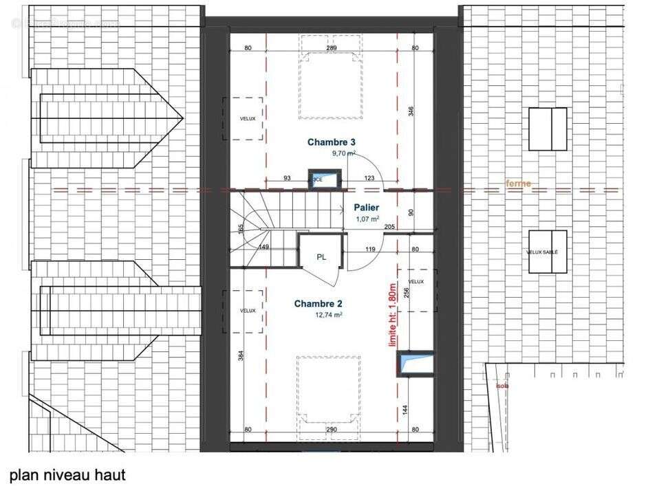
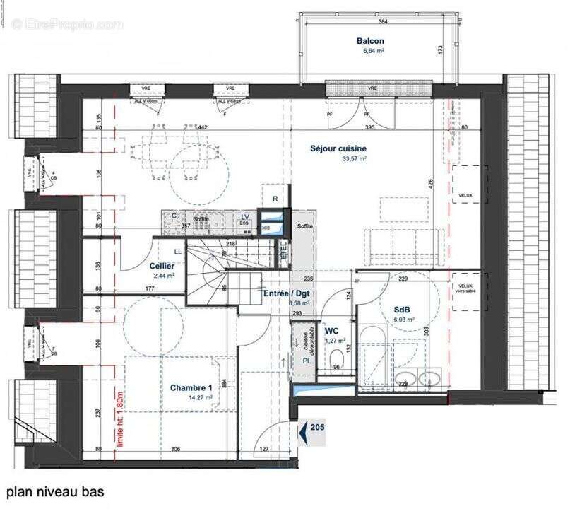
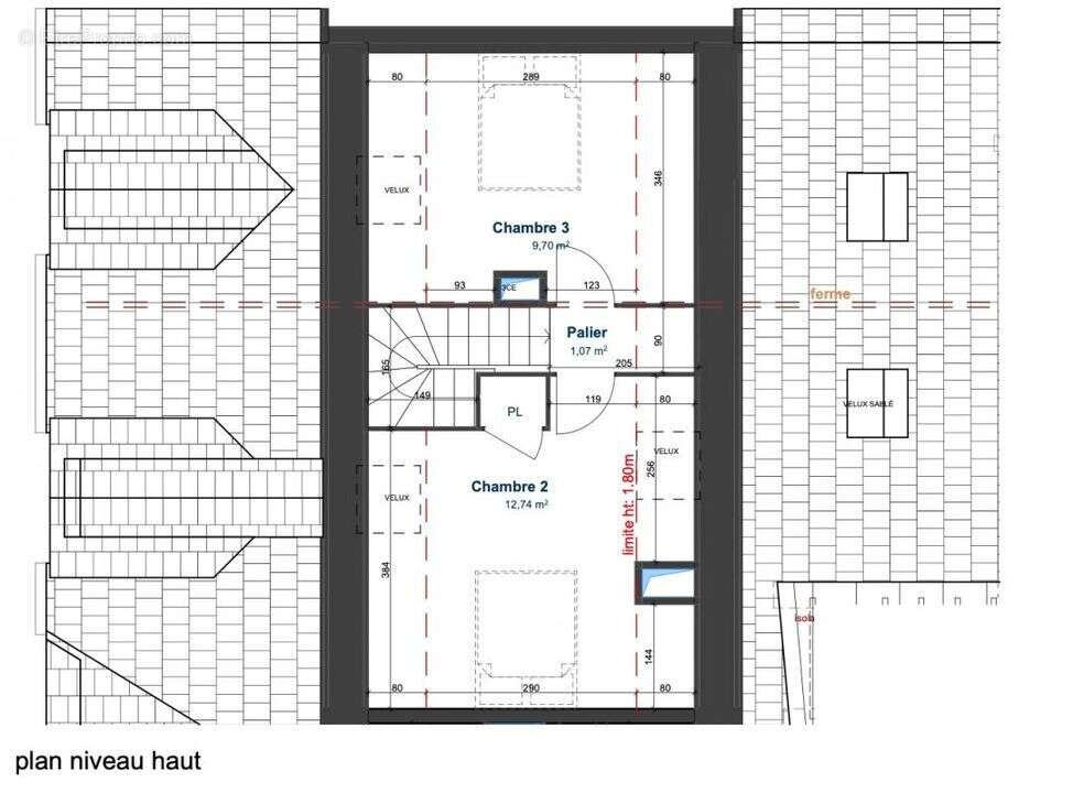
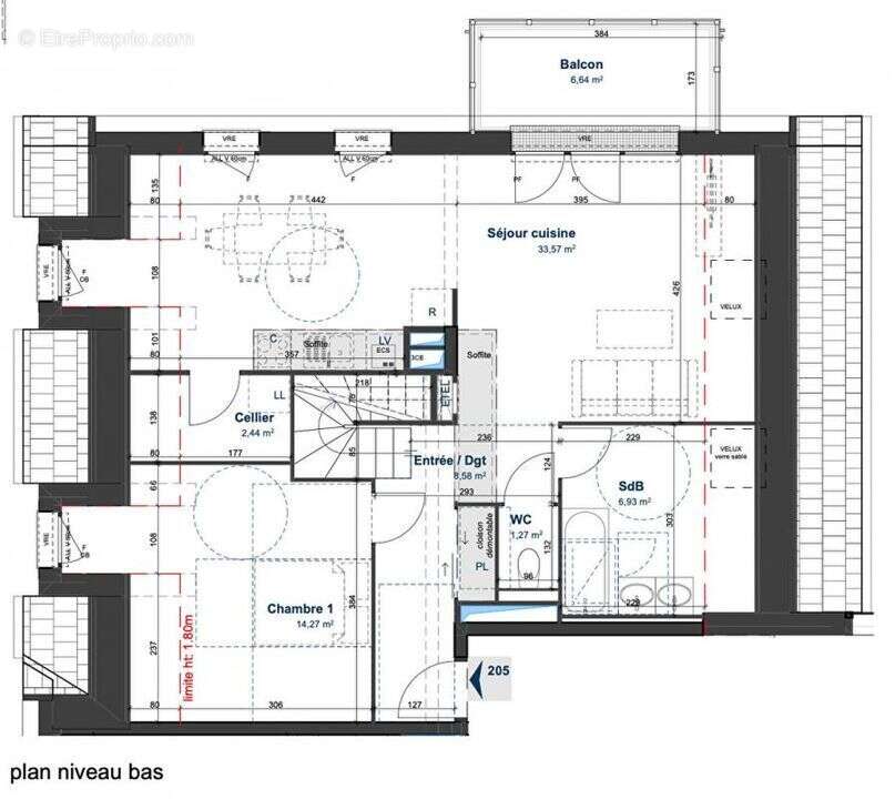
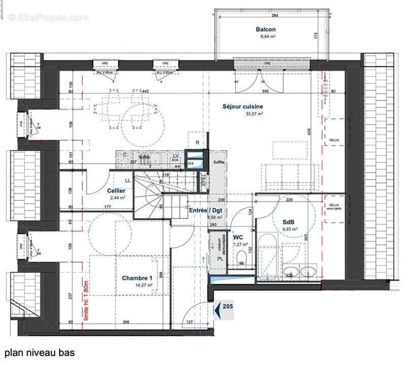
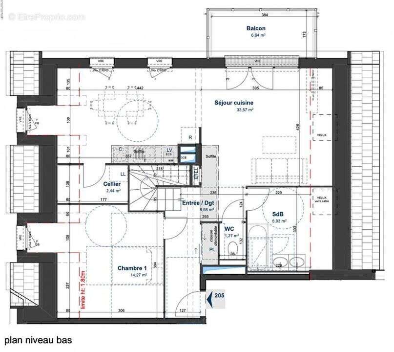
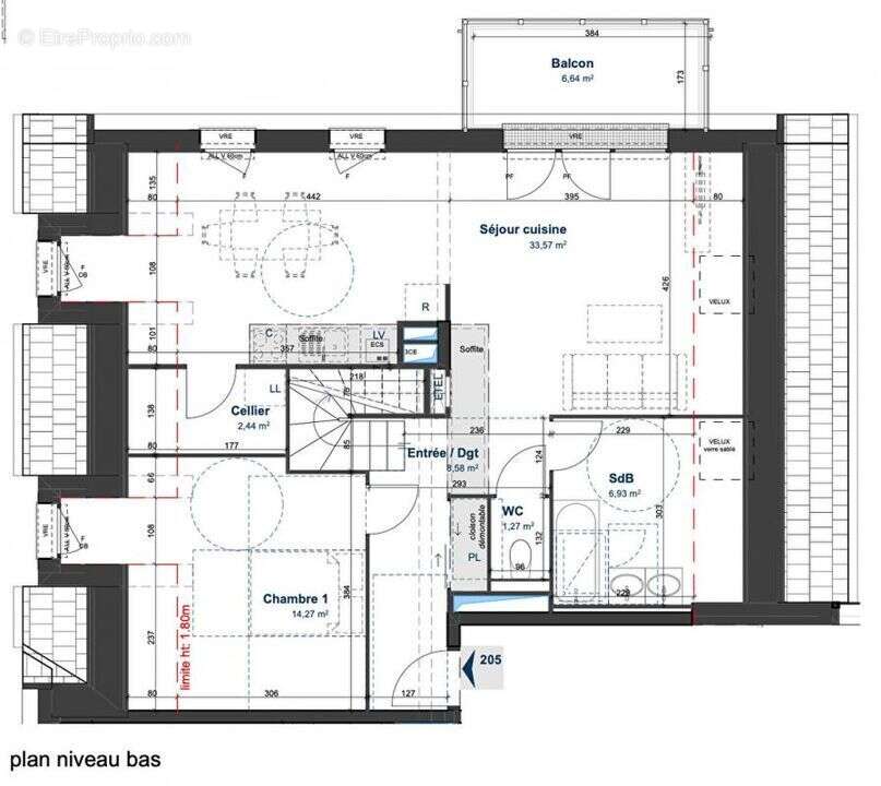
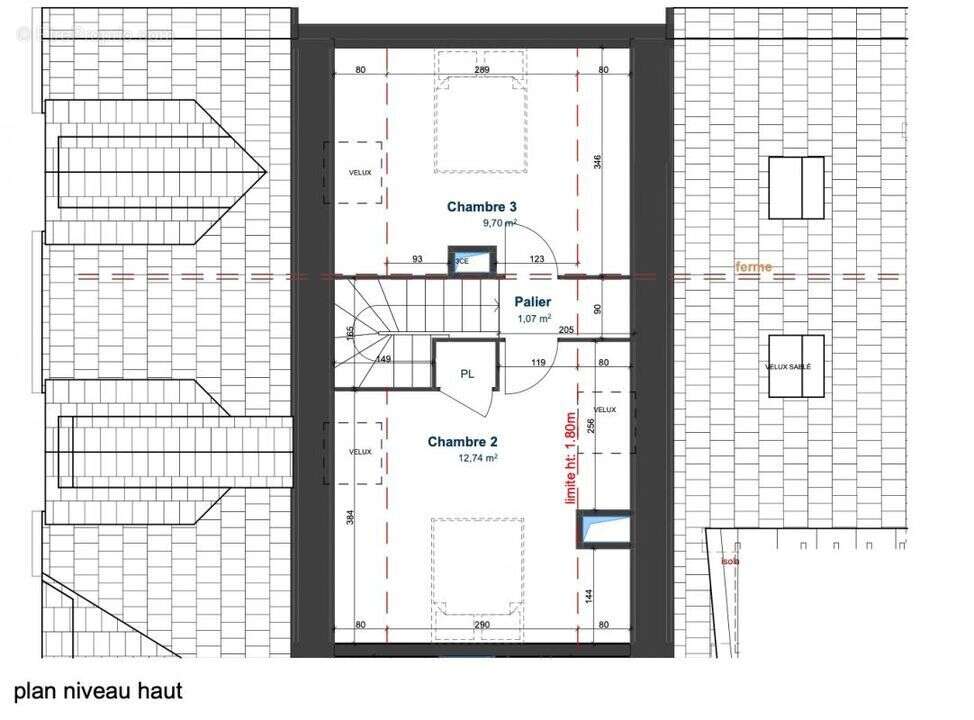
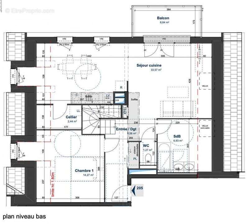
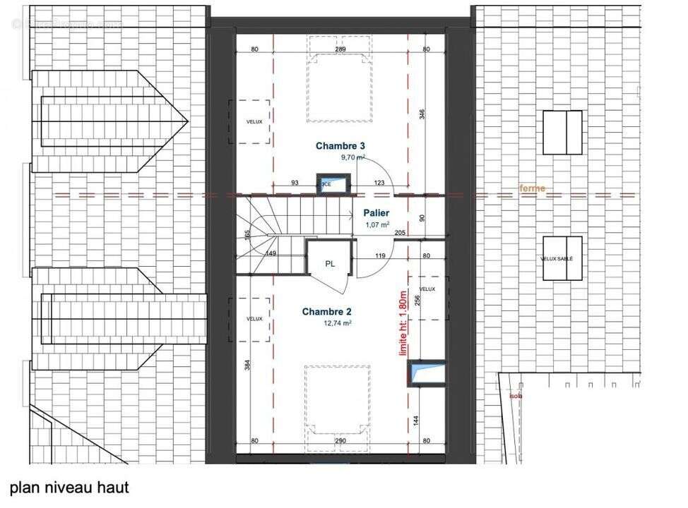
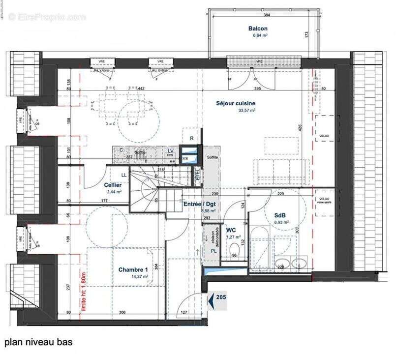
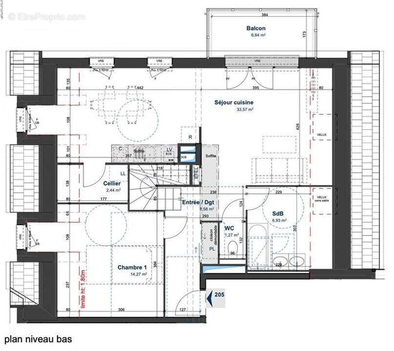
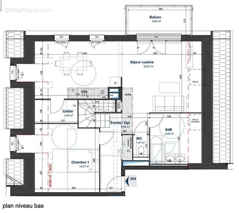
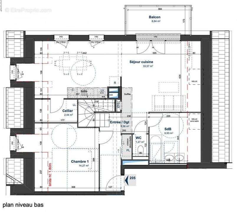
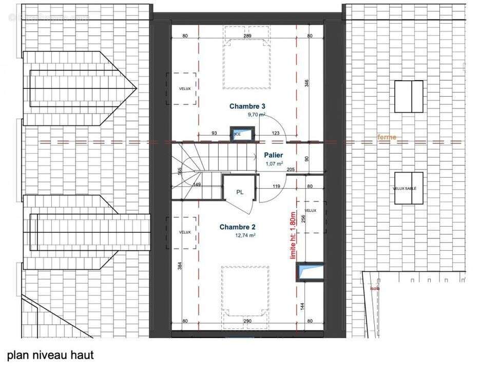
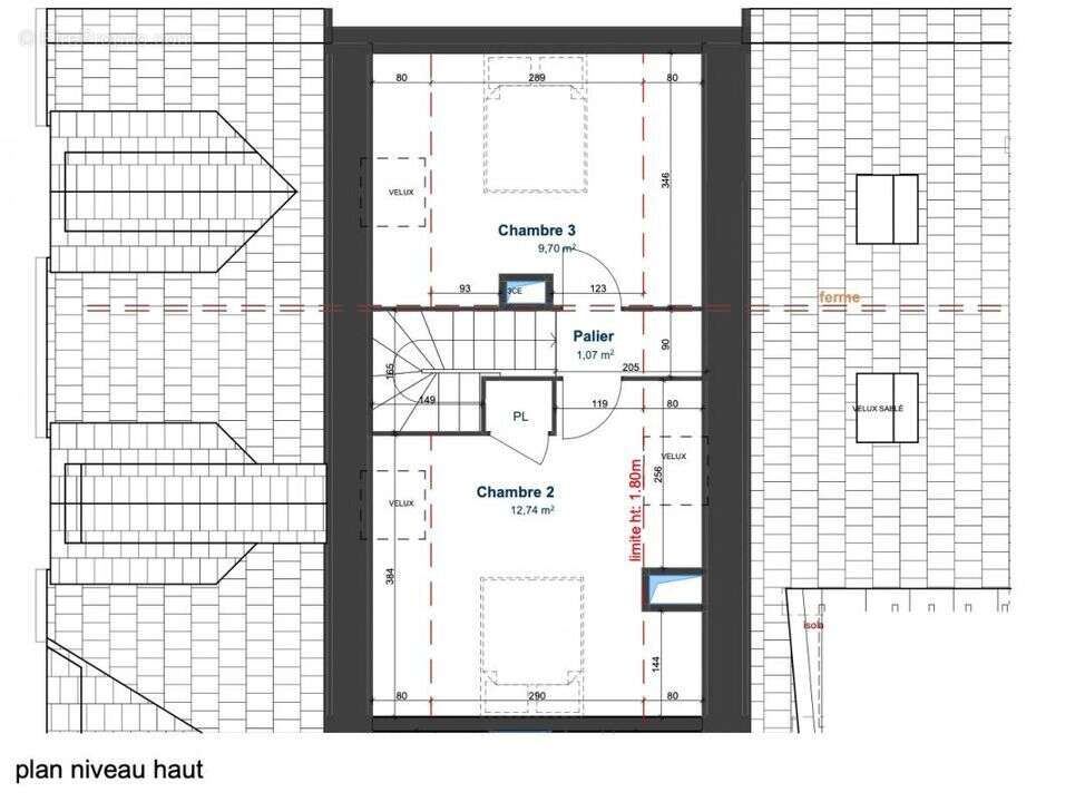
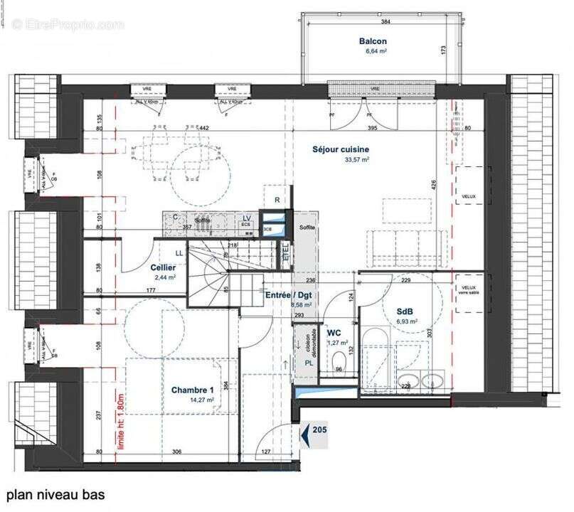
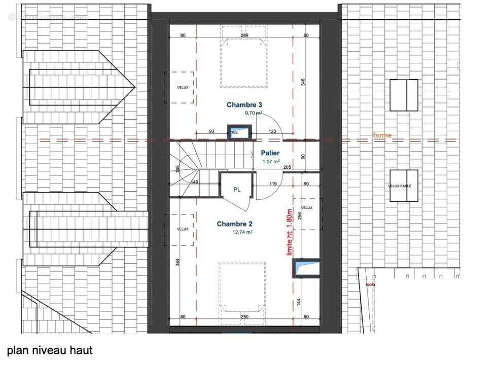
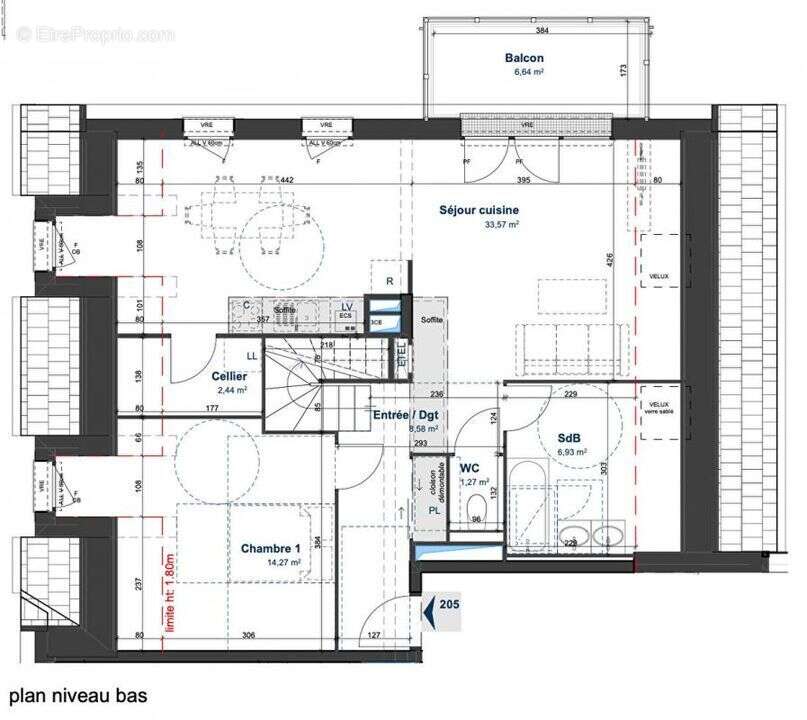
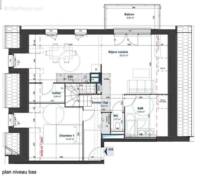
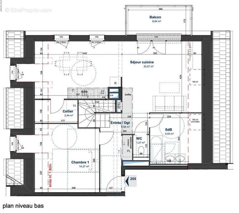
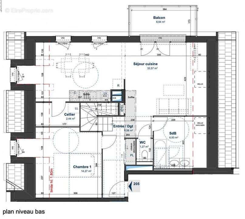
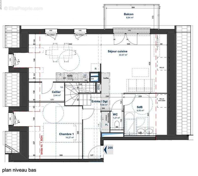
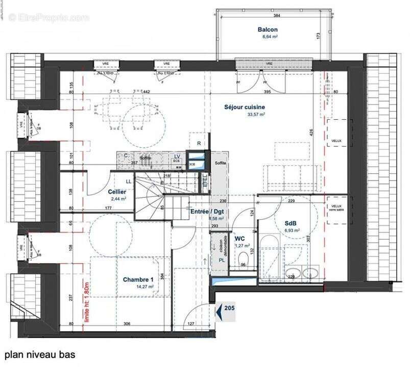
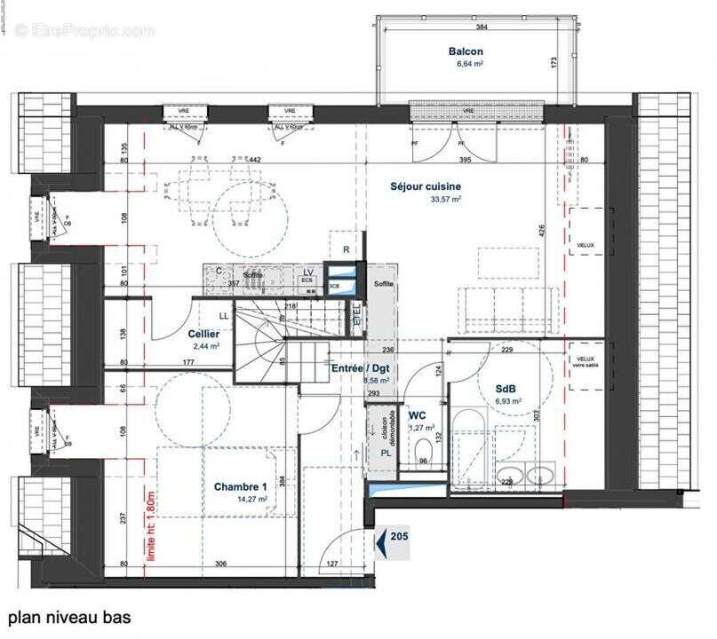
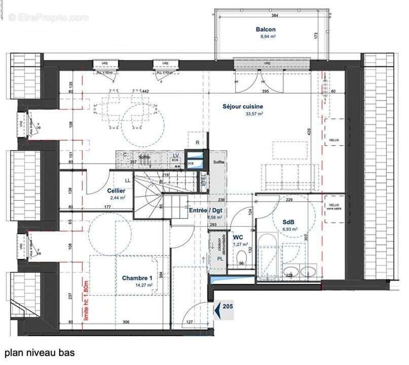
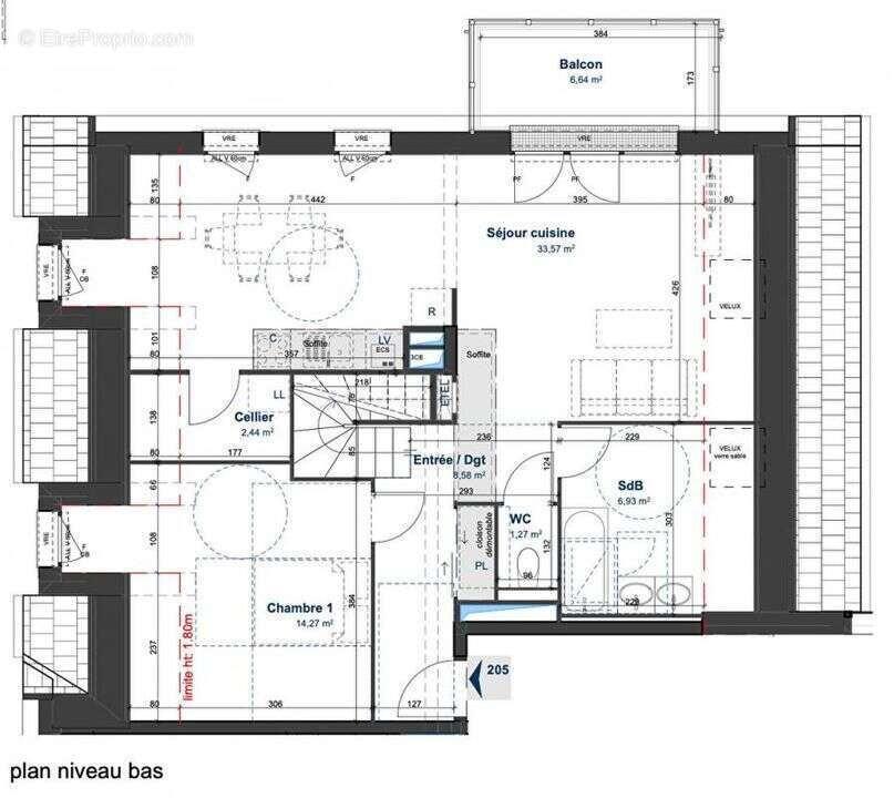
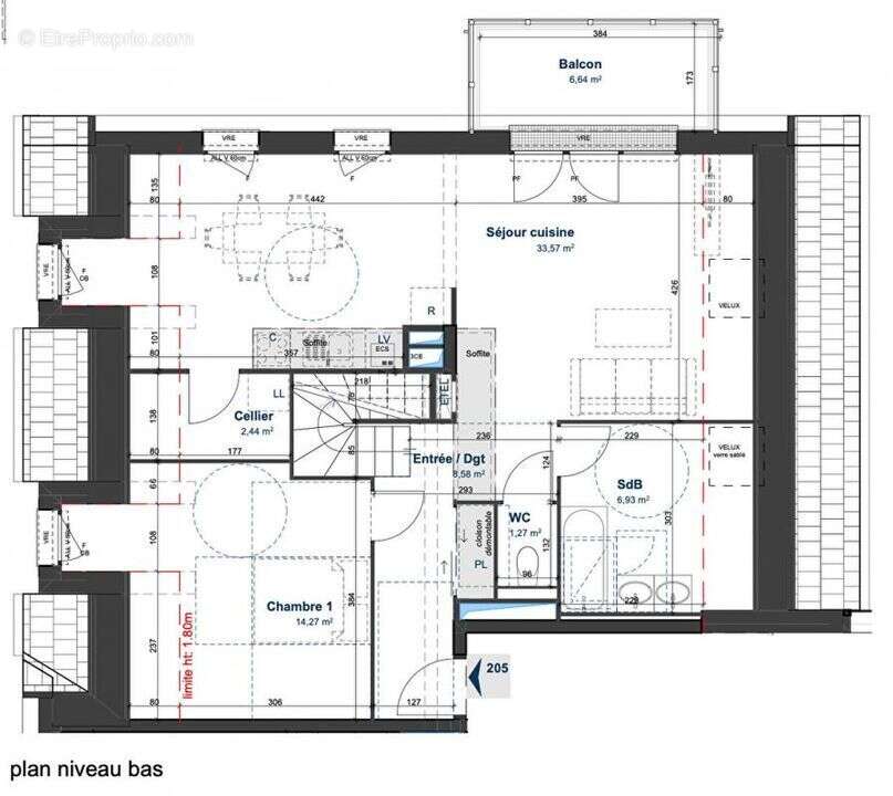
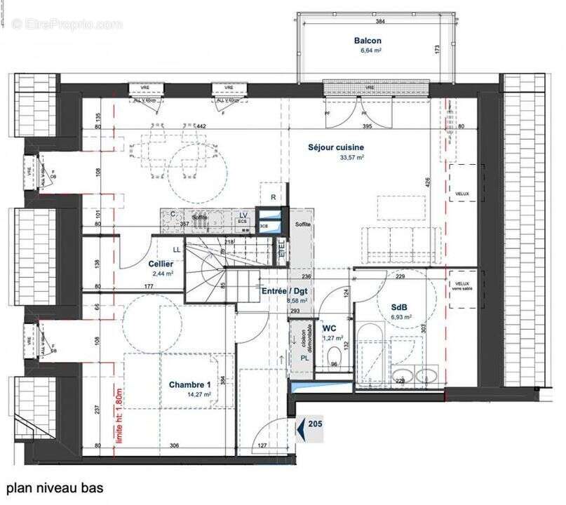
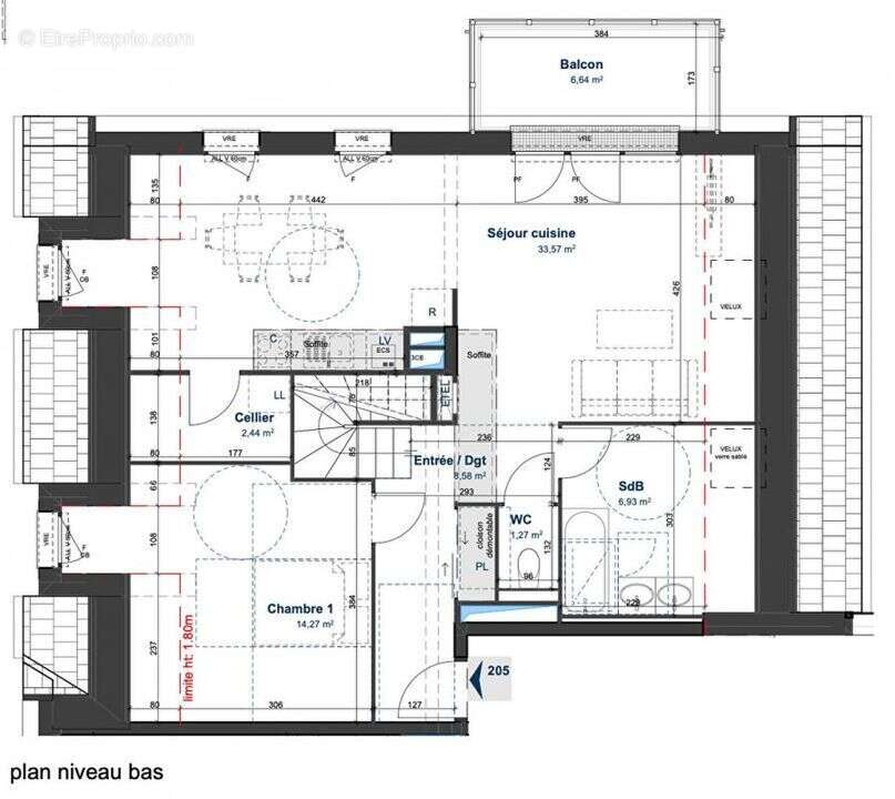
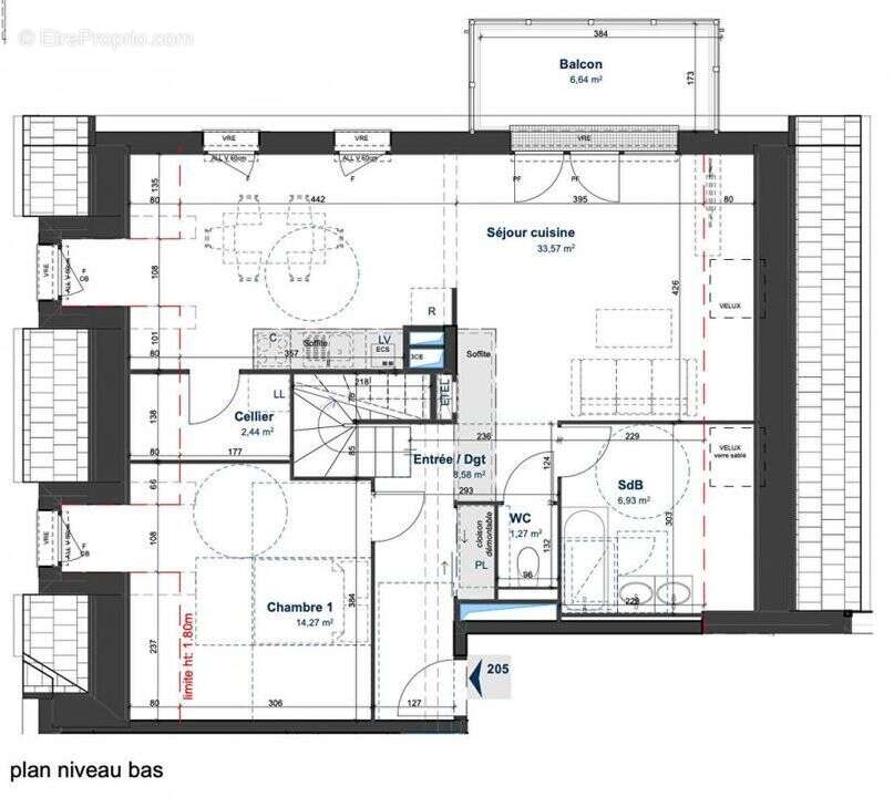
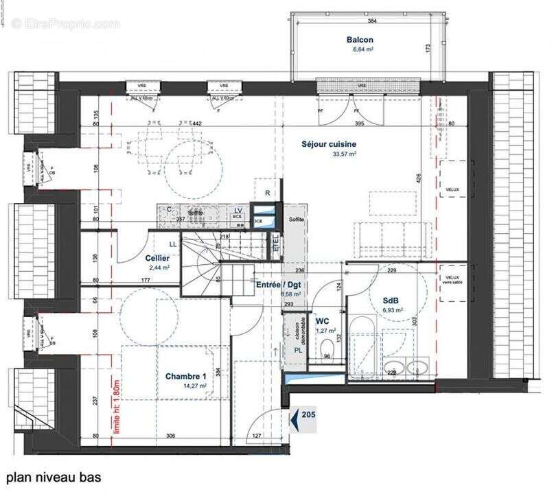
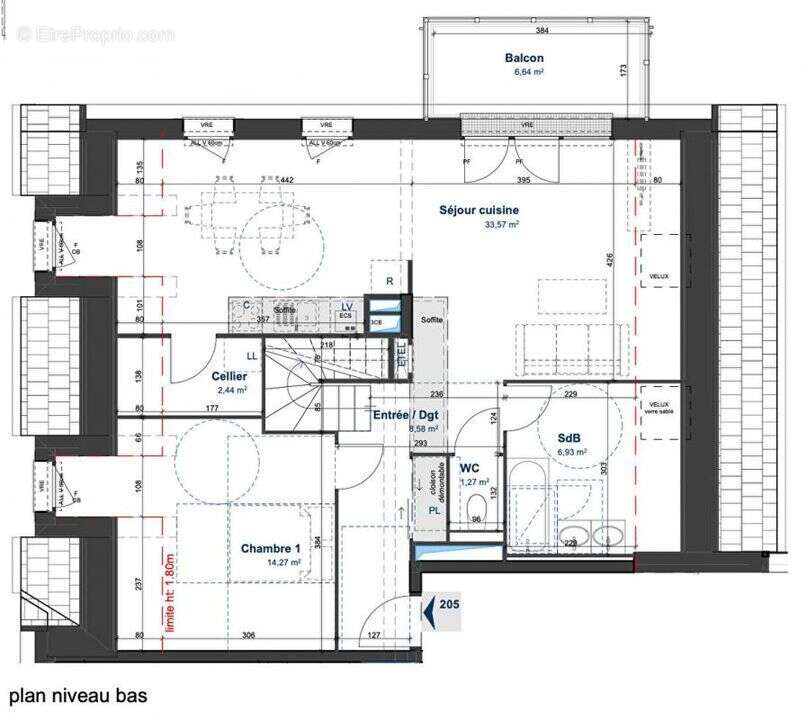
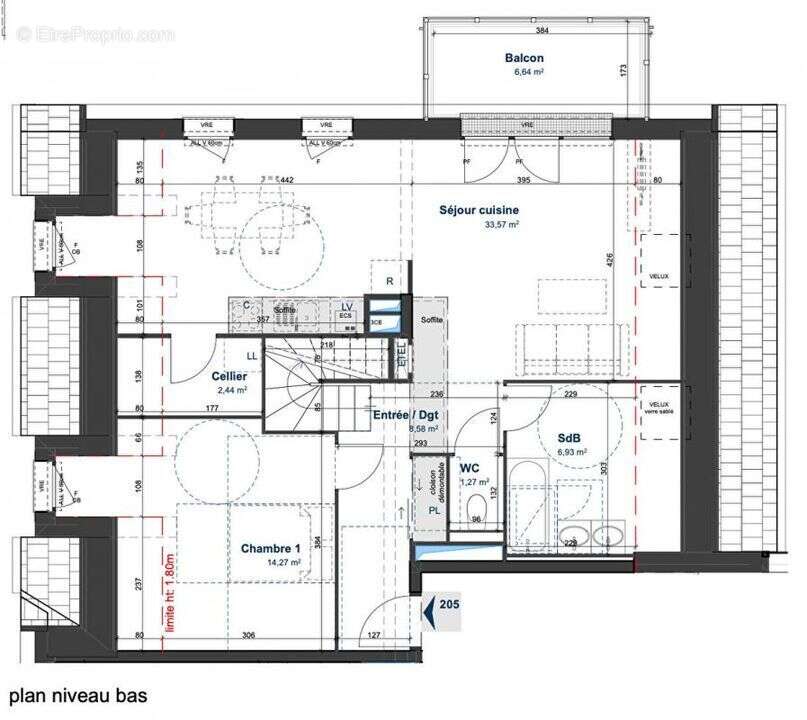
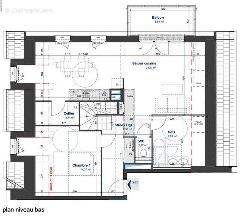
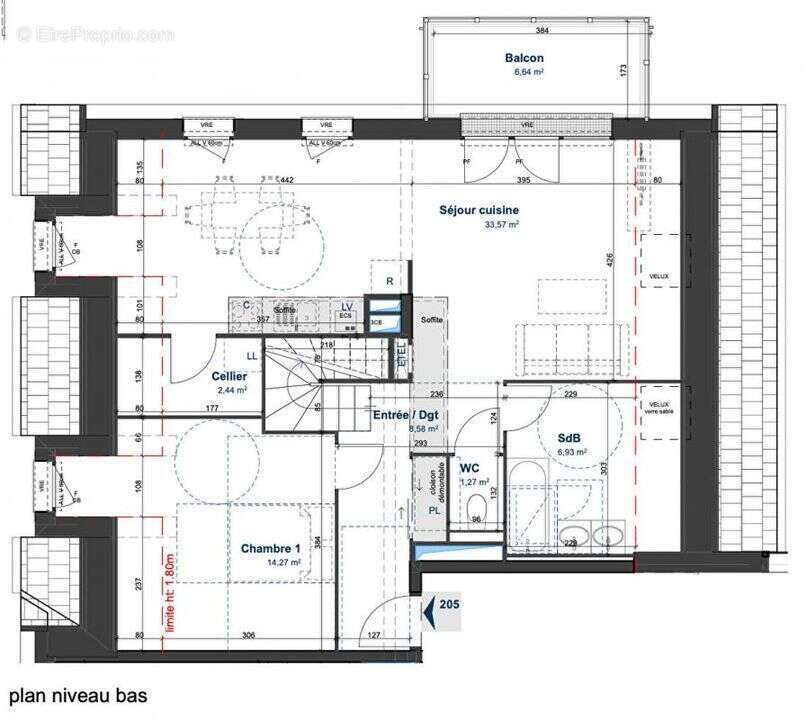
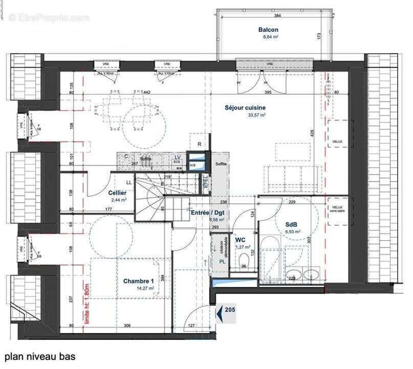
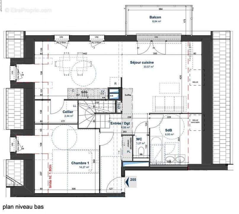
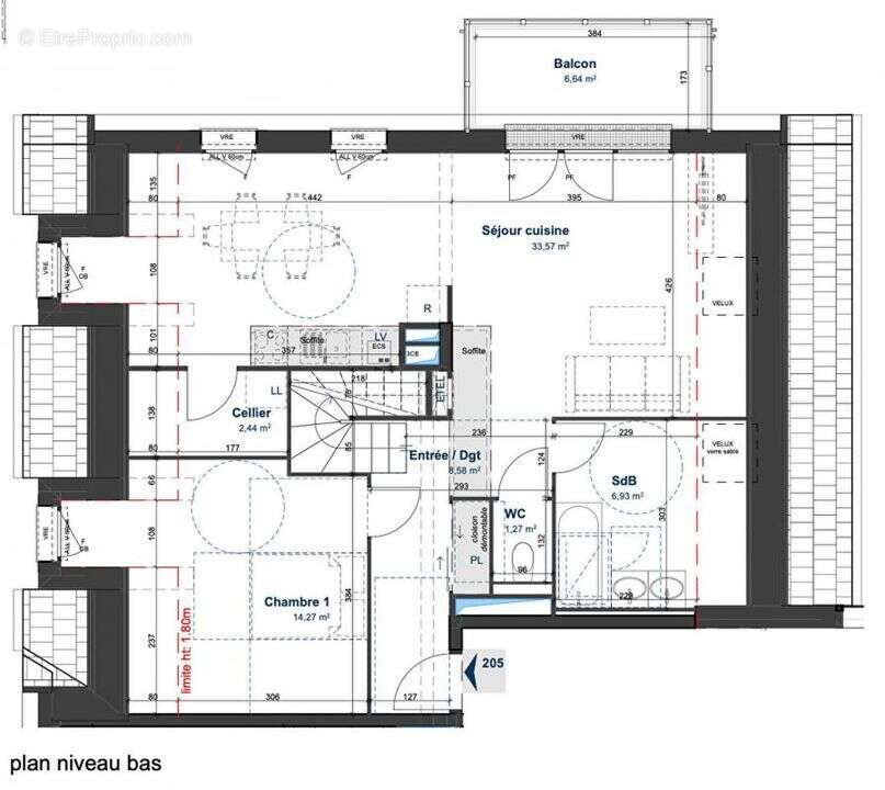
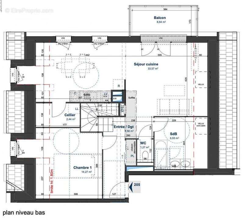
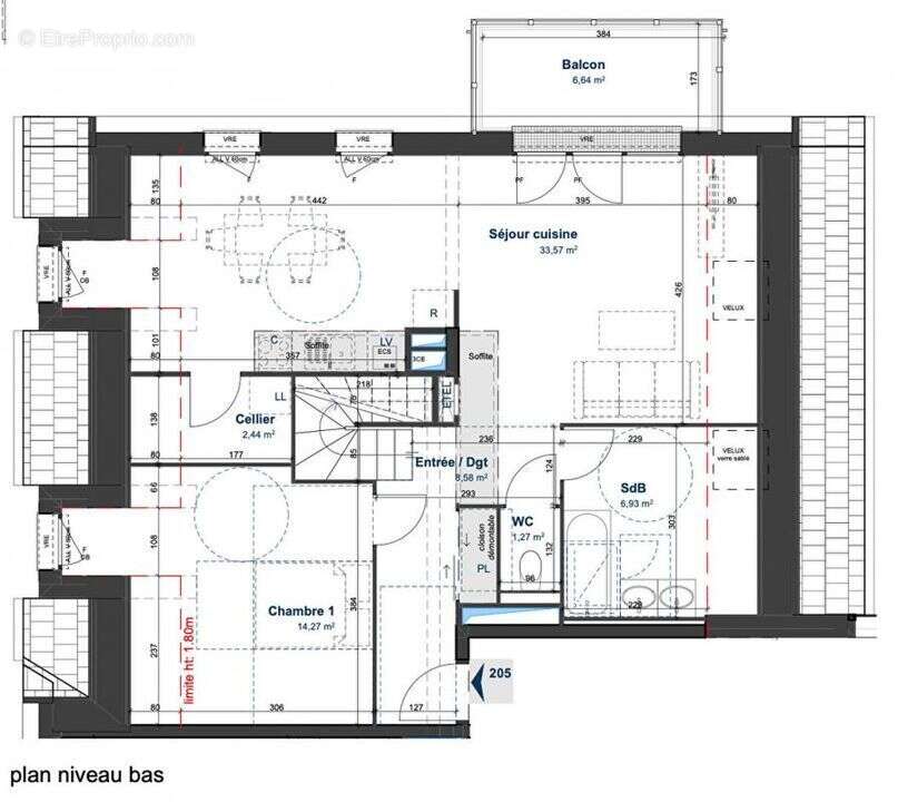
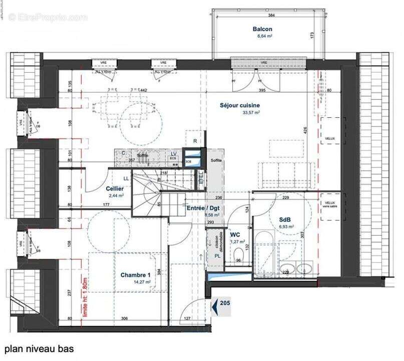
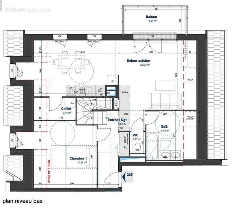
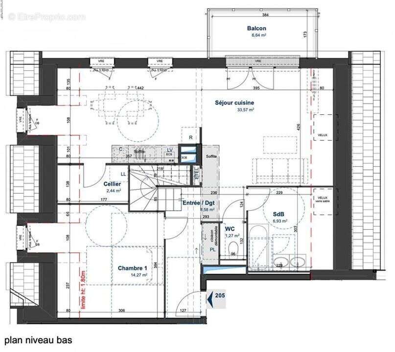
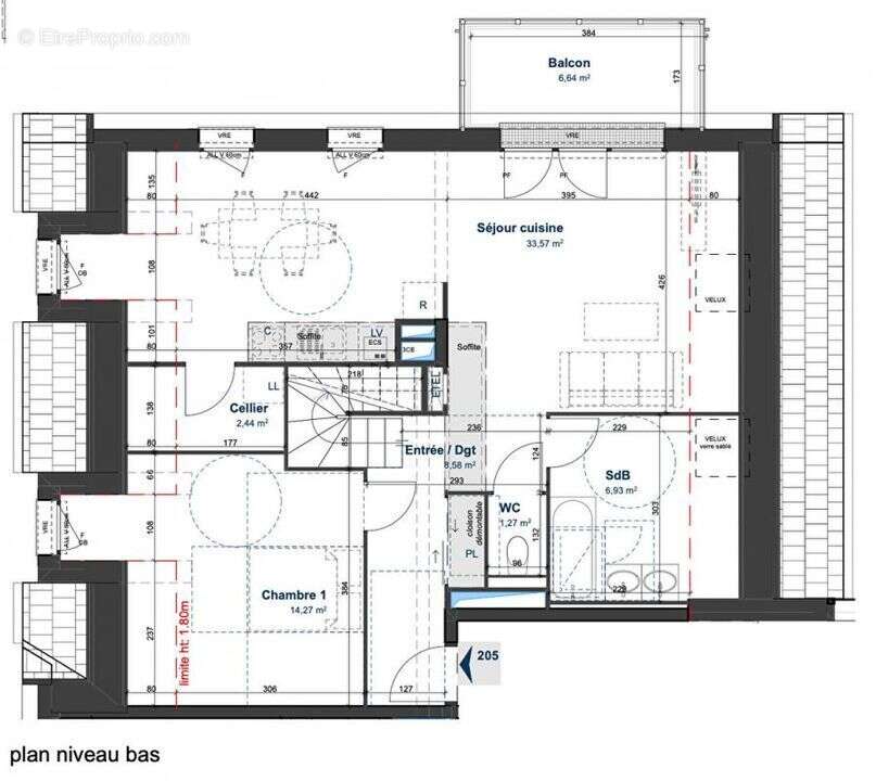
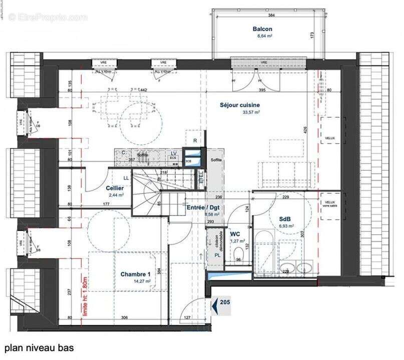
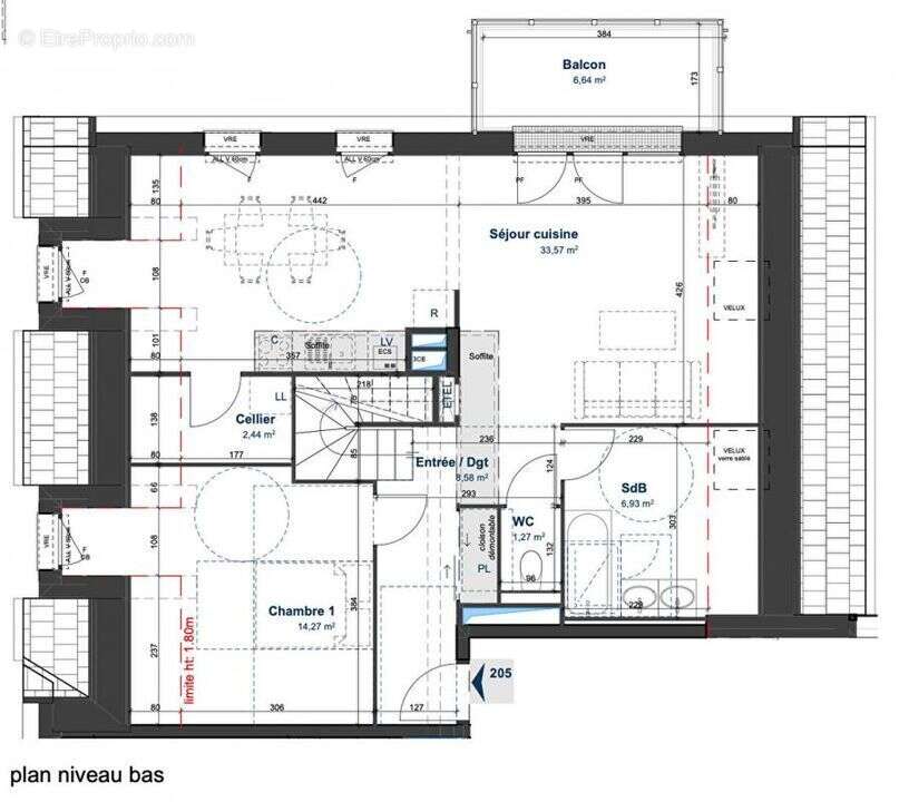
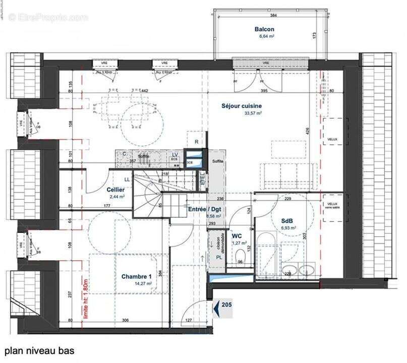
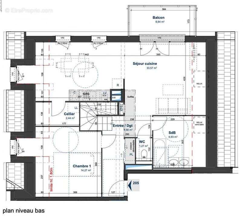
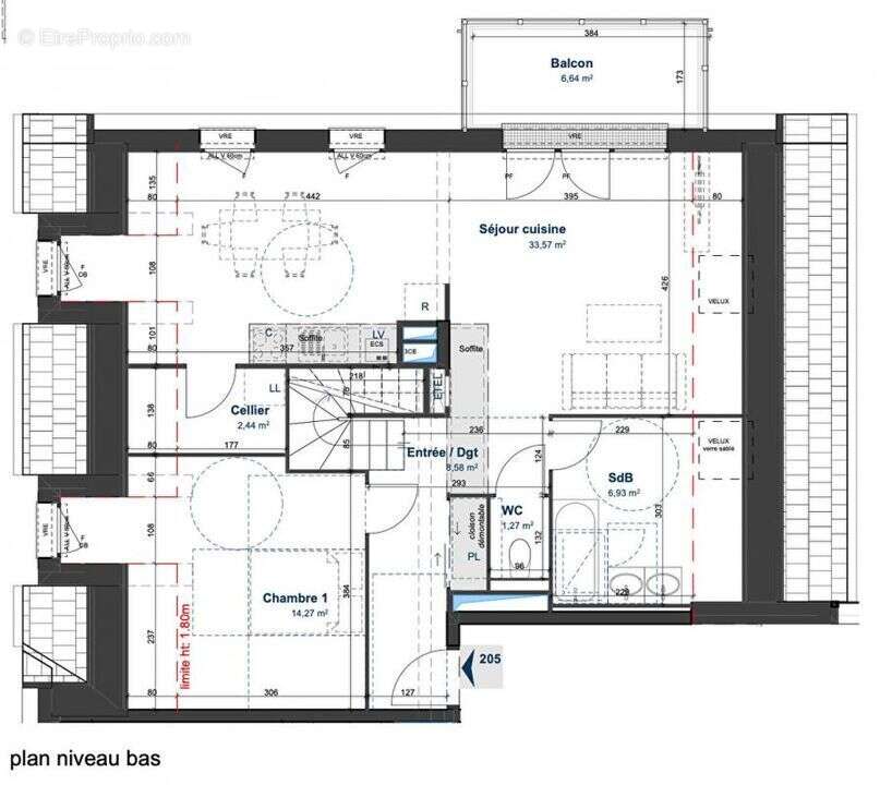
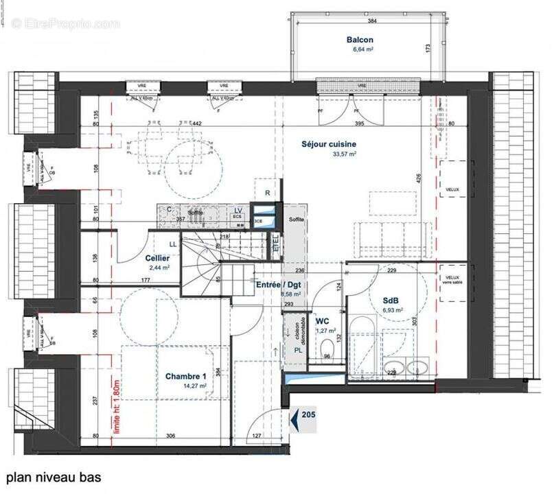
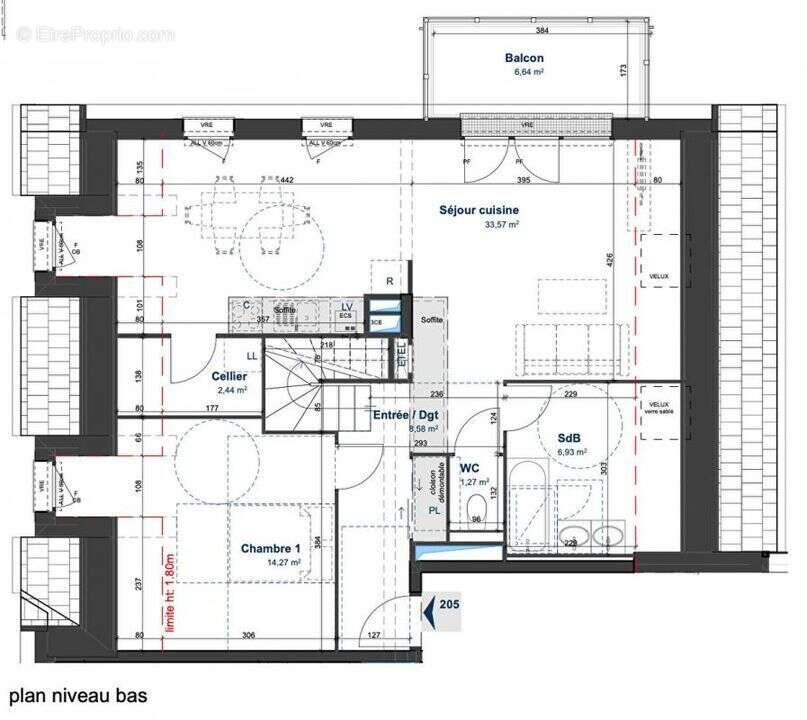
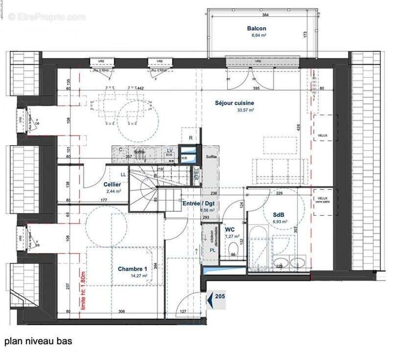
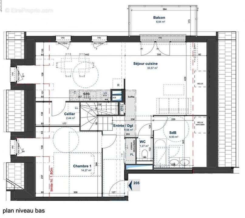
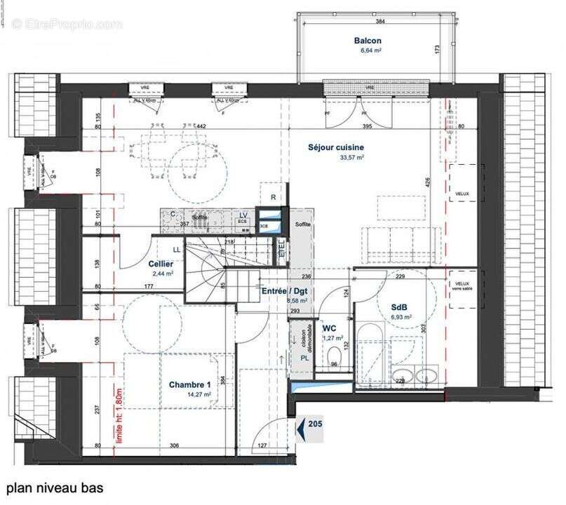
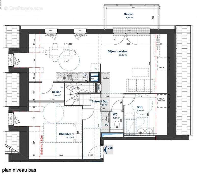
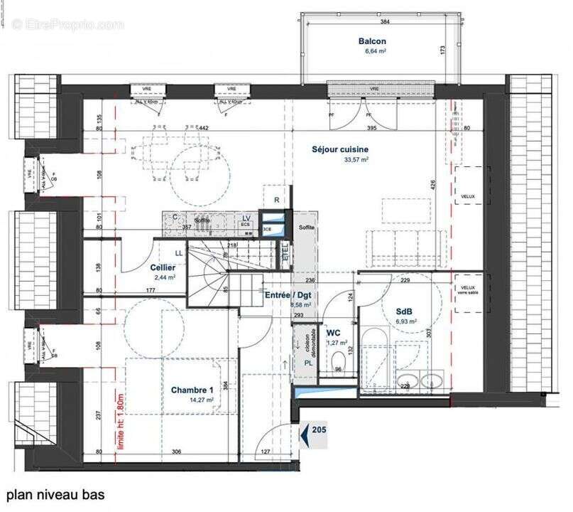
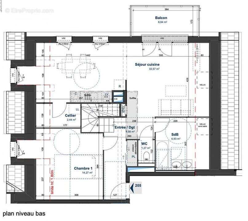
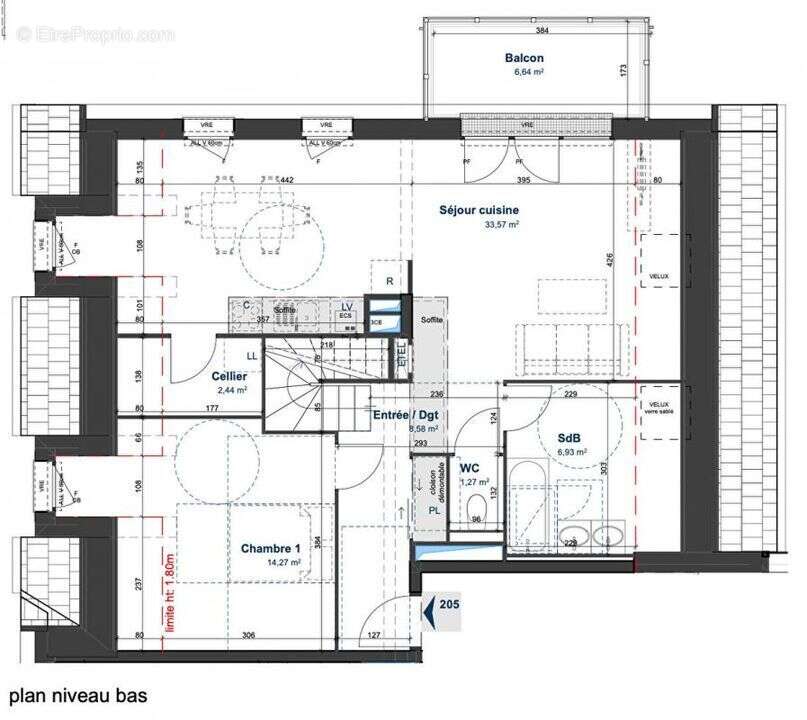
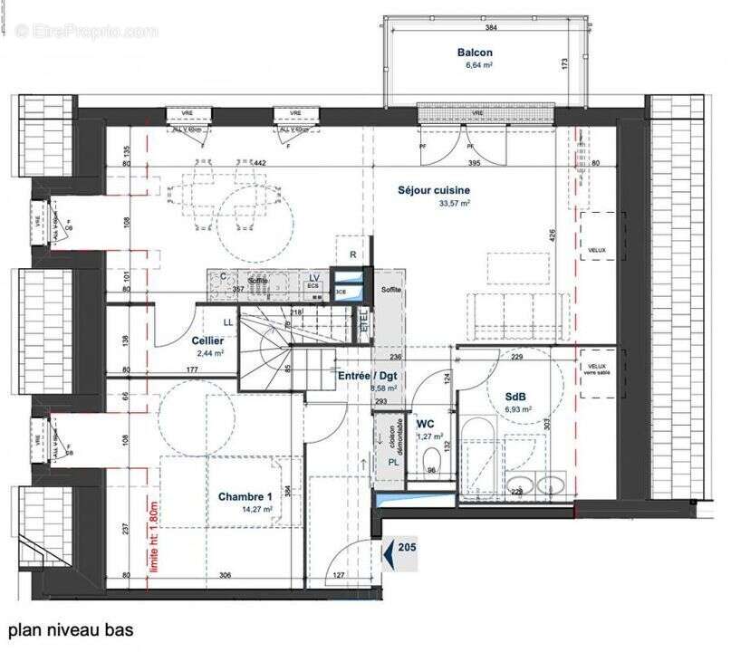
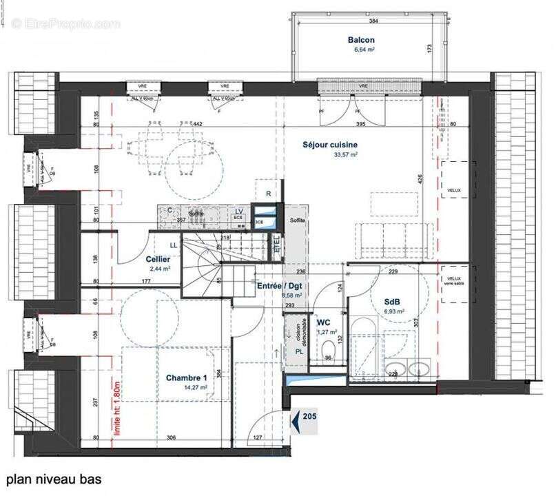
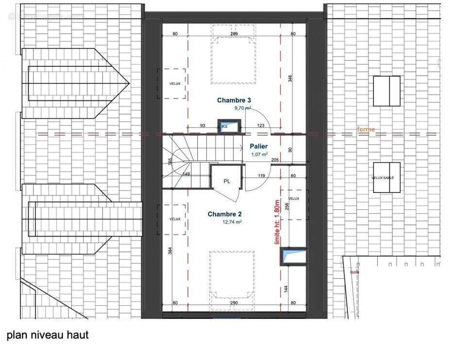
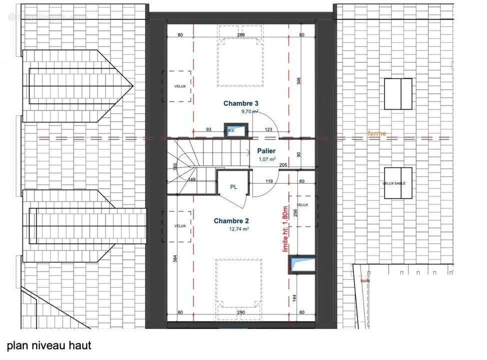
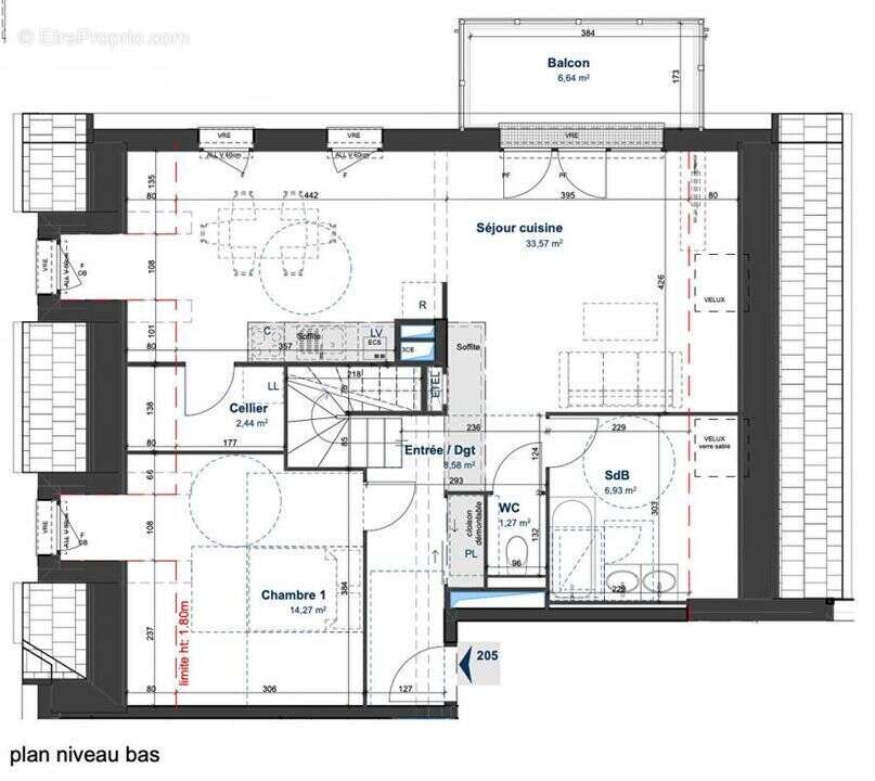
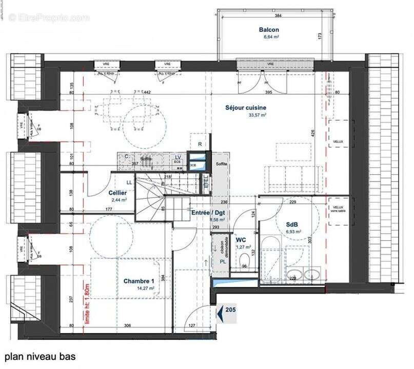
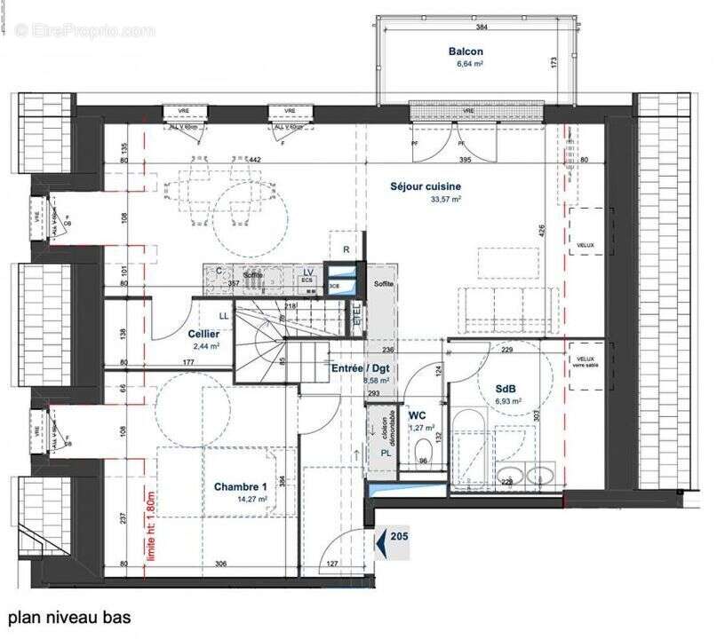
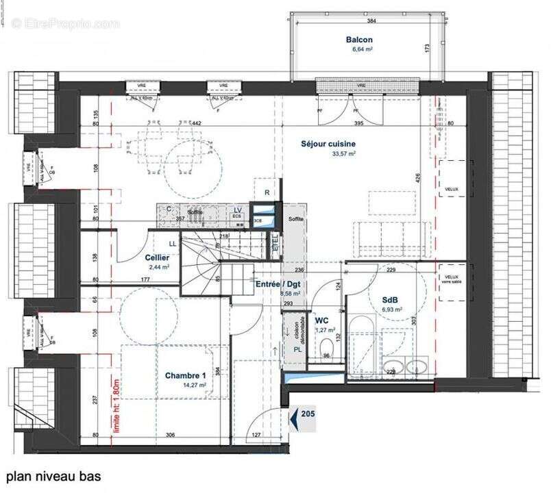
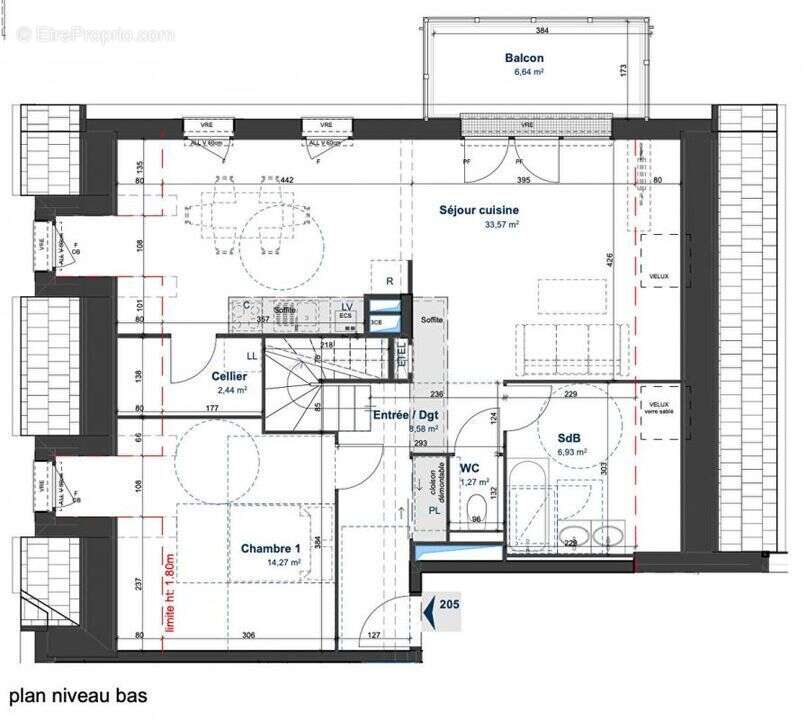
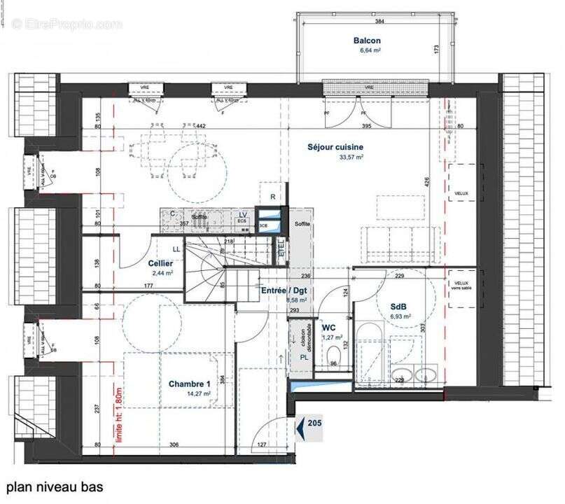
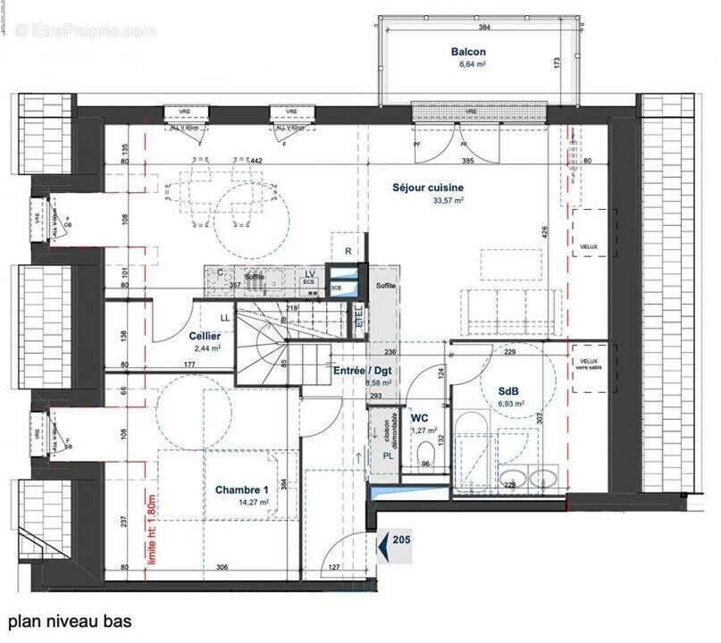
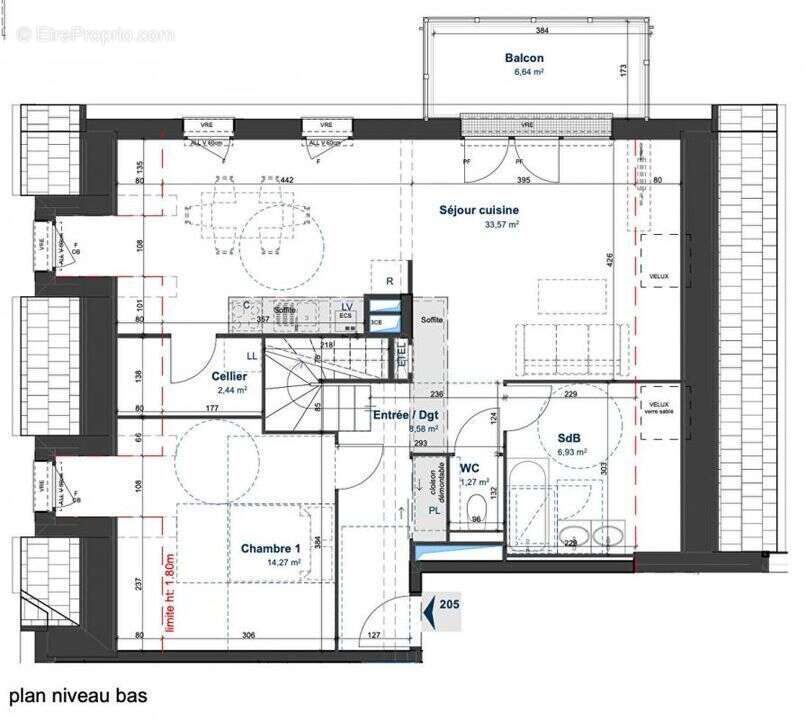
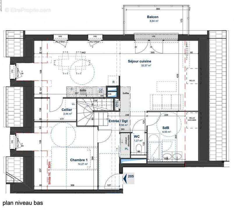
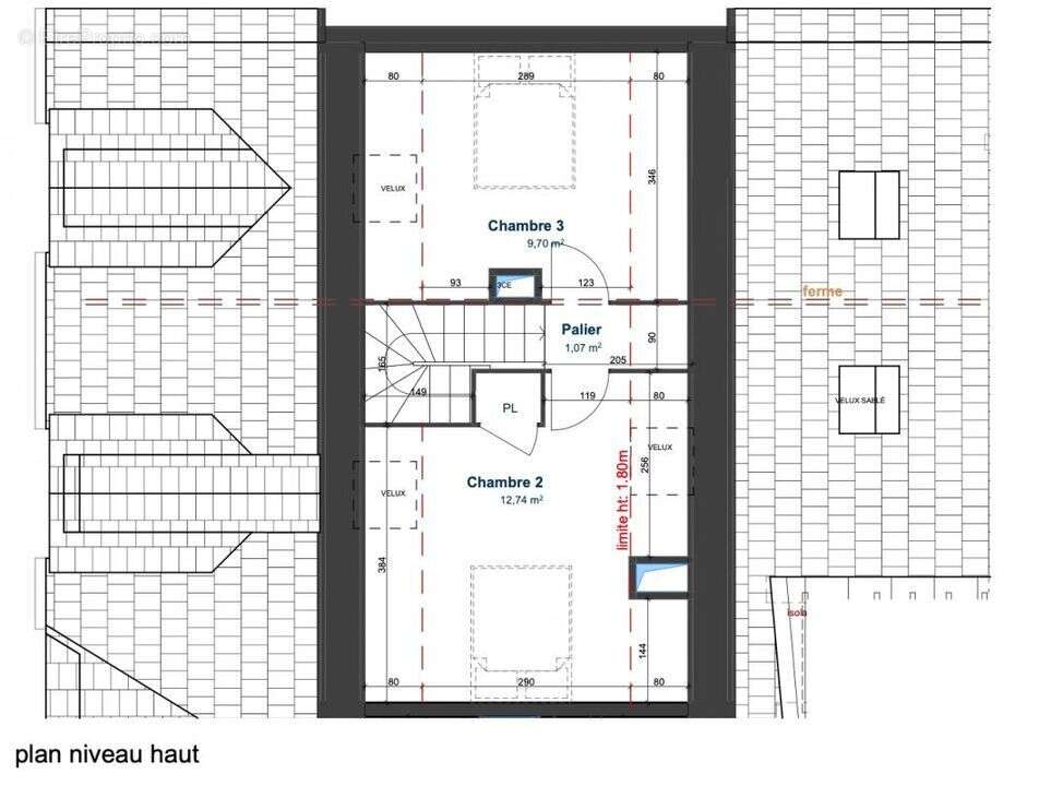
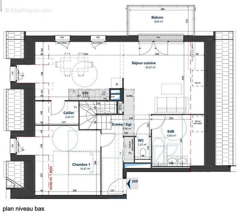
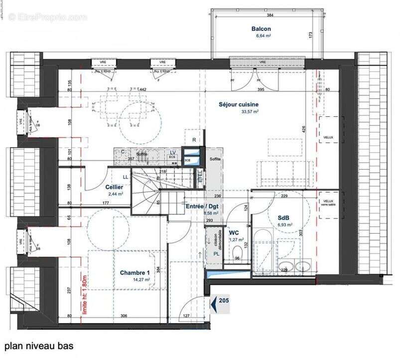
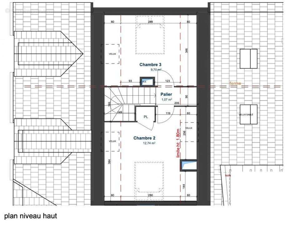
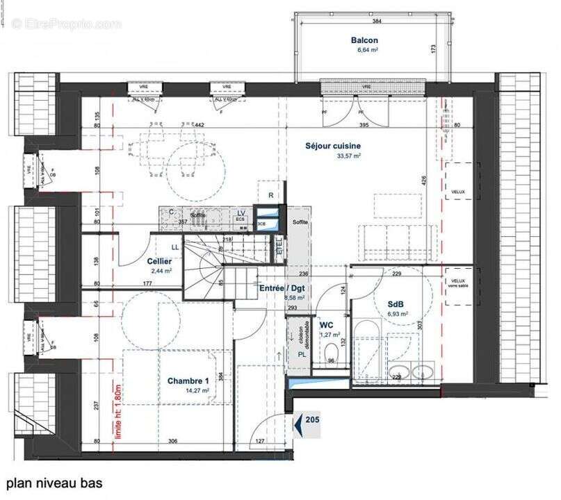
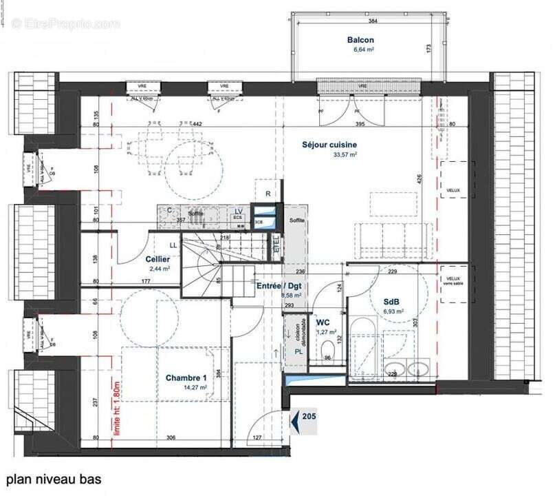
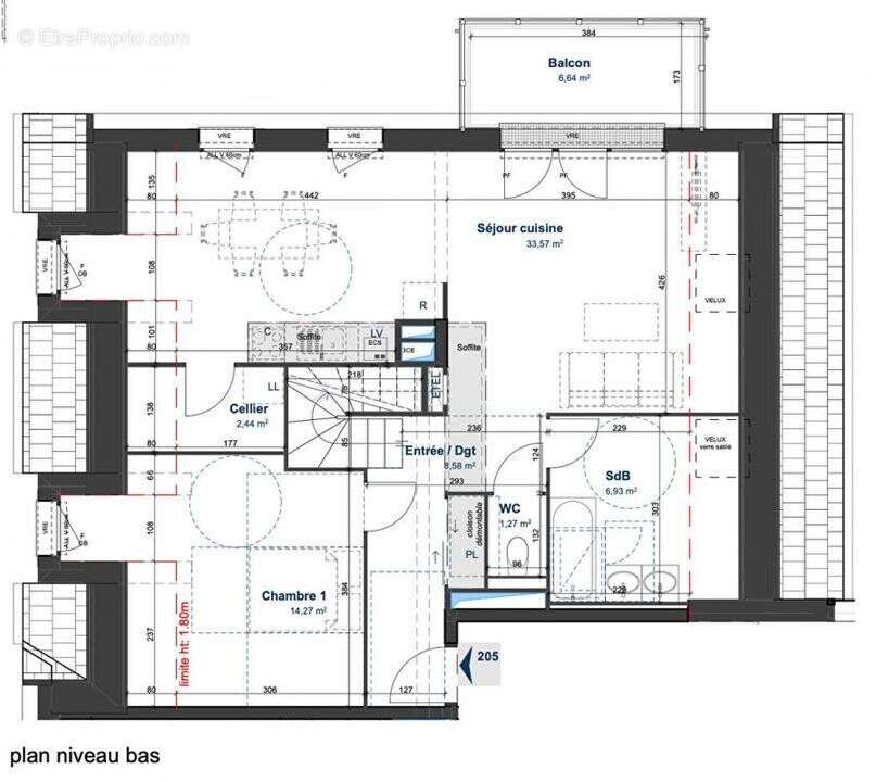
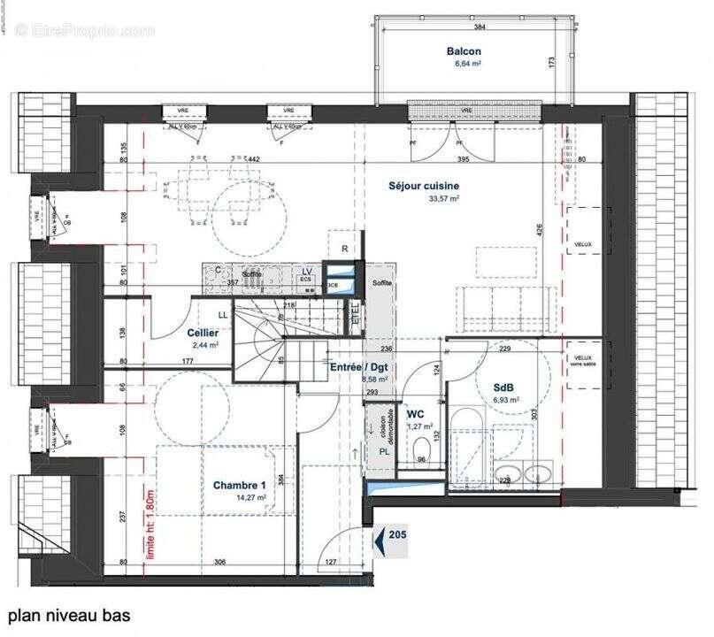
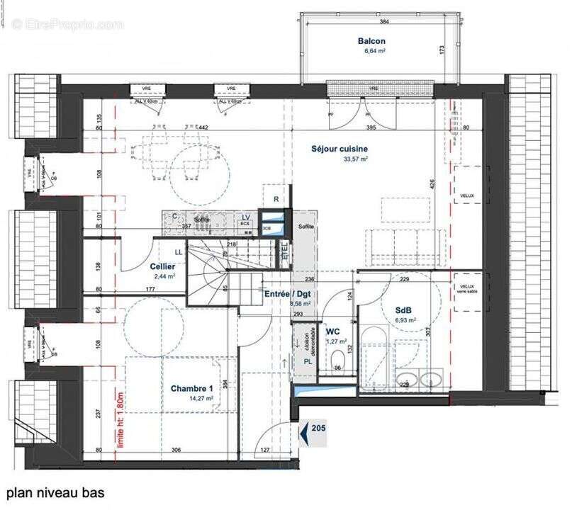
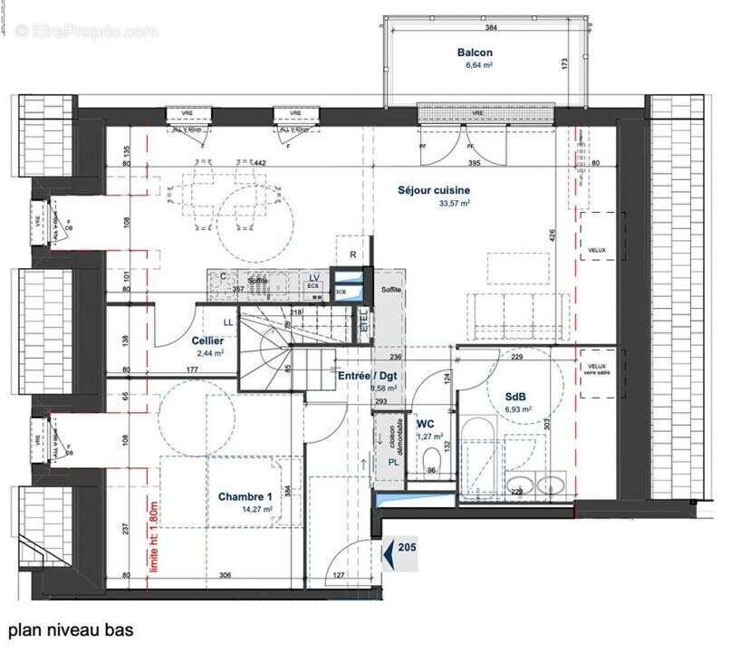
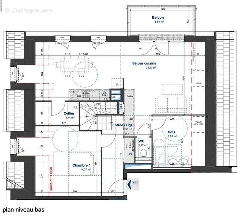
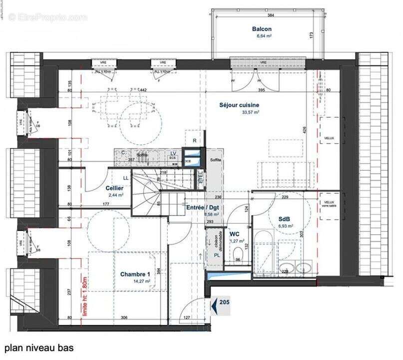
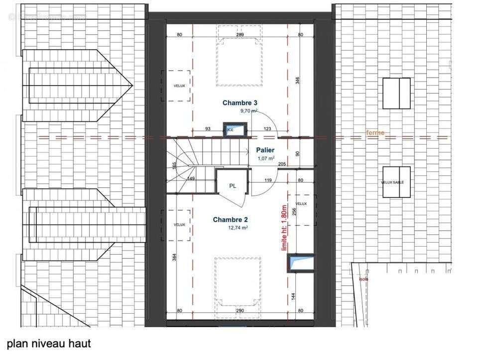
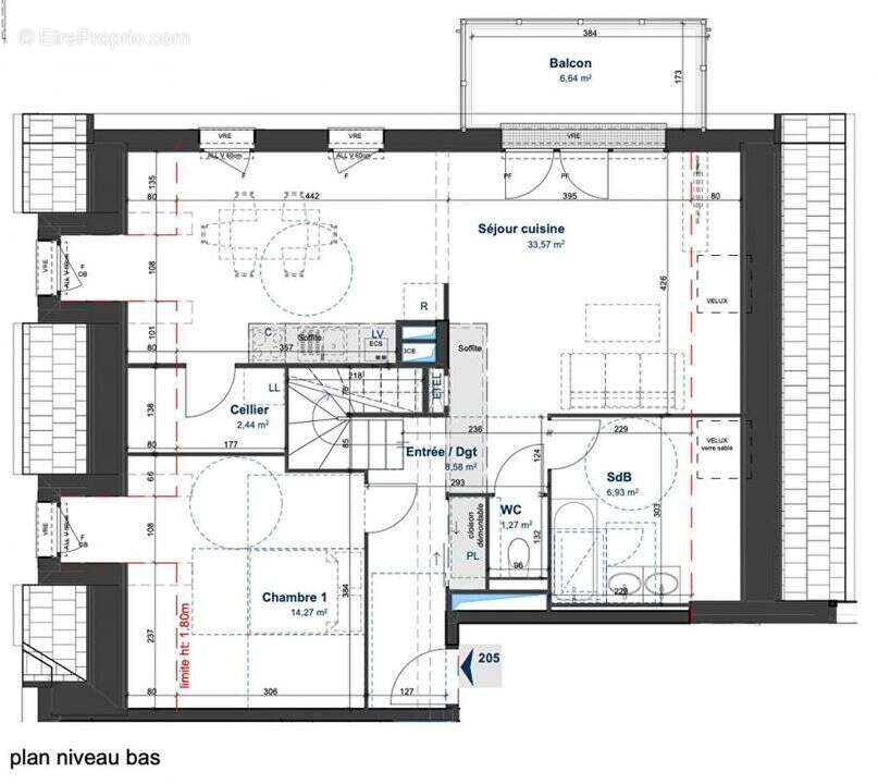
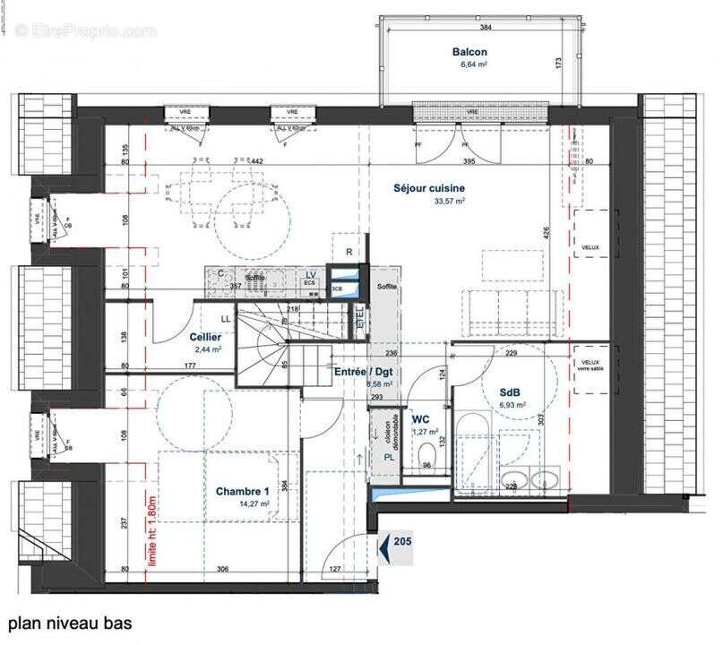
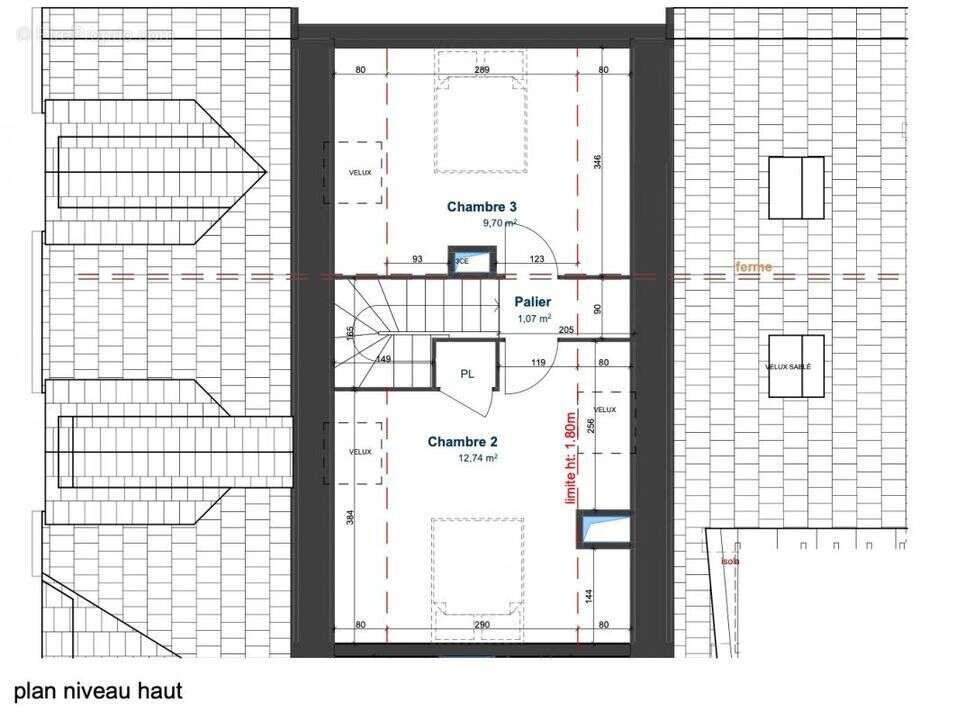
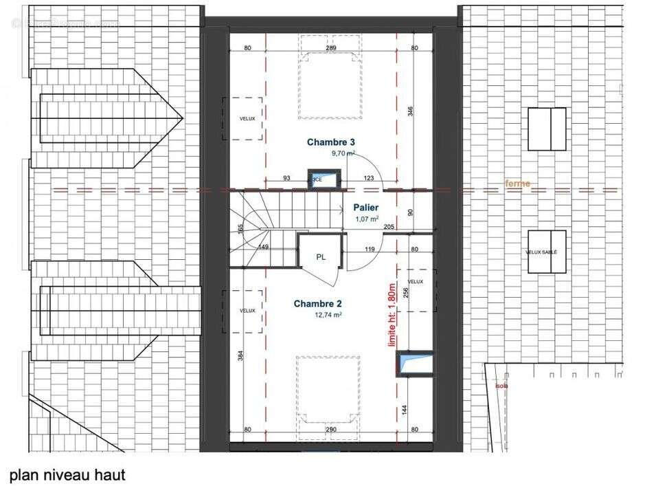
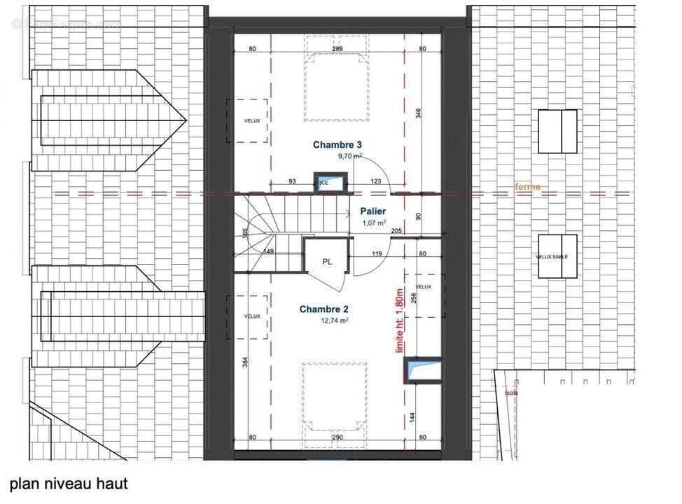
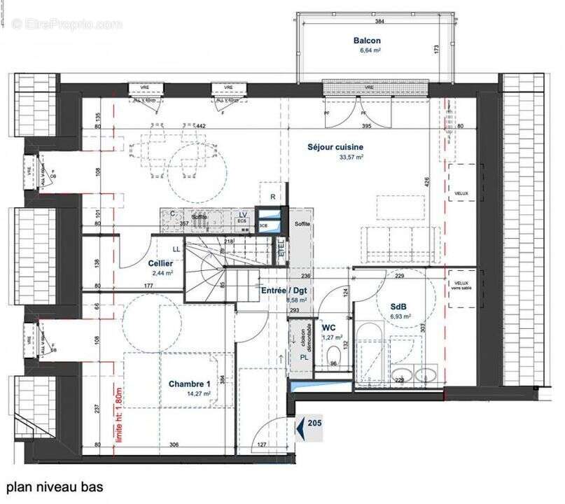
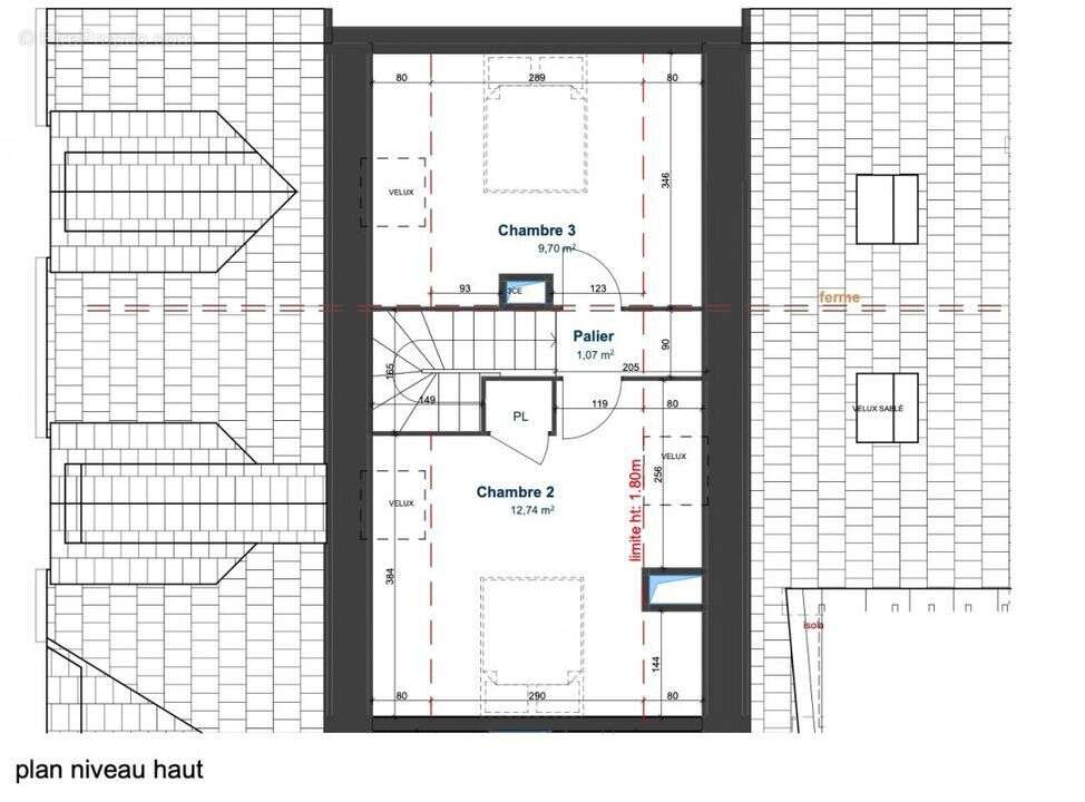
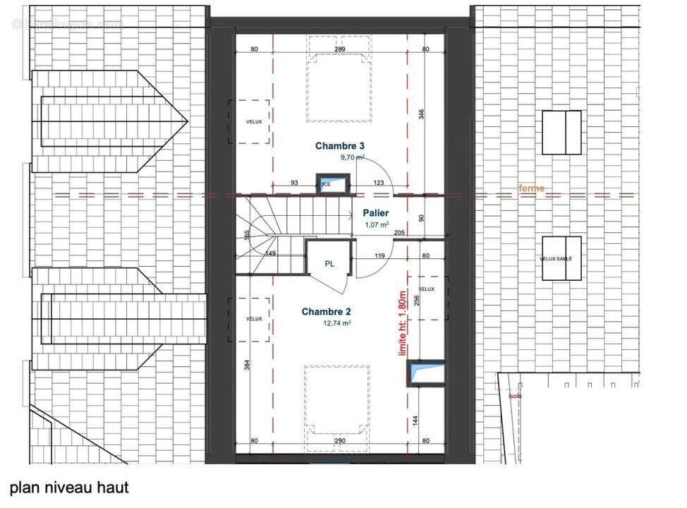
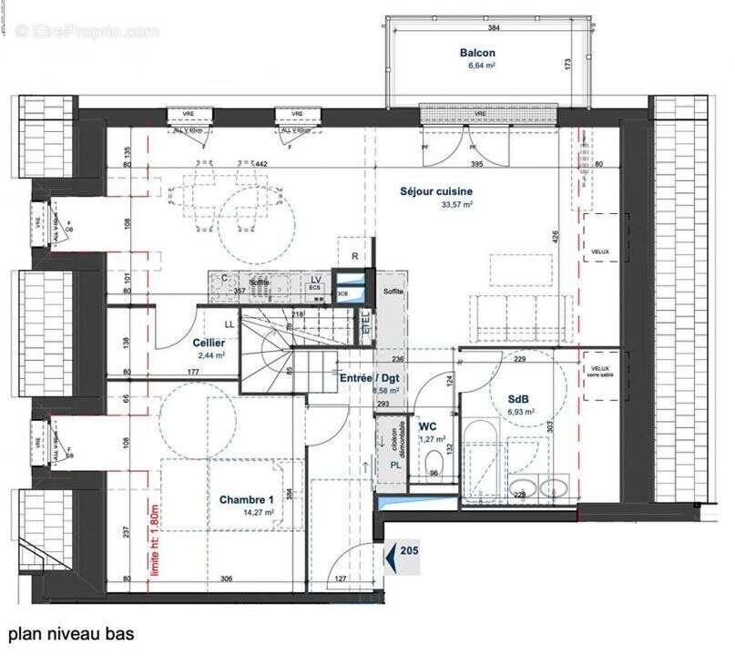
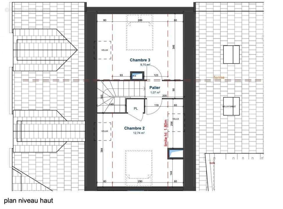
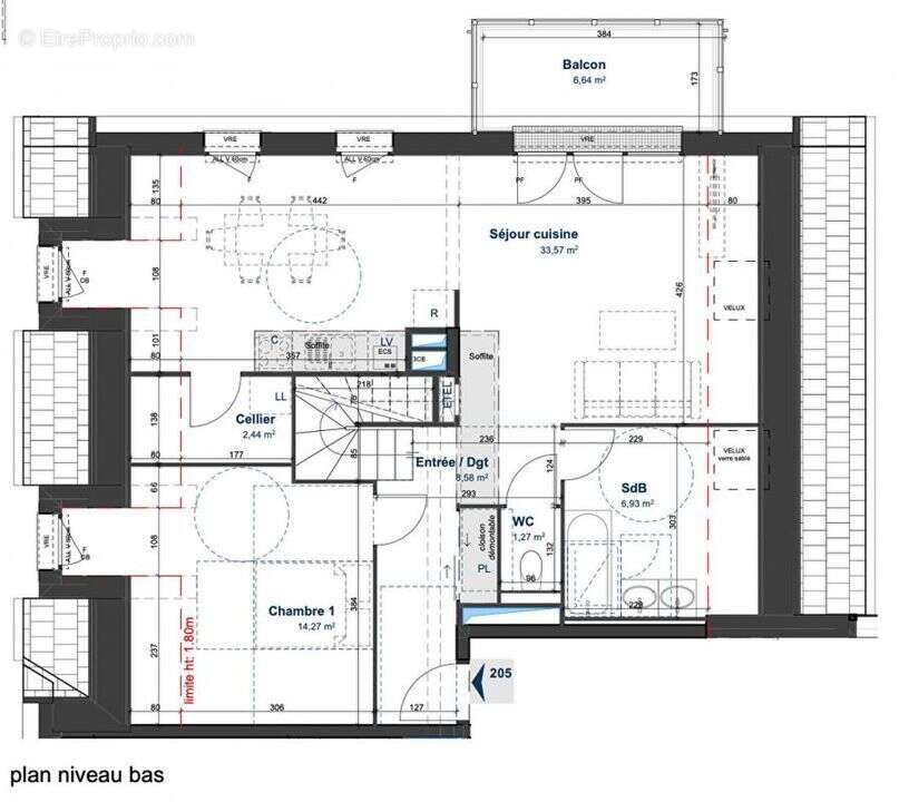
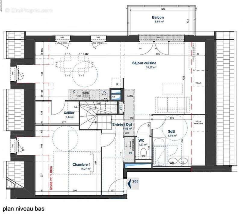
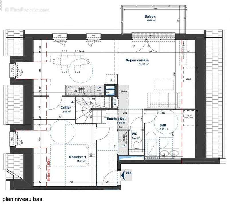
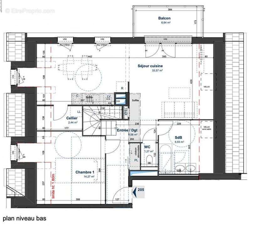
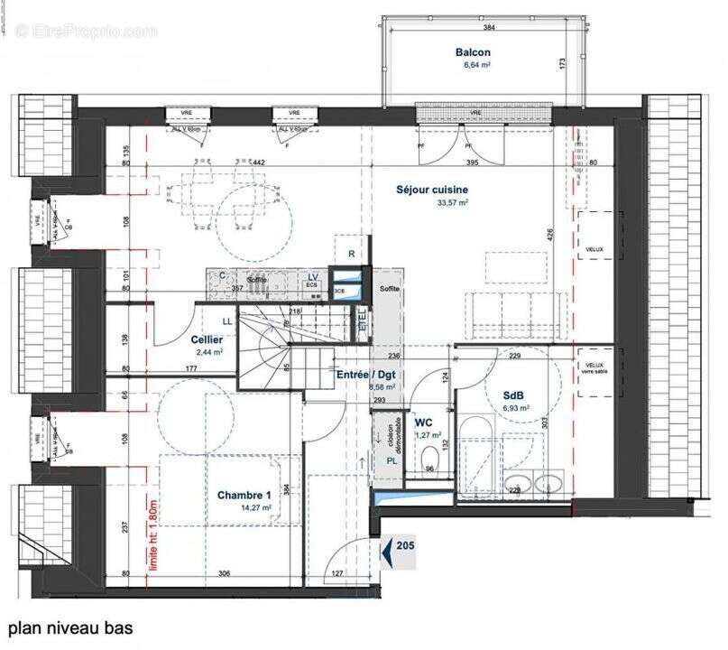
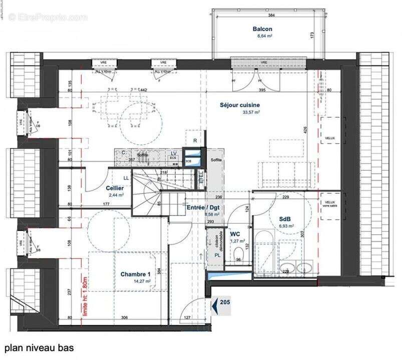
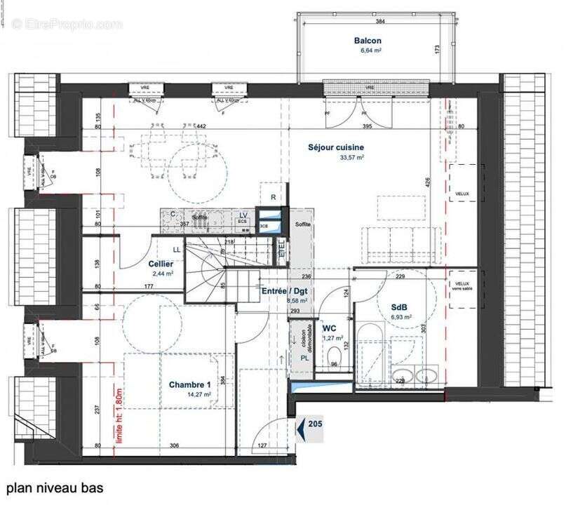
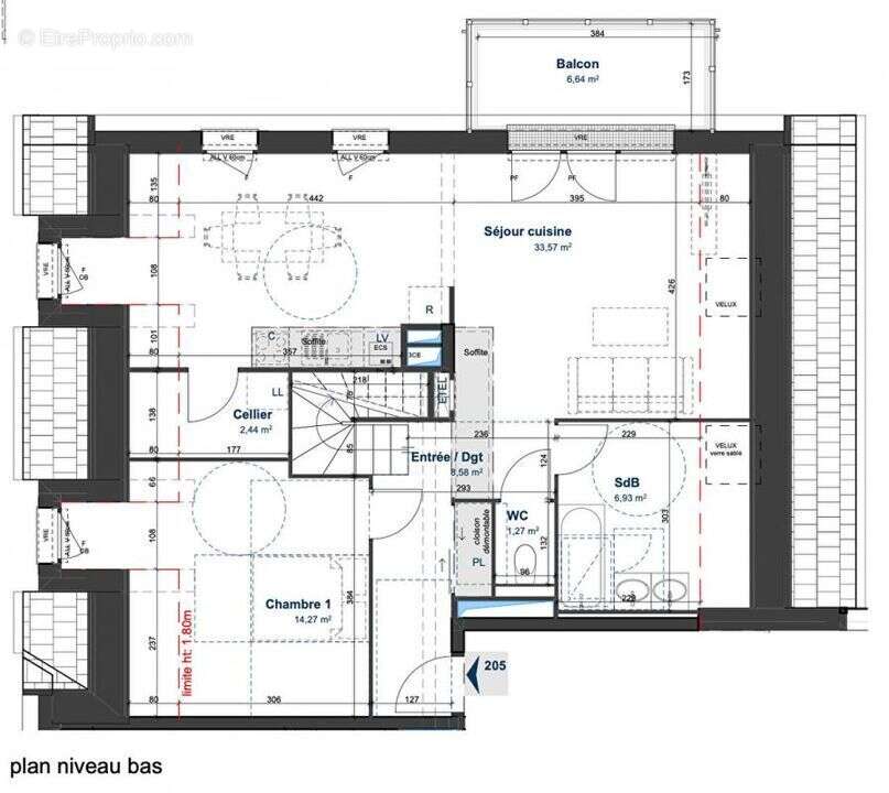
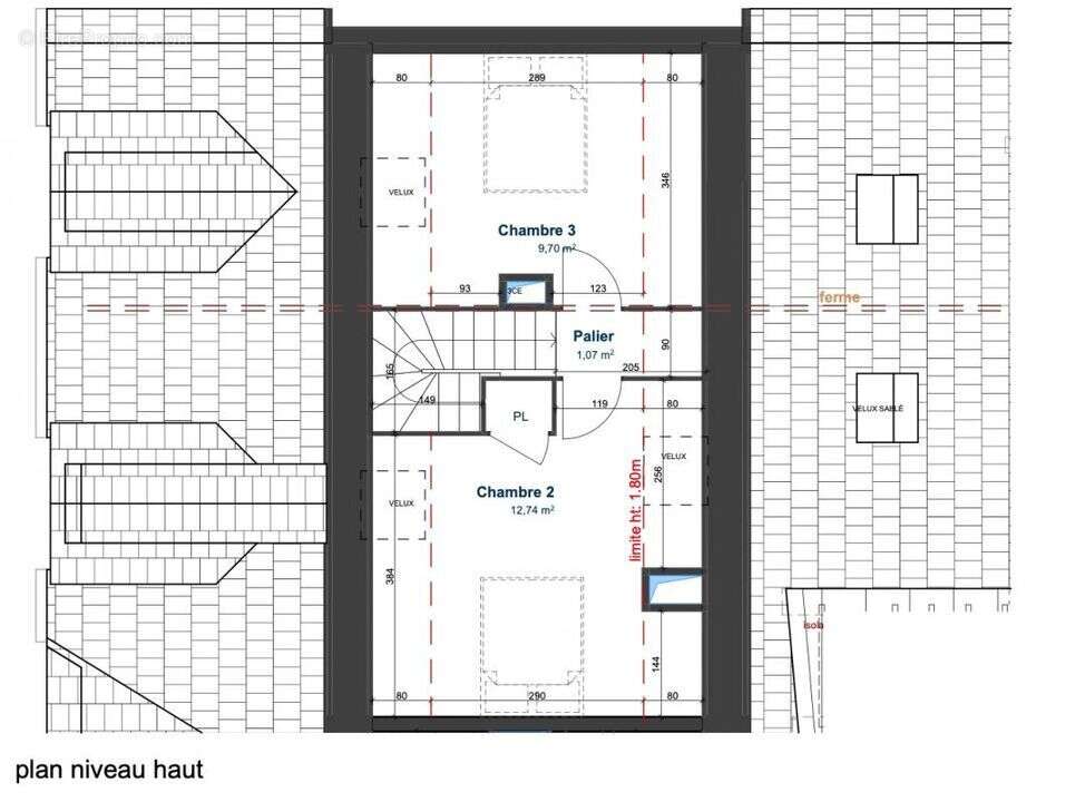
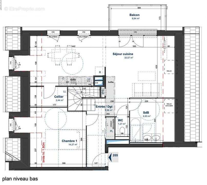
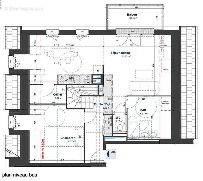
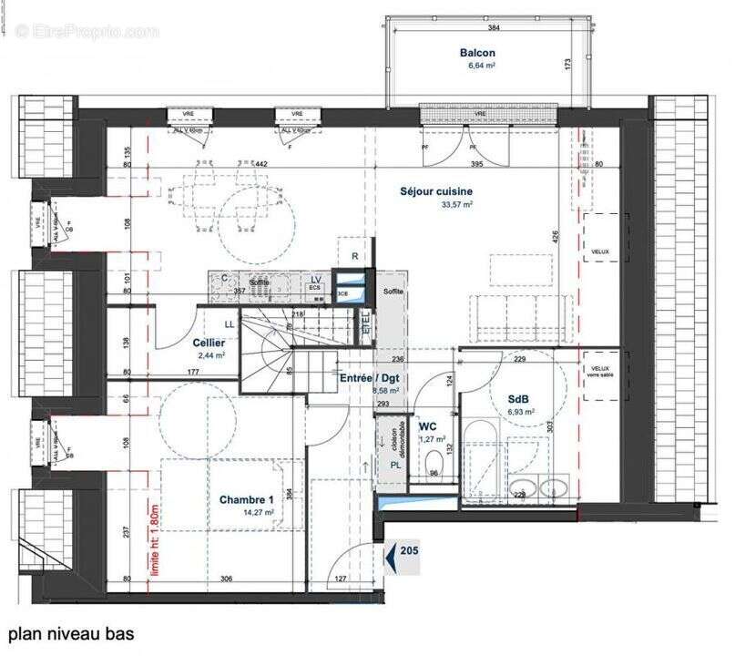
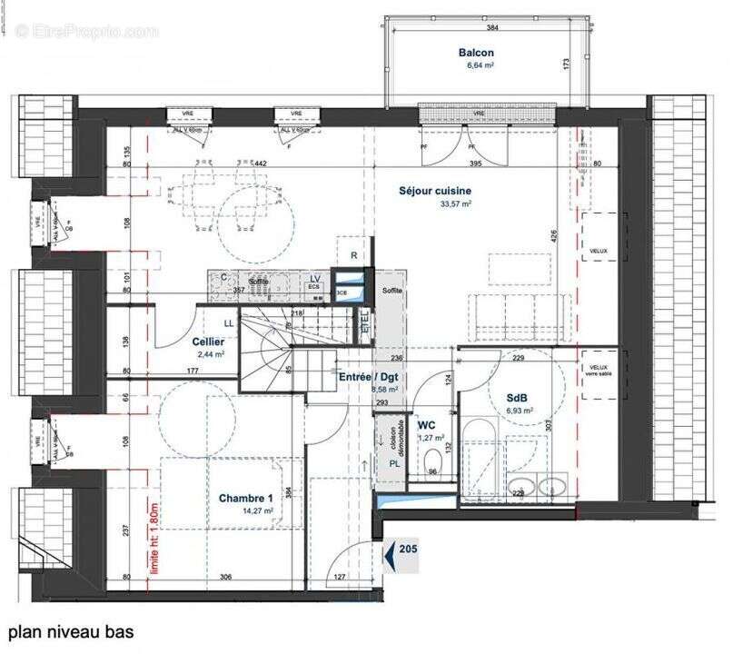
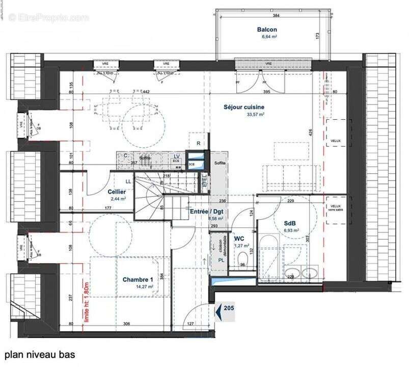
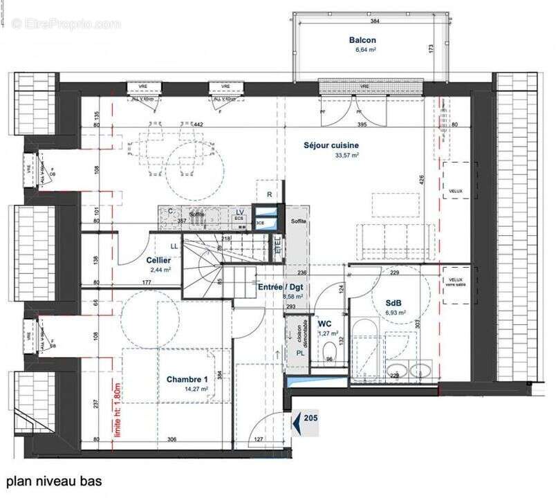
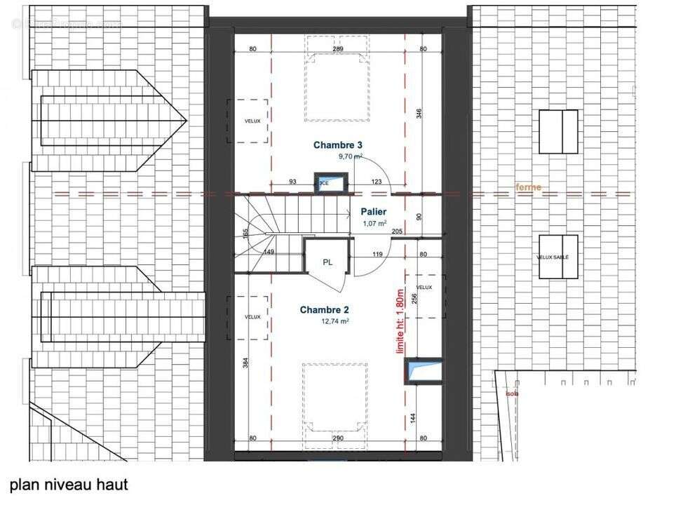
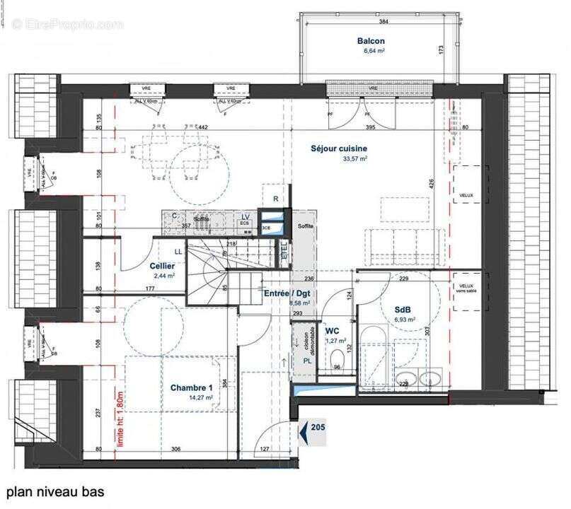
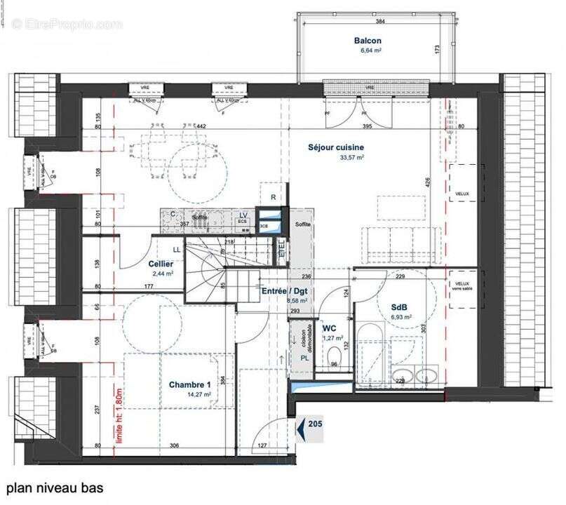
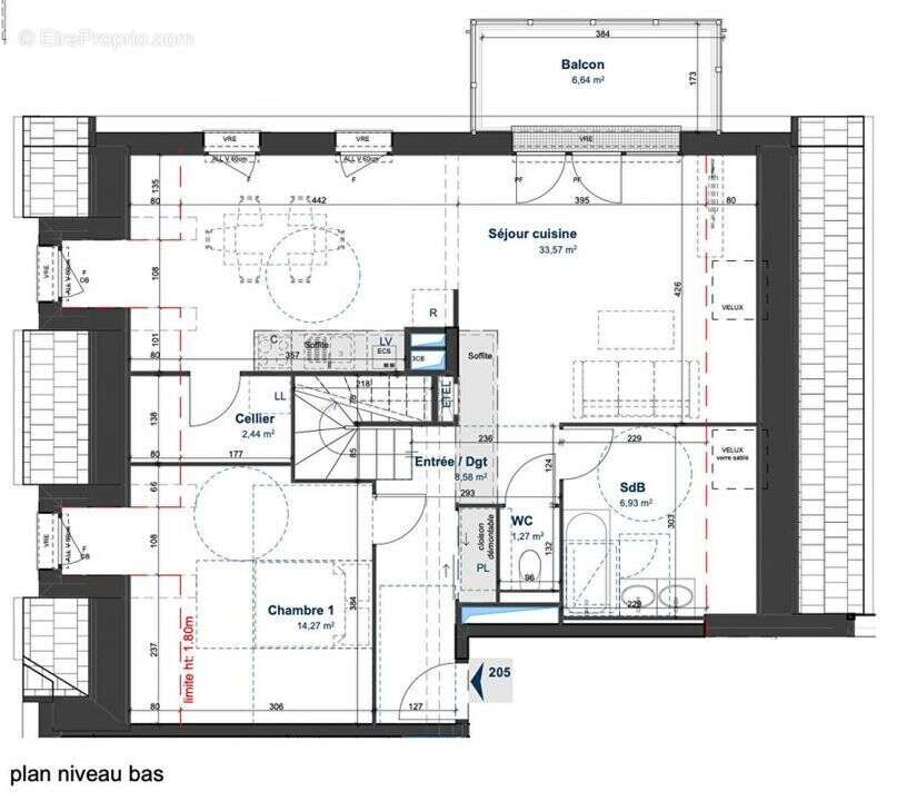
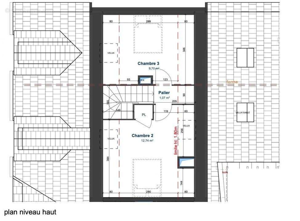
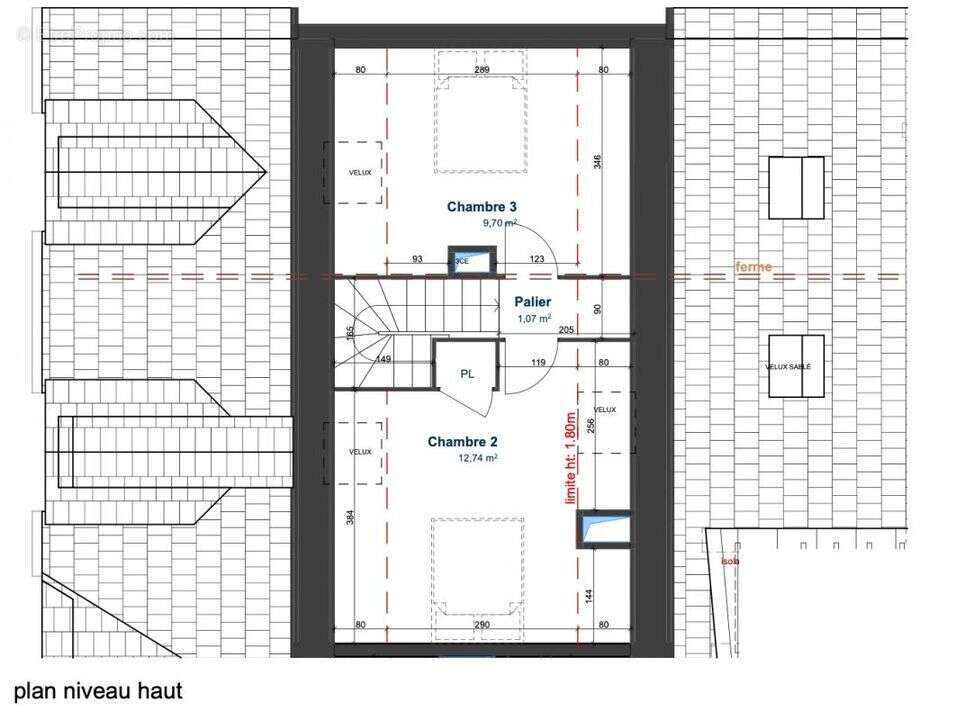
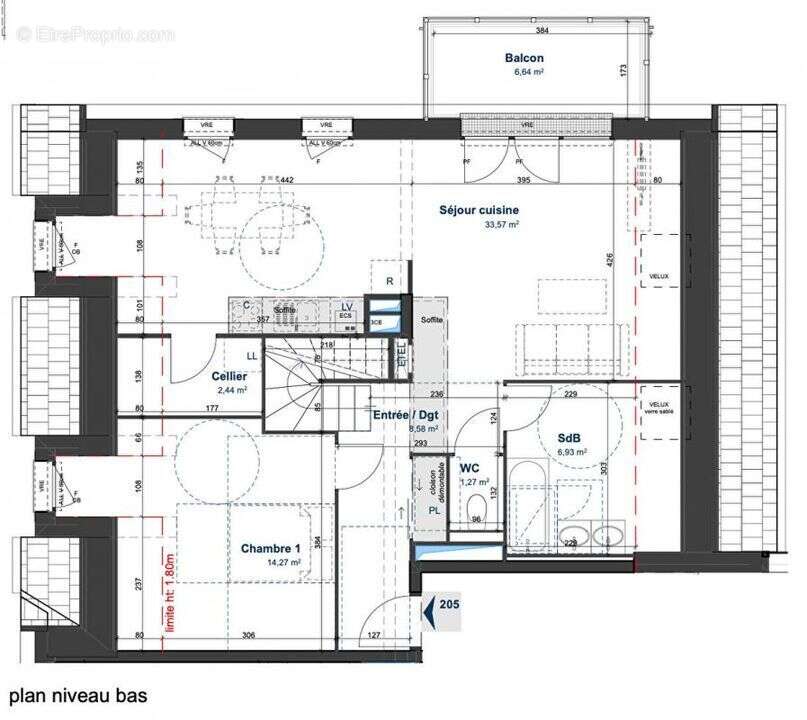
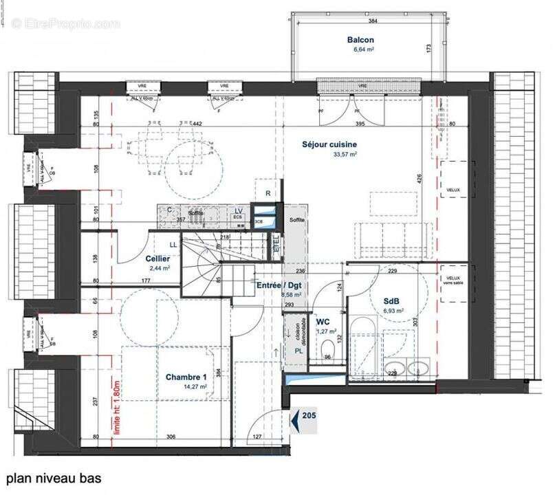
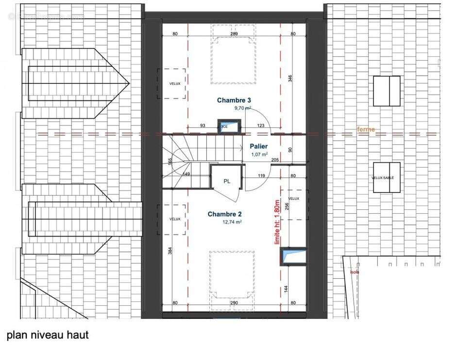
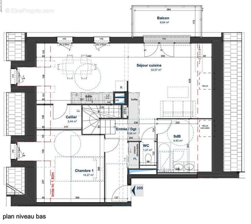
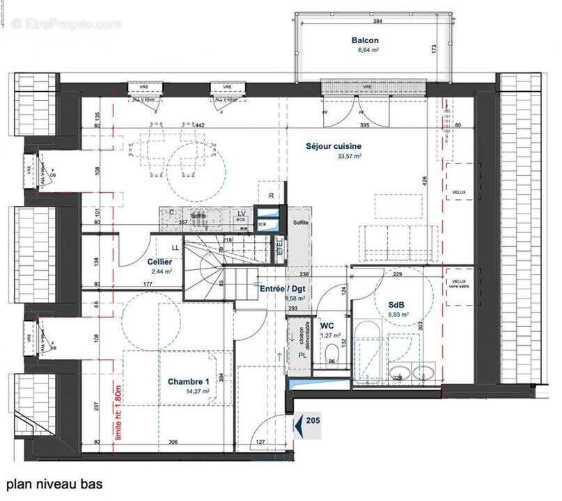
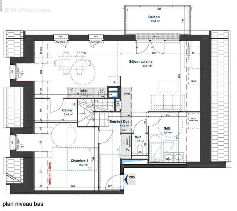
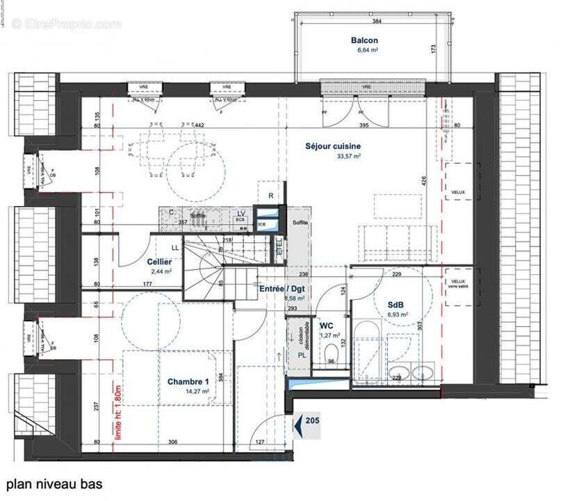
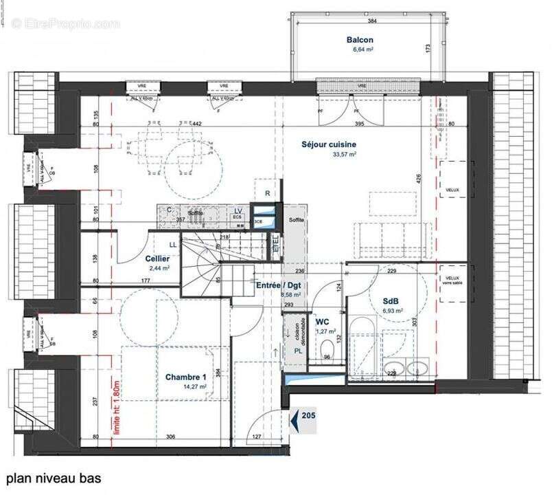
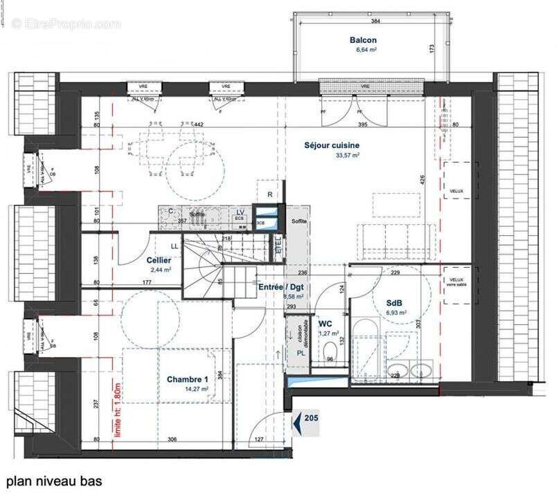
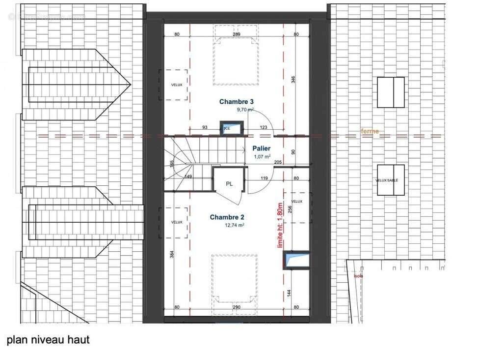
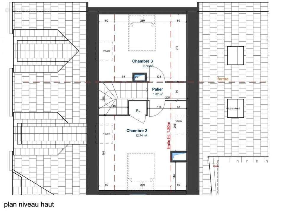
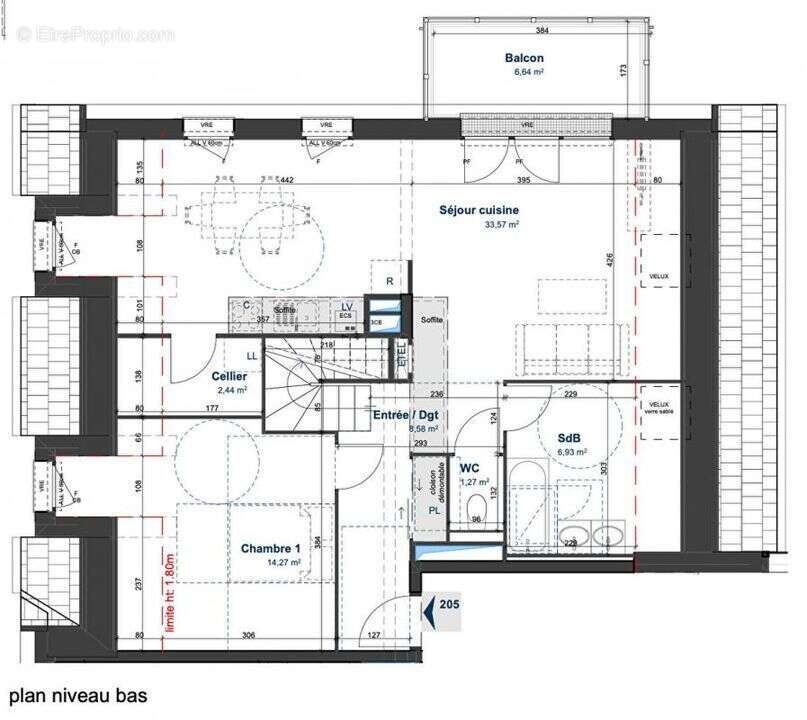
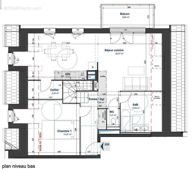
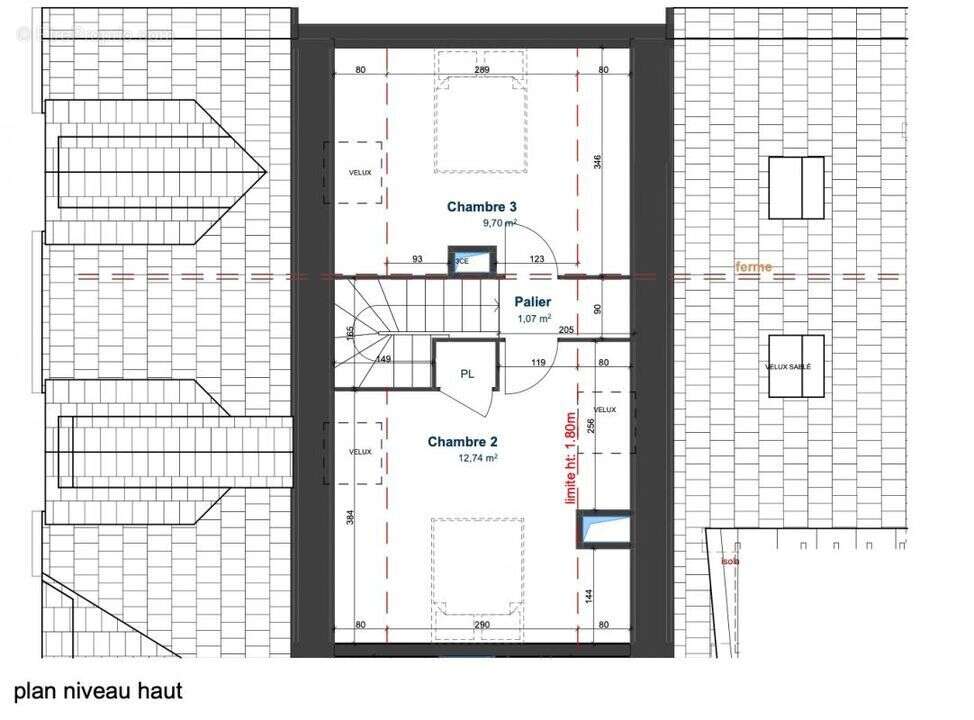
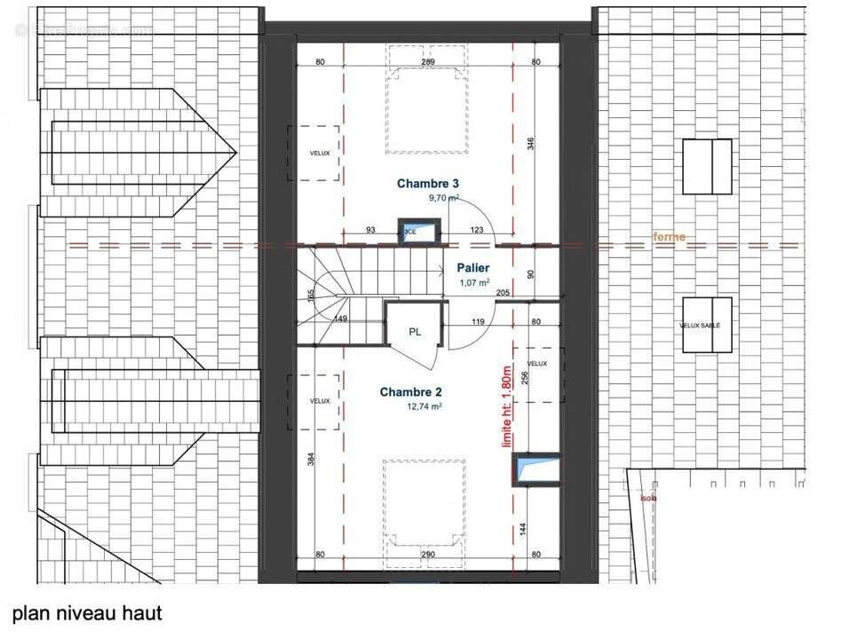
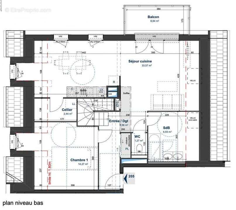
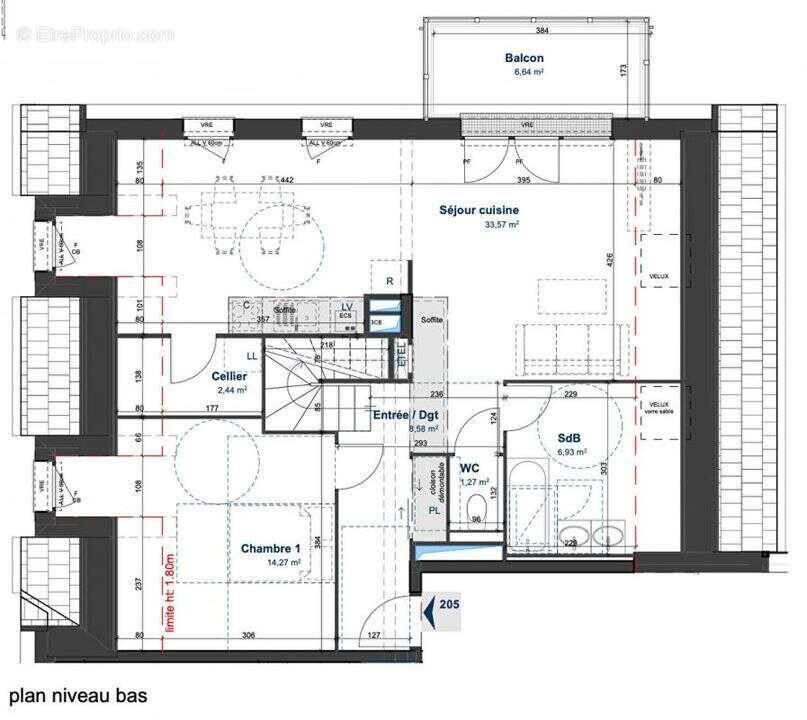
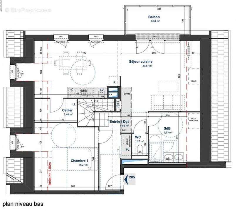
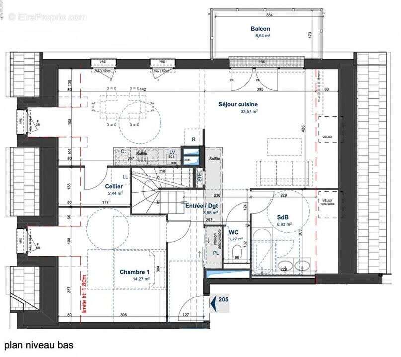
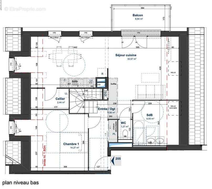
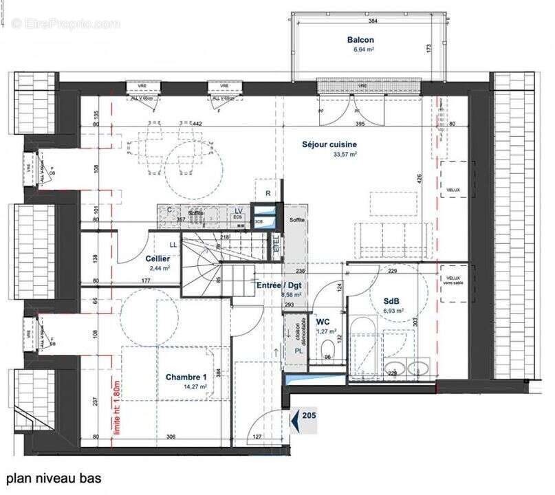
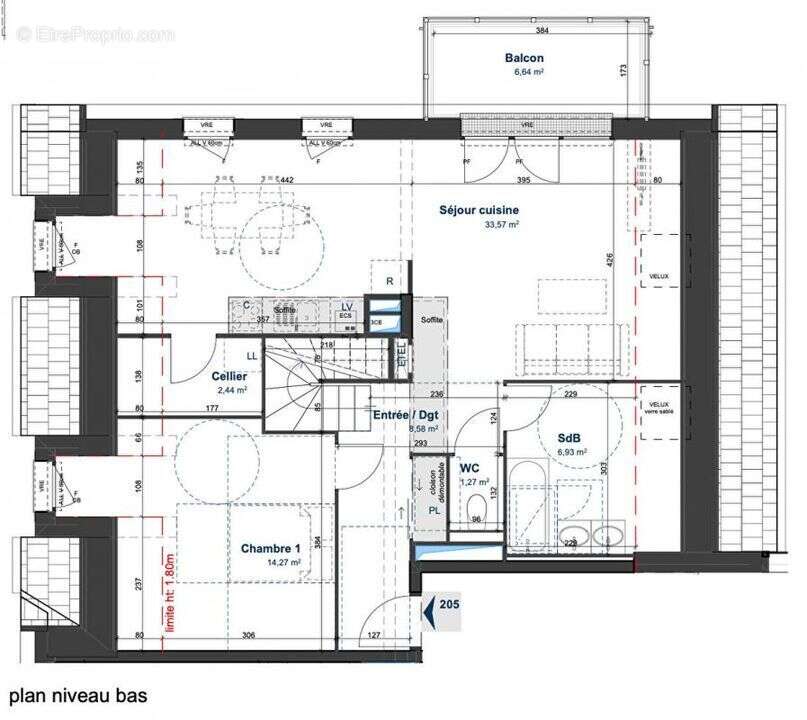
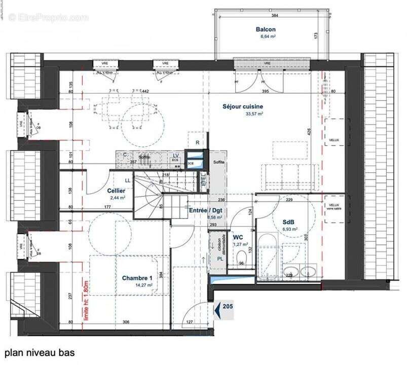
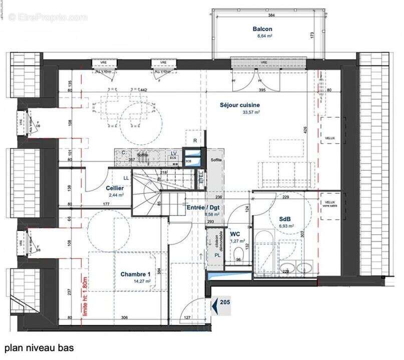
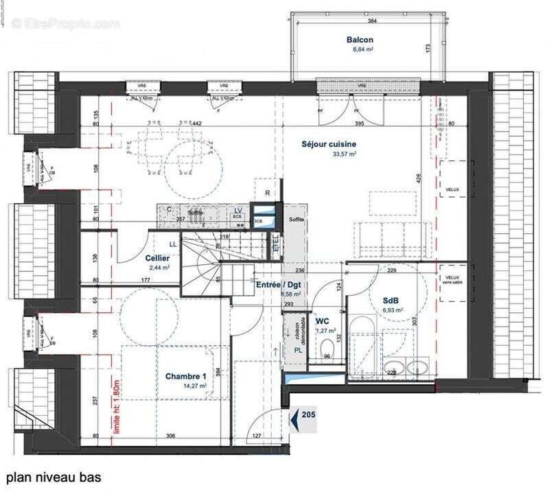
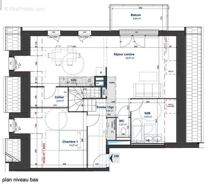
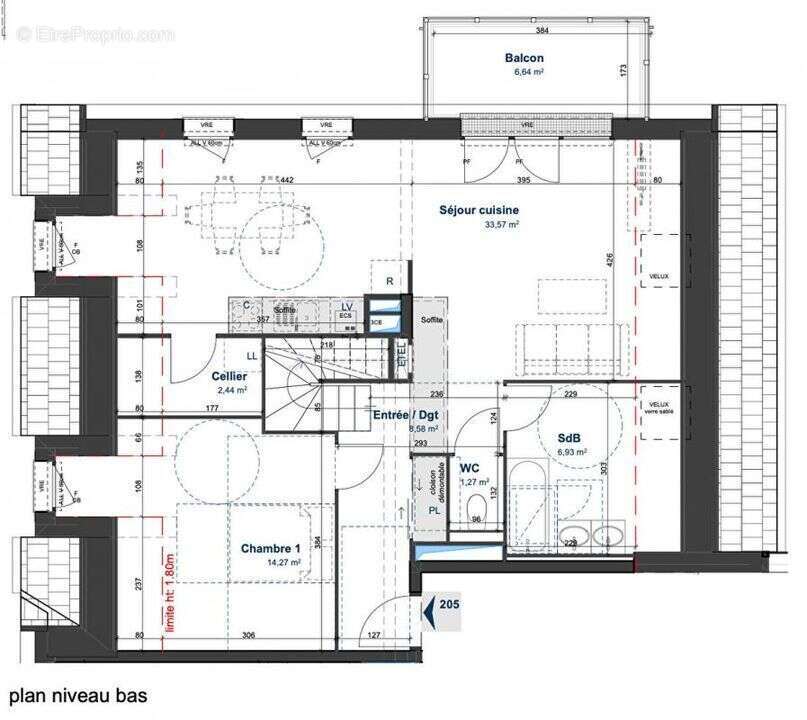
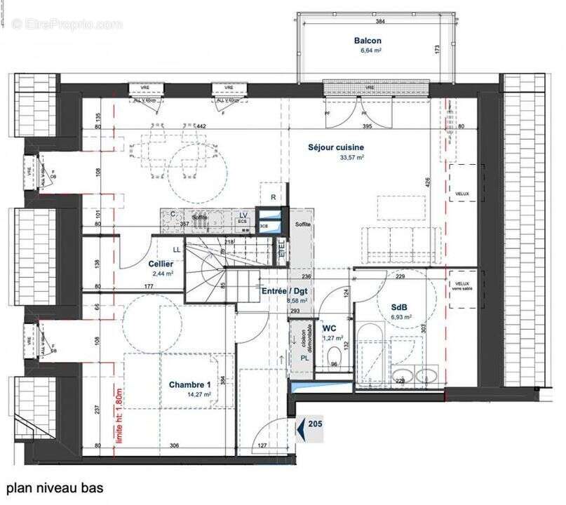
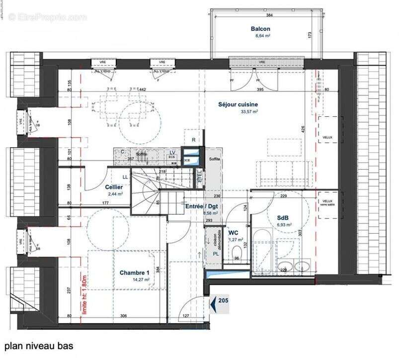
Un appartement en duplex de type T4 d'environ 90m2 composé de :



Au premier niveau :

- entrée avec placard

- séjour salon ouvert sur un balcon

- cuisine

- cellier

- chambre

- salle de bain

- WC indépendant



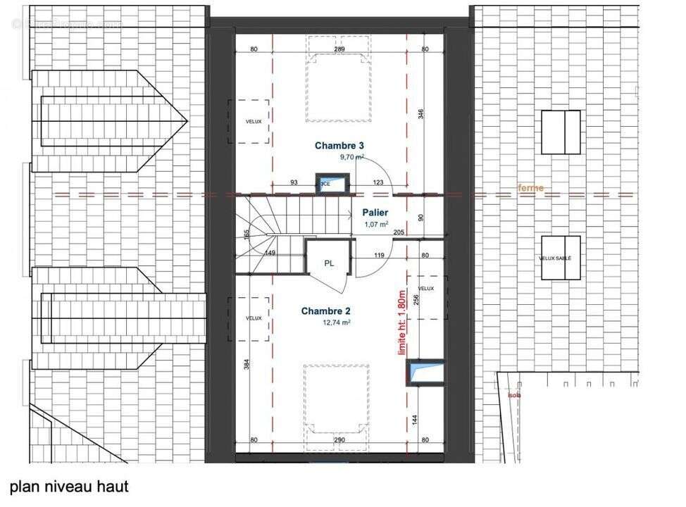
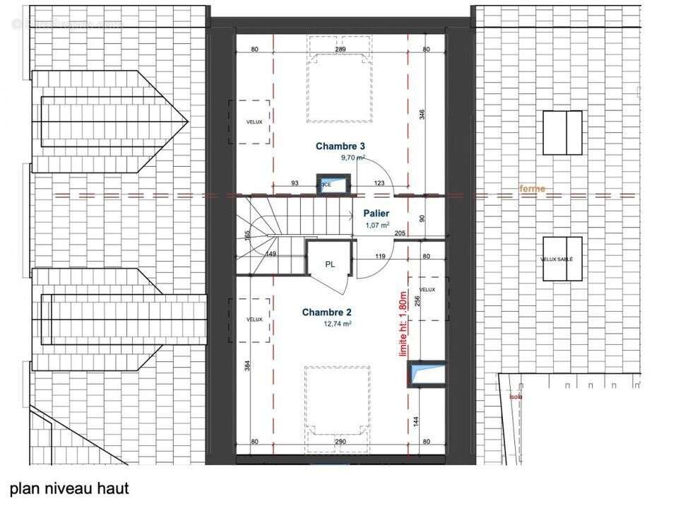
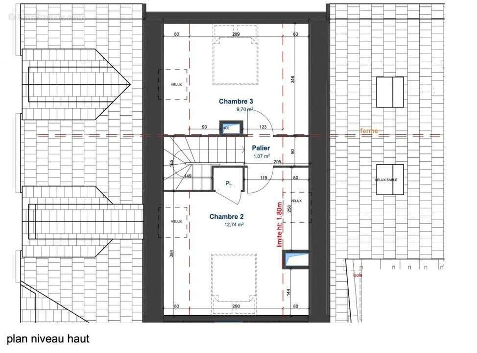
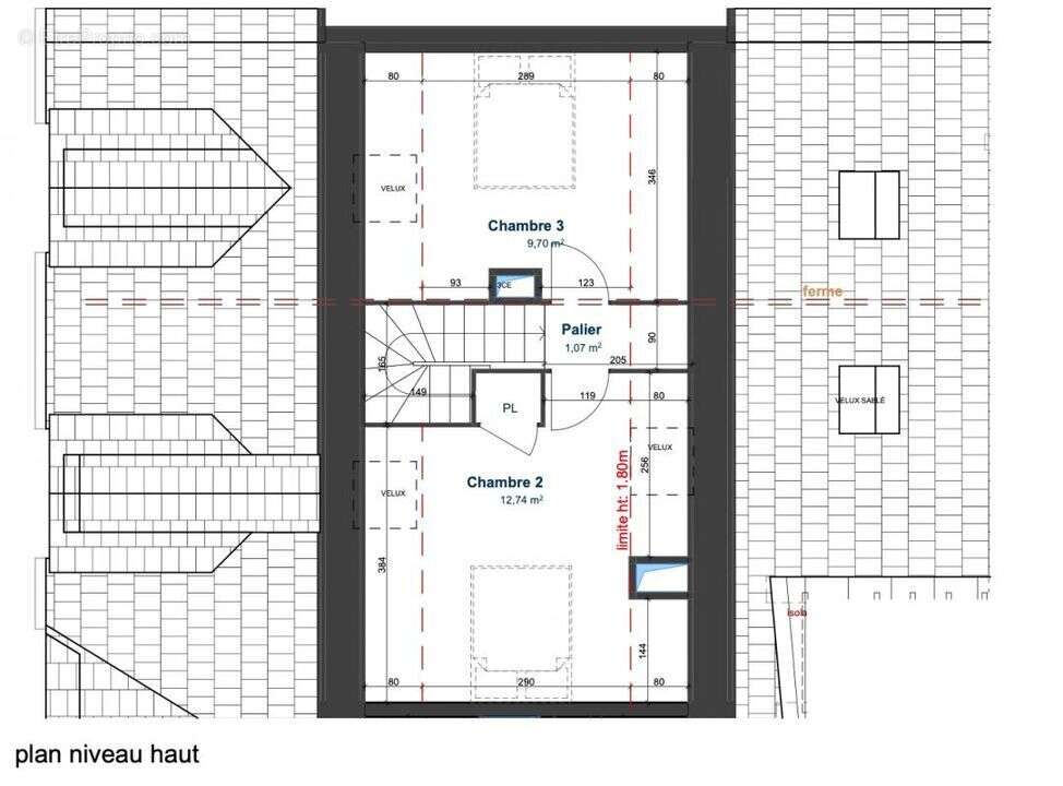
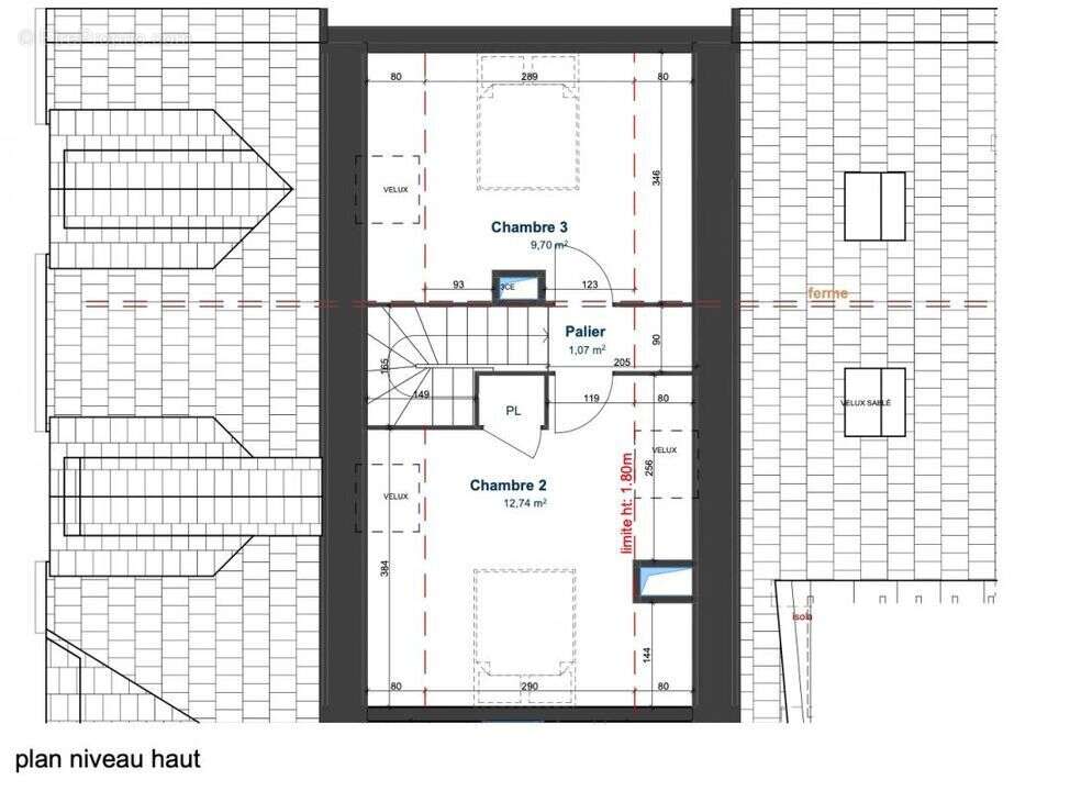
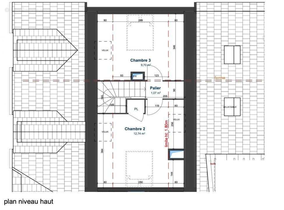
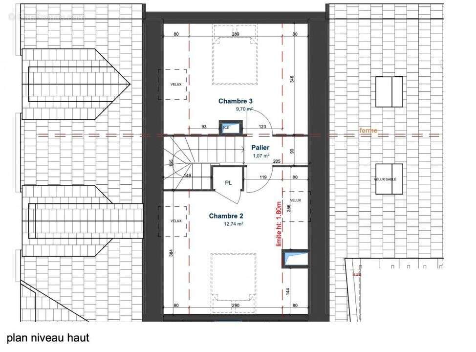
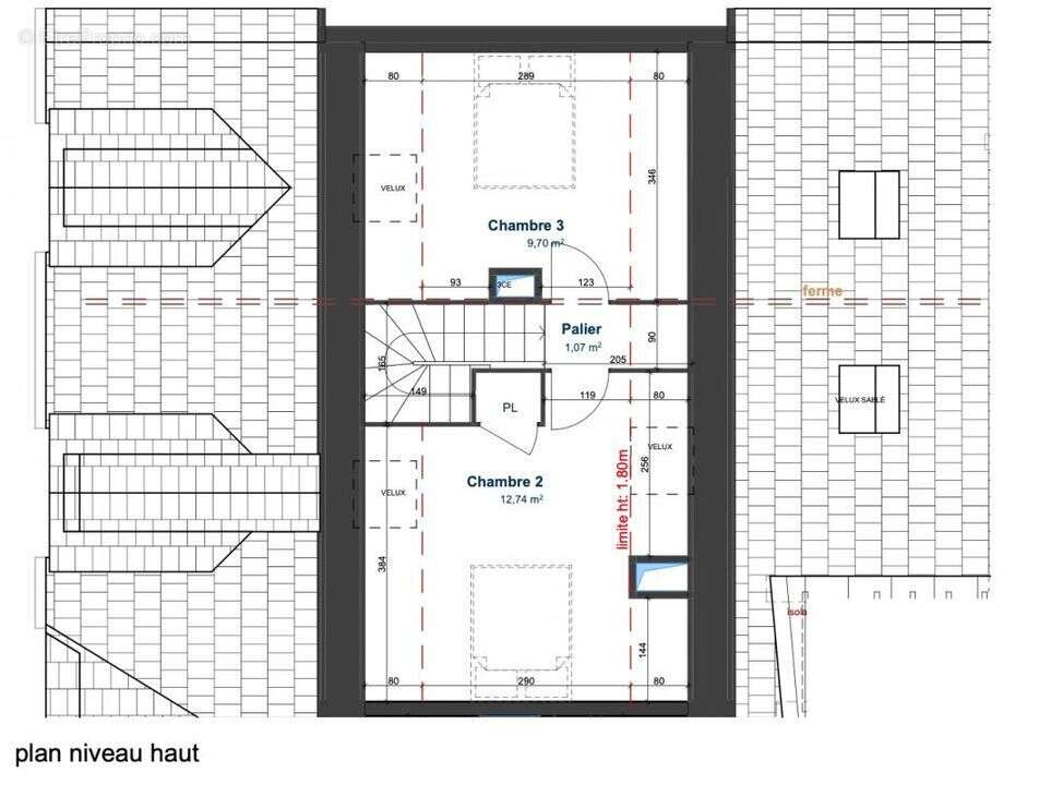
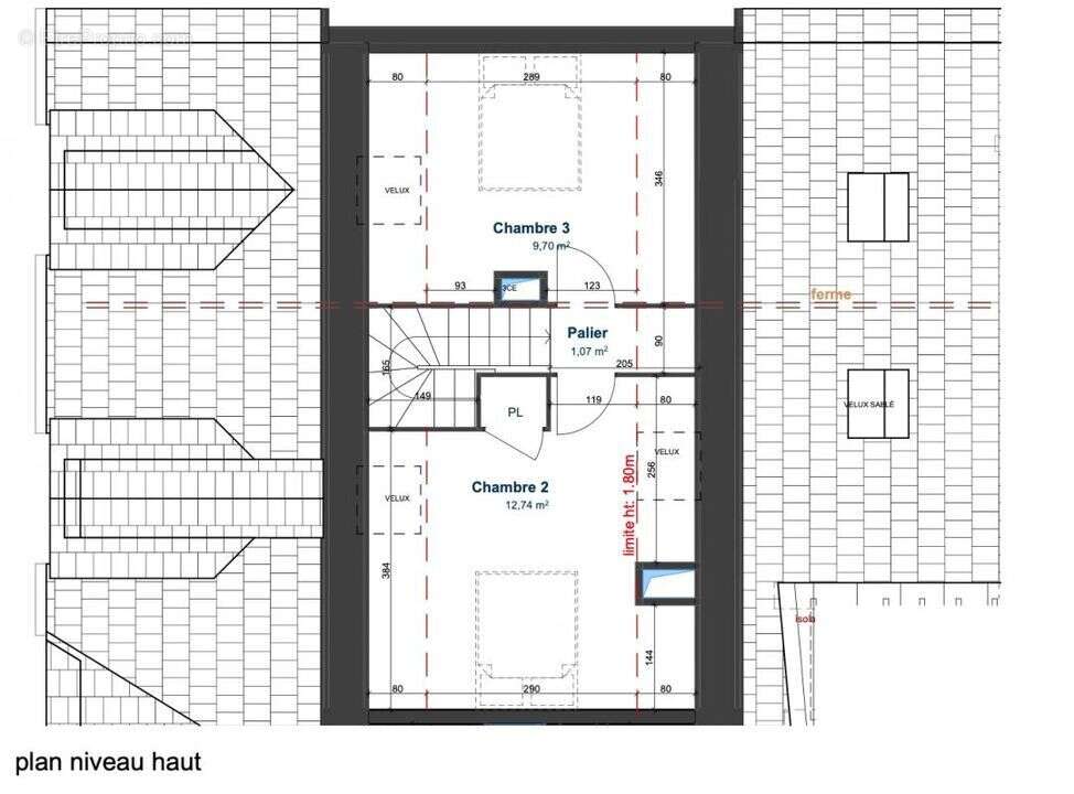
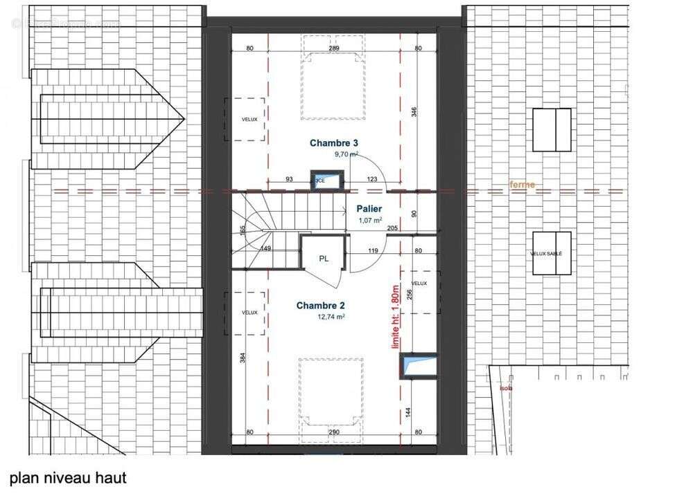
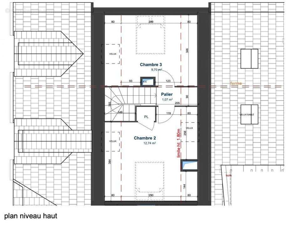
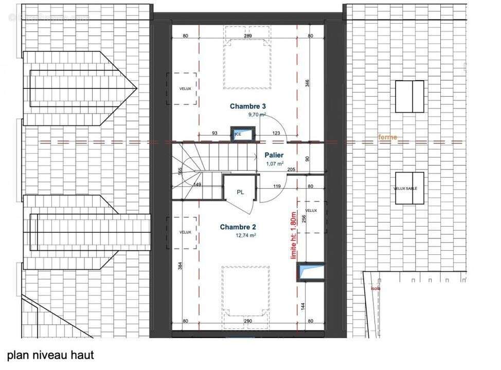
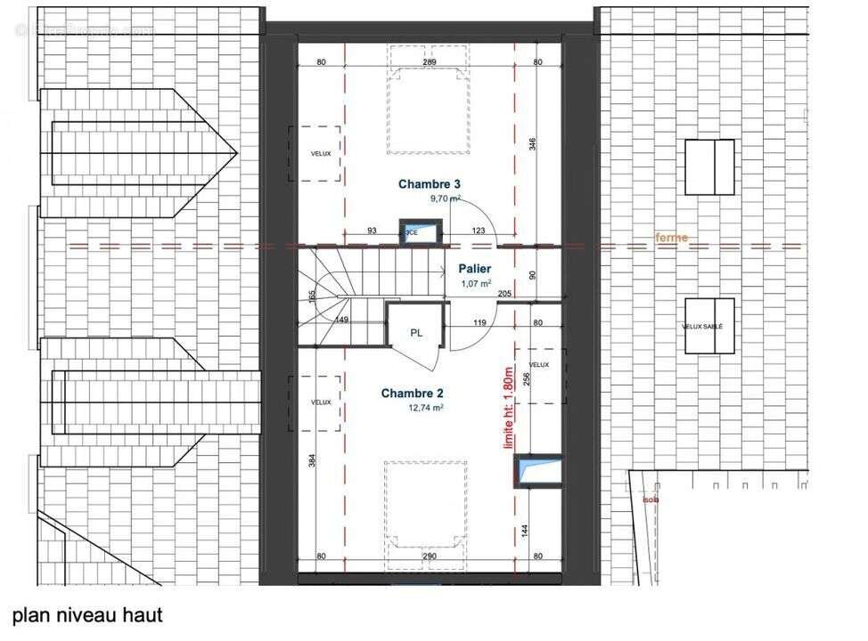
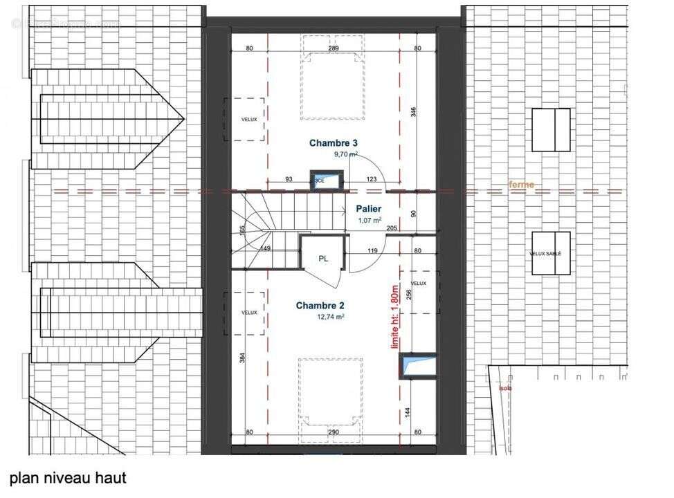
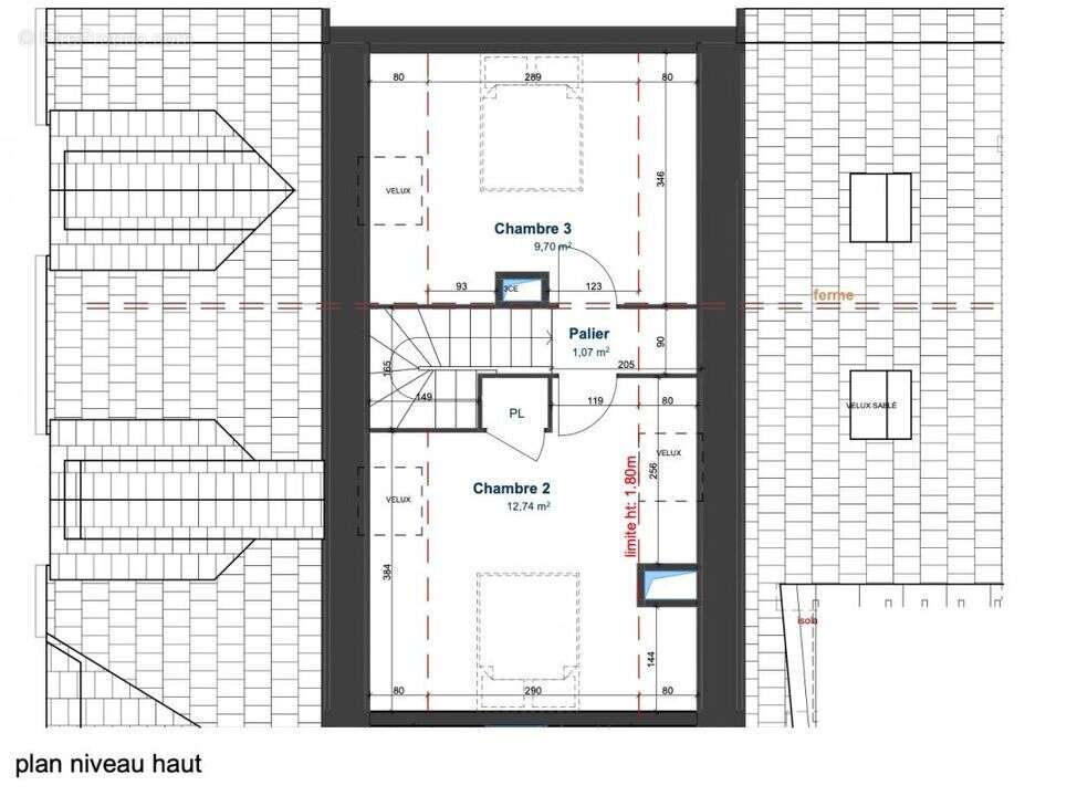
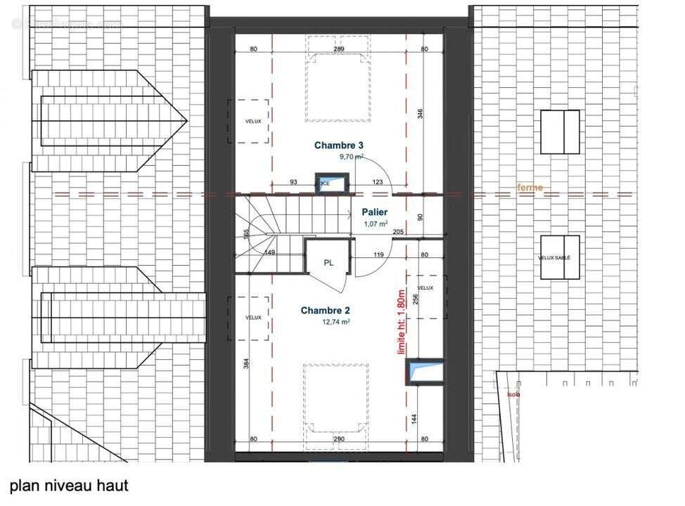
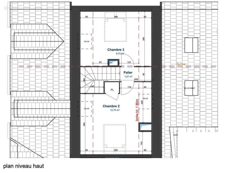
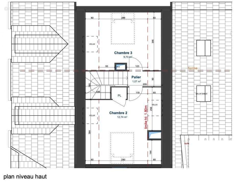
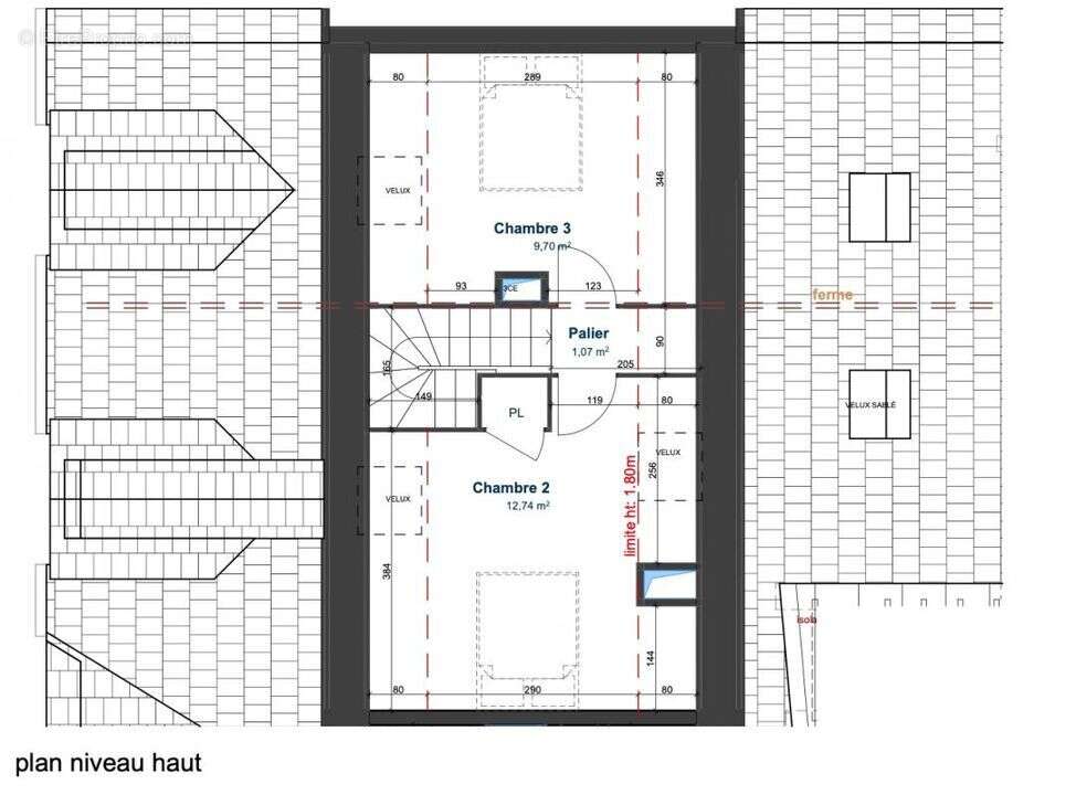
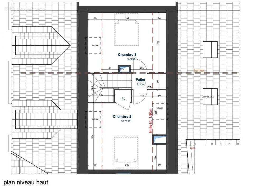
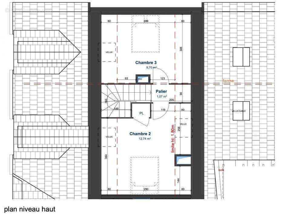
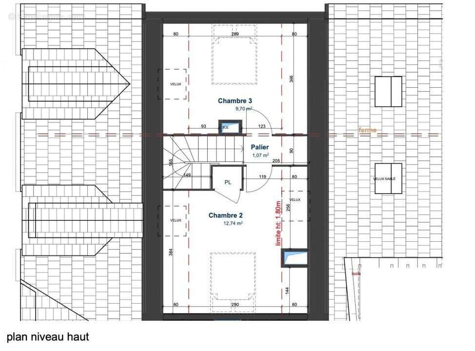
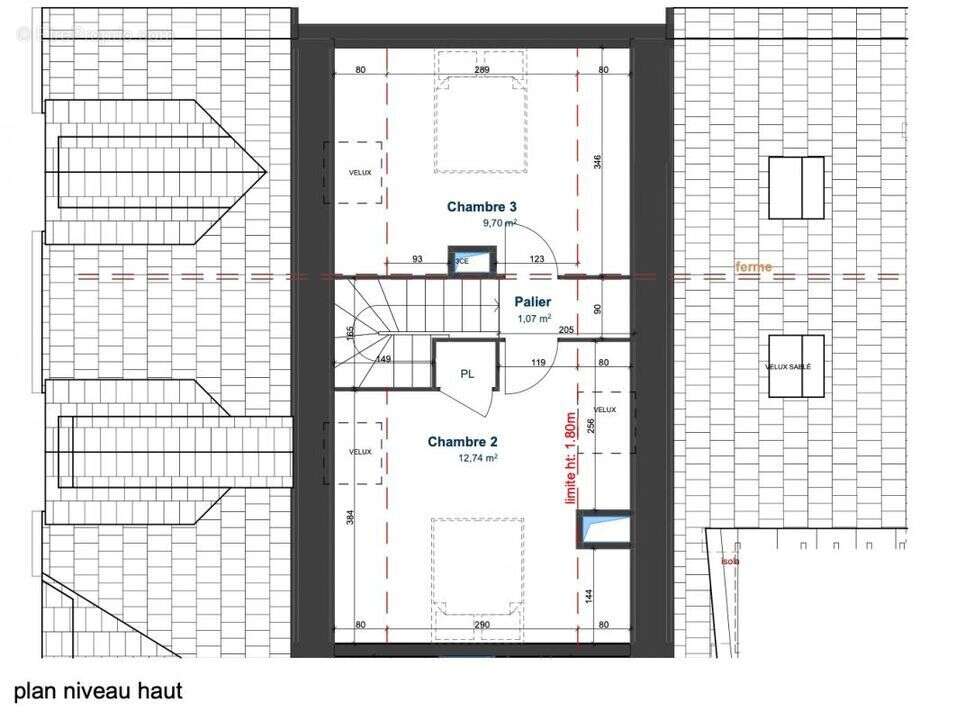
A l'étage :

- deux chambres dont une avec placard



Le bien dispose également d'un stationnement privatif et sécurisé, une cave, ainsi que d'un box.



Cet appartement vous offrira tous les avantages du neuf : dernières normes (RT 2012), aucun travaux à prévoir et FRAIS DE NOTAIRE RÉDUITS.



N'hésitez pas à nous contacter pour plus de renseignements, d'autres lots et d'autres typologies d'appartements (T2et T3) sont également disponibles.



Copropriété de 18 lots principaux.
Les informations sur les risques auxquels ce bien est exposé sont disponibles sur le site Géorisques : www.georisques.gouv.fr
Voir plus

Référence: T71
Honoraires à la charge du vendeur.
GES
A
B
C
D
E
F
G

Prêt immobilier

Vous souhaitez connaître votre capacité d’emprunt et trouver le meilleur crédit immobilier ?
Réaliser une simulation gratuite

Appartement à OUISTREHAM
Appartement à OUISTREHAM
Appartement à OUISTREHAM
Appartement à OUISTREHAM
Appartement à OUISTREHAM
Appartement à OUISTREHAM
Appartement à OUISTREHAM
Appartement à OUISTREHAM
Appartement à OUISTREHAM
Appartement à OUISTREHAM
Appartement à OUISTREHAM
Appartement à OUISTREHAM
Appartement à OUISTREHAM
Appartement à OUISTREHAM
Appartement à OUISTREHAM
Appartement à OUISTREHAM
Appartement à OUISTREHAM
Appartement à OUISTREHAM
Appartement à OUISTREHAM
Appartement à OUISTREHAM
Appartement à OUISTREHAM
Appartement à OUISTREHAM
Appartement à OUISTREHAM
Appartement à OUISTREHAM
Appartement à OUISTREHAM
Appartement à OUISTREHAM
Appartement à OUISTREHAM
Appartement à OUISTREHAM
Appartement à OUISTREHAM
Appartement à OUISTREHAM
Appartement à OUISTREHAM
Appartement à OUISTREHAM
Appartement à OUISTREHAM
Appartement à OUISTREHAM
Appartement à OUISTREHAM
Appartement à OUISTREHAM
Appartement à OUISTREHAM
Appartement à OUISTREHAM
Appartement à OUISTREHAM
Appartement à OUISTREHAM
Appartement à OUISTREHAM
Appartement à OUISTREHAM
Appartement à OUISTREHAM
Appartement à OUISTREHAM
Appartement à OUISTREHAM
Appartement à OUISTREHAM
Appartement à OUISTREHAM
Appartement à OUISTREHAM
Appartement à OUISTREHAM
Appartement à OUISTREHAM
Appartement à OUISTREHAM
Appartement à OUISTREHAM
Appartement à OUISTREHAM
Appartement à OUISTREHAM
Appartement à OUISTREHAM
Appartement à OUISTREHAM
Appartement à OUISTREHAM
Appartement à OUISTREHAM
Appartement à OUISTREHAM
Appartement à OUISTREHAM
Appartement à OUISTREHAM
Appartement à OUISTREHAM
Appartement à OUISTREHAM
Appartement à OUISTREHAM
Appartement à OUISTREHAM
Appartement à OUISTREHAM
Appartement à OUISTREHAM
Appartement à OUISTREHAM
Appartement à OUISTREHAM
Appartement à OUISTREHAM
Appartement à OUISTREHAM
Appartement à OUISTREHAM
Appartement à OUISTREHAM
Appartement à OUISTREHAM
Appartement à OUISTREHAM
Appartement à OUISTREHAM
Appartement à OUISTREHAM
Appartement à OUISTREHAM
Appartement à OUISTREHAM
Appartement à OUISTREHAM
Appartement à OUISTREHAM
Appartement à OUISTREHAM
Appartement à OUISTREHAM
Appartement à OUISTREHAM
Appartement à OUISTREHAM
Appartement à OUISTREHAM
Appartement à OUISTREHAM
Appartement à OUISTREHAM
Appartement à OUISTREHAM
Appartement à OUISTREHAM
Appartement à OUISTREHAM
Appartement à OUISTREHAM
Appartement à OUISTREHAM
Appartement à OUISTREHAM
Appartement à OUISTREHAM
Appartement à OUISTREHAM
Appartement à OUISTREHAM
Appartement à OUISTREHAM
Appartement à OUISTREHAM
Appartement à OUISTREHAM
Appartement à OUISTREHAM
Appartement à OUISTREHAM
Appartement à OUISTREHAM
Appartement à OUISTREHAM
Appartement à OUISTREHAM
Appartement à OUISTREHAM
Appartement à OUISTREHAM
Appartement à OUISTREHAM
Appartement à OUISTREHAM
Appartement à OUISTREHAM
Appartement à OUISTREHAM
Appartement à OUISTREHAM
Appartement à OUISTREHAM
Appartement à OUISTREHAM
Appartement à OUISTREHAM
Appartement à OUISTREHAM
Appartement à OUISTREHAM
Appartement à OUISTREHAM
Appartement à OUISTREHAM
Appartement à OUISTREHAM
Appartement à OUISTREHAM
Appartement à OUISTREHAM
Appartement à OUISTREHAM
Appartement à OUISTREHAM
Appartement à OUISTREHAM
Appartement à OUISTREHAM
Appartement à OUISTREHAM
Appartement à OUISTREHAM
Appartement à OUISTREHAM
Appartement à OUISTREHAM
Appartement à OUISTREHAM
Appartement à OUISTREHAM
Appartement à OUISTREHAM
Appartement à OUISTREHAM
Appartement à OUISTREHAM
Appartement à OUISTREHAM
Appartement à OUISTREHAM
Appartement à OUISTREHAM
Appartement à OUISTREHAM
Appartement à OUISTREHAM
Appartement à OUISTREHAM
Appartement à OUISTREHAM
Appartement à OUISTREHAM
Appartement à OUISTREHAM
Appartement à OUISTREHAM
Appartement à OUISTREHAM
Appartement à OUISTREHAM
Appartement à OUISTREHAM
Appartement à OUISTREHAM
Appartement à OUISTREHAM
Appartement à OUISTREHAM
Appartement à OUISTREHAM
Appartement à OUISTREHAM
Appartement à OUISTREHAM
Appartement à OUISTREHAM
Appartement à OUISTREHAM
Appartement à OUISTREHAM
Appartement à OUISTREHAM
Appartement à OUISTREHAM
Appartement à OUISTREHAM
Appartement à OUISTREHAM
Appartement à OUISTREHAM
Appartement à OUISTREHAM
Appartement à OUISTREHAM
Appartement à OUISTREHAM
Appartement à OUISTREHAM
Appartement à OUISTREHAM
Appartement à OUISTREHAM
Appartement à OUISTREHAM
Appartement à OUISTREHAM
Appartement à OUISTREHAM
Appartement à OUISTREHAM
Appartement à OUISTREHAM
Appartement à OUISTREHAM
Appartement à OUISTREHAM
Appartement à OUISTREHAM
Appartement à OUISTREHAM
Appartement à OUISTREHAM
Appartement à OUISTREHAM
Appartement à OUISTREHAM
Appartement à OUISTREHAM
Appartement à OUISTREHAM
Appartement à OUISTREHAM
Appartement à OUISTREHAM
Appartement à OUISTREHAM
Appartement à OUISTREHAM
Appartement à OUISTREHAM
Appartement à OUISTREHAM
Appartement à OUISTREHAM
Appartement à OUISTREHAM
Appartement à OUISTREHAM
Appartement à OUISTREHAM
Appartement à OUISTREHAM
Appartement à OUISTREHAM
Appartement à OUISTREHAM
Appartement à OUISTREHAM
Appartement à OUISTREHAM
Appartement à OUISTREHAM
Appartement à OUISTREHAM
Appartement à OUISTREHAM
Appartement à OUISTREHAM
Appartement à OUISTREHAM
Appartement à OUISTREHAM
Appartement à OUISTREHAM
Appartement à OUISTREHAM
Appartement à OUISTREHAM
Appartement à OUISTREHAM
Appartement à OUISTREHAM
Appartement à OUISTREHAM
Appartement à OUISTREHAM
Appartement à OUISTREHAM
Appartement à OUISTREHAM
Appartement à OUISTREHAM
Appartement à OUISTREHAM
Appartement à OUISTREHAM
Appartement à OUISTREHAM
Appartement à OUISTREHAM
Appartement à OUISTREHAM
Appartement à OUISTREHAM
Appartement à OUISTREHAM
Appartement à OUISTREHAM
Appartement à OUISTREHAM
Appartement à OUISTREHAM
Appartement à OUISTREHAM
Appartement à OUISTREHAM
Appartement à OUISTREHAM
Appartement à OUISTREHAM
Appartement à OUISTREHAM
Appartement à OUISTREHAM
Appartement à OUISTREHAM
Appartement à OUISTREHAM
Appartement à OUISTREHAM
Appartement à OUISTREHAM
Appartement à OUISTREHAM
Appartement à OUISTREHAM
Appartement à OUISTREHAM
Appartement à OUISTREHAM
Appartement à OUISTREHAM
Appartement à OUISTREHAM
Appartement à OUISTREHAM
Appartement à OUISTREHAM
Appartement à OUISTREHAM
Appartement à OUISTREHAM
Appartement à OUISTREHAM
Appartement à OUISTREHAM
Appartement à OUISTREHAM
Appartement à OUISTREHAM
Appartement à OUISTREHAM
Appartement à OUISTREHAM
Appartement à OUISTREHAM
Appartement à OUISTREHAM
Appartement à OUISTREHAM
Appartement à OUISTREHAM
Appartement à OUISTREHAM
Appartement à OUISTREHAM
Appartement à OUISTREHAM
Appartement à OUISTREHAM
Appartement à OUISTREHAM
Appartement à OUISTREHAM
Appartement à OUISTREHAM
Appartement à OUISTREHAM
Appartement à OUISTREHAM
Appartement à OUISTREHAM
Appartement à OUISTREHAM
Appartement à OUISTREHAM
Appartement à OUISTREHAM
Appartement à OUISTREHAM
Appartement à OUISTREHAM
Appartement à OUISTREHAM
Appartement à OUISTREHAM
Appartement à OUISTREHAM
Appartement à OUISTREHAM
Appartement à OUISTREHAM
Appartement à OUISTREHAM
Appartement à OUISTREHAM
Appartement à OUISTREHAM
Appartement à OUISTREHAM
Appartement à OUISTREHAM
Appartement à OUISTREHAM
Appartement à OUISTREHAM
Appartement à OUISTREHAM
Appartement à OUISTREHAM
Appartement à OUISTREHAM
Appartement à OUISTREHAM
Appartement à OUISTREHAM
Appartement à OUISTREHAM
Appartement à OUISTREHAM
Appartement à OUISTREHAM
Appartement à OUISTREHAM
Appartement à OUISTREHAM
Appartement à OUISTREHAM
Appartement à OUISTREHAM
Appartement à OUISTREHAM
Appartement à OUISTREHAM
Appartement à OUISTREHAM
Appartement à OUISTREHAM
Appartement à OUISTREHAM
Appartement à OUISTREHAM
Appartement à OUISTREHAM
Appartement à OUISTREHAM
Appartement à OUISTREHAM
Appartement à OUISTREHAM
Appartement à OUISTREHAM
Appartement à OUISTREHAM
Appartement à OUISTREHAM
Appartement à OUISTREHAM
Appartement à OUISTREHAM
Appartement à OUISTREHAM
Appartement à OUISTREHAM
Appartement à OUISTREHAM
Appartement à OUISTREHAM
Appartement à OUISTREHAM
Appartement à OUISTREHAM
Appartement à OUISTREHAM
Appartement à OUISTREHAM
Appartement à OUISTREHAM
Appartement à OUISTREHAM
Appartement à OUISTREHAM
Appartement à OUISTREHAM
Appartement à OUISTREHAM
Appartement à OUISTREHAM
Appartement à OUISTREHAM
Appartement à OUISTREHAM
Appartement à OUISTREHAM
Appartement à OUISTREHAM
Appartement à OUISTREHAM
Appartement à OUISTREHAM
Appartement à OUISTREHAM
Appartement à OUISTREHAM
Appartement à OUISTREHAM
Appartement à OUISTREHAM
Appartement à OUISTREHAM
Appartement à OUISTREHAM
Appartement à OUISTREHAM
Appartement à OUISTREHAM
Appartement à OUISTREHAM
Appartement à OUISTREHAM
Appartement à OUISTREHAM
Appartement à OUISTREHAM
Appartement à OUISTREHAM
Appartement à OUISTREHAM
Appartement à OUISTREHAM
Appartement à OUISTREHAM
Appartement à OUISTREHAM
Appartement à OUISTREHAM
Appartement à OUISTREHAM
Appartement à OUISTREHAM
Appartement à OUISTREHAM
Appartement à OUISTREHAM
Appartement à OUISTREHAM
Appartement à OUISTREHAM
Appartement à OUISTREHAM
Appartement à OUISTREHAM
Appartement à OUISTREHAM
Appartement à OUISTREHAM
Appartement à OUISTREHAM
Appartement à OUISTREHAM
Appartement à OUISTREHAM
Appartement à OUISTREHAM
Appartement à OUISTREHAM
Appartement à OUISTREHAM
Appartement à OUISTREHAM
Appartement à OUISTREHAM
Appartement à OUISTREHAM
Appartement à OUISTREHAM
Appartement à OUISTREHAM
Appartement à OUISTREHAM
Appartement à OUISTREHAM
Appartement à OUISTREHAM
Appartement à OUISTREHAM
Appartement à OUISTREHAM
Appartement à OUISTREHAM
Appartement à OUISTREHAM
Appartement à OUISTREHAM
Appartement à OUISTREHAM
Appartement à OUISTREHAM
Appartement à OUISTREHAM
Appartement à OUISTREHAM
Appartement à OUISTREHAM
Appartement à OUISTREHAM
Appartement à OUISTREHAM
Appartement à OUISTREHAM
Appartement à OUISTREHAM
Appartement à OUISTREHAM
Appartement à OUISTREHAM
Appartement à OUISTREHAM
Appartement à OUISTREHAM
Appartement à OUISTREHAM
Appartement à OUISTREHAM
Appartement à OUISTREHAM
Appartement à OUISTREHAM
Appartement à OUISTREHAM
Appartement à OUISTREHAM
Appartement à OUISTREHAM
Appartement à OUISTREHAM
Appartement à OUISTREHAM
Appartement à OUISTREHAM
Appartement à OUISTREHAM
Appartement à OUISTREHAM
Appartement à OUISTREHAM
Appartement à OUISTREHAM
Appartement à OUISTREHAM
Appartement à OUISTREHAM
Appartement à OUISTREHAM
Appartement à OUISTREHAM
Appartement à OUISTREHAM
Appartement à OUISTREHAM
Appartement à OUISTREHAM
Appartement à OUISTREHAM
Appartement à OUISTREHAM
Appartement à OUISTREHAM
Appartement à OUISTREHAM
Appartement à OUISTREHAM
Appartement à OUISTREHAM
Appartement à OUISTREHAM
Appartement à OUISTREHAM
Appartement à OUISTREHAM
Appartement à OUISTREHAM
Appartement à OUISTREHAM
Appartement à OUISTREHAM
Appartement à OUISTREHAM
Appartement à OUISTREHAM
Appartement à OUISTREHAM
Appartement à OUISTREHAM
Appartement à OUISTREHAM
Appartement à OUISTREHAM
Appartement à OUISTREHAM
Appartement à OUISTREHAM
Appartement à OUISTREHAM
Appartement à OUISTREHAM
Appartement à OUISTREHAM
Appartement à OUISTREHAM
Appartement à OUISTREHAM
Appartement à OUISTREHAM
Appartement à OUISTREHAM
Appartement à OUISTREHAM
Appartement à OUISTREHAM
Appartement à OUISTREHAM
Appartement à OUISTREHAM
Appartement à OUISTREHAM
Appartement à OUISTREHAM
Appartement à OUISTREHAM
Appartement à OUISTREHAM
Appartement à OUISTREHAM
Appartement à OUISTREHAM
Appartement à OUISTREHAM
Appartement à OUISTREHAM
Appartement à OUISTREHAM
Appartement à OUISTREHAM
Appartement à OUISTREHAM
Appartement à OUISTREHAM
Appartement à OUISTREHAM
Appartement à OUISTREHAM
Appartement à OUISTREHAM
Appartement à OUISTREHAM
Appartement à OUISTREHAM
Appartement à OUISTREHAM
Appartement à OUISTREHAM
Appartement à OUISTREHAM
Appartement à OUISTREHAM
Appartement à OUISTREHAM
Appartement à OUISTREHAM
Appartement à OUISTREHAM
Appartement à OUISTREHAM
Appartement à OUISTREHAM
Appartement à OUISTREHAM
Appartement à OUISTREHAM
Appartement à OUISTREHAM
Appartement à OUISTREHAM
Appartement à OUISTREHAM
Appartement à OUISTREHAM
Appartement à OUISTREHAM
Appartement à OUISTREHAM
Appartement à OUISTREHAM
Appartement à OUISTREHAM
Appartement à OUISTREHAM
Appartement à OUISTREHAM
Appartement à OUISTREHAM
Appartement à OUISTREHAM
Appartement à OUISTREHAM
Appartement à OUISTREHAM
Appartement à OUISTREHAM
Appartement à OUISTREHAM
Appartement à OUISTREHAM
Appartement à OUISTREHAM
Appartement à OUISTREHAM
Appartement à OUISTREHAM
Appartement à OUISTREHAM
Appartement à OUISTREHAM
Appartement à OUISTREHAM
Appartement à OUISTREHAM
Appartement à OUISTREHAM
Appartement à OUISTREHAM
Appartement à OUISTREHAM
Appartement à OUISTREHAM
Appartement à OUISTREHAM
Appartement à OUISTREHAM
Appartement à OUISTREHAM
Appartement à OUISTREHAM
Appartement à OUISTREHAM
Appartement à OUISTREHAM
Appartement à OUISTREHAM
Appartement à OUISTREHAM
Appartement à OUISTREHAM
Appartement à OUISTREHAM
Appartement à OUISTREHAM
Appartement à OUISTREHAM
Appartement à OUISTREHAM
Appartement à OUISTREHAM
Appartement à OUISTREHAM
Appartement à OUISTREHAM
Appartement à OUISTREHAM
Appartement à OUISTREHAM
Appartement à OUISTREHAM
Appartement à OUISTREHAM
Appartement à OUISTREHAM
Appartement à OUISTREHAM
Appartement à OUISTREHAM
Appartement à OUISTREHAM
Appartement à OUISTREHAM
Appartement à OUISTREHAM
Appartement à OUISTREHAM
Appartement à OUISTREHAM
Appartement à OUISTREHAM
Appartement à OUISTREHAM
Appartement à OUISTREHAM
Appartement à OUISTREHAM
Appartement à OUISTREHAM
Appartement à OUISTREHAM
Appartement à OUISTREHAM
Appartement à OUISTREHAM
Appartement à OUISTREHAM
Appartement à OUISTREHAM
Appartement à OUISTREHAM
Appartement à OUISTREHAM
Appartement à OUISTREHAM
Appartement à OUISTREHAM
Appartement à OUISTREHAM
Appartement à OUISTREHAM
Appartement à OUISTREHAM
Appartement à OUISTREHAM
Appartement à OUISTREHAM
Appartement à OUISTREHAM
Appartement à OUISTREHAM
Appartement à OUISTREHAM
Appartement à OUISTREHAM
Appartement à OUISTREHAM
Appartement à OUISTREHAM
Appartement à OUISTREHAM
Appartement à OUISTREHAM
Appartement à OUISTREHAM
Appartement à OUISTREHAM
Appartement à OUISTREHAM
Appartement à OUISTREHAM
Appartement à OUISTREHAM
Appartement à OUISTREHAM
Appartement à OUISTREHAM
Appartement à OUISTREHAM
Appartement à OUISTREHAM
Appartement à OUISTREHAM
Appartement à OUISTREHAM
Appartement à OUISTREHAM
Appartement à OUISTREHAM
Appartement à OUISTREHAM
Appartement à OUISTREHAM
Appartement à OUISTREHAM
Appartement à OUISTREHAM
Appartement à OUISTREHAM
Appartement à OUISTREHAM
Appartement à OUISTREHAM
Appartement à OUISTREHAM
Appartement à OUISTREHAM
Appartement à OUISTREHAM
Appartement à OUISTREHAM
Appartement à OUISTREHAM
Appartement à OUISTREHAM
Appartement à OUISTREHAM
Appartement à OUISTREHAM
Appartement à OUISTREHAM
Appartement à OUISTREHAM
Appartement à OUISTREHAM
Appartement à OUISTREHAM
Appartement à OUISTREHAM
Appartement à OUISTREHAM
Appartement à OUISTREHAM
Appartement à OUISTREHAM
Appartement à OUISTREHAM
Appartement à OUISTREHAM
Appartement à OUISTREHAM
Appartement à OUISTREHAM
Appartement à OUISTREHAM
Appartement à OUISTREHAM
Appartement à OUISTREHAM
Appartement à OUISTREHAM
Appartement à OUISTREHAM
Appartement à OUISTREHAM
Appartement à OUISTREHAM
Appartement à OUISTREHAM
Appartement à OUISTREHAM
Appartement à OUISTREHAM
Appartement à OUISTREHAM
Appartement à OUISTREHAM
Appartement à OUISTREHAM
Appartement à OUISTREHAM
Appartement à OUISTREHAM
Appartement à OUISTREHAM
Appartement à OUISTREHAM
Appartement à OUISTREHAM
Appartement à OUISTREHAM
Appartement à OUISTREHAM
Appartement à OUISTREHAM
Appartement à OUISTREHAM
Appartement à OUISTREHAM
Appartement à OUISTREHAM
Appartement à OUISTREHAM
Appartement à OUISTREHAM
Appartement à OUISTREHAM
Appartement à OUISTREHAM
Appartement à OUISTREHAM
Appartement à OUISTREHAM
Appartement à OUISTREHAM
Appartement à OUISTREHAM
Appartement à OUISTREHAM
Appartement à OUISTREHAM
Appartement à OUISTREHAM
Appartement à OUISTREHAM
Appartement à OUISTREHAM
Appartement à OUISTREHAM
Appartement à OUISTREHAM
Appartement à OUISTREHAM
Appartement à OUISTREHAM
Appartement à OUISTREHAM
Appartement à OUISTREHAM
Appartement à OUISTREHAM
Appartement à OUISTREHAM
Appartement à OUISTREHAM
Appartement à OUISTREHAM
Appartement à OUISTREHAM
Appartement à OUISTREHAM
Appartement à OUISTREHAM
Appartement à OUISTREHAM
Appartement à OUISTREHAM
Appartement à OUISTREHAM
Appartement à OUISTREHAM
Appartement à OUISTREHAM
Appartement à OUISTREHAM
Appartement à OUISTREHAM
Appartement à OUISTREHAM
Appartement à OUISTREHAM
Appartement à OUISTREHAM
Appartement à OUISTREHAM
Appartement à OUISTREHAM
Appartement à OUISTREHAM
Appartement à OUISTREHAM
Appartement à OUISTREHAM
Appartement à OUISTREHAM
Appartement à OUISTREHAM
Appartement à OUISTREHAM
Appartement à OUISTREHAM
Appartement à OUISTREHAM
Appartement à OUISTREHAM
Appartement à OUISTREHAM
Appartement à OUISTREHAM
Ce site est protégé par reCAPTCHA la Politique de confidentialité et les Conditions d’utilisation de Google s’appliquent.
Obtenir un prêt immobilier au meilleur taux ?

En poursuivant votre navigation sans modifier vos paramètres, vous acceptez l'utilisation de cookies susceptibles de réaliser des statistiques de visite. Cliquez ici pour plus d'informations