Bénéficiez des services de nos partenaires locaux soigneusement sélectionnés
pour vous accompagner dans votre parcours d'achat immobilier

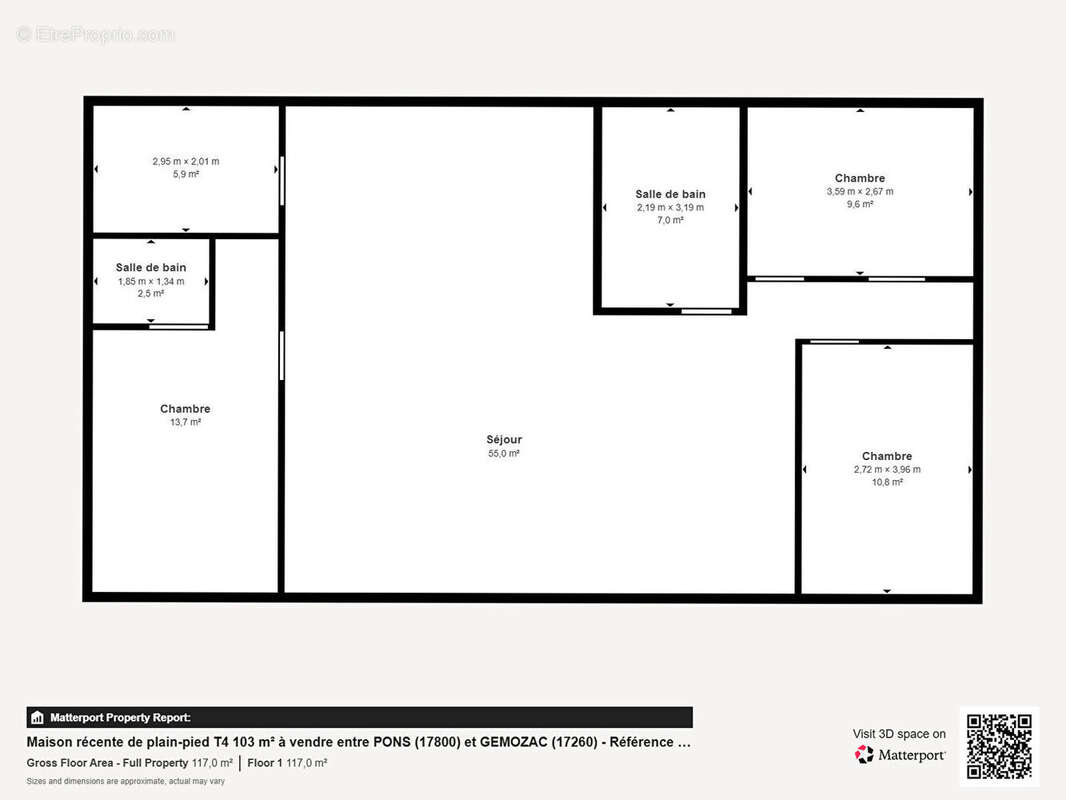
Maison récente de plain-pied t4 103 m² à vendre entre saintes (17100), pons (17800) et gemozac (17260) - référence 4112

— Saintes 17100 —
200 700 €
103 m² / 679 m²
4 pièces
jardin

Nos partenaires locaux
Maison récente de plain-pied T4 de 103 m² à vendre dans le triangle SAINTES (17100), PONS (17800) et de GEMOZAC (17260) - Réf. 4112 Visite immersive disponible pour une première découverte en 3D, une visite virtuelle immersive est proposée. Il suffit de contacter notre agence pour obtenir le mot de passe de connexion. A vendre : maison individuelle de plain-pied construite en 2024, située à JAZENNES (17260), dans un environnement résidentiel calme, à seulement 5 km de PONS (17800), 8 km de GEMOZAC (17260), 20 km de SAINTES (17100) et à 3,5 km de l'accès autoroutier A10. Ce bien immobilier bénéficie d'une localisation stratégique, à proximité des commerces, écoles et services. Caractéristiques principales : Surface habitable : 103 m² Terrain clos : 679 m² avec accès véhicules Type : Maison T4 de plain-pied Année de construction : 2024 Exposition : Sud-est, séjour lumineux Agencement intérieur : Pièce de vie spacieuse de 52 m² avec cuisine américaine aménagée et équipée Trois chambres, dont une suite parentale avec salle d'eau privative et WC Deux salles d'eau au total, avec possibilité d'installation d'une baignoire Deux WC indépendants Confort et équipements : Chauffage électrique par radiateurs à inertie Production d'eau chaude par ballon électrique Menuiseries en PVC double vitrage Volets roulants électriques Assainissement individuel conforme (fosse toutes eaux) Atouts supplémentaires : Maison lumineuse et en excellent état général Terrain entièrement clos, idéal pour stationner plusieurs véhicules Environnement paisible entre SAINTES, PONS et GEMOZAC Ce bien immobilier est proposé en exclusivité par l'agence Laforêt GEMOZAC, sous mandat FAVORIZ. Idéal pour une famille en quête de confort, de modernité et de tranquillité, à proximité des grands axes et des commodités. Contactez-nous dès maintenant pour organiser une visite ou accéder à la visite virtuelle 3D.
Voir plus

Référence: 4323
Honoraires d'agence de 5.63% à la charge de l'acquéreur
Barème des honoraires
DPE
A
B
C
D
E
F
G
GES
A
B
C
D
E
F
G

Prêt immobilier

Vous souhaitez connaître votre capacité d’emprunt et trouver le meilleur crédit immobilier ?
Réaliser une simulation gratuite

Maison à SAINTES
Maison à SAINTES
Maison à SAINTES
Maison à SAINTES
Maison à SAINTES
Maison à SAINTES
Maison à SAINTES
Maison à SAINTES
Maison à SAINTES
Maison à SAINTES
Maison à SAINTES
Maison à SAINTES
Maison à SAINTES
Maison à SAINTES
Maison à SAINTES
Maison à SAINTES
Maison à SAINTES
Maison à SAINTES
Ce site est protégé par reCAPTCHA la Politique de confidentialité et les Conditions d’utilisation de Google s’appliquent.
Obtenir un prêt immobilier au meilleur taux ?

En poursuivant votre navigation sans modifier vos paramètres, vous acceptez l'utilisation de cookies susceptibles de réaliser des statistiques de visite. Cliquez ici pour plus d'informations