Bénéficiez des services de nos partenaires locaux soigneusement sélectionnés
pour vous accompagner dans votre parcours d'achat immobilier

Commerce 560m² à orleans

— Orleans 45000 —
680 000 €
560 m²
parking

Nos partenaires locaux

Nous proposons à la vente en plein Centre d'Orléans ce très beau local à usage de commerce et/ou de bureaux de 560m² environ dont 360m² en RDC.
Bénéficiant de sa lumière traversante, il offre un excellent confort de travail et de très beaux volumes sur 2 niveaux. Il conviendra parfaitement à l'usage d'une activité de services.

1- Localisation:
Orléans Centre - Proximité Martroi
Gare SNCF d'Orléans à moins de 10 minutes à pieds
Station de tramway A et B à proximité immédiate
Arrêt de bus réseau TAO à proximité
Services à proximité : commerces, restaurants, hôtels, salles de sport,...
Emplacement n°2bis (typé services, administratifs,...)
Au sein d'une copropriété donnant sur une grande cour intérieure accessible en voiture et véhicules utilitaires

2- Caractéristiques locaux:

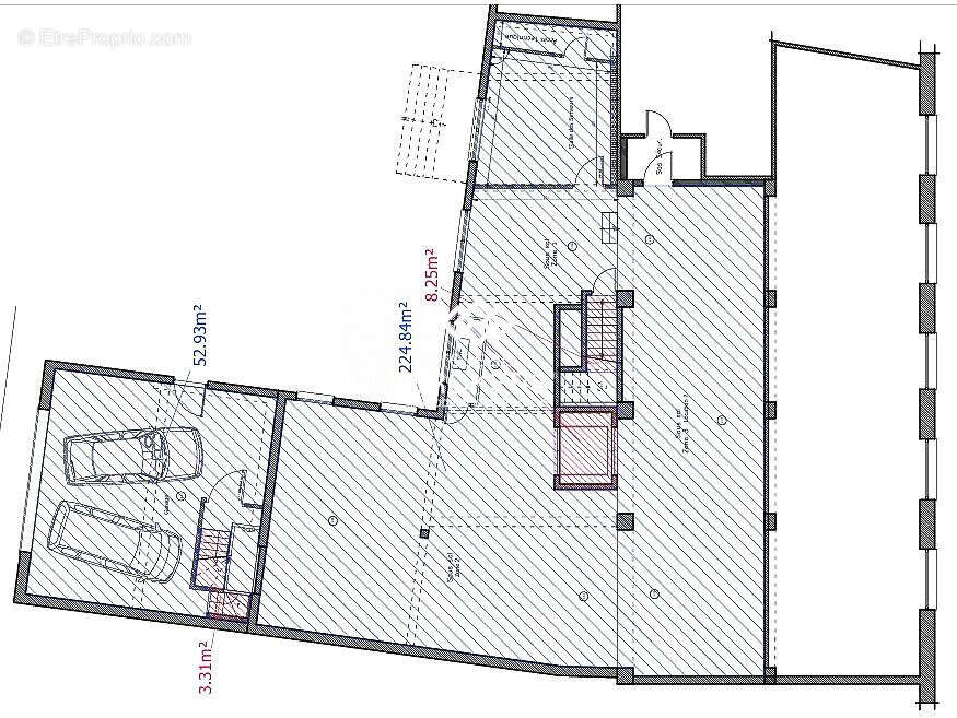
- RDC: Surface de 360m² environ développée sur 3 niveaux de paliers qui comprend:1 Sas d'entrée
1 Accueil de 58m²
1 Bureau de 14m2
1 Open Space ou salle de réunion de 74m²
1 salle archive ou réserve de 12m²
1 salle de travail type studio sur le palier 2
1 Espace détente avec salon, cuisine, WC sur le palier 2
2 bureaux de 10m² à l'arrière sur le palier 3
1 Local photocopieur à l'arrière sur le palier 3
Ces espaces ouverts sont cloisonnés par de grandes cloisons modulaires vitrées toute hauteur
Hauteur sous plafond 2,70m
Locaux non ERP soumis à la réglementation code du travail mais potentiellement adaptable aux normes en vigueur


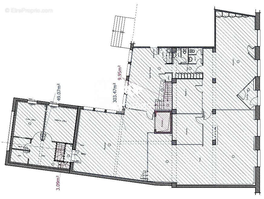
- R-1: Surface de 200m2 environDesservis par un escalier et un monte charge adaptable en ascenseur
1 grand garage double de 50m²
1 espace de 150m² cloisonné avec salle serveur climatisée, studio photo.
Hauteur sous plafond 2.70m


L'ensemble dispose de 3 entrées, 1 en RDC sur rue, et 2 sur cour à l'arrière
Câblage RJ45
Fibre haut débit

2- Conditions Financières:
Prix de vente FAI: 680.000€
Prix de vente Net Vendeur: 650.000€
Charges locatives HT : 14.300€/an - 1.139€ht/mois dont 750€ de chauffage privatif pour les 2 lots
Taxe Foncière : 8.000€ /AN
Fiscalité : Droits d'Enregistrement
Honoraires d'agence : 5% du prix de cession HT
Disponibilité : 3 mois

Pour plus de renseignements n'hésitez pas à me contacter au [Coordonnées masquées] ou sur [Coordonnées masquées].

RESEAU BROKERS® cabinet spécialisé en immobilier d'entreprise. Nous maillons avec notre équipe de 100 Brokers une grande partie du territoire national pour accompagner nos entreprises clientes dans leurs recherches de commerces, bureaux, locaux d'activités, immeubles et fonciers.www.reseau-brokers.com

Honoraires inclus de 4.62% à la charge de l'acquéreur. Prix hors honoraires 650 000 € HT. Dans une copropriété de 5 lots. Aucune procédure n'est en cours. DPE en cours. Les informations sur les risques auxquels ce bien est exposé sont disponibles sur le site Géorisques : georisques.gouv.fr.

Votre conseiller AVINIM RESEAU BROKERS : Hugues VENON
Agent commercial (Entreprise individuelle)
RSAC 491.254.413
RCP 7953190/S17667735
Voir plus

Référence: VP42888-BROKERS
Bien en copropriété. Nombre de lots : 5.
Honoraires d'agence de 4.62% à la charge de l'acquéreur
Barème des honoraires

Prêt immobilier

Vous souhaitez connaître votre capacité d’emprunt et trouver le meilleur crédit immobilier ?
Réaliser une simulation gratuite

Commerce à ORLEANS
PLAN RDC - Commerce à ORLEANS
PLAN RDC
PLAN R-1 / SSOL - Commerce à ORLEANS
PLAN R-1 / SSOL
Commerce à ORLEANS
Commerce à ORLEANS
Commerce à ORLEANS
Commerce à ORLEANS
Commerce à ORLEANS
Commerce à ORLEANS
Ce site est protégé par reCAPTCHA la Politique de confidentialité et les Conditions d’utilisation de Google s’appliquent.
Obtenir un prêt immobilier au meilleur taux ?

En poursuivant votre navigation sans modifier vos paramètres, vous acceptez l'utilisation de cookies susceptibles de réaliser des statistiques de visite. Cliquez ici pour plus d'informations