Bénéficiez des services de nos partenaires locaux soigneusement sélectionnés
pour vous accompagner dans votre parcours d'achat immobilier

Maison 128m² à chasselay

— Chasselay 69380 —
880 000 €
128 m² / 815 m²
5 pièces
balcon/terrassejardinpiscine

Nos partenaires locaux
L'agecne Dufossé Immobilier vous propose à Chasselay, proche Limonest une maison contemporaine 5 pièces - 128 m² - Piscine - Terrain 815 m²
Dans un environnement privilégié, découvrez cette superbe maison contemporaine de 128 m², en cours de construction, offrant des prestations haut de gamme et un cadre de vie exceptionnel et au calme.
Les atouts de ce bien :
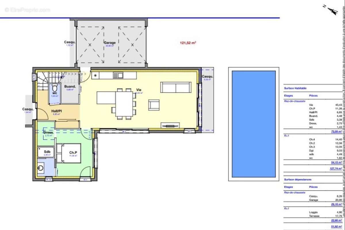
Une vaste pièce de vie de 44 m² baignée de lumière, exposée plein sud, ouverte sur une terrasse idéale pour vos moments de détente.
Une suite parentale de plain-pied avec salle de bains, dressing et WC indépendant.
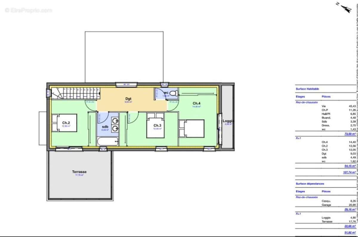
À l'étage, trois grandes chambres dont une avec terrasse de 17 m² et une autre avec loggia de 5 m², une salle de bains et WC séparé.
Un jardin arboré de 815 m² avec une piscine carrelée Bali 9x3,5 m, véritable havre de paix.
Les prestations :
Pompe à chaleur, climatisation réversible, huisseries aluminium, garde-corps en verre, garage de plus de 20 m²... chaque détail a été pensé pour votre confort.
Non soumis au DPE
Environnement :
Village et écoles à 3 minutes en voiture. Lignes de bus 21 à proximité. Accès rapide aux autoroutes A6, A89, A46 et aux nationales N6, N7.
Contact Marlène HIRCHWALD [Coordonnées masquées]
L'immobilier Passion Marlène HIRCHWALD [Coordonnées masquées] [Coordonnées masquées].
Informations LOI ALUR :
Statut du négociateur : Agent commercial.
Honoraires charge vendeur. (gedeon_5278_31129615)
Voir plus

Référence: 12519
Honoraires à la charge du vendeur.

Prêt immobilier

Vous souhaitez connaître votre capacité d’emprunt et trouver le meilleur crédit immobilier ?
Réaliser une simulation gratuite

Photo 1 - Maison à CHASSELAY
Photo 1
Photo 2 - Maison à CHASSELAY
Photo 2
Photo 3 - Maison à CHASSELAY
Photo 3
Photo 4 - Maison à CHASSELAY
Photo 4
Photo 5 - Maison à CHASSELAY
Photo 5
Photo 6 - Maison à CHASSELAY
Photo 6
Ce site est protégé par reCAPTCHA la Politique de confidentialité et les Conditions d’utilisation de Google s’appliquent.
Obtenir un prêt immobilier au meilleur taux ?

En poursuivant votre navigation sans modifier vos paramètres, vous acceptez l'utilisation de cookies susceptibles de réaliser des statistiques de visite. Cliquez ici pour plus d'informations