Bénéficiez des services de nos partenaires locaux soigneusement sélectionnés
pour vous accompagner dans votre parcours d'achat immobilier

Voir tous les partenaires locaux

Appartement 280m² à paris-6e

— Paris-6e 75006 —
4 400 000 €
280 m²
11 pièces
balcon/terrasseascenseur

Nos partenaires locaux
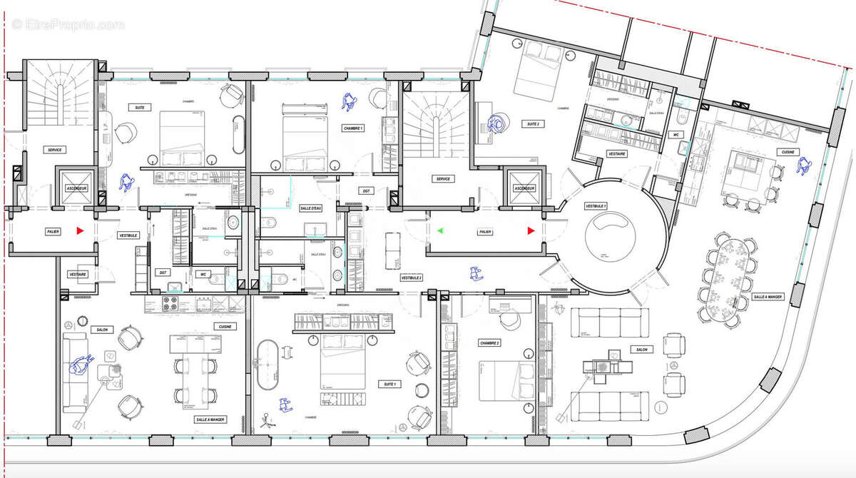
Plateau de 288 m² – Fort Potentiel – Possibilité de Création de Logements
? Secteur recherché – 2? étage avec ascenseur – À rénover entièrement

Nous vous proposons ce vaste plateau brut de plus de 288 m², actuellement aménagé en bureaux, situé au 2? étage d'un immeuble avec ascenseur. Rare sur le secteur, ce bien dispose d'un fort potentiel de transformation, avec la possibilité de créer deux à trois logements selon vos besoins ou projets (voir plans).

? Caractéristiques principales :
Surface totale : environ 288 m²

Actuellement composé de 11 pièces à réagencer

2 salles d'eau existantes

Cuisine indépendante

Balcon

Chauffage collectif

Ascenseur

? Ce bien offre un énorme potentiel d'aménagement, que ce soit pour un usage résidentiel, professionnel (libéral, bureaux haut de gamme), ou un investissement locatif avec division (projet soumis à autorisation).

? Travaux à prévoir :
L'ensemble nécessite une rénovation complète : remise aux normes, agencement intérieur, rafraîchissement. Les parties communes méritent également un rafraîchissement mais la copropriété est stable.

?? Environnement & Accessibilité :
Un emplacement stratégique avec toutes les commodités à moins de 5 minutes à pied :

Transports : bus, métro

Écoles de la crèche au collège

Commerces, restaurants, médecins

Parcs et espaces verts à proximité

Tramway à 10 minutes en voiture

? Un bien unique à fort potentiel :
? Idéal pour investisseurs, marchands de biens ou familles à la recherche de grands volumes à personnaliser.

? Contactez-nous dès maintenant pour obtenir les plans, discuter des possibilités d'aménagement et organiser une visite.

Honoraires inclus de 4.17% TTC à la charge de l'acquéreur. Prix hors honoraires 4 224 000 €. Dans une copropriété de 100 lots. Aucune procédure n'est en cours. Classe énergie D, Classe climat C Montant moyen estimé des dépenses annuelles d'énergie pour un usage standard, établi à partir des prix de l'énergie de l'année 2021 : entre 4030.00 et 5480.00 €. Les informations sur les risques auxquels ce bien est exposé sont disponibles sur le site Géorisques : georisques.gouv.fr.
Voir plus

Référence: VA2291-HORE
Bien en copropriété. Nombre de lots : 100.
Honoraires d'agence de 4.17% à la charge de l'acquéreur
Barème des honoraires
DPE
A
B
C
D
E
F
G
GES
A
B
C
D
E
F
G

Prêt immobilier

Vous souhaitez connaître votre capacité d’emprunt et trouver le meilleur crédit immobilier ?
Réaliser une simulation gratuite

Appartement à PARIS-6E
Appartement à PARIS-6E
Appartement à PARIS-6E
Appartement à PARIS-6E
Appartement à PARIS-6E
Appartement à PARIS-6E
Appartement à PARIS-6E
Appartement à PARIS-6E
Appartement à PARIS-6E
Ce site est protégé par reCAPTCHA la Politique de confidentialité et les Conditions d’utilisation de Google s’appliquent.
Obtenir un prêt immobilier au meilleur taux ?

En poursuivant votre navigation sans modifier vos paramètres, vous acceptez l'utilisation de cookies susceptibles de réaliser des statistiques de visite. Cliquez ici pour plus d'informations