Bénéficiez des services de nos partenaires locaux soigneusement sélectionnés
pour vous accompagner dans votre parcours d'achat immobilier

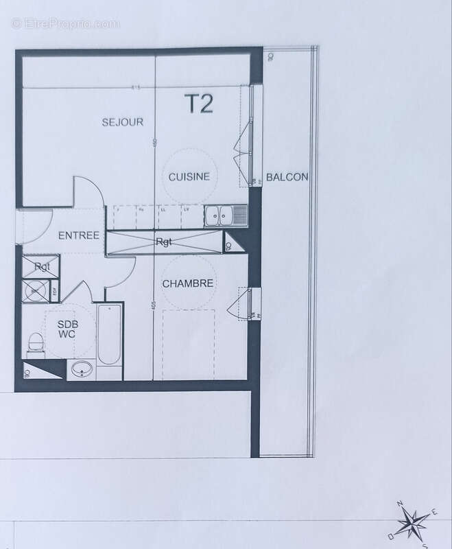
Appartement à vendre 2 pièces toulouse (31400)

— Toulouse 31400 —
170 000 €
51 m²
2 pièces
parkingbalcon/terrasseascenseur

Nos partenaires locaux
L'appartement est situé au troisième étage d'un petit bâtiment d'une résidence récente au cœur du quartier très recherché de Toulouse 31400 . Il se compose de 2 pièces pour une surface totale de 51,35 m² . L'appartement est lumineux (grande baie vitrée) spacieux , bien agencé avec cuisine ouverte sur la pièce à vivre de 27 m² donnant sur un très long balcon avec une vue sans vis et vis et bien dégagée sur le hall des machines bien connu des toulousains . Il offre 1 chambre de 14m² . Une place de parking souterrain sécurisé est compris dans le prix du bien . Proche des entrées rocades et accès direct avec le centre ville . Arrêt de bus au pied de l'immeuble . Nombre de lots de la copropriété: 72, Montant moyen de la quote-part annuelle de charges (budget prévisionnel) : 2733€ soit 227€ par mois. Les honoraires sont à la charge du vendeur.
Les informations sur les risques auxquels ce bien est exposé sont disponibles sur le site Géorisques : www. georisques. gouv. fr.

Contactez Patrick FONVIEILLE Entrepreneur Individuel, Agent commercial OptimHome (RSAC N°811 530 559 Greffe de TOULOUSE) [Coordonnées masquées] (réf. 583103 )
Voir plus

Référence: 830034592684
Bien en copropriété. Nombre de lots : 72. Charges de copropriété : 227 €.
Honoraires à la charge du vendeur.
DPE
A
B
C
D
E
F
G
GES
A
B
C
D
E
F
G

Prêt immobilier

Vous souhaitez connaître votre capacité d’emprunt et trouver le meilleur crédit immobilier ?
Réaliser une simulation gratuite

Appartement à TOULOUSE
Appartement à TOULOUSE
Appartement à TOULOUSE
Appartement à TOULOUSE
Appartement à TOULOUSE
Appartement à TOULOUSE
Appartement à TOULOUSE
Appartement à TOULOUSE
Ce site est protégé par reCAPTCHA la Politique de confidentialité et les Conditions d’utilisation de Google s’appliquent.
Obtenir un prêt immobilier au meilleur taux ?

En poursuivant votre navigation sans modifier vos paramètres, vous acceptez l'utilisation de cookies susceptibles de réaliser des statistiques de visite. Cliquez ici pour plus d'informations