Bénéficiez des services de nos partenaires locaux soigneusement sélectionnés
pour vous accompagner dans votre parcours d'achat immobilier

Beaux bureaux avec terrasse

— Levallois-Perret 92300 —
1 800 000 €
339 m²
15 pièces
ascenseur

Nos partenaires locaux
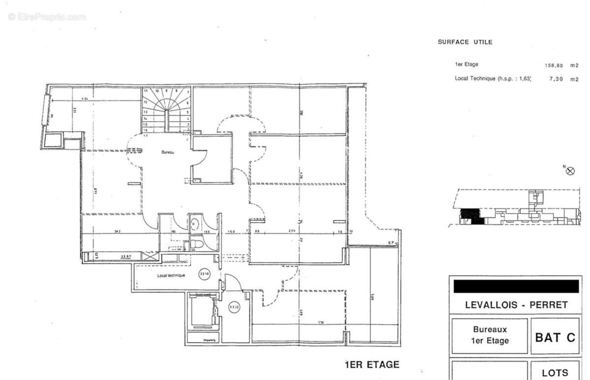
A quelques encablures de la gare de Clichy Levallois ou du métro Pont de Levallois, dans un immeuble récent bien sécurisé, de très bon standing et bien entretenu, nous vous proposons ces beaux bureaux modulables et aménageables selon vos besoins. Ces locaux sont très lumineux et calmes. Ils bénéficient d'une terrasse d'environ 22 m2. Au rez-de-chaussée : environ 156 m2 et au 1er étage environ 158 m2. Au sous-sol : une surface d'environ 25 m2. Possibilité d'acquérir 3 places de stationnement dans l'immeuble. Honoraires de 5% HT à la charge de l'acquéreur soit un prix honoraires inclus de 1914000 euros FAI. Bien en copropriété. Charges : environ 750 euros / mois. Votre contact rez-de-chaussee.com Antoine [Coordonnées masquées].
Voir plus

Référence: 3674
Barème des honoraires

Prêt immobilier

Vous souhaitez connaître votre capacité d’emprunt et trouver le meilleur crédit immobilier ?
Réaliser une simulation gratuite

Commerce à LEVALLOIS-PERRET
Commerce à LEVALLOIS-PERRET
Commerce à LEVALLOIS-PERRET
Commerce à LEVALLOIS-PERRET
Commerce à LEVALLOIS-PERRET
Commerce à LEVALLOIS-PERRET
Commerce à LEVALLOIS-PERRET
Commerce à LEVALLOIS-PERRET
Commerce à LEVALLOIS-PERRET
Commerce à LEVALLOIS-PERRET
Ce site est protégé par reCAPTCHA la Politique de confidentialité et les Conditions d’utilisation de Google s’appliquent.
Obtenir un prêt immobilier au meilleur taux ?

En poursuivant votre navigation sans modifier vos paramètres, vous acceptez l'utilisation de cookies susceptibles de réaliser des statistiques de visite. Cliquez ici pour plus d'informations