Saulieu : immeuble mixte, local commercial et habitation

— Saulieu 21210 —
110 000 €
170 m²
6 pièces

Découvrez cette opportunité exceptionnelle d'acquérir un immeuble alliant à la perfection vie professionnelle et vie privée, situé au cœur de Saulieu.

Local commercial d'une surface de 65 m² environ, parfait pour accueillir votre activité ou votre projet entrepreneurial. Sa visibilité et son emplacement stratégique en font un atout majeur pour attirer une clientèle variée.

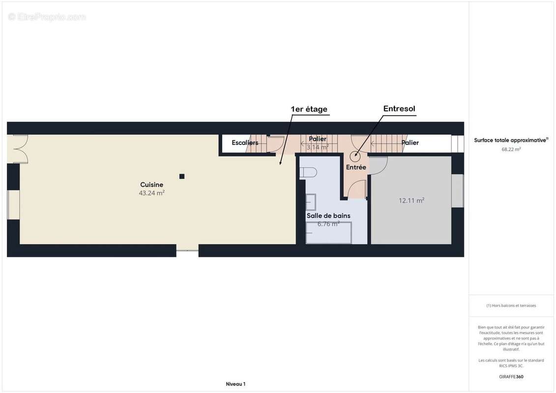
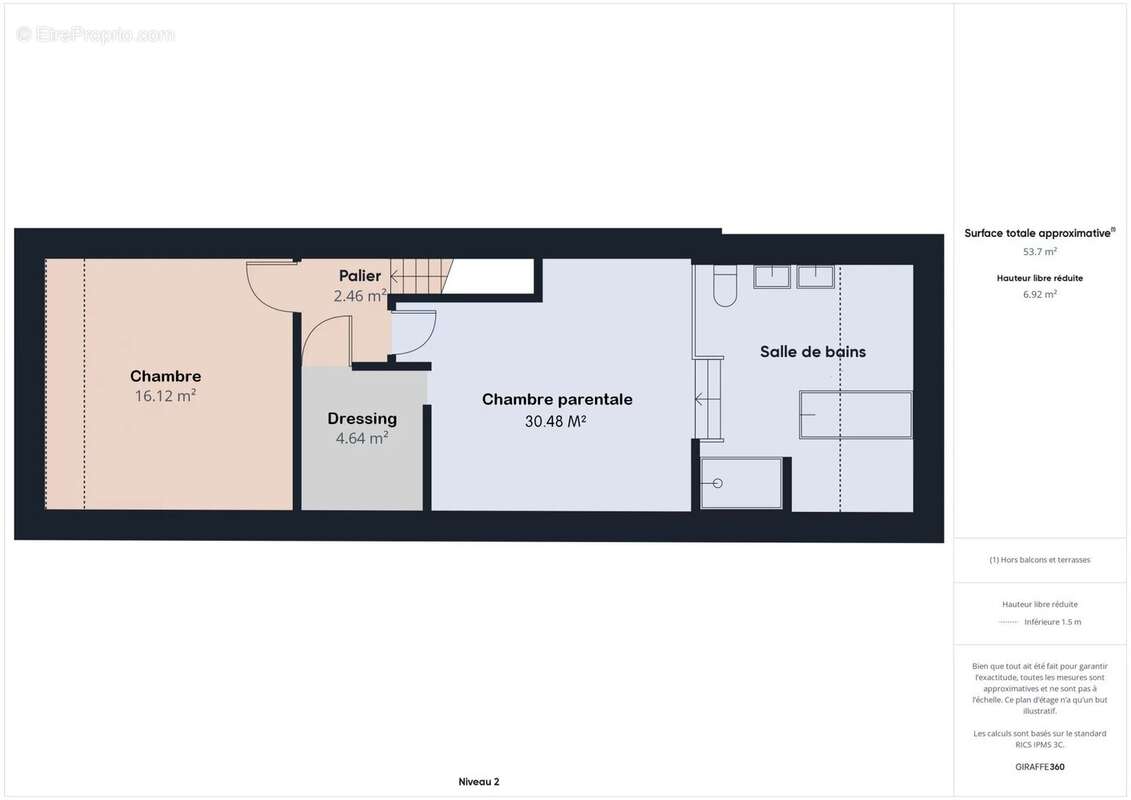
Appartement en duplex avec 105 m² de surface habitable. Cet espace confortable et lumineux est idéal pour votre vie de famille. Profitez de pièces bien agencées, d'une ambiance chaleureuse et de tout le confort nécessaire pour vous sentir chez vous.
Grande pièce à vivre avec cuisine aménagée et îlot central avec poêle à granulés, une salle de bains/WC et bureau ou chambre, 2 chambres dont une avec salle de bains attenante.

Le local commercial et l'appartement sont conçus pour vous permettre de jongler facilement entre vos obligations professionnelles et personnelles.

Emplacement privilégié dans une ville commerçante, proche des commodités, des écoles et des transports, cet immeuble est parfait pour ceux qui recherchent un cadre de vie agréable. Cour à l'arrière du local commercial.
Voir plus

Référence: 4668
Barème des honoraires
DPE
A
B
C
D
E
F
G
GES
A
B
C
D
E
F
G

Prêt immobilier

Vous souhaitez connaître votre capacité d’emprunt et trouver le meilleur crédit immobilier ?
Réaliser une simulation gratuite

Appartement à SAULIEU
Appartement à SAULIEU
Appartement à SAULIEU
Appartement à SAULIEU
Appartement à SAULIEU
Appartement à SAULIEU
Appartement à SAULIEU
Appartement à SAULIEU
Appartement à SAULIEU
Appartement à SAULIEU
Appartement à SAULIEU
Appartement à SAULIEU
Ce site est protégé par reCAPTCHA la Politique de confidentialité et les Conditions d’utilisation de Google s’appliquent.
Obtenir un prêt immobilier au meilleur taux ?

En poursuivant votre navigation sans modifier vos paramètres, vous acceptez l'utilisation de cookies susceptibles de réaliser des statistiques de visite. Cliquez ici pour plus d'informations