Bénéficiez des services de nos partenaires locaux soigneusement sélectionnés
pour vous accompagner dans votre parcours d'achat immobilier

Toute belle toute neuve

— Nancy 54000 —
218 000 €
94 m² / 150 m²
5 pièces
parkingbalcon/terrassejardin

Nos partenaires locaux
TOUTE BELLE TOUTE NEUVE
 
Visitez ce bien autrement en vous rendant sur notre site internet et découvrez plus d’informations également.
 
Qui veut une maison toute belle toute neuve ?
Au plateau de Haye, rue Jean Monnet elle est faite pour vous et votre famille.
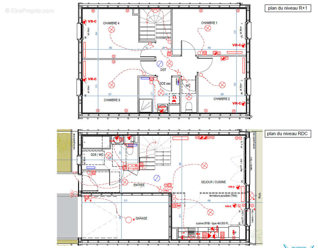
Maison de 93.90 m2 au style contemporain intégrée dans la nature, sa conception repose essentiellement sur le bois : ossature, bardage, menuiseries.
Elle possède un jardin privatif de 90 m2 clôturé avec une haie de pruneliers et de charmilles (effectivement ce ne sont pas des cactus). De quoi profiter pleinement de votre habitat aussi bien en intérieur qu’en extérieur.
Elle vous propose au rez-de-chaussée une entrée donnant sur le séjour, la cuisine ouverte ou fermée, une salle de bain avec WC ainsi que le garage et une place de stationnement.
A l’étage, les 4 belles chambres, une salle d’eau et un WC séparé.
Vous serez proches des accès autoroutiers, des arrêts de tram et de bus, des commerces de proximité, du pôle médical de Gentilly, des écoles maternelles et élémentaires, collèges et universités, d’une crèche, d’un parc forestier.
Si vous voulez un peu de Center Parc chez vous je vous invite à me contacter pour visiter.
 
 
Votre agent commercial n’est pas glacial, il sait :
Estimer (sans louche)
Photographier (sans l’aide de Gérard et son smartphone)
Visiter (sans gaffe à la Pierre Richard, quoique !)
Tirer les plans (à l’échelle, pas sur la comète)
Vendre (si on change 4 lettres à BLIQUE, ça fait VENDUE, eh ouais !)
Cette annonce vous est proposée par - EIRL - NoRSAC: 829579358, Enregistré au Greffe du tribunal de commerce de Nancy
Voir plus

Bien en copropriété. Nombre de lots : 76.
Barème des honoraires
DPE
A
B
C
D
E
F
G
GES
A
B
C
D
E
F
G

Prêt immobilier

Vous souhaitez connaître votre capacité d’emprunt et trouver le meilleur crédit immobilier ?
Réaliser une simulation gratuite

Maison à NANCY
Maison à NANCY
Maison à NANCY
Maison à NANCY
Maison à NANCY
Maison à NANCY
Maison à NANCY
Maison à NANCY
Maison à NANCY
Maison à NANCY
Maison à NANCY
Maison à NANCY
Maison à NANCY
Maison à NANCY
Maison à NANCY
Maison à NANCY
Maison à NANCY
Ce site est protégé par reCAPTCHA la Politique de confidentialité et les Conditions d’utilisation de Google s’appliquent.
Obtenir un prêt immobilier au meilleur taux ?

En poursuivant votre navigation sans modifier vos paramètres, vous acceptez l'utilisation de cookies susceptibles de réaliser des statistiques de visite. Cliquez ici pour plus d'informations