Grande maison avec piscine - 2 logements dont 1 logement loué à l'année loyer 980€/mois hors charge

— Saint-Sauveur-De-Montagut 07190 —
389 000 €
209 m² / 1 500 m²
8 pièces
parkingbalcon/terrassejardinpiscine

Dans la belle Vallée de L'Eyrieux, charmante maison en pierres, idéale pour grande famille ou pour revenues locatifs avec 2 logements indépendants et une piscine 4X8 et abri télescopique coulissant. Une très belle terrasse et un abri de voiture de respectivement de 70m².

Photos sur :https://www.capifrance.fr/conseillers/dominique.dejours
VUE SPLENDIDE SUR L'EYRIEUX ET À 2 PAS DE LA DOLCE VIA

Maison très bien entretenue par ses propriétaires qui n'ont eu de cesse de la rendre confortable et accueillante.
La toiture a été refaite en 2010, une chaudière à granulé avec un silo installée en 2008 et permet de chauffer les maisons. Les menuiseries sont en PVC, changées il y a environ 3 ans. La grande véranda bénéficie de volets roulants électriques. La maison est classée en C pour le DPE et en A pour le GES, ce qui est assez exceptionnel pour une maison ancienne et en pierres.

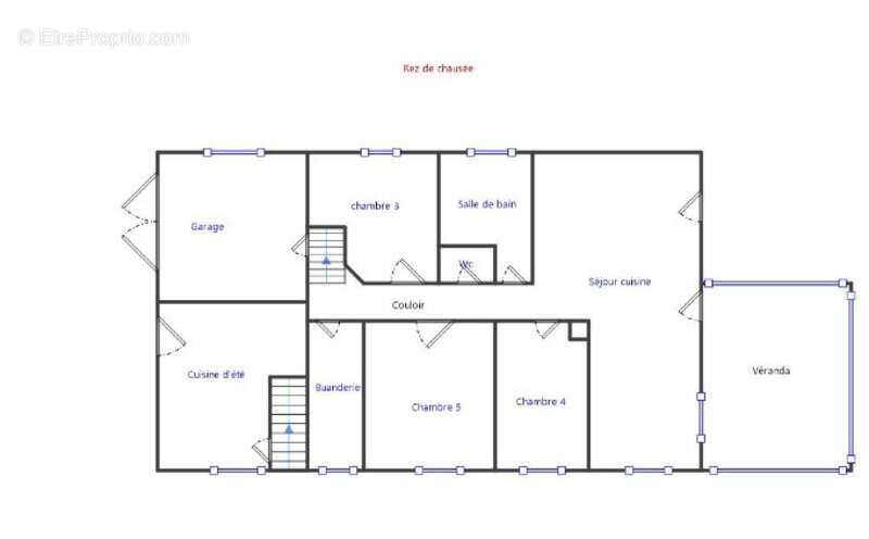
La maison est répartie ainsi :

1er LOGEMENT : Une grande véranda de 40m² environ chauffée grâce à un poêle à granulé récemment installé et une clim réversible. La véranda bénéficie d'une belle luminosité, c'est incontestablement la pièce à vivre. Sur ce même niveau, 2 chambres (11.2 et 13.2m² environ), une cuisine équipée et séparée (11.7m²), un grand séjour (20m² environ), une grande salle de bain (8m²), un cellier. Sur cet étage, se trouve également un balcon filant autour de la cuisine et de la salle à manger.

Second LOGEMENT : Une véranda de 19m² donnant sur la cuisine/séjour de près de 32m², 3 chambres (9,9/10/12.5m²),une grande salle de bain (7.4m²) et également un cellier.

SOUS-SOL de 96m² où est installé la chaufferie.

UN DERNIER ÉTAGE parfaitement aménageable d'une superficie de 92m².

La maison bénéficie également d'un garage, d'une cuisine d'été (22m² environ). La maison est clôturée par une jolie barrière et la propriété fermée par un portail à commande électrique.

Saint Sauveur se trouve à 40 km de Valence, à 30 km de Privas (préfecture de l'Ardèche) et 25 km du Cheylard et à 35mn d'une Entrée/Sortie d'autoroute.

À St Sauveur vous trouverez des commerces (alimentaires, bars/restaurants, tabac/presse, coiffeurs, garages, magasin de jeux, ...) et une offre de soin également intéressante telle que médecins, kiné, infirmiers, pharmacie, psychologue, dermatologue, sage-femme, ostéopathe, et bien d'autres praticiens.

Accessibilité facilitée grâce à un bus qui parcourt la vallée de l'Eyrieux depuis Le Cheylard jusqu'à Valence ville, il permet 5 fois par jour (dans un sens comme dans un autre) de rejoindre Valence et sa gare (Paris est à 2h15 de Valence, Marseille ou Lyon Ville ou aéroport à moins d'une heure en TGV).

Sur la commune, vous trouverez une école primaire et maternelle, un collège, lycée au Cheylard ou à Privas avec un transport scolaire.

St Sauveur est située dans la magnifique Vallée de l'Eyrieux où vous retrouverez la Dolce Via, une voie douce aménagée sur une ancienne voie de chemin de fer délaissée par le train à la fin des années 60, aujourd'hui elle permet de se balader, à pieds ou à vélo de façon sécurisée car en majorité réservée aux piétons et aux vélocipèdes. Si vous la parcourez vous suivez la Vallée de l'Eyrieux sur près de 90km, connectée au Rhône, c'est une belle parenthèse à découvrir et redécouvrir. Sur votre route, plantations d'arbres fruitiers, anciens moulinages et ouvrages d'art de la voie ferrée vous aideront à comprendre le passé agricole et industriel de cette vallée. De nombreux coins de baignade permettent de se rafraichir dans des décors splendides et insolites (L'Auzene, la Gluyere, l'Eyrieux) et des lieux de pique-nique sont à dénicher pour qui prendra le temps...

Les honoraires sont à la charge du vendeur.
Les informations sur les risques auxquels ce bien est exposé sont disponibles sur le site Géorisques : www. georisques. gouv. fr.

Réseau Immobilier CAPIFRANCE - Votre agent commercial (RSAC N°521 161 752 - Greffe de AUBENAS) Dominique DEJOURS Entrepreneur Individuel [Coordonnées masquées] - Réf.903134
Voir plus

Référence: 340938597642
Honoraires à la charge du vendeur.
DPE
A
B
C
D
E
F
G
GES
A
B
C
D
E
F
G

Prêt immobilier

Vous souhaitez connaître votre capacité d’emprunt et trouver le meilleur crédit immobilier ?
Réaliser une simulation gratuite

Maison à SAINT-SAUVEUR-DE-MONTAGUT
Maison à SAINT-SAUVEUR-DE-MONTAGUT
Maison à SAINT-SAUVEUR-DE-MONTAGUT
Maison à SAINT-SAUVEUR-DE-MONTAGUT
Maison à SAINT-SAUVEUR-DE-MONTAGUT
Maison à SAINT-SAUVEUR-DE-MONTAGUT
Maison à SAINT-SAUVEUR-DE-MONTAGUT
Maison à SAINT-SAUVEUR-DE-MONTAGUT
Maison à SAINT-SAUVEUR-DE-MONTAGUT
Maison à SAINT-SAUVEUR-DE-MONTAGUT
Maison à SAINT-SAUVEUR-DE-MONTAGUT
Maison à SAINT-SAUVEUR-DE-MONTAGUT
Maison à SAINT-SAUVEUR-DE-MONTAGUT
Maison à SAINT-SAUVEUR-DE-MONTAGUT
Maison à SAINT-SAUVEUR-DE-MONTAGUT
Maison à SAINT-SAUVEUR-DE-MONTAGUT
Maison à SAINT-SAUVEUR-DE-MONTAGUT
Maison à SAINT-SAUVEUR-DE-MONTAGUT
Maison à SAINT-SAUVEUR-DE-MONTAGUT
Maison à SAINT-SAUVEUR-DE-MONTAGUT
Maison à SAINT-SAUVEUR-DE-MONTAGUT
Maison à SAINT-SAUVEUR-DE-MONTAGUT
Maison à SAINT-SAUVEUR-DE-MONTAGUT
Maison à SAINT-SAUVEUR-DE-MONTAGUT
Maison à SAINT-SAUVEUR-DE-MONTAGUT
Maison à SAINT-SAUVEUR-DE-MONTAGUT
Maison à SAINT-SAUVEUR-DE-MONTAGUT
Maison à SAINT-SAUVEUR-DE-MONTAGUT
Maison à SAINT-SAUVEUR-DE-MONTAGUT
Maison à SAINT-SAUVEUR-DE-MONTAGUT
Maison à SAINT-SAUVEUR-DE-MONTAGUT
Maison à SAINT-SAUVEUR-DE-MONTAGUT
Maison à SAINT-SAUVEUR-DE-MONTAGUT
Maison à SAINT-SAUVEUR-DE-MONTAGUT
Maison à SAINT-SAUVEUR-DE-MONTAGUT
Maison à SAINT-SAUVEUR-DE-MONTAGUT
Maison à SAINT-SAUVEUR-DE-MONTAGUT
Maison à SAINT-SAUVEUR-DE-MONTAGUT
Maison à SAINT-SAUVEUR-DE-MONTAGUT
Maison à SAINT-SAUVEUR-DE-MONTAGUT
Maison à SAINT-SAUVEUR-DE-MONTAGUT
Maison à SAINT-SAUVEUR-DE-MONTAGUT
Maison à SAINT-SAUVEUR-DE-MONTAGUT
Maison à SAINT-SAUVEUR-DE-MONTAGUT
Maison à SAINT-SAUVEUR-DE-MONTAGUT
Ce site est protégé par reCAPTCHA la Politique de confidentialité et les Conditions d’utilisation de Google s’appliquent.
Obtenir un prêt immobilier au meilleur taux ?

En poursuivant votre navigation sans modifier vos paramètres, vous acceptez l'utilisation de cookies susceptibles de réaliser des statistiques de visite. Cliquez ici pour plus d'informations