Bénéficiez des services de nos partenaires locaux soigneusement sélectionnés
pour vous accompagner dans votre parcours d'achat immobilier

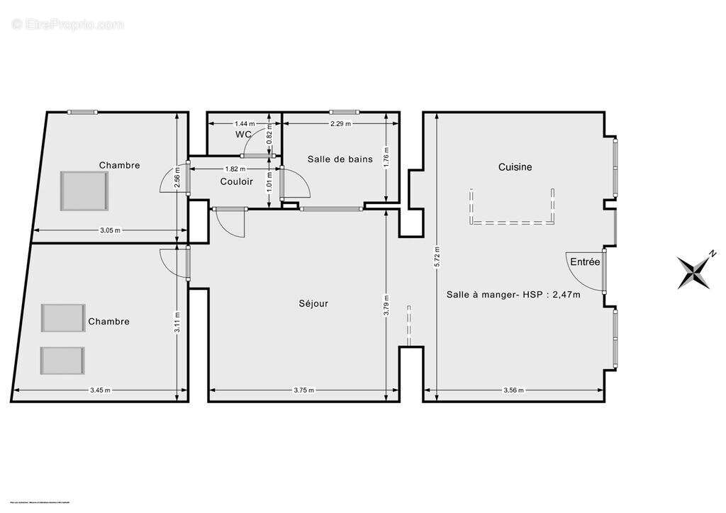
Appartement 62m² à paris-18e

— Paris-18e 75018 —
498 000 €
62 m²
3 pièces

Nos partenaires locaux
PARIS XVIII - Rue Marcadet - A moins de 5 minutes à pied de la station de métro Lamarck-Caulaincourt et à proximité des commerces et parcs, venez découvrir ce joli trois pièces. Composé d'une entrée, d'une belle cuisine ouverte sur la salle à manger, d'un espace salon en second jour, d'une grande chambre, d'une chambre enfant, d'une salle de bains et de toilettes indépendants. Un appartement de caractère avec un beau parquet, au calme absolu disposant d'une bonne notation énergétique : entièrement isolé par l'intérieur, double vitrage, chauffage et eau chaude alimentée avec une chaudière individuelle gaz. Les chambres disposent de trois grandes fenêtres de toit apportant une grande clarté. Un cabanon complète le bien.
Voir plus
DPE
A
B
C
D
E
F
G
GES
A
B
C
D
E
F
G

Prêt immobilier

Vous souhaitez connaître votre capacité d’emprunt et trouver le meilleur crédit immobilier ?
Réaliser une simulation gratuite

Appartement à PARIS-18E
Appartement à PARIS-18E
Appartement à PARIS-18E
Appartement à PARIS-18E
Appartement à PARIS-18E
Appartement à PARIS-18E
Appartement à PARIS-18E
Appartement à PARIS-18E
Appartement à PARIS-18E
Ce site est protégé par reCAPTCHA la Politique de confidentialité et les Conditions d’utilisation de Google s’appliquent.
Obtenir un prêt immobilier au meilleur taux ?

En poursuivant votre navigation sans modifier vos paramètres, vous acceptez l'utilisation de cookies susceptibles de réaliser des statistiques de visite. Cliquez ici pour plus d'informations