Bénéficiez des services de nos partenaires locaux soigneusement sélectionnés
pour vous accompagner dans votre parcours d'achat immobilier

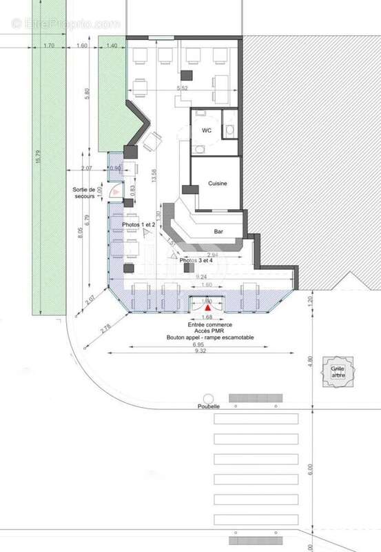
Commerce 100m² à paris-13e

— Paris-13e 75013 —
549 000 €
100 m²

Nos partenaires locaux
Iad France - Claire Hontarede ([Coordonnées masquées]) vous propose : Fonds de commerce de près de 100 m² environ avec Licence IV à céder situé dans un quartier dynamique et en pleine expansion de Paris 13ème.

Bail 3 / 6/9 en cours - Bar, brasserie, café.

Vous serez séduit par l'emplacement du lieu : En angle de rue, accès à plusieurs Métro, dans un quartier d'affaires et à la fois résidentiel.

Composition : Salle avec baies vitrés qui peut complètement s'ouvrir sur la terrasse, puis arrière-salle (souvent privatisée), wc et une cuisine avec des équipements récent.

Capacité : 60 couverts en intérieur, jusqu'à 57 couverts en extérieur avec la terrasse en période estivale.

Chiffre d'affaires en constante augmentation.

N'hésitez pas à me contacter pour plus de renseignements et pour organiser une visite.

Information d'affichage énergétique sur le bien associé à cette annonce : DPE NS indice 0 et GES NS indice 0. La présente annonce immobilière a été rédigée sous la responsabilité éditoriale de Mlle Claire Hontarede (ID 41251), Agent Commercial mandataire en immobilier immatriculé au Registre Spécial des Agents Commerciaux (RSAC) du Tribunal de Commerce de Melun sous le numéro 877850958
Retrouvez tous nos biens sur notre site internet. www.iadfrance.fr.
Informations LOI ALUR :
Honoraires charge vendeur. (gedeon_6727_31147419)
Voir plus

Référence: 1746019
Honoraires à la charge du vendeur.

Prêt immobilier

Vous souhaitez connaître votre capacité d’emprunt et trouver le meilleur crédit immobilier ?
Réaliser une simulation gratuite

Photo 1 - Commerce à PARIS-13E
Photo 1
Photo 2 - Commerce à PARIS-13E
Photo 2
Photo 3 - Commerce à PARIS-13E
Photo 3
Photo 4 - Commerce à PARIS-13E
Photo 4
Photo 5 - Commerce à PARIS-13E
Photo 5
Photo 6 - Commerce à PARIS-13E
Photo 6
Photo 7 - Commerce à PARIS-13E
Photo 7
Photo 8 - Commerce à PARIS-13E
Photo 8
Ce site est protégé par reCAPTCHA la Politique de confidentialité et les Conditions d’utilisation de Google s’appliquent.
Obtenir un prêt immobilier au meilleur taux ?

En poursuivant votre navigation sans modifier vos paramètres, vous acceptez l'utilisation de cookies susceptibles de réaliser des statistiques de visite. Cliquez ici pour plus d'informations