Bénéficiez des services de nos partenaires locaux soigneusement sélectionnés
pour vous accompagner dans votre parcours d'achat immobilier

3%.COM - Exclusivité STRASBOURG-Meinau, F3 de 61,5m2,1 garag

— Strasbourg 67100 —
199 000 €
61 m²
3 pièces
parkingbalcon/terrasseascenseur

Nos partenaires locaux
!!! DÉJÀ VENDU !!!

3%.COM - En Exclusivité à STRASBOURG (Route de la Meinau), 3 pièces de 61,5m2 situé au 1er étage sur 5 avec ascenseur --- proche des transports en commun et de toutes commodités, 1 garage fermé en sous/sol complète ce bien.

--- Copropriété très bien tenue érigée en 2018.

--- Vous recherchez un logement fonctionnel, sans travaux situé en face d'un parc arboré, une terrasse couverte, alors ce bien sera vous séduire, alors n'hésitez pas et venez visiter cet appartement.

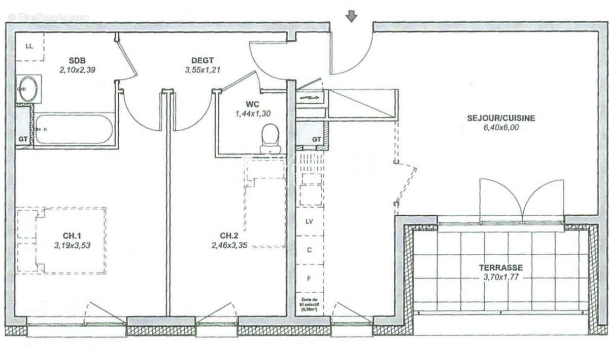
Composition:
-- 1 dégagement équipé d'un placard.
-- 1 espace séjour/cuisine (25m2) semi-équipé avec accès à une terrasse couverte (expo Sud).
-- 1 couloir.
-- 1 toilette séparé.
-- 1 salle de bain (baignoire, simple vasque).
-- 1 chambre de 12,5m2.
-- 1 chambre de 9,5m2.

Autres informations:
-- 1 garage en sous/sol équipé d'une porte motorisée.
-- Bon pouvoir locatif, avis aux investisseurs ou parents souhaitant un bien pour leur(s) enfant(s) étudiant(s).
-- Vendu libre de toute location.
-- Fenêtre pvc double vitrage, volet manuel.
-- 1 terrasse couverte équipée d'une prise et d'un point lumineux.
-- Arrêt bus (Louis Loucheur) ligne 31à 200 mètres.
-- Arrêt bus (Cité Meinau) ligne 31 et C7 à 500 mètres.
-- Bien soumis à la copropriété.
-- La copropriété est constituée de 65 logements - 136 Lots.
-- Charges courantes/mois de copropriété: 131EUR/mois TOUT COMPRIS, (électricité communs, eau froide, eau chaude, chauffage, honoraires syndic, assurance copro, etc...) soit 1569EUR EUR/an.
-- Chauffage collectif au gaz de ville.
-- Isolation extérieure.
-- DPE: C.

-- Principales distances (Route):
Schilt. Parc Euro Entrep: 14 min, 11 km.
Strasbourg-centre: 11 min, 4 km.
Mundolsheim: 16 min, 13 km.
Illkirch : 10 min, 4 km.
Lingolsheim : 12 min, 9 km.

3%.COM - ROTH IMMOBILIER : réseau national à honoraires réduits, accompagnement complet, expertise du marché local.

Contactez Sébastien BELNY, conseiller immobilier 3%.COM
Du lundi au samedi de 9h00 à 19h00.
[Coordonnées masquées] (appel/SMS/WhatsApp)
Sé[Coordonnées masquées]
Agent Commercial en Immobilier, inscrit au RSAC Strasbourg No 797 569 951.
spécialiste de la vente immobilière à honoraires réduits sur MUNDOLSHEIM, LAMPERTHEIM, VENDENHEIM, DINGSHEIM, GRIESHEIM-sur-Souffel, PFULGRIESHEIM et alentours.

Visites sur rendez-vous réponse rapide.

-- Agence Immobilière ROTH IMMOBILIER Sarl, franchisé 3%.COM, RCS 803 863 638.
-- Agence et vitrines à Hochfelden, siège à Gimbrett-Kochersberg.
-- Réseau national à honoraires réduits: 3% TTC
Annonce proposée par un agent commercial
Les informations sur les risques auxquels ce bien est exposé sont disponibles sur le site Géorisques : www.georisques.gouv.fr - Annonce rédigée et publiée par un Agent Mandataire -
Voir plus

Référence: 55_V1000059799
Honoraires d'agence de 3.11% à la charge de l'acquéreur
DPE
A
B
C
D
E
F
G
GES
A
B
C
D
E
F
G
Appartement à STRASBOURG
Appartement à STRASBOURG
Appartement à STRASBOURG
Appartement à STRASBOURG
Appartement à STRASBOURG
Appartement à STRASBOURG
Appartement à STRASBOURG
Appartement à STRASBOURG
Appartement à STRASBOURG
Appartement à STRASBOURG
Appartement à STRASBOURG
Appartement à STRASBOURG
Appartement à STRASBOURG
Géorisques

Les informations sur les risques auxquels ce bien est exposé sont disponibles sur le site Géorisques : www.georisques.gouv.fr

Ce site est protégé par hCaptcha Politique de confidentialité et Conditions d’utilisation s’appliquent.