Bénéficiez des services de nos partenaires locaux soigneusement sélectionnés
pour vous accompagner dans votre parcours d'achat immobilier

Terrain 281m² à argenteuil

— Argenteuil 95100 —
199 000 €
281 m²

Nos partenaires locaux
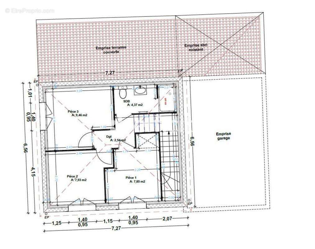
Terrain constructible avec permis déjà purgé. Quartier Orgemont à 8 minutes de la Gare d'Argenteuil–

Groupe C2i by Efficity vous propose ce terrain à bâtir d'une superficie de 281 m² idéalement situé dans le très recherché quartier Orgemont à Argenteuil.

Permis de construire accordé et purgé de tout recours pour une maison individuelle R+1 d'environ 104 m² de surface plancher.
Libre constructeur, vous êtes totalement libre d'adapter ou de reprendre le projet existant selon vos envies.

Localisé dans un environnement résidentiel calme et pavillonnaire, ce terrain bénéficie d'une exposition optimale Sud, Ouest et Est.
À proximité immédiate des écoles, des commerces et à seulement 8 minutes à pied de la Gare d'Argenteuil, cette parcelle est idéale pour un projet familial.

Façade généreuse de 20 mètres, permettant la réalisation d'une maison confortable avec garage intégré et stationnement sur la parcelle.

Prix : 199 000€ FAI (185 000€ net vendeur + 14 000€ honoraires agence à charge acquéreur).

Contactez-moi dès aujourd'hui pour plus d'informations ou organiser une visite : François VAZ, EffiCity Argenteuil au [Coordonnées masquées].
Les informations sur les risques auxquels ce bien est exposé sont disponibles sur le site Georisque : georisques. gouv. fr
François Vaz - EI - est Agent Commercial mandataire en immobilier, immatriculé au Registre Spécial des Agents Commerciaux du Tribunal de Commerce de Pontoise sous le n°393540059.
Siège social du mandant : effiCity, 48 avenue de Villiers - 75017 PARIS - Société par Actions Simplifiée, société au capital de 132 373,05 euros, immatriculée au RCS Paris 497 617 746 et titulaire de la Carte professionnelle CPI 75[Coordonnées masquées]02 025 - CCI Paris IDF - Caisse de Garantie : GALIAN Assurances 89 rue de la Boétie 75008 Paris
Voir plus

Référence: 182385
Honoraires d'agence de 7.57% à la charge de l'acquéreur
Barème des honoraires

Prêt immobilier

Vous souhaitez connaître votre capacité d’emprunt et trouver le meilleur crédit immobilier ?
Réaliser une simulation gratuite

Terrain à ARGENTEUIL
Terrain à ARGENTEUIL
Terrain à ARGENTEUIL
Terrain à ARGENTEUIL
Terrain à ARGENTEUIL
Terrain à ARGENTEUIL
Terrain à ARGENTEUIL
Terrain à ARGENTEUIL
Terrain à ARGENTEUIL
Ce site est protégé par reCAPTCHA la Politique de confidentialité et les Conditions d’utilisation de Google s’appliquent.
Obtenir un prêt immobilier au meilleur taux ?

En poursuivant votre navigation sans modifier vos paramètres, vous acceptez l'utilisation de cookies susceptibles de réaliser des statistiques de visite. Cliquez ici pour plus d'informations