Bénéficiez des services de nos partenaires locaux soigneusement sélectionnés
pour vous accompagner dans votre parcours d'achat immobilier

Exclusivite bel appartement le vesinet

— Le Vesinet 78110 —
570 000 €
110 m²
5 pièces
parkingbalcon/terrasse

Nos partenaires locaux
Excusivité Elizabeth Taylor Luxury,
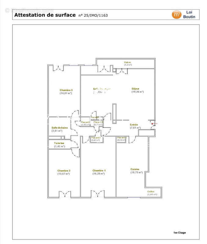
Secteur recherché au Vésinet, proche du RER A, au sein d’un bel immeuble avec ascenseur, découvrez ce magnifique appartement refait à neuf, d'une superficie de 110 m2. Ce bien offre un confort de vie appréciable grâce à la distribution des pièces, une exposition SUD avec une belle vue, une belle luminosité, de nombreux rangements, fenêtres en double vitrage. L'entrée ouvre sur un séjour, une cuisine séparée avec cellier. Un espace dessert trois chambres. Une cave et un emplacement de parking situés en sous-sol complètent l'ensemble.
Prix 570 000 euros FAI dont 20 000 € de commission charge acquéreur.
Les informations sur les risques auxquels ce bien est exposé sont disponibles sur le site de Géorisques :
Les informations sur les risques auxquels ce bien est exposé sont disponibles sur le site Géorisques : www.georisques.gouv.fr. La présente annonce immobilière a été rédigée sous la responsabilité éditoriale de Mme ELEONORE RENARD mandataire indépendant en immobilier (sans détention de fonds), agent commercial immatriculé au RSAC de VERSAILLES sous le numéro 941 478 166, titulaire de la carte de démarchage immobilier pour le compte de la société ELIZABETH TAYLOR LUXURY carte de transaction CPI78[Coordonnées masquées]45277 et joignable au [Coordonnées masquées]. Retrouvez tous nos biens sur notre site internet www.elizabethtaylorluxury.com


.
Voir plus

Référence: 294
Bien en copropriété. Nombre de lots : 202.
Honoraires d'agence de 3.64% à la charge de l'acquéreur
Barème des honoraires
DPE
A
B
C
D
E
F
G
GES
A
B
C
D
E
F
G

Prêt immobilier

Vous souhaitez connaître votre capacité d’emprunt et trouver le meilleur crédit immobilier ?
Réaliser une simulation gratuite

Appartement à LE VESINET
Appartement à LE VESINET
Appartement à LE VESINET
Appartement à LE VESINET
Appartement à LE VESINET
Appartement à LE VESINET
Appartement à LE VESINET
Appartement à LE VESINET
Appartement à LE VESINET
Appartement à LE VESINET
Appartement à LE VESINET
Appartement à LE VESINET
Appartement à LE VESINET
Ce site est protégé par reCAPTCHA la Politique de confidentialité et les Conditions d’utilisation de Google s’appliquent.
Obtenir un prêt immobilier au meilleur taux ?

En poursuivant votre navigation sans modifier vos paramètres, vous acceptez l'utilisation de cookies susceptibles de réaliser des statistiques de visite. Cliquez ici pour plus d'informations