T3 dernier etage

— Saint-Aunes 34130 —
340 900 €
68 m²
3 pièces
parkingbalcon/terrasse

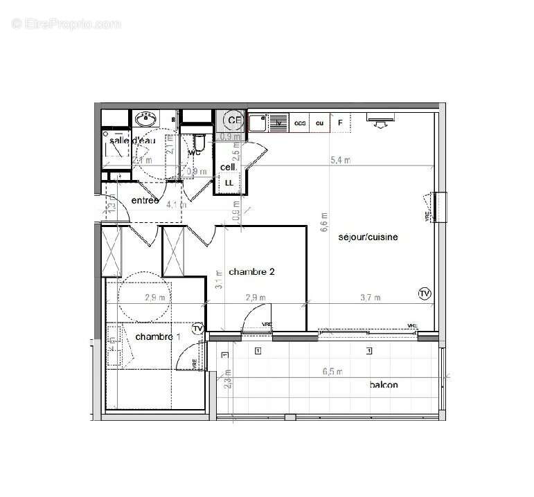
Saint-Aunès, dans un secteur calme, T3 de 67,50 m² en dernier étage exposé Sud avec une belle terrasse de 16,60 m². Prestations de qualité : carrelage en 60, climatisation réversible dans le séjour, cuisine aménagée et équipée de hotte et plaque à induction, verrouillage centralisé des volets roulants, receveur douche extra plat, pare douche, placard dans chaque chambre aménagé...2 places de parking en Sous sol.

Référence: 20252804
Honoraires à la charge du vendeur.
Barème des honoraires

Prêt immobilier

Vous souhaitez connaître votre capacité d’emprunt et trouver le meilleur crédit immobilier ?
Réaliser une simulation gratuite

Appartement à SAINT-AUNES
Appartement à SAINT-AUNES
Appartement à SAINT-AUNES
Ce site est protégé par reCAPTCHA la Politique de confidentialité et les Conditions d’utilisation de Google s’appliquent.
Obtenir un prêt immobilier au meilleur taux ?

En poursuivant votre navigation sans modifier vos paramètres, vous acceptez l'utilisation de cookies susceptibles de réaliser des statistiques de visite. Cliquez ici pour plus d'informations