Bénéficiez des services de nos partenaires locaux soigneusement sélectionnés
pour vous accompagner dans votre parcours d'achat immobilier

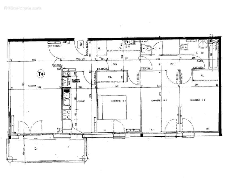
Appartement t 4

— Toulouse 31200 —
189 000 €
79 m²
4 pièces
parkingbalcon/terrasse

Nos partenaires locaux
À vendre, appartement type 4 de 80m2, proche métro et accès rocade n°14, ligne bus L9
Appartement à rafraichir, très lumineux.
Cet appartement dispose 3 chambres, d'un salon lumineux donnant sur balcon pour profiter de l'extérieur, de 2 parkings extérieurs sécurisés.

Idéal pour une première acquisition ou un investissement locatif collocation.

FRAIS NOTAIRE à 3% accès au PRET à TAUX ZERO suivant conditions .

Ne manquez pas cette opportunité unique. Contactez nous pour plus d'informations ou pour planifier une visite.
Pas d'achat sci
Bailleur social frais notaire 3% PTZ possible
Cles 27 Apt n°4 et 21
Référence agence : 1767
Voir plus

Référence: HB6R-CER-0LZ
Honoraires d'agence de 6.66% à la charge de l'acquéreur
DPE
A
B
C
D
E
F
G
GES
A
B
C
D
E
F
G

Prêt immobilier

Vous souhaitez connaître votre capacité d’emprunt et trouver le meilleur crédit immobilier ?
Réaliser une simulation gratuite

Appartement à TOULOUSE
Appartement à TOULOUSE
Appartement à TOULOUSE
Appartement à TOULOUSE
Appartement à TOULOUSE
Appartement à TOULOUSE
Appartement à TOULOUSE
Appartement à TOULOUSE
Appartement à TOULOUSE
Appartement à TOULOUSE
Appartement à TOULOUSE
Appartement à TOULOUSE
Ce site est protégé par reCAPTCHA la Politique de confidentialité et les Conditions d’utilisation de Google s’appliquent.
Obtenir un prêt immobilier au meilleur taux ?

En poursuivant votre navigation sans modifier vos paramètres, vous acceptez l'utilisation de cookies susceptibles de réaliser des statistiques de visite. Cliquez ici pour plus d'informations