Bénéficiez des services de nos partenaires locaux soigneusement sélectionnés
pour vous accompagner dans votre parcours d'achat immobilier

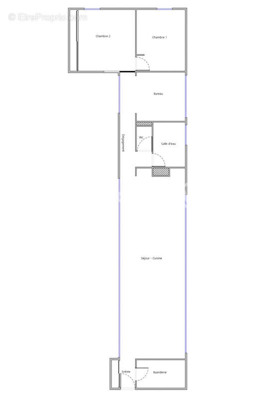
Maison 101m² à angouleme

— Angouleme 16000 —
294 000 €
101 m² / 921 m²
4 pièces
parkingjardin

Nos partenaires locaux
Et si vous viviez dans une maison où la lumière, les lignes et la nature ne font plus qu'un ?

Hans KOLB vous présente à deux pas de l'hypercentre d'ANGOULÊME une maison aux lignes californiennes signée par un architecte bordelais de renom, implantée sur plus de 900 m² de jardin.

Ses façades en bardage bois Pin Douglas, ses larges baies vitrées coulissantes ouvertes sur une terrasse généreuse, ses bow-windows baignant l'intérieur de lumière : chaque détail compose une harmonie subtile entre nature, design et confort contemporain.

A l'intérieur, vous profitez d'un vaste espace à vivre de 50 m², d'une cuisine ouverte et de trois volumes modulables (2 chambres + un 3ème espace idéal en bureau ou chambre d'appoint).

Un pompe à chaleur Air Air assure un confort thermique optimal en toute saison.

Soucieuse de performance énergétique, la propriété a récemment bénéficié d'un traitement de toiture isolant et réfléchissant, optimisant nettement la fraîcheur en été et le confort toute l'année.

Côté dépendances, vous profitez d'un carport et d'un garage.

L'emplacement est idéal : un environnement calme, proche des écoles, transports, commerces et de la Gare TGV (Paris 2h20 - Bordeaux 45 min).

DPE : classe D, GES : classe B
Coûts annuels d'énergies du logement estimés entre 1249 et 1691 euros par an, prix moyen des énergies indexés au 01/01/2021, abonnement compris.

Prêt à découvrir un lieu pensé pour sublimer votre manière de vivre ?

Pour plus de renseignements, contactez Hans KOLB au [Coordonnées masquées].

- - -

?? English Version :

What if you could live in a home where light, architecture and nature blend seamlessly?

Just a short walk from Angoulême's vibrant city center, Hans KOLB presents a contemporary Californian-inspired residence, designed by a renowned Bordeaux architect and set on more than 900 square meters of landscaped grounds.

Clad in Douglas fir, the exterior features expansive sliding glass doors opening onto a generous terrace, as well as signature bow windows flooding the interiors with natural light — a refined balance of nature, design and modern comfort.

Inside, you will enjoy a 50 square meters open-plan living area, an elegant kitchen, and three flexible spaces (two bedrooms + a third room ideal as an office or guest room).

Year-round comfort is ensured by an Air-to-Air heat pump system.

The property has recently received an insulating and reflective roof treatment, significantly improving summer coolness and overall energy efficiency throughout the year.
Additional features include a carport and a garage.

The location is ideal: a peaceful environment close to schools, transport, shops and the TGV high-speed train station (Paris 2h20 – Bordeaux 45 min).

Ready to experience a home designed to elevate your lifestyle?

? For further information, contact Hans KOLB: +33 (0)6 02 33 90 42

Honoraires inclus de 3.16% TTC à la charge de l'acquéreur. Prix hors honoraires 285 000 €. Classe énergie D, Classe climat B Montant moyen estimé des dépenses annuelles d'énergie pour un usage standard, établi à partir des prix de l'énergie de l'année 2021 : entre 1249.00 et 1691.00 €. Les informations sur les risques auxquels ce bien est exposé sont disponibles sur le site Géorisques : georisques.gouv.fr.

Votre conseiller WEELODGE CENTER : Hans KOLB
Agent commercial (Entrepreneur indi...
Voir plus

Référence: VM24782-WEELODGE
Honoraires d'agence de 3.16% à la charge de l'acquéreur
Barème des honoraires
DPE
A
B
C
D
E
F
G
GES
A
B
C
D
E
F
G

Prêt immobilier

Vous souhaitez connaître votre capacité d’emprunt et trouver le meilleur crédit immobilier ?
Réaliser une simulation gratuite

Maison à ANGOULEME
Maison à ANGOULEME
Maison à ANGOULEME
Maison à ANGOULEME
Maison à ANGOULEME
Maison à ANGOULEME
Maison à ANGOULEME
Maison à ANGOULEME
Ce site est protégé par reCAPTCHA la Politique de confidentialité et les Conditions d’utilisation de Google s’appliquent.
Obtenir un prêt immobilier au meilleur taux ?

En poursuivant votre navigation sans modifier vos paramètres, vous acceptez l'utilisation de cookies susceptibles de réaliser des statistiques de visite. Cliquez ici pour plus d'informations