Maison de charme avec studio indépendant – quartier val-fleury/rodin

— Meudon 92190 —
870 000 €
137 m²
6 pièces
parking

Dans le secteur recherché de Val-Fleury/Rodin, venez découvrir cette charmante maison des années 1930, agrandie dans les années 2000. Avec une surface habitable de 136,7 m² (151 m² au sol) et un studio indépendant de 35 m², elle offre un cadre de vie agréable, alliant tranquillité et proximité des commodités. Installée sur une parcelle arborée de 204 m², elle bénéficie d’un environnement paisible tout en étant idéalement desservie par les transports (RER C – Station Issy, Gare de Meudon – Ligne N).

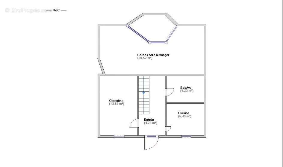
Dès votre arrivée, vous serez charmé par un vaste séjour cathédrale inondé de lumière, agrémenté d’une cheminée qui apporte une touche chaleureuse et authentique. De grandes ouvertures donnent sur une terrasse intime et un jardin verdoyant, parfaits pour profiter de moments de détente en extérieur.

Le rez-de-chaussée se compose également d’une cuisine aménagée et équipée, d’une spacieuse chambre, ainsi que d’une salle de bains avec toilettes.

À l’étage, deux grandes chambres lumineuses offrent une vue dégagée, avec un aperçu sur la Tour Eiffel et le Sacré-Cœur. Ce niveau comprend également des toilettes séparées, avec la possibilité d’aménager une salle d’eau supplémentaire.

Les combles aménageables représentent un potentiel d’agrandissement de 30 m², offrant de multiples possibilités d’aménagement selon vos envies.

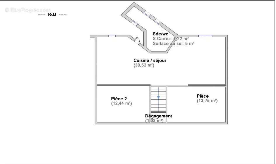
Le sous-sol total, véritable atout de cette maison, dispose de nombreux espaces de rangement et abrite un studio indépendant de 35 m², entièrement équipé (coin cuisine, salle d’eau et WC). Ce logement indépendant est parfait pour accueillir des amis ou générer un revenu locatif.

Enfin, un stationnement privé complète ce bien, assurant un confort optimal au quotidien.

Une maison pleine de charme et de potentiel, à découvrir sans plus attendre !

Contactez-nous dès aujourd’hui pour organiser une visite.
Voir plus

Référence: 85866525
DPE
A
B
C
D
E
F
G
GES
A
B
C
D
E
F
G

Prêt immobilier

Vous souhaitez connaître votre capacité d’emprunt et trouver le meilleur crédit immobilier ?
Réaliser une simulation gratuite

Maison à MEUDON
Maison à MEUDON
Maison à MEUDON
Maison à MEUDON
Maison à MEUDON
Maison à MEUDON
Maison à MEUDON
Maison à MEUDON
Maison à MEUDON
Maison à MEUDON
Maison à MEUDON
Maison à MEUDON
Maison à MEUDON
Maison à MEUDON
Maison à MEUDON
Maison à MEUDON
Maison à MEUDON
Maison à MEUDON
Maison à MEUDON
Maison à MEUDON
Maison à MEUDON
Ce site est protégé par reCAPTCHA la Politique de confidentialité et les Conditions d’utilisation de Google s’appliquent.
Obtenir un prêt immobilier au meilleur taux ?

En poursuivant votre navigation sans modifier vos paramètres, vous acceptez l'utilisation de cookies susceptibles de réaliser des statistiques de visite. Cliquez ici pour plus d'informations